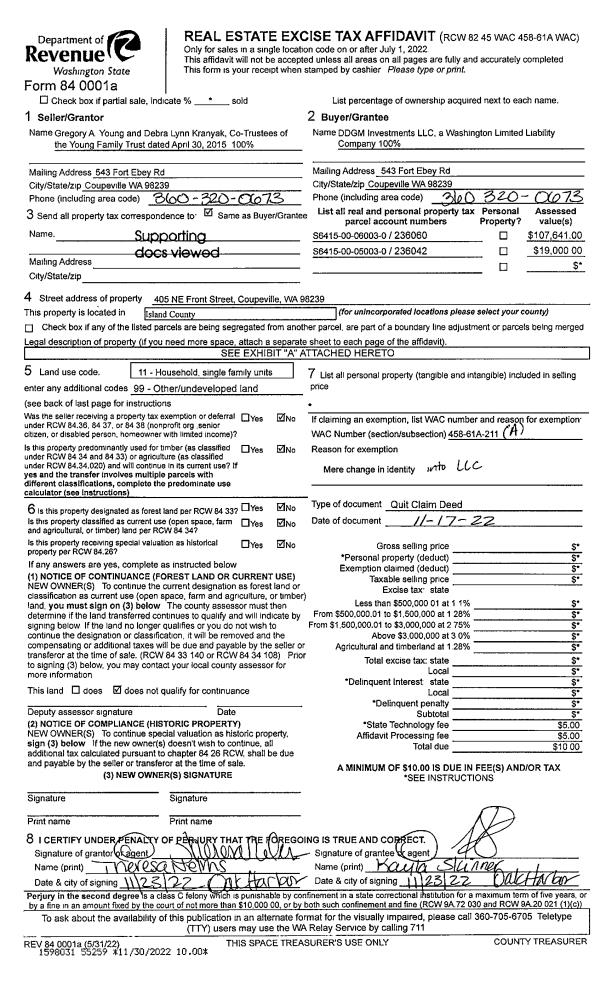
Property
Account |
| Property ID: | 717629 | Abbreviated Legal Description: | BUENA VISTA 2 LOT 22 BLK 5 |
| Geographic ID: | S6195-02-05022-0 | Agent Code: | |
| Type: | Real | | |
| Tax Area: | 590 - APPRAISER-Stan/Cam Schl Dist, Special Dist, improved & less than 1 acre | Land Use Code | 11 |
| Open Space: | N | DFL | N |
| Historic Property: | N | Remodel Property: | N |
| Multi-Family Redevelopment: | N | | |
| Township: | | Section: | |
| Range: | |
Location |
| Address: | 1083 VISTA DEL MONTE ST CAMANO ISLAND, WA 98282 | Mapsco: | |
| Neighborhood: | North Camano | Map ID: | 962 |
| Neighborhood CD: | 06-C |
Owner |
| Name: | SHELLENBERG, TYLER | Owner ID: | 303592 |
| Mailing Address: | MOLLY STELLENBERG 1083 VISTA DEL MONTE ST CAMANO ISLAND, WA 98282 | % Ownership: | 100.0000000000% |
| | | Exemptions: | |
Taxes and Assessment Details
Values
| (+) Improvement Homesite Value: | + | $0 | |
| (+) Improvement Non-Homesite Value: | + | $280,220 | |
| (+) Land Homesite Value: | + | $0 | |
| (+) Land Non-Homesite Value: | + | $275,000 | |
| (+) Curr Use (HS): | + | $0 | $0 |
| (+) Curr Use (NHS): | + | $0 | $0 |
| | | -------------------------- | |
| (=) Market Value: | = | $555,220 | |
| (–) Productivity Loss: | – | $0 | |
| | | -------------------------- | |
| (=) Subtotal: | = | $555,220 | |
| (+) Senior Appraised Value: | + | $0 | |
| (+) Non-Senior Appraised Value: | + | $555,220 | |
| | | -------------------------- | |
| (=) Total Appraised Value: | = | $555,220 | |
| (–) Senior Exemption Loss: | – | $0 | |
| (–) Exemption Loss: | – | $0 | |
| | | -------------------------- | |
| (=) Taxable Value: | = | $555,220 | |
Taxing Jurisdiction
| Owner: | SHELLENBERG, TYLER | | |
| % Ownership: | 100.0000000000% | | |
| Total Value: | $555,220 | | |
| Tax Area: | 590 - APPRAISER-Stan/Cam Schl Dist, Special Dist, improved & less than 1 acre |
| CF | Conservation Futures | 0.0316035091 | $555,220 | $555,220 | $17.55 | | |
| EMS1 | Fire & Rescue Dist #1 Camano GEN (EMS) | 0.3677864386 | $555,220 | $555,220 | $204.20 | | |
| FIRE1 | Fire & Rescue Dist #1 Camano GEN | 1.2502910536 | $555,220 | $555,220 | $694.19 | | |
| FIRE1BOND | Fire & Rescue Dist #1 Camano BOND | 0.1570001679 | $555,220 | $555,220 | $87.17 | | |
| CE | County Current Expense | 0.3708482477 | $555,220 | $555,220 | $205.90 | | |
| CR | County Roads | 0.4584763726 | $555,220 | $555,220 | $254.56 | | |
| LCIB | Library Sno-Isle BOND (Camano Island) | 0.0396325772 | $555,220 | $555,220 | $22.00 | | |
| LIB | Library Sno-Isle GEN | 0.3153421757 | $555,220 | $555,220 | $175.08 | | |
| SCH205_401 | School 205-401 Enrichment | 1.2698420524 | $555,220 | $555,220 | $705.04 | | |
| SCH205BOND | School 205-401 BOND | 0.9396497583 | $555,220 | $555,220 | $521.71 | | |
| ST | State School | 1.3035497053 | $555,220 | $555,220 | $723.76 | | |
| ST2 | State School Part 2 | 0.8169543533 | $555,220 | $555,220 | $453.59 | | |
| | Total Tax Rate: | 7.3209764117 | | | | | |
| | | | | Taxes w/Current Exemptions: | $4,064.75 | | |
| | | | | Taxes w/o Exemptions: | $4,064.75 | | |
Improvement / Building
| Improvement #1: | RESIDENTIAL | State Code: | Y | 2440.0 sqft | Value: | $280,220 |
| Bathrooms: | 2 | Bedrooms: | 3 | | Ceiling: | DRY WALL SPRAYED | Exterior Wall/Cover: | WOOD SIDING | | Floor Covering: | CARPET/VINYL 80-20 | Floor Structure: | SLAB ABOVE GRADE | | Foundation: | CONCRETE | Heating: | FHA GAS | | Interior Finish: | DRYWALL PAINT | Plumbing Fixture Cnt: | 9 | | Roof Slope: | 4" IN 12" | Roof Structure/Cover: | CJ ASPHALT |
|
| | Type | Description | Class CD | Sub Class CD | Year Built | Area |
| | BAS | BASE/MAIN FLOOR | 3 | 0 | 1968 | 1200.0 |
| | UTY | STORAGE/UTILITY | 3 | 0 | 1968 | 180.0 |
| | AGR | ATTACHED GARAGE | 3 | 0 | 1968 | 506.0 |
| | OWP | OPEN WOOD PORCH W/STEPS | 3 | 0 | 1968 | 285.0 |
| | OWR | OPEN WOOD PORCH W/STEPS/ROOF | 3 | 0 | 1968 | 72.0 |
| | ENP | ENCLOSED PORCH | 3 | 0 | 1968 | 240.0 |
| | DWN | DOWNSTAIRS LIVING AREA | 3 | 0 | 1968 | 1240.0 |
| | UTY | STORAGE/UTILITY | 3 | 0 | 1968 | 160.0 |
Sketch
Property Image
Land
| 1 | 14 | SQ (08001-12000) | 0.0000 | 0.00 | 0.00 | 0.00 | 1.00 | $275,000 | $0 |
Roll Value History
| 2026 | N/A | N/A | N/A | N/A | N/A |
| 2025 | $280,220 | $275,000 | $0 | $555,220 | $555,220 |
| 2024 | $284,515 | $260,000 | $0 | $544,515 | $544,515 |
| 2023 | $288,809 | $290,000 | $0 | $578,809 | $578,809 |
| 2022 | $253,853 | $280,000 | $0 | $533,853 | $533,853 |
| 2021 | $224,077 | $160,000 | $0 | $384,077 | $125,768 |
| 2020 | $219,596 | $130,000 | $0 | $349,596 | $125,437 |
| 2019 | $172,167 | $170,000 | $0 | $342,167 | $121,937 |
| 2018 | $172,789 | $150,000 | $0 | $322,789 | $121,983 |
| 2017 | $174,033 | $120,000 | $0 | $294,033 | $122,063 |
| 2016 | $151,608 | $115,000 | $0 | $266,608 | $106,643 |
| 2015 | $154,014 | $85,000 | $0 | $239,014 | $95,606 |
| 2014 | $156,422 | $65,000 | $0 | $221,422 | $151,422 |
| 2013 | $158,827 | $65,000 | $0 | $223,827 | $153,827 |
| 2012 | $161,233 | $68,000 | $0 | $229,233 | $91,693 |
| 2011 | $163,641 | $85,000 | $0 | $248,641 | $99,456 |
| 2010 | $149,429 | $77,190 | $0 | $226,619 | $90,648 |
| 2009 | $154,381 | $130,000 | $0 | $284,381 | $113,752 |
| 2008 | $157,017 | $165,000 | $0 | $322,017 | $322,017 |
| 2007 | $159,654 | $165,000 | $0 | $324,654 | $324,654 |
Deed and Sales History
| 1 | 03/09/2022 | WD | Warranty Deed | MANNING JTWROS, JESSE B | SHELLENBERG, TYLER | | | $575,000.00 | 52500 | 4542403 |
| 2 | 01/19/2018 | QCD | Quit Claim Deed | MANNING, JESSIE B | MANNING JTWROS, JESSE B | | | $0.00 | 32806 | 4438408 |
| 3 | 05/30/2002 | WD | Warranty Deed | COWLEY, MERRITT X | MANNING, JESSIE B | | | $219,000.00 | 22238 | 4022692 |
| 4 | 01/01/1900 | OTHER | Other - Misc. Documents | Unknown | COWLEY, MERRITT X | | | $0.00 | 0 | 0 |
Payout Agreement
| No payout information available.. |