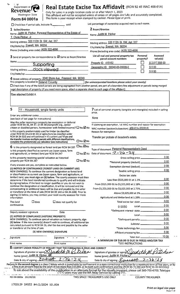
Property
Account |
| Property ID: | 717718 | Abbreviated Legal Description: | BUSH PT SL16 BLK 8: N76' OF E186' |
| Geographic ID: | S6205-00-08016-0 | Agent Code: | |
| Type: | Real | | |
| Tax Area: | 780 - APPRAISER-S Whid Schl Dist, Special District, improved & less than 1 acre | Land Use Code | 11 |
| Open Space: | N | DFL | N |
| Historic Property: | N | Remodel Property: | N |
| Multi-Family Redevelopment: | N | | |
| Township: | | Section: | |
| Range: | |
Location |
| Address: | 4886 SCURLOCK RD FREELAND, WA 98249 | Mapsco: | |
| Neighborhood: | Cycle 3 | Map ID: | 300 |
| Neighborhood CD: | 3 |
Owner |
| Name: | VALENTE, CARLA | Owner ID: | 313688 |
| Mailing Address: | 1106 NW 57TH ST SEATTLE, WA 98107 | % Ownership: | 100.0000000000% |
| | | Exemptions: | |
Taxes and Assessment Details
Values
| (+) Improvement Homesite Value: | + | $0 | |
| (+) Improvement Non-Homesite Value: | + | $74,905 | |
| (+) Land Homesite Value: | + | $0 | |
| (+) Land Non-Homesite Value: | + | $390,000 | |
| (+) Curr Use (HS): | + | $0 | $0 |
| (+) Curr Use (NHS): | + | $0 | $0 |
| | | -------------------------- | |
| (=) Market Value: | = | $464,905 | |
| (–) Productivity Loss: | – | $0 | |
| | | -------------------------- | |
| (=) Subtotal: | = | $464,905 | |
| (+) Senior Appraised Value: | + | $0 | |
| (+) Non-Senior Appraised Value: | + | $464,905 | |
| | | -------------------------- | |
| (=) Total Appraised Value: | = | $464,905 | |
| (–) Senior Exemption Loss: | – | $0 | |
| (–) Exemption Loss: | – | $0 | |
| | | -------------------------- | |
| (=) Taxable Value: | = | $464,905 | |
Taxing Jurisdiction
| Owner: | VALENTE, CARLA | | |
| % Ownership: | 100.0000000000% | | |
| Total Value: | $464,905 | | |
| Tax Area: | 780 - APPRAISER-S Whid Schl Dist, Special District, improved & less than 1 acre |
| CF | Conservation Futures | 0.0316035091 | $464,905 | $464,905 | $14.69 | | |
| FIRE3 | Fire & Rescue Dist #3 S Whidbey GEN | 1.2004855531 | $464,905 | $464,905 | $558.11 | | |
| HOBOND | Hospital BOND | 0.1910887512 | $464,905 | $464,905 | $88.84 | | |
| HOGEN | Hospital GEN | 0.3902502903 | $464,905 | $464,905 | $181.43 | | |
| CE | County Current Expense | 0.3708482477 | $464,905 | $464,905 | $172.41 | | |
| CR | County Roads | 0.4584763726 | $464,905 | $464,905 | $213.15 | | |
| ISLANDEMS | Hospital GEN (EMS) | 0.5000000000 | $464,905 | $464,905 | $232.45 | | |
| LIB | Library Sno-Isle GEN | 0.3153421757 | $464,905 | $464,905 | $146.60 | | |
| PORTWHID | Port of S Whidbey GEN | 0.1094540357 | $464,905 | $464,905 | $50.89 | | |
| SCH206BOND | School 206 BOND | 0.3161759235 | $464,905 | $464,905 | $146.99 | | |
| SCH206MO | School 206 Enrichment | 0.4547169547 | $464,905 | $464,905 | $211.40 | | |
| ST | State School | 1.3035497053 | $464,905 | $464,905 | $606.03 | | |
| ST2 | State School Part 2 | 0.8169543533 | $464,905 | $464,905 | $379.81 | | |
| SWHIDPRBD | P & R S Whidbey BOND | 0.0152817568 | $464,905 | $464,905 | $7.10 | | |
| SWHIDPRBD2 | P & R S Whidbey BOND2 | 0.0138911264 | $464,905 | $464,905 | $6.46 | | |
| SWHIDPRMT | P & R S Whidbey GEN | 0.2053334452 | $464,905 | $464,905 | $95.46 | | |
| | Total Tax Rate: | 6.6934522006 | | | | | |
| | | | | Taxes w/Current Exemptions: | $3,111.82 | | |
| | | | | Taxes w/o Exemptions: | $3,111.82 | | |
Improvement / Building
| Improvement #1: | MANUFACTURED HOME | State Code: | Y | 1352.0 sqft | Value: | $74,905 |
| Bathrooms: | 0 | Bedrooms: | 0 | | Ceiling: | PLASTER PAINTED | Cooling: | EVAP NO DUCT | | Exterior Wall/Cover: | VINYL | Floor Covering: | CARPET 100% | | Floor Structure: | SLAB ON GRADE | Foundation: | SLAB | | Heating: | FHA ELECTRIC | Interior Finish: | PLASTER | | Plumbing Fixture Cnt: | 9 | Roof Slope: | FLAT | | Roof Structure/Cover: | CJ ALUMINIUM HEAVY |   |   |
|
| | Type | Description | Class CD | Sub Class CD | Year Built | Area |
| | BAS | BASE/MAIN FLOOR | 3 | 0 | 1979 | 1352.0 |
| | OCP | OPEN CARPORT | 3 | 0 | 1979 | 480.0 |
| | oPOL | POLE BARN | 3 | 0 | 1979 | 864.0 |
| | OWP | OPEN WOOD PORCH W/STEPS | 3 | 0 | 1979 | 502.9 |
Sketch
| No sketches available for this property. |
Property Image
Land
| 1 | 15 | SQ (12001-21780) | 0.0000 | 0.00 | 0.00 | 0.00 | 1.00 | $390,000 | $0 |
Roll Value History
| 2026 | N/A | N/A | N/A | N/A | N/A |
| 2025 | $74,905 | $390,000 | $0 | $464,905 | $464,905 |
| 2024 | $38,544 | $340,000 | $0 | $378,544 | $378,544 |
| 2023 | $37,852 | $340,000 | $0 | $377,852 | $377,852 |
| 2022 | $35,543 | $290,000 | $0 | $325,543 | $325,543 |
| 2021 | $33,115 | $240,000 | $0 | $273,115 | $273,115 |
| 2020 | $33,221 | $170,000 | $0 | $203,221 | $203,221 |
| 2019 | $26,008 | $200,000 | $0 | $226,008 | $226,008 |
| 2018 | $27,583 | $150,000 | $0 | $177,583 | $177,583 |
| 2017 | $29,947 | $150,000 | $0 | $179,947 | $179,947 |
| 2016 | $29,364 | $150,000 | $0 | $179,364 | $179,364 |
| 2015 | $30,502 | $150,000 | $0 | $180,502 | $180,502 |
| 2014 | $32,210 | $119,000 | $0 | $151,210 | $151,210 |
| 2013 | $39,148 | $119,000 | $0 | $158,148 | $53,913 |
| 2012 | $40,286 | $119,000 | $0 | $159,286 | $53,913 |
| 2011 | $41,425 | $140,000 | $0 | $181,425 | $53,913 |
| 2010 | $40,582 | $140,000 | $0 | $180,582 | $53,913 |
| 2009 | $43,830 | $199,670 | $0 | $243,500 | $53,912 |
| 2008 | $46,247 | $173,975 | $0 | $220,222 | $53,912 |
| 2007 | $45,350 | $175,000 | $0 | $220,350 | $53,286 |
Deed and Sales History
| 1 | 08/26/2024 | WD | Warranty Deed | GOLDSMITH, DANIEL | VALENTE, CARLA | | | $582,000.00 | 61097 | 4576385 |
| 2 | 10/13/2023 | WD | Warranty Deed | MOTT, DAVID S | GOLDSMITH, DANIEL | | | $320,000.00 | 58282 | 4565883 |
| 3 | 05/26/2021 | WD | Warranty Deed | MOTT, JOHN S | MOTT, DAVID S | | | $0.00 | 48415 | 4520315 |
| 4 | 09/12/2016 | WD | Warranty Deed | SCHNEIDER MOTT JTWROS, HILDE | MOTT, JOHN S | | | $96,600.00 | 26153 | 4407440 |
| 5 | 01/05/2015 | ESTSEPPROP | Establish Separate Property | SCHNEIDER, LAWRENCE K | SCHNEIDER MOTT JTWROS, HILDE | | | $0.00 | 22100 | 4389247 |
| 6 | 07/09/1999 | OTHER | Other - Misc. Documents | SCHNEIDER, LAWRENCE K | SCHNEIDER, LAWRENCE K | | | $0.00 | 92754 | 0 |
| 7 | 07/31/1998 | QCD | Quit Claim Deed | Unknown | SCHNEIDER, LAWRENCE K | | | $0.00 | 83819 | 98020584 |
| 8 | 07/01/1997 | ESTSEPPROP | Establish Separate Property | SCHNEIDER, LAWRENCE K | SCHNEIDER, LAWRENCE K | | | $0.00 | 72335 | 97011030 |
| 9 | 07/01/1997 | ESTSEPPROP | Establish Separate Property | SCHNEIDER, LAWRENCE K | SCHNEIDER, LAWRENCE K | | | $0.00 | 72335 | 97011030 |
| 10 | 06/01/1997 | QCD | Quit Claim Deed | SCHNEIDER, LAWRENCE K | SCHNEIDER, LAWRENCE K | | | $0.00 | 71933 | 97008894 |
| 11 | 06/01/1997 | QCD | Quit Claim Deed | SCHNEIDER, LAWRENCE K | SCHNEIDER, LAWRENCE K | | | $0.00 | 71934 | 97008895 |
| 12 | 06/01/1997 | QCD | Quit Claim Deed | SCHNEIDER, LAWRENCE K | SCHNEIDER, LAWRENCE K | | | $0.00 | 71935 | 97008896 |
| 13 | 06/01/1993 | QCD | Quit Claim Deed | SCHNEIDER, LAWRENCE K | SCHNEIDER, LAWRENCE K | | | $0.00 | 32565 | 93013266 |
| 14 | 05/01/1993 | QCD | Quit Claim Deed | SCHNEIDER, LAWRENCE K | SCHNEIDER, LAWRENCE K | | | $0.00 | 34946 | 93025684 |
| 15 | 05/01/1992 | OTHER | Other - Misc. Documents | MORGAN, STANLEY/BETTY V | SCHNEIDER, LAWRENCE K | | | $35,000.00 | 21751 | 0 |
| 16 | 05/01/1992 | WD | Warranty Deed | SCHNEIDER, LAWRENCE K | SCHNEIDER, LAWRENCE K | | | $100,000.00 | 21749 | 92008332 |
| 17 | 05/01/1992 | QCD | Quit Claim Deed | MORGAN, STANLEY F | SCHNEIDER, LAWRENCE K | | | $0.00 | 25104 | 92025175 |
| 18 | 01/01/1992 | OTHER | Other - Misc. Documents | MORGAN, STANLEY F | MORGAN, STANLEY F | | | $0.00 | 64658 | 91019847 |
| 19 | 12/01/1991 | QCD | Quit Claim Deed | MORGAN, STANLEY F | MORGAN, STANLEY F | | | $1,000.00 | 14552 | 91019942 |
| 20 | 06/01/1978 | OTHER | Other - Misc. Documents | SCHNEIDER, LAWRENCE K | MORGAN, STANLEY F | | | $11,000.00 | 83165 | 335682 |
Payout Agreement
| No payout information available.. |