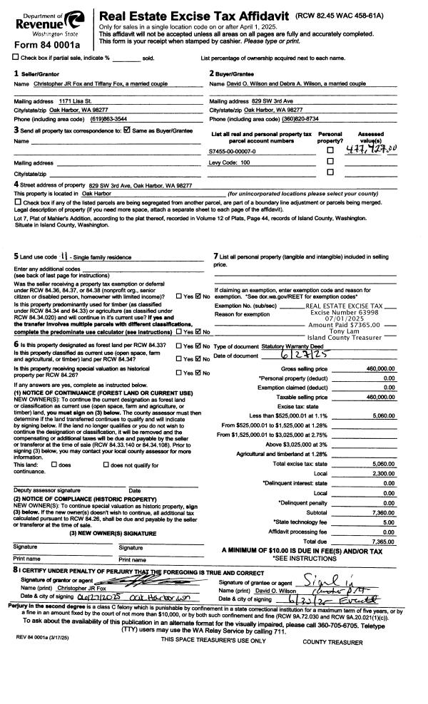
Property
Account |
| Property ID: | 717932 | Abbreviated Legal Description: | ROLL HILL 2 LOTS 1 & 2 EX ELY 121' |
| Geographic ID: | S8050-02-19001-2 | Agent Code: | |
| Type: | Real | | |
| Tax Area: | 330 - APPRAISER-Cpvl Schl Dist, Special Dist, improved & less than 1 acre | Land Use Code | 11 |
| Open Space: | N | DFL | N |
| Historic Property: | N | Remodel Property: | N |
| Multi-Family Redevelopment: | N | | |
| Township: | | Section: | |
| Range: | |
Location |
| Address: | 1566 ALLYSON ST OAK HARBOR, WA 98277 | Mapsco: | |
| Neighborhood: | Cycle 2 | Map ID: | 151 |
| Neighborhood CD: | 2 |
Owner |
| Name: | TYE, NEAL | Owner ID: | 264554 |
| Mailing Address: | ROXANNE B TYE 1566 ALLYSON ST OAK HARBOR, WA 98277 | % Ownership: | 100.0000000000% |
| | | Exemptions: | |
Taxes and Assessment Details
Values
| (+) Improvement Homesite Value: | + | $0 | |
| (+) Improvement Non-Homesite Value: | + | $170,538 | |
| (+) Land Homesite Value: | + | $0 | |
| (+) Land Non-Homesite Value: | + | $220,000 | |
| (+) Curr Use (HS): | + | $0 | $0 |
| (+) Curr Use (NHS): | + | $0 | $0 |
| | | -------------------------- | |
| (=) Market Value: | = | $390,538 | |
| (–) Productivity Loss: | – | $0 | |
| | | -------------------------- | |
| (=) Subtotal: | = | $390,538 | |
| (+) Senior Appraised Value: | + | $0 | |
| (+) Non-Senior Appraised Value: | + | $390,538 | |
| | | -------------------------- | |
| (=) Total Appraised Value: | = | $390,538 | |
| (–) Senior Exemption Loss: | – | $0 | |
| (–) Exemption Loss: | – | $0 | |
| | | -------------------------- | |
| (=) Taxable Value: | = | $390,538 | |
Taxing Jurisdiction
| Owner: | TYE, NEAL | | |
| % Ownership: | 100.0000000000% | | |
| Total Value: | $390,538 | | |
| Tax Area: | 330 - APPRAISER-Cpvl Schl Dist, Special Dist, improved & less than 1 acre |
| CF | Conservation Futures | 0.0316035091 | $390,538 | $390,538 | $12.34 | | |
| CEM2 | Cemetery #2 | 0.0095056933 | $390,538 | $390,538 | $3.71 | | |
| FIRE2 | Fire & Rescue Dist #2 N Whidbey GEN | 0.5475949600 | $390,538 | $390,538 | $213.86 | | |
| HOBOND | Hospital BOND | 0.1910887512 | $390,538 | $390,538 | $74.63 | | |
| HOGEN | Hospital GEN | 0.3902502903 | $390,538 | $390,538 | $152.41 | | |
| CE | County Current Expense | 0.3708482477 | $390,538 | $390,538 | $144.83 | | |
| CR | County Roads | 0.4584763726 | $390,538 | $390,538 | $179.05 | | |
| ISLANDEMS | Hospital GEN (EMS) | 0.5000000000 | $390,538 | $390,538 | $195.27 | | |
| LIB | Library Sno-Isle GEN | 0.3153421757 | $390,538 | $390,538 | $123.15 | | |
| LIBCAP | Library Sno-Isle BOND (Cap Fac Imp Area) | 0.0543427938 | $390,538 | $390,538 | $21.22 | | |
| POCOUP | Port of Coupeville GEN | 0.1093371703 | $390,538 | $390,538 | $42.70 | | |
| POCOUPIDD | Port of Coupeville IDD | 0.3409740022 | $390,538 | $390,538 | $133.16 | | |
| COUPSDTECH | School 204 CP (TECH) | 0.7545480007 | $390,538 | $390,538 | $294.68 | | |
| SCH204MO | School 204 Enrichment | 0.6716186034 | $390,538 | $390,538 | $262.29 | | |
| ST | State School | 1.3035497053 | $390,538 | $390,538 | $509.09 | | |
| ST2 | State School Part 2 | 0.8169543533 | $390,538 | $390,538 | $319.05 | | |
| | Total Tax Rate: | 6.8660346289 | | | | | |
| | | | | Taxes w/Current Exemptions: | $2,681.44 | | |
| | | | | Taxes w/o Exemptions: | $2,681.44 | | |
Improvement / Building
| Improvement #1: | MANUFACTURED HOME | State Code: | Y | 1620.0 sqft | Value: | $170,538 |
| Bathrooms: | 1 | Bedrooms: | 2 | | Ceiling: | PLASTER PAINTED | Cooling: | EVAP NO DUCT | | Exterior Wall/Cover: | VINYL | Floor Covering: | CARPET 100% | | Floor Structure: | SLAB ON GRADE | Foundation: | SLAB | | Heating: | FHA ELECTRIC | Interior Finish: | PLASTER | | Roof Slope: | FLAT | Roof Structure/Cover: | CJ ALUMINIUM HEAVY |
|
| | Type | Description | Class CD | Sub Class CD | Year Built | Area |
| | BAS | BASE/MAIN FLOOR | 4 | 0 | 2018 | 1620.0 |
| | OWP | OPEN WOOD PORCH W/STEPS | 4 | 0 | 2018 | 80.0 |
Sketch
Property Image
Land
| 1 | 15 | SQ (12001-21780) | 0.3643 | 15868.91 | 0.00 | 0.00 | 1.00 | $220,000 | $0 |
Roll Value History
| 2026 | N/A | N/A | N/A | N/A | N/A |
| 2025 | $170,538 | $220,000 | $0 | $390,538 | $390,538 |
| 2024 | $186,818 | $210,000 | $0 | $396,818 | $396,818 |
| 2023 | $164,196 | $220,000 | $0 | $384,196 | $384,196 |
| 2022 | $151,858 | $220,000 | $0 | $371,858 | $371,858 |
| 2021 | $133,412 | $180,000 | $0 | $313,412 | $313,412 |
| 2020 | $130,826 | $140,000 | $0 | $270,826 | $270,826 |
| 2019 | $104,171 | $170,000 | $0 | $274,171 | $274,171 |
| 2018 | $104,171 | $135,000 | $0 | $239,171 | $239,171 |
| 2017 | $15,650 | $120,000 | $0 | $135,650 | $135,650 |
| 2016 | $15,650 | $100,000 | $0 | $115,650 | $115,650 |
| 2015 | $15,650 | $70,000 | $0 | $85,650 | $85,650 |
| 2014 | $16,030 | $60,000 | $0 | $76,030 | $76,030 |
| 2013 | $16,409 | $55,000 | $0 | $71,409 | $71,409 |
| 2012 | $22,116 | $57,800 | $0 | $79,916 | $79,916 |
| 2011 | $22,495 | $68,000 | $0 | $90,495 | $90,495 |
| 2010 | $21,696 | $68,000 | $0 | $89,696 | $0 |
| 2009 | $22,679 | $74,400 | $0 | $97,079 | $0 |
| 2008 | $47,368 | $74,400 | $0 | $121,768 | $0 |
| 2007 | $48,817 | $74,400 | $0 | $123,217 | $0 |
Deed and Sales History
| 1 | 11/15/2013 | WD | Warranty Deed | RUMSEY LIFE EST, ELIZABETH M | TYE, NEAL | | | $55,448.00 | 13597 | 4352175 |
| 2 | 05/01/1995 | QCD | Quit Claim Deed | RUMSEY, ELIZABETH M | RUMSEY, ELIZABETH M | | | $0.00 | 64366 | 96021361 |
| 3 | 02/01/1994 | QCD | Quit Claim Deed | RUMSEY, ROBERT H | RUMSEY, ELIZABETH M | | | $0.00 | 40751 | 94006592 |
| 4 | 07/01/1973 | CD | DNU - Correction Deed | WILLARD, HOWARD L | RUMSEY, ROBERT H | | | $0.00 | 48021 | 0 |
Payout Agreement
| No payout information available.. |