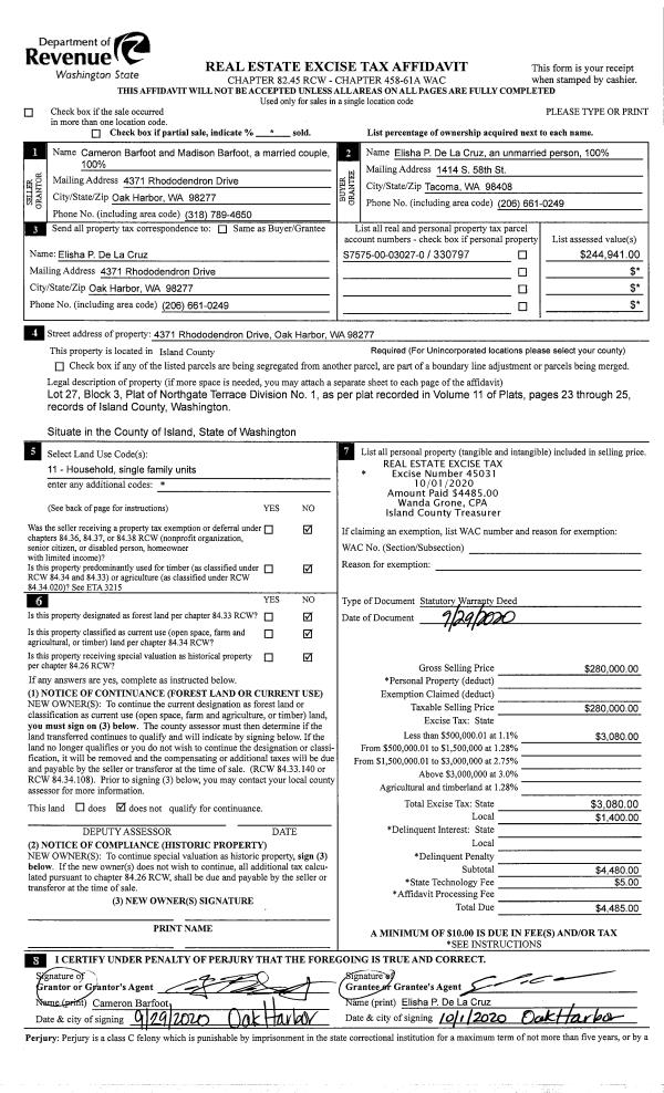
Property
Account |
| Property ID: | 717941 | Abbreviated Legal Description: | BUSH PT TRAC PK LOT 35 |
| Geographic ID: | S6225-00-00035-0 | Agent Code: | |
| Type: | Real | | |
| Tax Area: | 710 - APPRAISER-S Whid Schl Dist, outside Langley, improved & 1 acre or less | Land Use Code | 11 |
| Open Space: | N | DFL | N |
| Historic Property: | N | Remodel Property: | N |
| Multi-Family Redevelopment: | N | | |
| Township: | | Section: | |
| Range: | |
Location |
| Address: | 595 SHIPPING VIEW DR FREELAND, WA 98249 | Mapsco: | |
| Neighborhood: | Cycle 3 | Map ID: | 303 |
| Neighborhood CD: | 3 |
Owner |
| Name: | AYRISS, MONICA | Owner ID: | 302389 |
| Mailing Address: | 595 SHIPPING VIEW DR FREELAND, WA 98249 | % Ownership: | 100.0000000000% |
| | | Exemptions: | |
Taxes and Assessment Details
Values
| (+) Improvement Homesite Value: | + | $0 | |
| (+) Improvement Non-Homesite Value: | + | $62,625 | |
| (+) Land Homesite Value: | + | $0 | |
| (+) Land Non-Homesite Value: | + | $270,000 | |
| (+) Curr Use (HS): | + | $0 | $0 |
| (+) Curr Use (NHS): | + | $0 | $0 |
| | | -------------------------- | |
| (=) Market Value: | = | $332,625 | |
| (–) Productivity Loss: | – | $0 | |
| | | -------------------------- | |
| (=) Subtotal: | = | $332,625 | |
| (+) Senior Appraised Value: | + | $0 | |
| (+) Non-Senior Appraised Value: | + | $332,625 | |
| | | -------------------------- | |
| (=) Total Appraised Value: | = | $332,625 | |
| (–) Senior Exemption Loss: | – | $0 | |
| (–) Exemption Loss: | – | $0 | |
| | | -------------------------- | |
| (=) Taxable Value: | = | $332,625 | |
Taxing Jurisdiction
| Owner: | AYRISS, MONICA | | |
| % Ownership: | 100.0000000000% | | |
| Total Value: | $332,625 | | |
| Tax Area: | 710 - APPRAISER-S Whid Schl Dist, outside Langley, improved & 1 acre or less |
| CF | Conservation Futures | 0.0316035091 | $332,625 | $332,625 | $10.51 | | |
| FIRE3 | Fire & Rescue Dist #3 S Whidbey GEN | 1.2004855531 | $332,625 | $332,625 | $399.31 | | |
| HOBOND | Hospital BOND | 0.1910887512 | $332,625 | $332,625 | $63.56 | | |
| HOGEN | Hospital GEN | 0.3902502903 | $332,625 | $332,625 | $129.81 | | |
| CE | County Current Expense | 0.3708482477 | $332,625 | $332,625 | $123.35 | | |
| CR | County Roads | 0.4584763726 | $332,625 | $332,625 | $152.50 | | |
| ISLANDEMS | Hospital GEN (EMS) | 0.5000000000 | $332,625 | $332,625 | $166.31 | | |
| LIB | Library Sno-Isle GEN | 0.3153421757 | $332,625 | $332,625 | $104.89 | | |
| PORTWHID | Port of S Whidbey GEN | 0.1094540357 | $332,625 | $332,625 | $36.41 | | |
| SCH206BOND | School 206 BOND | 0.3161759235 | $332,625 | $332,625 | $105.17 | | |
| SCH206MO | School 206 Enrichment | 0.4547169547 | $332,625 | $332,625 | $151.25 | | |
| ST | State School | 1.3035497053 | $332,625 | $332,625 | $433.59 | | |
| ST2 | State School Part 2 | 0.8169543533 | $332,625 | $332,625 | $271.74 | | |
| SWHIDPRBD | P & R S Whidbey BOND | 0.0152817568 | $332,625 | $332,625 | $5.08 | | |
| SWHIDPRBD2 | P & R S Whidbey BOND2 | 0.0138911264 | $332,625 | $332,625 | $4.62 | | |
| SWHIDPRMT | P & R S Whidbey GEN | 0.2053334452 | $332,625 | $332,625 | $68.30 | | |
| | Total Tax Rate: | 6.6934522006 | | | | | |
| | | | | Taxes w/Current Exemptions: | $2,226.40 | | |
| | | | | Taxes w/o Exemptions: | $2,226.40 | | |
Improvement / Building
| Improvement #1: | MANUFACTURED HOME | State Code: | Y | 1040.0 sqft | Value: | $62,625 |
| Bathrooms: | 0 | Bedrooms: | 0 | | Ceiling: | PLASTER PAINTED | Cooling: | EVAP NO DUCT | | Exterior Wall/Cover: | VINYL | Floor Covering: | CARPET 100% | | Floor Structure: | SLAB ON GRADE | Foundation: | SLAB | | Heating: | FHA ELECTRIC | Interior Finish: | PLASTER | | Plumbing Fixture Cnt: | 1 | Roof Slope: | FLAT | | Roof Structure/Cover: | CJ ALUMINIUM HEAVY |   |   |
|
| | Type | Description | Class CD | Sub Class CD | Year Built | Area |
| | BAS | BASE/MAIN FLOOR | 4 | 0 | 1967 | 1040.0 |
| | DGR | DETACHED GARAGE | 4 | 0 | 1967 | 720.0 |
| | OWR | OPEN WOOD PORCH W/STEPS/ROOF | 4 | 0 | 1967 | 21.0 |
| | OWP | OPEN WOOD PORCH W/STEPS | 4 | 0 | 1967 | 84.0 |
Sketch
Property Image
Land
| 1 | 15 | SQ (12001-21780) | 0.0000 | 0.00 | 0.00 | 0.00 | 1.00 | $270,000 | $0 |
Roll Value History
| 2026 | N/A | N/A | N/A | N/A | N/A |
| 2025 | $62,625 | $270,000 | $0 | $332,625 | $332,625 |
| 2024 | $65,162 | $270,000 | $0 | $335,162 | $335,162 |
| 2023 | $60,748 | $260,000 | $0 | $320,748 | $320,748 |
| 2022 | $58,370 | $240,000 | $0 | $298,370 | $298,370 |
| 2021 | $34,930 | $140,000 | $0 | $174,930 | $174,930 |
| 2020 | $35,068 | $115,000 | $0 | $150,068 | $150,068 |
| 2019 | $31,845 | $180,000 | $0 | $211,845 | $211,845 |
| 2018 | $32,425 | $130,000 | $0 | $162,425 | $162,425 |
| 2017 | $8,690 | $110,000 | $0 | $118,690 | $118,690 |
| 2016 | $8,690 | $90,000 | $0 | $98,690 | $98,690 |
| 2015 | $8,690 | $90,000 | $0 | $98,690 | $98,690 |
| 2014 | $8,690 | $72,250 | $0 | $80,940 | $80,940 |
| 2013 | $23,667 | $72,250 | $0 | $95,917 | $95,917 |
| 2012 | $23,667 | $72,250 | $0 | $95,917 | $95,917 |
| 2011 | $24,814 | $85,000 | $0 | $109,814 | $109,814 |
| 2010 | $35,856 | $85,000 | $0 | $120,856 | $120,856 |
| 2009 | $36,686 | $100,000 | $0 | $136,686 | $136,686 |
| 2008 | $36,075 | $135,713 | $0 | $171,788 | $171,788 |
| 2007 | $42,489 | $102,000 | $0 | $144,489 | $0 |
Deed and Sales History
| 1 | 12/13/2021 | WD | Warranty Deed | GOLDSMITH, DANIEL | AYRISS, MONICA | | | $295,000.00 | 51364 | 4536157 |
| 2 | 09/27/2021 | OTHER | Other - Misc. Documents | BURGESS, ROBERT B | GOLDSMITH, DANIEL | | | $0.00 | 50728 | 4529978 |
| 3 | 06/15/2020 | PACD | Purchaser's Assignment | BURGESS, ROBERT B | BURGESS, ROBERT B | | | $0.00 | 43359 | 4488774 |
| 4 | 05/08/2017 | REC | Real Estate Contract | GOLDSMITH, DANIEL | BURGESS, ROBERT B | | | $156,310.00 | 29245 | 4422346 |
| 5 | 06/28/2016 | WD | Warranty Deed | GRIDER, JANETTA M | GOLDSMITH, DANIEL | | | $92,000.00 | 25032 | 4402247 |
| 6 | 01/01/1900 | OTHER | Other - Misc. Documents | Unknown | GRIDER, JANETTA M | | | $0.00 | 0 | 0 |
Payout Agreement
| No payout information available.. |