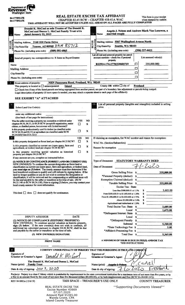
Property
Account |
| Property ID: | 717996 | Abbreviated Legal Description: | BUSH PT TRAC PK LOT 62 |
| Geographic ID: | S6225-00-00062-0 | Agent Code: | |
| Type: | Real | | |
| Tax Area: | 710 - APPRAISER-S Whid Schl Dist, outside Langley, improved & 1 acre or less | Land Use Code | 11 |
| Open Space: | N | DFL | N |
| Historic Property: | N | Remodel Property: | N |
| Multi-Family Redevelopment: | N | | |
| Township: | | Section: | |
| Range: | |
Location |
| Address: | 546 BUSH POINT RD FREELAND, WA 98249 | Mapsco: | |
| Neighborhood: | Cycle 3 | Map ID: | 303 |
| Neighborhood CD: | 3 |
Owner |
| Name: | GUSTAFSON MYRA | Owner ID: | 298033 |
| Mailing Address: | 546 BUSH POINT RD FREELAND, WA 98249 | % Ownership: | 100.0000000000% |
| | | Exemptions: | |
Taxes and Assessment Details
Values
| (+) Improvement Homesite Value: | + | $0 | |
| (+) Improvement Non-Homesite Value: | + | $195,882 | |
| (+) Land Homesite Value: | + | $0 | |
| (+) Land Non-Homesite Value: | + | $370,000 | |
| (+) Curr Use (HS): | + | $0 | $0 |
| (+) Curr Use (NHS): | + | $0 | $0 |
| | | -------------------------- | |
| (=) Market Value: | = | $565,882 | |
| (–) Productivity Loss: | – | $0 | |
| | | -------------------------- | |
| (=) Subtotal: | = | $565,882 | |
| (+) Senior Appraised Value: | + | $0 | |
| (+) Non-Senior Appraised Value: | + | $565,882 | |
| | | -------------------------- | |
| (=) Total Appraised Value: | = | $565,882 | |
| (–) Senior Exemption Loss: | – | $0 | |
| (–) Exemption Loss: | – | $0 | |
| | | -------------------------- | |
| (=) Taxable Value: | = | $565,882 | |
Taxing Jurisdiction
| Owner: | GUSTAFSON MYRA | | |
| % Ownership: | 100.0000000000% | | |
| Total Value: | $565,882 | | |
| Tax Area: | 710 - APPRAISER-S Whid Schl Dist, outside Langley, improved & 1 acre or less |
| CF | Conservation Futures | 0.0316035091 | $565,882 | $565,882 | $17.88 | | |
| FIRE3 | Fire & Rescue Dist #3 S Whidbey GEN | 1.2004855531 | $565,882 | $565,882 | $679.33 | | |
| HOBOND | Hospital BOND | 0.1910887512 | $565,882 | $565,882 | $108.13 | | |
| HOGEN | Hospital GEN | 0.3902502903 | $565,882 | $565,882 | $220.84 | | |
| CE | County Current Expense | 0.3708482477 | $565,882 | $565,882 | $209.86 | | |
| CR | County Roads | 0.4584763726 | $565,882 | $565,882 | $259.44 | | |
| ISLANDEMS | Hospital GEN (EMS) | 0.5000000000 | $565,882 | $565,882 | $282.94 | | |
| LIB | Library Sno-Isle GEN | 0.3153421757 | $565,882 | $565,882 | $178.45 | | |
| PORTWHID | Port of S Whidbey GEN | 0.1094540357 | $565,882 | $565,882 | $61.94 | | |
| SCH206BOND | School 206 BOND | 0.3161759235 | $565,882 | $565,882 | $178.92 | | |
| SCH206MO | School 206 Enrichment | 0.4547169547 | $565,882 | $565,882 | $257.32 | | |
| ST | State School | 1.3035497053 | $565,882 | $565,882 | $737.66 | | |
| ST2 | State School Part 2 | 0.8169543533 | $565,882 | $565,882 | $462.30 | | |
| SWHIDPRBD | P & R S Whidbey BOND | 0.0152817568 | $565,882 | $565,882 | $8.65 | | |
| SWHIDPRBD2 | P & R S Whidbey BOND2 | 0.0138911264 | $565,882 | $565,882 | $7.86 | | |
| SWHIDPRMT | P & R S Whidbey GEN | 0.2053334452 | $565,882 | $565,882 | $116.19 | | |
| | Total Tax Rate: | 6.6934522006 | | | | | |
| | | | | Taxes w/Current Exemptions: | $3,787.71 | | |
| | | | | Taxes w/o Exemptions: | $3,787.71 | | |
Improvement / Building
| Improvement #1: | RESIDENTIAL | State Code: | Y | 924.0 sqft | Value: | $195,882 |
| Bathrooms: | 1.5 | Bedrooms: | 2 | | Ceiling: | DRYWALL PAINTED | Exterior Wall/Cover: | PLY/HARDBOARD T-111 | | Floor Covering: | HARDWOOD/CARP 80-20 | Floor Structure: | WOOD W/SUBFLOOR | | Foundation: | CONCRETE | Heating: | FHA GAS | | Interior Finish: | DRYWALL PAINT | Plumbing Fixture Cnt: | 8 | | Roof Slope: | 4" IN 12" | Roof Structure/Cover: | CJ ASPHALT |
|
| | Type | Description | Class CD | Sub Class CD | Year Built | Area |
| | BAS | BASE/MAIN FLOOR | 3 | 0 | 1962 | 924.0 |
| | DGR | DETACHED GARAGE | 3 | 0 | 1962 | 504.0 |
| | OWP | OPEN WOOD PORCH W/STEPS | 3 | 0 | 1962 | 78.0 |
| | OWP | OPEN WOOD PORCH W/STEPS | 3 | 0 | 1962 | 300.6 |
| | OP3 | OPEN PORCH W/ROOF | 3 | 0 | 1962 | 30.0 |
Sketch
Property Image
Land
| 1 | 15 | SQ (12001-21780) | 0.0000 | 0.00 | 0.00 | 0.00 | 1.00 | $370,000 | $0 |
Roll Value History
| 2026 | N/A | N/A | N/A | N/A | N/A |
| 2025 | $195,882 | $370,000 | $0 | $565,882 | $565,882 |
| 2024 | $198,419 | $370,000 | $0 | $568,419 | $568,419 |
| 2023 | $200,954 | $360,000 | $0 | $560,954 | $560,954 |
| 2022 | $184,258 | $360,000 | $0 | $544,258 | $544,258 |
| 2021 | $162,224 | $170,000 | $0 | $332,224 | $332,224 |
| 2020 | $157,688 | $170,000 | $0 | $327,688 | $327,688 |
| 2019 | $86,692 | $180,000 | $0 | $266,692 | $266,692 |
| 2018 | $86,977 | $130,000 | $0 | $216,977 | $216,977 |
| 2017 | $87,545 | $110,000 | $0 | $197,545 | $197,545 |
| 2016 | $88,684 | $90,000 | $0 | $178,684 | $178,684 |
| 2015 | $89,822 | $90,000 | $0 | $179,822 | $179,822 |
| 2014 | $90,961 | $72,250 | $0 | $163,211 | $163,211 |
| 2013 | $94,827 | $72,250 | $0 | $167,077 | $167,077 |
| 2012 | $96,100 | $72,250 | $0 | $168,350 | $168,350 |
| 2011 | $97,373 | $85,000 | $0 | $182,373 | $182,373 |
| 2010 | $103,817 | $85,000 | $0 | $188,817 | $188,817 |
| 2009 | $108,340 | $100,000 | $0 | $208,340 | $208,340 |
| 2008 | $109,853 | $135,000 | $0 | $244,853 | $244,853 |
| 2007 | $105,740 | $135,000 | $0 | $240,740 | $240,740 |
Deed and Sales History
| 1 | 02/25/2021 | DECREE | Divorce Decree/Legal Separation | WHITTINGHAM, MYRA J | GUSTAFSON MYRA | | | | 88878 | |
| 2 | 11/22/2019 | QCD | Quit Claim Deed | WHITTINGHAM, DAVID | WHITTINGHAM, MYRA J | | | $0.00 | 41231 | 4476284 |
| 3 | 11/20/2019 | WD | Warranty Deed | YATES, TERRY J | WHITTINGHAM, MYRA J | | | $325,000.00 | 41230 | 4476283 |
| 4 | 07/06/2001 | PRD | Personal Representatives Deed | MATTSON, VELDA V | YATES, TERRY J | | | $107,000.00 | 12620 | 20037049 |
| 5 | 04/01/1992 | QCD | Quit Claim Deed | MATTSON, VELDA V | MATTSON, VELDA V | | | $0.00 | 21291 | 92006275 |
| 6 | 10/01/1991 | OTHER | Other - Misc. Documents | RIVAS, FRANK | MATTSON, VELDA V | | | $0.00 | 64519 | 0 |
| 7 | 06/01/1956 | EZ | Easement | ALTMAN, E N | RIVAS, FRANK | | | $0.00 | 10861 | 0 |
| 8 | 01/01/1900 | OTHER | Other - Misc. Documents | Unknown | ALTMAN, E N | | | $0.00 | 0 | 0 |
Payout Agreement
| No payout information available.. |