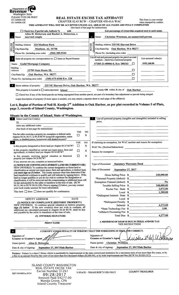
Property
Account |
| Property ID: | 71825 | Abbreviated Legal Description: | 25 - S/2 S/2 W/2 SE SE EX RD |
| Geographic ID: | R23102-026-4350 | Agent Code: | |
| Type: | Real | | |
| Tax Area: | 512 - APPRAISER-Stan/Cam Schl Dist, improved, greater than 1 acre | Land Use Code | 11 |
| Open Space: | N | DFL | N |
| Historic Property: | N | Remodel Property: | N |
| Multi-Family Redevelopment: | N | | |
| Township: | 31 | Section: | 02 |
| Range: | R2 |
Location |
| Address: | | Mapsco: | |
| Neighborhood: | Cycle 5 | Map ID: | 454 |
| Neighborhood CD: | 5 |
Owner |
| Name: | HUBIN-PRICE, BRENDA | Owner ID: | 288903 |
| Mailing Address: | BRADFORD R MCDONALD 462 COOK RD CAMANO ISLAND, WA 98282 | % Ownership: | 100.0000000000% |
| | | Exemptions: | |
Taxes and Assessment Details
Values
| (+) Improvement Homesite Value: | + | $0 | |
| (+) Improvement Non-Homesite Value: | + | $839,023 | |
| (+) Land Homesite Value: | + | $0 | |
| (+) Land Non-Homesite Value: | + | $330,000 | |
| (+) Curr Use (HS): | + | $0 | $0 |
| (+) Curr Use (NHS): | + | $0 | $0 |
| | | -------------------------- | |
| (=) Market Value: | = | $1,169,023 | |
| (–) Productivity Loss: | – | $0 | |
| | | -------------------------- | |
| (=) Subtotal: | = | $1,169,023 | |
| (+) Senior Appraised Value: | + | $0 | |
| (+) Non-Senior Appraised Value: | + | $1,169,023 | |
| | | -------------------------- | |
| (=) Total Appraised Value: | = | $1,169,023 | |
| (–) Senior Exemption Loss: | – | $0 | |
| (–) Exemption Loss: | – | $0 | |
| | | -------------------------- | |
| (=) Taxable Value: | = | $1,169,023 | |
Taxing Jurisdiction
| Owner: | HUBIN-PRICE, BRENDA | | |
| % Ownership: | 100.0000000000% | | |
| Total Value: | $1,169,023 | | |
| Tax Area: | 512 - APPRAISER-Stan/Cam Schl Dist, improved, greater than 1 acre |
| CF | Conservation Futures | 0.0316035091 | $1,169,023 | $1,169,023 | $36.95 | | |
| EMS1 | Fire & Rescue Dist #1 Camano GEN (EMS) | 0.3677864386 | $1,169,023 | $1,169,023 | $429.95 | | |
| FIRE1 | Fire & Rescue Dist #1 Camano GEN | 1.2502910536 | $1,169,023 | $1,169,023 | $1,461.62 | | |
| FIRE1BOND | Fire & Rescue Dist #1 Camano BOND | 0.1570001679 | $1,169,023 | $1,169,023 | $183.54 | | |
| CE | County Current Expense | 0.3708482477 | $1,169,023 | $1,169,023 | $433.53 | | |
| CR | County Roads | 0.4584763726 | $1,169,023 | $1,169,023 | $535.97 | | |
| LCIB | Library Sno-Isle BOND (Camano Island) | 0.0396325772 | $1,169,023 | $1,169,023 | $46.33 | | |
| LIB | Library Sno-Isle GEN | 0.3153421757 | $1,169,023 | $1,169,023 | $368.64 | | |
| SCH205_401 | School 205-401 Enrichment | 1.2698420524 | $1,169,023 | $1,169,023 | $1,484.47 | | |
| SCH205BOND | School 205-401 BOND | 0.9396497583 | $1,169,023 | $1,169,023 | $1,098.47 | | |
| ST | State School | 1.3035497053 | $1,169,023 | $1,169,023 | $1,523.88 | | |
| ST2 | State School Part 2 | 0.8169543533 | $1,169,023 | $1,169,023 | $955.04 | | |
| | Total Tax Rate: | 7.3209764117 | | | | | |
| | | | | Taxes w/Current Exemptions: | $8,558.39 | | |
| | | | | Taxes w/o Exemptions: | $8,558.39 | | |
Improvement / Building
| Improvement #1: | RESIDENTIAL | State Code: | Y | 2386.5 sqft | Value: | $598,845 |
| Bathrooms: | 2.75 | Bedrooms: | 4 | | Ceiling: | DRYWALL PAINTED | Cooling: | HEAT PUMP/CONV/V | | Exterior Wall/Cover: | CEMENT FIBER | Floor Covering: | CERAMIC TILE/CPT 40-60 | | Floor Structure: | WOOD W/SUBFLOOR | Foundation: | CONCRETE | | Interior Finish: | DRYWALL PAINT | Plumbing Fixture Cnt: | 15 | | Roof Slope: | 6" IN 12" | Roof Structure/Cover: | CJ ASPHALT |
|
| | Type | Description | Class CD | Sub Class CD | Year Built | Area |
| | BAS | BASE/MAIN FLOOR | 4 | 0 | 2020 | 1809.0 |
| | UPS | UPPER STORY | 4 | 0 | 2020 | 577.5 |
| | BIG | BUILT IN GARAGE | 4 | 0 | 2020 | 870.2 |
| | OWC | OPEN WOOD PORCH W/STEPS/ROOF/C | 4 | 0 | 2020 | 450.5 |
| | OWC | OPEN WOOD PORCH W/STEPS/ROOF/C | 4 | 0 | 2020 | 287.5 |
| | OWP | OPEN WOOD PORCH W/STEPS | 4 | 0 | 2020 | 96.0 |
| Improvement #2: | RESIDENTIAL | State Code: | Y | 840.0 sqft | Value: | $240,178 |
| Bathrooms: | 1 | Bedrooms: | 2 | | Ceiling: | DRYWALL PAINTED | Cooling: | HEAT PUMP/CONV/V | | Exterior Wall/Cover: | CEMENT FIBER | Floor Covering: | CARPET/VINYL 60-40 | | Floor Structure: | WOOD W/SUBFLOOR | Foundation: | CONCRETE | | Interior Finish: | DRYWALL PAINT | Plumbing Fixture Cnt: | 6 | | Roof Slope: | 3" IN 12" | Roof Structure/Cover: | CJ ASPHALT |
|
| | Type | Description | Class CD | Sub Class CD | Year Built | Area |
| | BAS | BASE/MAIN FLOOR | 2 | 0 | 2023 | 840.0 |
| | BIG | BUILT IN GARAGE | 2 | 0 | 2023 | 840.0 |
| | OWR | OPEN WOOD PORCH W/STEPS/ROOF | 2 | 0 | 2023 | 270.0 |
| | OWR | OPEN WOOD PORCH W/STEPS/ROOF | 2 | 0 | 2023 | 780.7 |
Sketch
Property Image
Land
| 1 | 32 | AC (03.01-09.99) | 4.3500 | 0.00 | 0.00 | 0.00 | 1.00 | $330,000 | $0 |
Roll Value History
| 2026 | N/A | N/A | N/A | N/A | N/A |
| 2025 | $839,023 | $330,000 | $0 | $1,169,023 | $1,169,023 |
| 2024 | $848,181 | $300,000 | $0 | $1,148,181 | $1,148,181 |
| 2023 | $641,008 | $290,000 | $0 | $931,008 | $931,008 |
| 2022 | $586,529 | $290,000 | $0 | $876,529 | $876,529 |
| 2021 | $519,288 | $190,000 | $0 | $709,288 | $709,288 |
| 2020 | $509,878 | $160,000 | $0 | $669,878 | $669,878 |
| 2019 | $0 | $130,000 | $0 | $130,000 | $130,000 |
| 2018 | $0 | $125,000 | $0 | $125,000 | $125,000 |
| 2017 | $0 | $90,000 | $0 | $90,000 | $90,000 |
| 2016 | $0 | $90,000 | $0 | $90,000 | $90,000 |
| 2015 | $0 | $104,400 | $0 | $104,400 | $104,400 |
| 2014 | $0 | $104,400 | $0 | $104,400 | $104,400 |
| 2013 | $0 | $104,400 | $0 | $104,400 | $104,400 |
| 2012 | $0 | $104,400 | $0 | $104,400 | $104,400 |
| 2011 | $0 | $104,400 | $0 | $104,400 | $104,400 |
| 2010 | $0 | $104,400 | $0 | $104,400 | $104,400 |
| 2009 | $0 | $130,500 | $0 | $130,500 | $130,500 |
| 2008 | $0 | $132,675 | $0 | $132,675 | $132,675 |
| 2007 | $0 | $113,100 | $0 | $113,100 | $113,100 |
Deed and Sales History
| 1 | 03/07/2023 | QCD | Quit Claim Deed | HUBIN-PRICE, BRENDA | HUBIN-PRICE, BRENDA | | | $0.00 | 56088 | 4557689 |
| 2 | 02/19/2019 | QCD | Quit Claim Deed | HUBIN-PRICE, BRENDA | HUBIN-PRICE, BRENDA | | | $0.00 | 37691 | 4459726 |
| 3 | 09/28/2017 | WD | Warranty Deed | MURPHY, JOSEPH M | HUBIN-PRICE, BRENDA | | | $100,500.00 | 31506 | 4432050 |
| 4 | 10/04/2017 | QCD | Quit Claim Deed | MURPHY, EVANGELINE | MURPHY, JOSEPH M | | | $45,250.00 | 31505 | 4432049 |
| 5 | 08/01/1991 | WD | Warranty Deed | DUNLAP, FRANK | MURPHY, EVANGELINE & | | | $35,000.00 | 12881 | 91012292 |
| 6 | 01/01/1900 | OTHER | Other - Misc. Documents | Unknown | DUNLAP, FRANK | | | $0.00 | 0 | 0 |
Payout Agreement
| No payout information available.. |