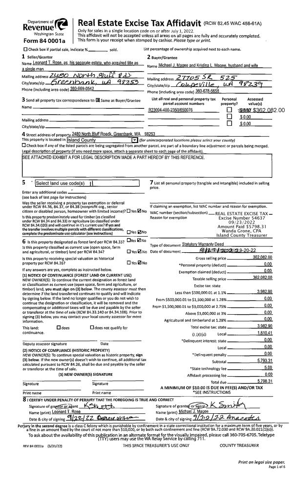
Property
Account |
| Property ID: | 718389 | Abbreviated Legal Description: | CAMALOCH 3 LOT 20 |
| Geographic ID: | S6235-03-00020-0 | Agent Code: | |
| Type: | Real | | |
| Tax Area: | 590 - APPRAISER-Stan/Cam Schl Dist, Special Dist, improved & less than 1 acre | Land Use Code | 11 |
| Open Space: | N | DFL | N |
| Historic Property: | N | Remodel Property: | N |
| Multi-Family Redevelopment: | N | | |
| Township: | | Section: | |
| Range: | |
Location |
| Address: | | Mapsco: | |
| Neighborhood: | Cycle 5 | Map ID: | 995 |
| Neighborhood CD: | 5 |
Owner |
| Name: | JHARED, DEXTER | Owner ID: | 285102 |
| Mailing Address: | 363 GLENGARRY DR CAMANO ISLAND, WA 98277 | % Ownership: | 100.0000000000% |
| | | Exemptions: | |
Taxes and Assessment Details
Values
| (+) Improvement Homesite Value: | + | $0 | |
| (+) Improvement Non-Homesite Value: | + | $306,373 | |
| (+) Land Homesite Value: | + | $0 | |
| (+) Land Non-Homesite Value: | + | $260,000 | |
| (+) Curr Use (HS): | + | $0 | $0 |
| (+) Curr Use (NHS): | + | $0 | $0 |
| | | -------------------------- | |
| (=) Market Value: | = | $566,373 | |
| (–) Productivity Loss: | – | $0 | |
| | | -------------------------- | |
| (=) Subtotal: | = | $566,373 | |
| (+) Senior Appraised Value: | + | $0 | |
| (+) Non-Senior Appraised Value: | + | $566,373 | |
| | | -------------------------- | |
| (=) Total Appraised Value: | = | $566,373 | |
| (–) Senior Exemption Loss: | – | $0 | |
| (–) Exemption Loss: | – | $0 | |
| | | -------------------------- | |
| (=) Taxable Value: | = | $566,373 | |
Taxing Jurisdiction
| Owner: | JHARED, DEXTER | | |
| % Ownership: | 100.0000000000% | | |
| Total Value: | $566,373 | | |
| Tax Area: | 590 - APPRAISER-Stan/Cam Schl Dist, Special Dist, improved & less than 1 acre |
| CF | Conservation Futures | 0.0316035091 | $566,373 | $566,373 | $17.90 | | |
| EMS1 | Fire & Rescue Dist #1 Camano GEN (EMS) | 0.3677864386 | $566,373 | $566,373 | $208.30 | | |
| FIRE1 | Fire & Rescue Dist #1 Camano GEN | 1.2502910536 | $566,373 | $566,373 | $708.13 | | |
| FIRE1BOND | Fire & Rescue Dist #1 Camano BOND | 0.1570001679 | $566,373 | $566,373 | $88.92 | | |
| CE | County Current Expense | 0.3708482477 | $566,373 | $566,373 | $210.04 | | |
| CR | County Roads | 0.4584763726 | $566,373 | $566,373 | $259.67 | | |
| LCIB | Library Sno-Isle BOND (Camano Island) | 0.0396325772 | $566,373 | $566,373 | $22.45 | | |
| LIB | Library Sno-Isle GEN | 0.3153421757 | $566,373 | $566,373 | $178.60 | | |
| SCH205_401 | School 205-401 Enrichment | 1.2698420524 | $566,373 | $566,373 | $719.20 | | |
| SCH205BOND | School 205-401 BOND | 0.9396497583 | $566,373 | $566,373 | $532.19 | | |
| ST | State School | 1.3035497053 | $566,373 | $566,373 | $738.30 | | |
| ST2 | State School Part 2 | 0.8169543533 | $566,373 | $566,373 | $462.70 | | |
| | Total Tax Rate: | 7.3209764117 | | | | | |
| | | | | Taxes w/Current Exemptions: | $4,146.40 | | |
| | | | | Taxes w/o Exemptions: | $4,146.40 | | |
Improvement / Building
| Improvement #1: | RESIDENTIAL | State Code: | Y | 1824.0 sqft | Value: | $306,373 |
| Bathrooms: | 1.5 | Bedrooms: | 2 | | Ceiling: | DRYWALL PAINTED | Exterior Wall/Cover: | WOOD SIDING | | Floor Covering: | CERAMIC TILE/HWD 40/60 | Floor Structure: | WOOD W/SUBFLOOR | | Foundation: | CONCRETE | Heating: | WALL HEAT ELECTRIC | | Interior Finish: | DRYWALL PAINT | Plumbing Fixture Cnt: | 8 | | Roof Slope: | 4" IN 12" | Roof Structure/Cover: | CJ ASPHALT |
|
| | Type | Description | Class CD | Sub Class CD | Year Built | Area |
| | BAS | BASE/MAIN FLOOR | 3 | 0 | 1985 | 1248.0 |
| | DWN | DOWNSTAIRS LIVING AREA | 3 | 0 | 1985 | 576.0 |
| | BIG | BUILT IN GARAGE | 3 | 0 | 1985 | 792.0 |
| | OCP | OPEN CARPORT | 3 | 0 | 1985 | 448.0 |
| | OWP | OPEN WOOD PORCH W/STEPS | 3 | 0 | 1985 | 1098.0 |
| | ENP | ENCLOSED PORCH | 3 | 0 | 1985 | 150.0 |
Sketch
Property Image
Land
| 1 | 14 | SQ (08001-12000) | 0.0000 | 0.00 | 0.00 | 0.00 | 1.00 | $260,000 | $0 |
Roll Value History
| 2026 | N/A | N/A | N/A | N/A | N/A |
| 2025 | $306,373 | $260,000 | $0 | $566,373 | $566,373 |
| 2024 | $310,445 | $250,000 | $0 | $560,445 | $560,445 |
| 2023 | $314,517 | $250,000 | $0 | $564,517 | $564,517 |
| 2022 | $288,484 | $210,000 | $0 | $498,484 | $498,484 |
| 2021 | $248,065 | $165,000 | $0 | $413,065 | $413,065 |
| 2020 | $242,460 | $135,000 | $0 | $377,460 | $377,460 |
| 2019 | $182,909 | $175,000 | $0 | $357,909 | $357,909 |
| 2018 | $183,485 | $145,000 | $0 | $328,485 | $328,485 |
| 2017 | $184,640 | $100,000 | $0 | $284,640 | $284,640 |
| 2016 | $186,946 | $85,000 | $0 | $271,946 | $271,946 |
| 2015 | $174,998 | $65,000 | $0 | $239,998 | $239,998 |
| 2014 | $177,352 | $55,000 | $0 | $232,352 | $232,352 |
| 2013 | $179,705 | $55,000 | $0 | $234,705 | $234,705 |
| 2012 | $182,058 | $60,000 | $0 | $242,058 | $242,058 |
| 2011 | $184,410 | $65,000 | $0 | $249,410 | $65,686 |
| 2010 | $194,002 | $76,000 | $0 | $270,002 | $65,686 |
| 2009 | $192,275 | $100,000 | $0 | $292,275 | $65,686 |
| 2008 | $194,954 | $124,642 | $0 | $319,596 | $65,686 |
| 2007 | $195,966 | $100,952 | $0 | $296,918 | $106,740 |
Deed and Sales History
| 1 | 05/08/2018 | QCD | Quit Claim Deed | DEXTER, JHARED | JHARED, DEXTER | | | $0.00 | 34177 | 4444761 |
| 2 | 07/03/2015 | WD | Warranty Deed | LAROCHE, CHRISTOPHER | DEXTER, JHARED | | | $264,000.00 | 20464 | 4382159 |
| 3 | 08/10/2012 | WD | Warranty Deed | MURPHY, ELIZABETH | LAROCHE, CHRISTOPHER | | | $192,500.00 | 8523 | 4321148 |
| 4 | 07/07/2008 | CD | DNU - Correction Deed | MURPHY, JOHN | MURPHY, ELIZABETH | | | $0.00 | 80813 | 0 |
| 5 | 06/01/1982 | TRUSTEED | Trustee's Deed | KING, GENE & | MURPHY, JOHN | | | $12,500.00 | 21495 | 397681 |
| 6 | 01/01/1900 | OTHER | Other - Misc. Documents | Unknown | KING, GENE & | | | $0.00 | 0 | 0 |
Payout Agreement
| No payout information available.. |