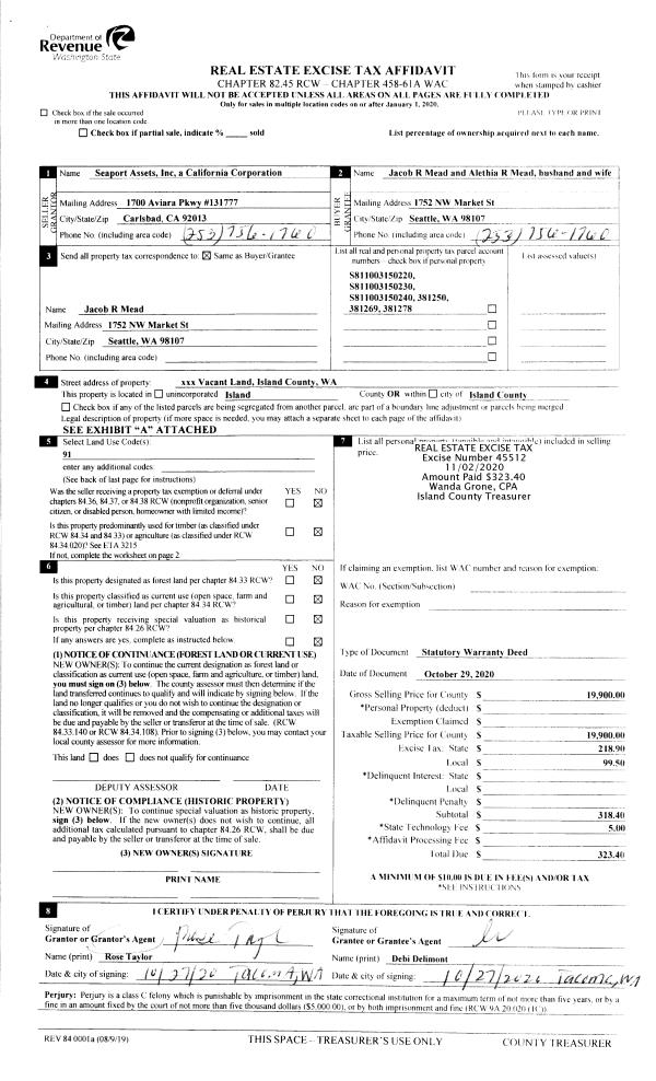
Property
Account |
| Property ID: | 718897 | Abbreviated Legal Description: | SARATOGA BCH 4 LOTS 331 & 332 |
| Geographic ID: | S8090-04-00332-0 | Agent Code: | |
| Type: | Real | | |
| Tax Area: | 710 - APPRAISER-S Whid Schl Dist, outside Langley, improved & 1 acre or less | Land Use Code | 11 |
| Open Space: | N | DFL | N |
| Historic Property: | N | Remodel Property: | N |
| Multi-Family Redevelopment: | N | | |
| Township: | | Section: | |
| Range: | |
Location |
| Address: | 3485 HOLMES VIEW DR LANGLEY, WA 98260 | Mapsco: | |
| Neighborhood: | Cycle 3 | Map ID: | 378 |
| Neighborhood CD: | 3 |
Owner |
| Name: | NETTLEBECK, TIMOTHY A | Owner ID: | 201764 |
| Mailing Address: | 3485 HOLMES VIEW DR LANGLEY, WA 98260 | % Ownership: | 100.0000000000% |
| | | Exemptions: | |
Taxes and Assessment Details
Values
| (+) Improvement Homesite Value: | + | $0 | |
| (+) Improvement Non-Homesite Value: | + | $237,683 | |
| (+) Land Homesite Value: | + | $0 | |
| (+) Land Non-Homesite Value: | + | $310,000 | |
| (+) Curr Use (HS): | + | $0 | $0 |
| (+) Curr Use (NHS): | + | $0 | $0 |
| | | -------------------------- | |
| (=) Market Value: | = | $547,683 | |
| (–) Productivity Loss: | – | $0 | |
| | | -------------------------- | |
| (=) Subtotal: | = | $547,683 | |
| (+) Senior Appraised Value: | + | $0 | |
| (+) Non-Senior Appraised Value: | + | $547,683 | |
| | | -------------------------- | |
| (=) Total Appraised Value: | = | $547,683 | |
| (–) Senior Exemption Loss: | – | $0 | |
| (–) Exemption Loss: | – | $0 | |
| | | -------------------------- | |
| (=) Taxable Value: | = | $547,683 | |
Taxing Jurisdiction
| Owner: | NETTLEBECK, TIMOTHY A | | |
| % Ownership: | 100.0000000000% | | |
| Total Value: | $547,683 | | |
| Tax Area: | 710 - APPRAISER-S Whid Schl Dist, outside Langley, improved & 1 acre or less |
| CF | Conservation Futures | 0.0316035091 | $547,683 | $547,683 | $17.31 | | |
| FIRE3 | Fire & Rescue Dist #3 S Whidbey GEN | 1.2004855531 | $547,683 | $547,683 | $657.49 | | |
| HOBOND | Hospital BOND | 0.1910887512 | $547,683 | $547,683 | $104.66 | | |
| HOGEN | Hospital GEN | 0.3902502903 | $547,683 | $547,683 | $213.73 | | |
| CE | County Current Expense | 0.3708482477 | $547,683 | $547,683 | $203.11 | | |
| CR | County Roads | 0.4584763726 | $547,683 | $547,683 | $251.10 | | |
| ISLANDEMS | Hospital GEN (EMS) | 0.5000000000 | $547,683 | $547,683 | $273.84 | | |
| LIB | Library Sno-Isle GEN | 0.3153421757 | $547,683 | $547,683 | $172.71 | | |
| PORTWHID | Port of S Whidbey GEN | 0.1094540357 | $547,683 | $547,683 | $59.95 | | |
| SCH206BOND | School 206 BOND | 0.3161759235 | $547,683 | $547,683 | $173.16 | | |
| SCH206MO | School 206 Enrichment | 0.4547169547 | $547,683 | $547,683 | $249.04 | | |
| ST | State School | 1.3035497053 | $547,683 | $547,683 | $713.93 | | |
| ST2 | State School Part 2 | 0.8169543533 | $547,683 | $547,683 | $447.43 | | |
| SWHIDPRBD | P & R S Whidbey BOND | 0.0152817568 | $547,683 | $547,683 | $8.37 | | |
| SWHIDPRBD2 | P & R S Whidbey BOND2 | 0.0138911264 | $547,683 | $547,683 | $7.61 | | |
| SWHIDPRMT | P & R S Whidbey GEN | 0.2053334452 | $547,683 | $547,683 | $112.46 | | |
| | Total Tax Rate: | 6.6934522006 | | | | | |
| | | | | Taxes w/Current Exemptions: | $3,665.90 | | |
| | | | | Taxes w/o Exemptions: | $3,665.90 | | |
Improvement / Building
| Improvement #1: | RESIDENTIAL | State Code: | Y | 1208.0 sqft | Value: | $237,683 |
| Bathrooms: | 2 | Bedrooms: | 2 | | Ceiling: | DRYWALL PAINTED | Exterior Wall/Cover: | VINYL | | Floor Covering: | HARDWOOD/CARP 60-40 | Floor Structure: | WOOD W/SUBFLOOR | | Foundation: | CONCRETE | Heating: | BASEBOARD ELECTRIC | | Interior Finish: | DRYWALL PAINT | Plumbing Fixture Cnt: | 9 | | Roof Slope: | 4" IN 12" | Roof Structure/Cover: | CJ ALUMINIUM HEAVY |
|
| | Type | Description | Class CD | Sub Class CD | Year Built | Area |
| | BAS | BASE/MAIN FLOOR | 3 | 0 | 1972 | 1208.0 |
| | OP1 | OPEN PORCH SLAB | 3 | 0 | 1972 | 180.0 |
| | OP3 | OPEN PORCH W/ROOF | 3 | 0 | 1972 | 113.0 |
| | UTY | STORAGE/UTILITY | 3 | 0 | 1972 | 271.0 |
| | OWP | OPEN WOOD PORCH W/STEPS | 3 | 0 | 1972 | 336.0 |
| | DGR | DETACHED GARAGE | 3 | 0 | 1972 | 912.0 |
Sketch
Property Image
Land
| 1 | 15 | SQ (12001-21780) | 0.0000 | 0.00 | 0.00 | 0.00 | 1.00 | $310,000 | $0 |
Roll Value History
| 2026 | N/A | N/A | N/A | N/A | N/A |
| 2025 | $237,683 | $310,000 | $0 | $547,683 | $547,683 |
| 2024 | $245,845 | $310,000 | $0 | $555,845 | $555,845 |
| 2023 | $249,557 | $310,000 | $0 | $559,557 | $559,557 |
| 2022 | $229,337 | $280,000 | $0 | $509,337 | $509,337 |
| 2021 | $202,348 | $180,000 | $0 | $382,348 | $382,348 |
| 2020 | $197,459 | $165,000 | $0 | $362,459 | $362,459 |
| 2019 | $139,811 | $190,000 | $0 | $329,811 | $329,811 |
| 2018 | $140,302 | $120,000 | $0 | $260,302 | $260,302 |
| 2017 | $141,283 | $120,000 | $0 | $261,283 | $261,283 |
| 2016 | $143,246 | $90,000 | $0 | $233,246 | $233,246 |
| 2015 | $145,208 | $75,000 | $0 | $220,208 | $220,208 |
| 2014 | $147,169 | $65,000 | $0 | $212,169 | $212,169 |
| 2013 | $140,684 | $65,000 | $0 | $205,684 | $205,684 |
| 2012 | $142,323 | $68,850 | $0 | $211,173 | $211,173 |
| 2011 | $143,963 | $81,000 | $0 | $224,963 | $224,963 |
| 2010 | $152,667 | $90,000 | $0 | $242,667 | $242,667 |
| 2009 | $158,615 | $120,000 | $0 | $278,615 | $278,615 |
Deed and Sales History
| 1 | 06/26/2020 | QCD | Quit Claim Deed | NETTLEBECK, TIMOTHY A | NETTLEBECK, TIMOTHY A | | | $0.00 | 44954 | 4497981 |
| 2 | 05/18/2010 | ESTSEPPROP | Establish Separate Property | NETTLEBECK, TIMOTHY A | NETTLEBECK, TIMOTHY A | | | $0.00 | 1263 | 427448 |
| 3 | 08/04/2009 | ESTSEPPROP | Establish Separate Property | NETTLEBECK, TIMOTHY A | NETTLEBECK, TIMOTHY A | | | $0.00 | 91835 | 4258065 |
| 4 | 02/01/2006 | BLA | DNU - Boundary Line Adjustment | NETTLEBECK, TIMOTHY A | NETTLEBECK, TIMOTHY A | | | $0.00 | 70812 | 4130174 |
| 5 | 11/23/1998 | WD | Warranty Deed | Unknown | NETTLEBECK, TIMOTHY A | | | $88,125.00 | 84652 | 98025428 |
Payout Agreement
| No payout information available.. |