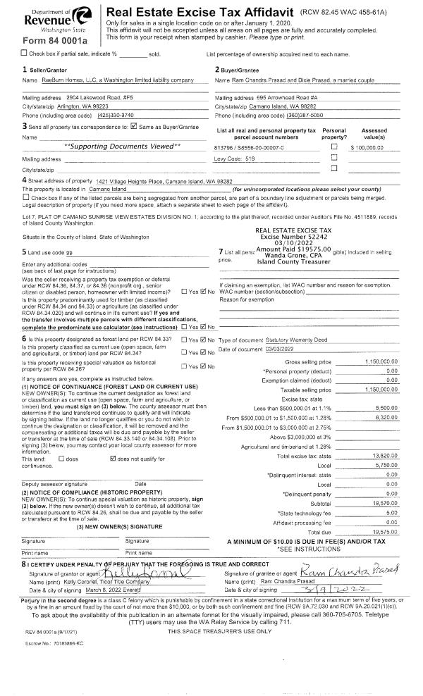
Property
Account |
| Property ID: | 719075 | Abbreviated Legal Description: | CCC 18 LOT 10 BLK 27 |
| Geographic ID: | S6250-18-27010-0 | Agent Code: | |
| Type: | Real | | |
| Tax Area: | 510 - APPRAISER-Stan/Cam Schl Dist, improved & 1 acre or less | Land Use Code | 11 |
| Open Space: | N | DFL | N |
| Historic Property: | N | Remodel Property: | N |
| Multi-Family Redevelopment: | N | | |
| Township: | | Section: | |
| Range: | |
Location |
| Address: | | Mapsco: | |
| Neighborhood: | Cycle 5 | Map ID: | 933 |
| Neighborhood CD: | 5 |
Owner |
| Name: | NOLASCO, J MARTIN | Owner ID: | 302430 |
| Mailing Address: | CLAUDIA ELENA HERNANDEZ 1930 SE CAMANO DR CAMANO ISLAND, WA 98282 | % Ownership: | 100.0000000000% |
| | | Exemptions: | |
Taxes and Assessment Details
Values
| (+) Improvement Homesite Value: | + | $0 | |
| (+) Improvement Non-Homesite Value: | + | $210,634 | |
| (+) Land Homesite Value: | + | $0 | |
| (+) Land Non-Homesite Value: | + | $250,000 | |
| (+) Curr Use (HS): | + | $0 | $0 |
| (+) Curr Use (NHS): | + | $0 | $0 |
| | | -------------------------- | |
| (=) Market Value: | = | $460,634 | |
| (–) Productivity Loss: | – | $0 | |
| | | -------------------------- | |
| (=) Subtotal: | = | $460,634 | |
| (+) Senior Appraised Value: | + | $0 | |
| (+) Non-Senior Appraised Value: | + | $460,634 | |
| | | -------------------------- | |
| (=) Total Appraised Value: | = | $460,634 | |
| (–) Senior Exemption Loss: | – | $0 | |
| (–) Exemption Loss: | – | $0 | |
| | | -------------------------- | |
| (=) Taxable Value: | = | $460,634 | |
Taxing Jurisdiction
| Owner: | NOLASCO, J MARTIN | | |
| % Ownership: | 100.0000000000% | | |
| Total Value: | $460,634 | | |
| Tax Area: | 510 - APPRAISER-Stan/Cam Schl Dist, improved & 1 acre or less |
| CF | Conservation Futures | 0.0316035091 | $460,634 | $460,634 | $14.56 | | |
| EMS1 | Fire & Rescue Dist #1 Camano GEN (EMS) | 0.3677864386 | $460,634 | $460,634 | $169.41 | | |
| FIRE1 | Fire & Rescue Dist #1 Camano GEN | 1.2502910536 | $460,634 | $460,634 | $575.93 | | |
| FIRE1BOND | Fire & Rescue Dist #1 Camano BOND | 0.1570001679 | $460,634 | $460,634 | $72.32 | | |
| CE | County Current Expense | 0.3708482477 | $460,634 | $460,634 | $170.83 | | |
| CR | County Roads | 0.4584763726 | $460,634 | $460,634 | $211.19 | | |
| LCIB | Library Sno-Isle BOND (Camano Island) | 0.0396325772 | $460,634 | $460,634 | $18.26 | | |
| LIB | Library Sno-Isle GEN | 0.3153421757 | $460,634 | $460,634 | $145.26 | | |
| SCH205_401 | School 205-401 Enrichment | 1.2698420524 | $460,634 | $460,634 | $584.93 | | |
| SCH205BOND | School 205-401 BOND | 0.9396497583 | $460,634 | $460,634 | $432.83 | | |
| ST | State School | 1.3035497053 | $460,634 | $460,634 | $600.46 | | |
| ST2 | State School Part 2 | 0.8169543533 | $460,634 | $460,634 | $376.32 | | |
| | Total Tax Rate: | 7.3209764117 | | | | | |
| | | | | Taxes w/Current Exemptions: | $3,372.30 | | |
| | | | | Taxes w/o Exemptions: | $3,372.30 | | |
Improvement / Building
| Improvement #1: | RESIDENTIAL | State Code: | Y | 1736.0 sqft | Value: | $210,634 |
| Bathrooms: | 1.75 | Bedrooms: | 3 | | Ceiling: | DRY WALL SPRAYED | Exterior Wall/Cover: | PLY/HARDBOARD T-111 | | Floor Covering: | VINYL 100% | Floor Structure: | WOOD W/SUBFLOOR | | Foundation: | CONCRETE | Heating: | BASEBOARD ELECTRIC | | Interior Finish: | DRYWALL PAINT | Plumbing Fixture Cnt: | 9 | | Roof Slope: | 3" IN 12" | Roof Structure/Cover: | CJ COMP ROLL |
|
| | Type | Description | Class CD | Sub Class CD | Year Built | Area |
| | BAS | BASE/MAIN FLOOR | 3 | 0 | 1972 | 1232.0 |
| | DWN | DOWNSTAIRS LIVING AREA | 3 | 0 | 1972 | 504.0 |
| | OP2 | OPEN PORCH W/STEPS | 3 | 0 | 1972 | 40.0 |
| | BGR | BASEMENT GARAGE | 3 | 0 | 1972 | 552.0 |
| | OWR | OPEN WOOD PORCH W/STEPS/ROOF | 3 | 0 | 1972 | 91.0 |
Sketch
Property Image
Land
| 1 | 14 | SQ (08001-12000) | 0.0000 | 0.00 | 0.00 | 0.00 | 1.00 | $250,000 | $0 |
Roll Value History
| 2026 | N/A | N/A | N/A | N/A | N/A |
| 2025 | $210,634 | $250,000 | $0 | $460,634 | $460,634 |
| 2024 | $218,453 | $250,000 | $0 | $468,453 | $468,453 |
| 2023 | $221,653 | $210,000 | $0 | $431,653 | $431,653 |
| 2022 | $203,610 | $200,000 | $0 | $403,610 | $403,610 |
| 2021 | $169,489 | $140,000 | $0 | $309,489 | $309,489 |
| 2020 | $165,725 | $120,000 | $0 | $285,725 | $285,725 |
| 2019 | $122,839 | $170,000 | $0 | $292,839 | $292,839 |
| 2018 | $123,283 | $140,000 | $0 | $263,283 | $263,283 |
| 2017 | $115,280 | $90,000 | $0 | $205,280 | $205,280 |
| 2016 | $116,926 | $65,000 | $0 | $181,926 | $181,926 |
| 2015 | $115,394 | $50,000 | $0 | $165,394 | $165,394 |
| 2014 | $117,056 | $50,000 | $0 | $167,056 | $167,056 |
| 2013 | $118,717 | $50,000 | $0 | $168,717 | $168,717 |
| 2012 | $120,380 | $56,000 | $0 | $176,380 | $176,380 |
| 2011 | $122,040 | $70,000 | $0 | $192,040 | $192,040 |
| 2010 | $132,457 | $70,000 | $0 | $202,457 | $202,457 |
| 2009 | $118,756 | $90,000 | $0 | $208,756 | $208,756 |
| 2008 | $120,462 | $118,000 | $0 | $238,462 | $238,462 |
| 2007 | $122,184 | $118,000 | $0 | $240,184 | $240,184 |
Deed and Sales History
| 1 | 12/20/2021 | WD | Warranty Deed | OLANDER, J FRED | NOLASCO, J MARTIN | | | $379,000.00 | 51422 | 4536400 |
| 2 | 01/28/2010 | TRUSTEED | Trustee's Deed | CITIBANK NA AS TRUSTEE FOR, | OLANDER, J FRED | | | $142,000.00 | 224 | 4267907 |
| 3 | 07/23/2009 | TRUSTEED | Trustee's Deed | DOGGETT, DEANNE M | CITIBANK NA AS TRUSTEE FOR, | | | $437,572.00 | 92284 | 4260839 |
| 4 | 07/14/2004 | ESTSEPPROP | Establish Separate Property | DOGGETT, DEANNE M | DOGGETT, DEANNE M | | | $0.00 | 43328 | 4107609 |
| 5 | 01/25/2002 | QCD | Quit Claim Deed | DOGGETT, DEANNE M | DOGGETT, DEANNE M | | | $0.00 | 30497 | 4047028 |
| 6 | 10/22/2001 | QCD | Quit Claim Deed | DOGGETT, DEANNE M | DOGGETT, DEANNE M | | | $0.00 | 14118 | 4000930 |
| 7 | 10/22/2001 | ESTSEPPROP | Establish Separate Property | DOGGETT, DEANNE M | DOGGETT, DEANNE M | | | $0.00 | 14119 | 4000931 |
| 8 | 02/29/2000 | WD | Warranty Deed | Unknown | DOGGETT, DEANNE M | | | $142,000.00 | 768 | 20003938 |
Payout Agreement
| No payout information available.. |