Property
Account |
| Property ID: | 719137 | Abbreviated Legal Description: | CCC 21 LOT 8 BLK 39 |
| Geographic ID: | S6250-21-39008-0 | Agent Code: | |
| Type: | Real | | |
| Tax Area: | 510 - APPRAISER-Stan/Cam Schl Dist, improved & 1 acre or less | Land Use Code | 11 |
| Open Space: | N | DFL | N |
| Historic Property: | N | Remodel Property: | N |
| Multi-Family Redevelopment: | N | | |
| Township: | | Section: | |
| Range: | |
Location |
| Address: | | Mapsco: | |
| Neighborhood: | Cycle 5 | Map ID: | 930 |
| Neighborhood CD: | 5 |
Owner |
| Name: | EVANOFF, YVONNE | Owner ID: | 290996 |
| Mailing Address: | 1523 CAROL ST CAMANO ISLAND, WA 98282 | % Ownership: | 100.0000000000% |
| | | Exemptions: | |
Taxes and Assessment Details
Values
| (+) Improvement Homesite Value: | + | $0 | |
| (+) Improvement Non-Homesite Value: | + | $276,740 | |
| (+) Land Homesite Value: | + | $0 | |
| (+) Land Non-Homesite Value: | + | $250,000 | |
| (+) Curr Use (HS): | + | $0 | $0 |
| (+) Curr Use (NHS): | + | $0 | $0 |
| | | -------------------------- | |
| (=) Market Value: | = | $526,740 | |
| (–) Productivity Loss: | – | $0 | |
| | | -------------------------- | |
| (=) Subtotal: | = | $526,740 | |
| (+) Senior Appraised Value: | + | $0 | |
| (+) Non-Senior Appraised Value: | + | $526,740 | |
| | | -------------------------- | |
| (=) Total Appraised Value: | = | $526,740 | |
| (–) Senior Exemption Loss: | – | $0 | |
| (–) Exemption Loss: | – | $0 | |
| | | -------------------------- | |
| (=) Taxable Value: | = | $526,740 | |
Taxing Jurisdiction
| Owner: | EVANOFF, YVONNE | | |
| % Ownership: | 100.0000000000% | | |
| Total Value: | $526,740 | | |
| Tax Area: | 510 - APPRAISER-Stan/Cam Schl Dist, improved & 1 acre or less |
| CF | Conservation Futures | 0.0316035091 | $526,740 | $526,740 | $16.65 | | |
| EMS1 | Fire & Rescue Dist #1 Camano GEN (EMS) | 0.3677864386 | $526,740 | $526,740 | $193.73 | | |
| FIRE1 | Fire & Rescue Dist #1 Camano GEN | 1.2502910536 | $526,740 | $526,740 | $658.58 | | |
| FIRE1BOND | Fire & Rescue Dist #1 Camano BOND | 0.1570001679 | $526,740 | $526,740 | $82.70 | | |
| CE | County Current Expense | 0.3708482477 | $526,740 | $526,740 | $195.34 | | |
| CR | County Roads | 0.4584763726 | $526,740 | $526,740 | $241.50 | | |
| LCIB | Library Sno-Isle BOND (Camano Island) | 0.0396325772 | $526,740 | $526,740 | $20.88 | | |
| LIB | Library Sno-Isle GEN | 0.3153421757 | $526,740 | $526,740 | $166.10 | | |
| SCH205_401 | School 205-401 Enrichment | 1.2698420524 | $526,740 | $526,740 | $668.88 | | |
| SCH205BOND | School 205-401 BOND | 0.9396497583 | $526,740 | $526,740 | $494.95 | | |
| ST | State School | 1.3035497053 | $526,740 | $526,740 | $686.63 | | |
| ST2 | State School Part 2 | 0.8169543533 | $526,740 | $526,740 | $430.32 | | |
| | Total Tax Rate: | 7.3209764117 | | | | | |
| | | | | Taxes w/Current Exemptions: | $3,856.26 | | |
| | | | | Taxes w/o Exemptions: | $3,856.26 | | |
Improvement / Building
| Improvement #1: | RESIDENTIAL | State Code: | Y | 1414.0 sqft | Value: | $276,740 |
| Bathrooms: | 2 | Bedrooms: | 3 | | Ceiling: | DRY WALL SPRAYED | Cooling: | HEAT PUMP/CONV/V | | Exterior Wall/Cover: | WOOD SIDING | Floor Covering: | CARPET/VINYL 80-20 | | Floor Structure: | WOOD W/SUBFLOOR | Foundation: | CONCRETE | | Interior Finish: | DRYWALL PAINT | Plumbing Fixture Cnt: | 9 | | Roof Slope: | 4" IN 12" | Roof Structure/Cover: | CJ ASPHALT |
|
| | Type | Description | Class CD | Sub Class CD | Year Built | Area |
| | BAS | BASE/MAIN FLOOR | 3 | 0 | 1979 | 1414.0 |
| | AGR | ATTACHED GARAGE | 3 | 0 | 1979 | 400.0 |
| | OWP | OPEN WOOD PORCH W/STEPS | 3 | 0 | 1979 | 264.0 |
| | OWP | OPEN WOOD PORCH W/STEPS | 3 | 0 | 1979 | 126.0 |
Sketch
Property Image
Land
| 1 | 14 | SQ (08001-12000) | 0.0000 | 0.00 | 0.00 | 0.00 | 1.00 | $250,000 | $0 |
Roll Value History
| 2026 | N/A | N/A | N/A | N/A | N/A |
| 2025 | $276,740 | $250,000 | $0 | $526,740 | $526,740 |
| 2024 | $279,912 | $250,000 | $0 | $529,912 | $529,912 |
| 2023 | $283,084 | $210,000 | $0 | $493,084 | $493,084 |
| 2022 | $258,481 | $200,000 | $0 | $458,481 | $458,481 |
| 2021 | $222,889 | $140,000 | $0 | $362,889 | $362,889 |
| 2020 | $216,323 | $120,000 | $0 | $336,323 | $336,323 |
| 2019 | $114,844 | $170,000 | $0 | $284,844 | $284,844 |
| 2018 | $115,257 | $140,000 | $0 | $255,257 | $255,257 |
| 2017 | $116,087 | $90,000 | $0 | $206,087 | $206,087 |
| 2016 | $117,746 | $65,000 | $0 | $182,746 | $182,746 |
| 2015 | $115,281 | $50,000 | $0 | $165,281 | $165,281 |
| 2014 | $116,893 | $50,000 | $0 | $166,893 | $166,893 |
| 2013 | $118,504 | $50,000 | $0 | $168,504 | $168,504 |
| 2012 | $120,116 | $56,000 | $0 | $176,116 | $176,116 |
| 2011 | $121,728 | $70,000 | $0 | $191,728 | $191,728 |
| 2010 | $130,403 | $70,000 | $0 | $200,403 | $200,403 |
| 2009 | $132,281 | $90,000 | $0 | $222,281 | $222,281 |
| 2008 | $133,968 | $118,000 | $0 | $251,968 | $251,968 |
| 2007 | $135,679 | $100,000 | $0 | $235,679 | $235,679 |
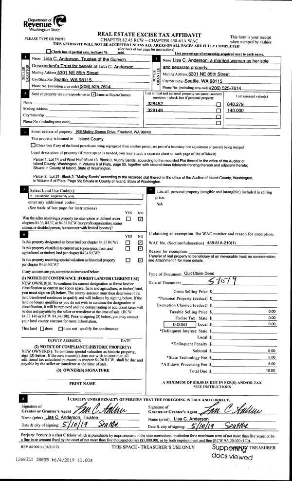
Deed and Sales History
| 1 | 07/10/2019 | WD | Warranty Deed | MCKENNA, SEAN P | EVANOFF, YVONNE | | | $375,000.00 | 39509 | 4467740 |
| 2 | 03/22/2014 | DECREE | Divorce Decree/Legal Separation | MCKENNA, SEAN P | MCKENNA, SEAN P | | | $0.00 | 15027 | 4358325 |
| 3 | 02/15/2006 | WD | Warranty Deed | MONTGOMERY, DOROTHY | MCKENNA, SEAN P | | | $238,000.00 | 60788 | 4163058 |
| 4 | 12/15/2003 | WD | Warranty Deed | KIRKPATRICK, EDITH E | MONTGOMERY, DOROTHY | | | $168,950.00 | 35626 | 4086191 |
| 5 | 11/01/1980 | TRUSTEED | Trustee's Deed | HUGHES, MICHAEL J | KIRKPATRICK, EDITH E | | | $66,950.00 | 3772 | 376168 |
| 6 | 05/01/1979 | TRUSTEED | Trustee's Deed | WALTERS, GARY W | HUGHES, MICHAEL J | | | $525,000.00 | 92815 | 353730 |
| 7 | 09/01/1978 | OTHER | Other - Misc. Documents | WALTERS, GARY W | WALTERS, GARY W | | | $12,000.00 | 847670 | 3403690 |
| 8 | 09/01/1978 | OTHER | Other - Misc. Documents | Unknown | WALTERS, GARY W | | | $12,000.00 | 847670 | 3403690 |
Payout Agreement
| No payout information available.. |