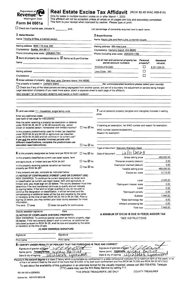
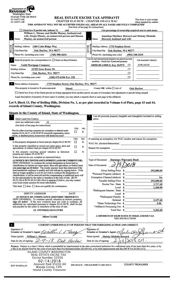
Property
Account |
| Property ID: | 7192 | Abbreviated Legal Description: | 7 H CROCKETT DC - BG 189 .42'S OF 1/4CR SEC 10 & 11 N89*W1160' TPB N89*W857.6' S19*W215.9' S23*W240.9' S89*E1185' N23*W339.5' N11*W115.2' TPB EX: BG 189 .42'S OF 1/4CR SEC 10 & 11 N89*W2017.6' TPB S19*W215.9 S23*W240.9' S89*E300' N TP S89*E FR TPB N89*W |
| Geographic ID: | R13110-222-3800 | Agent Code: | |
| Type: | Real | | |
| Tax Area: | 312 - APPRAISER-Cpvl Schl Dist, outside Cpvl, improved, greater than 1 acre | Land Use Code | 11 |
| Open Space: | N | DFL | N |
| Historic Property: | N | Remodel Property: | N |
| Multi-Family Redevelopment: | N | | |
| Township: | 31 | Section: | 10 |
| Range: | R1 |
Location |
| Address: | 909 PATMORE RD COUPEVILLE, WA 98239 | Mapsco: | |
| Neighborhood: | Cycle 2 | Map ID: | 47 |
| Neighborhood CD: | 2 |
Owner |
| Name: | SWADENER, WILLIAM E | Owner ID: | 310379 |
| Mailing Address: | ANN M SWADENER 909 PATMORE RD COUPEVILLE, WA 98239 | % Ownership: | 100.0000000000% |
| | | Exemptions: | |
Taxes and Assessment Details
Values
| (+) Improvement Homesite Value: | + | $0 | |
| (+) Improvement Non-Homesite Value: | + | $723,065 | |
| (+) Land Homesite Value: | + | $0 | |
| (+) Land Non-Homesite Value: | + | $385,995 | |
| (+) Curr Use (HS): | + | $0 | $0 |
| (+) Curr Use (NHS): | + | $0 | $0 |
| | | -------------------------- | |
| (=) Market Value: | = | $1,109,060 | |
| (–) Productivity Loss: | – | $0 | |
| | | -------------------------- | |
| (=) Subtotal: | = | $1,109,060 | |
| (+) Senior Appraised Value: | + | $0 | |
| (+) Non-Senior Appraised Value: | + | $1,109,060 | |
| | | -------------------------- | |
| (=) Total Appraised Value: | = | $1,109,060 | |
| (–) Senior Exemption Loss: | – | $0 | |
| (–) Exemption Loss: | – | $0 | |
| | | -------------------------- | |
| (=) Taxable Value: | = | $1,109,060 | |
Taxing Jurisdiction
| Owner: | SWADENER, WILLIAM E | | |
| % Ownership: | 100.0000000000% | | |
| Total Value: | $1,109,060 | | |
| Tax Area: | 312 - APPRAISER-Cpvl Schl Dist, outside Cpvl, improved, greater than 1 acre |
| CF | Conservation Futures | 0.0316035091 | $1,109,060 | $1,109,060 | $35.05 | | |
| CEM2 | Cemetery #2 | 0.0095056933 | $1,109,060 | $1,109,060 | $10.54 | | |
| FIRE5 | Fire & Rescue Dist #5 C Whidbey GEN | 1.2008080668 | $1,109,060 | $1,109,060 | $1,331.77 | | |
| FIRE5BOND | Fire & Rescue Dist #5 C Whidbey BOND | 0.1400090713 | $1,109,060 | $1,109,060 | $155.28 | | |
| HOBOND | Hospital BOND | 0.1910887512 | $1,109,060 | $1,109,060 | $211.93 | | |
| HOGEN | Hospital GEN | 0.3902502903 | $1,109,060 | $1,109,060 | $432.81 | | |
| CE | County Current Expense | 0.3708482477 | $1,109,060 | $1,109,060 | $411.29 | | |
| CR | County Roads | 0.4584763726 | $1,109,060 | $1,109,060 | $508.48 | | |
| ISLANDEMS | Hospital GEN (EMS) | 0.5000000000 | $1,109,060 | $1,109,060 | $554.53 | | |
| LIB | Library Sno-Isle GEN | 0.3153421757 | $1,109,060 | $1,109,060 | $349.73 | | |
| LIBCAP | Library Sno-Isle BOND (Cap Fac Imp Area) | 0.0543427938 | $1,109,060 | $1,109,060 | $60.27 | | |
| POCOUP | Port of Coupeville GEN | 0.1093371703 | $1,109,060 | $1,109,060 | $121.26 | | |
| POCOUPIDD | Port of Coupeville IDD | 0.3409740022 | $1,109,060 | $1,109,060 | $378.16 | | |
| COUPSDTECH | School 204 CP (TECH) | 0.7545480007 | $1,109,060 | $1,109,060 | $836.84 | | |
| SCH204MO | School 204 Enrichment | 0.6716186034 | $1,109,060 | $1,109,060 | $744.87 | | |
| ST | State School | 1.3035497053 | $1,109,060 | $1,109,060 | $1,445.71 | | |
| ST2 | State School Part 2 | 0.8169543533 | $1,109,060 | $1,109,060 | $906.05 | | |
| | Total Tax Rate: | 7.6592568070 | | | | | |
| | | | | Taxes w/Current Exemptions: | $8,494.57 | | |
| | | | | Taxes w/o Exemptions: | $8,494.57 | | |
Improvement / Building
| Improvement #1: | RESIDENTIAL | State Code: | Y | 2114.0 sqft | Value: | $723,065 |
| Bathrooms: | 3 | Bedrooms: | 3 | | Ceiling: | DRYWALL PAINTED | Cooling: | HEAT PUMP/CONV/V | | Exterior Wall/Cover: | PLY/HARDBOARD T-111 | Floor Covering: | HARDWOOD/CARP 60-40 | | Floor Structure: | WOOD W/SUBFLOOR | Foundation: | CONCRETE | | Interior Finish: | DRYWALL PAINT | Plumbing Fixture Cnt: | 13 | | Roof Slope: | 8" IN 12" | Roof Structure/Cover: | BEAM ALUMINUM HEAVY |
|
| | Type | Description | Class CD | Sub Class CD | Year Built | Area |
| | BAS | BASE/MAIN FLOOR | 4 | 0 | 1997 | 1754.0 |
| | OP1 | OPEN PORCH SLAB | 4 | 0 | 1997 | 777.2 |
| | DGR | DETACHED GARAGE | 4 | 0 | 1997 | 720.0 |
| | OWP | OPEN WOOD PORCH W/STEPS | 4 | 0 | 1997 | 144.0 |
| | OWP | OPEN WOOD PORCH W/STEPS | 4 | 0 | 1997 | 45.6 |
| | OWC | OPEN WOOD PORCH W/STEPS/ROOF/C | 4 | 0 | 1997 | 56.0 |
| | OWC | OPEN WOOD PORCH W/STEPS/ROOF/C | 4 | 0 | 1997 | 59.4 |
| | UPS | UPPER STORY | 4 | 0 | 1997 | 360.0 |
| | oPOL | POLE BARN | 4 | 0 | 1997 | 1440.0 |
| | ENP | ENCLOSED PORCH | 4 | 0 | 1997 | 800.0 |
Sketch
Property Image
Land
| 1 | HS | HOMESITE | 1.0000 | 43560.00 | 0.00 | 0.00 | 1.00 | $340,000 | $0 |
| 2 | 91 | UNDEVELOPED LAND-METES AND BOUNDS | 6.5400 | 284882.40 | 0.00 | 0.00 | 1.00 | $45,995 | $0 |
Roll Value History
| 2026 | N/A | N/A | N/A | N/A | N/A |
| 2025 | $723,065 | $385,995 | $0 | $1,109,060 | $1,109,060 |
| 2024 | $665,476 | $360,000 | $0 | $1,025,476 | $1,025,476 |
| 2023 | $638,344 | $350,000 | $0 | $988,344 | $988,344 |
| 2022 | $531,283 | $310,000 | $0 | $841,283 | $841,283 |
| 2021 | $374,035 | $260,000 | $0 | $634,035 | $634,035 |
| 2020 | $364,497 | $240,000 | $0 | $604,497 | $604,497 |
| 2019 | $271,474 | $300,000 | $0 | $571,474 | $571,474 |
| 2018 | $204,158 | $210,000 | $0 | $414,158 | $414,158 |
| 2017 | $199,215 | $180,000 | $0 | $379,215 | $379,215 |
| 2016 | $201,738 | $180,000 | $0 | $381,738 | $381,738 |
| 2015 | $204,260 | $188,500 | $0 | $392,760 | $392,760 |
| 2014 | $206,780 | $188,500 | $0 | $395,280 | $395,280 |
| 2013 | $209,303 | $169,650 | $0 | $378,953 | $378,953 |
| 2012 | $211,825 | $169,650 | $0 | $381,475 | $381,475 |
| 2011 | $214,348 | $188,500 | $0 | $402,848 | $402,848 |
| 2010 | $221,646 | $192,780 | $0 | $414,426 | $414,426 |
| 2009 | $231,133 | $214,200 | $0 | $445,333 | $445,333 |
| 2008 | $233,829 | $225,069 | $0 | $458,898 | $458,898 |
| 2007 | $244,341 | $191,983 | $0 | $436,324 | $436,324 |
Deed and Sales History
| 1 | 10/13/2023 | WD | Warranty Deed | PURCHASING FUND 2020-1 LLC | SWADENER, WILLIAM E | | | $1,177,600.00 | 58256 | 4565773 |
|   | |
| 2 | 09/08/2023 | WD | Warranty Deed | CAYABYAB, JHANSEN | PURCHASING FUND 2020-1 LLC | | | $1,150,000.00 | 57941 | 4564536 |
|   | |
| 3 | 08/29/2022 | WD | Warranty Deed | SMITH, REID ALAN | CAYABYAB, JHANSEN | | | $1,150,000.00 | 54472 | 4550926 |
|   | |
| 4 | 03/26/2018 | WD | Warranty Deed | BINGISSER, ALBERT D | SMITH, REID ALAN | | | $585,000.00 | 33451 | 4441553 |
|   | |
| 5 | 05/01/1992 | WD | Warranty Deed | BINGISSER, ALBERT D | BINGISSER, ALBERT D | | | $0.00 | 22276 | 92011001 |
| 6 | 05/01/1992 | WD | Warranty Deed | BINGISSER, ALBERT D | BINGISSER, ALBERT D | | | $0.00 | 24655 | 92022905 |
| 7 | 09/01/1967 | EXECUTORD | Executor Deed | NUSS, ANN E | BINGISSER, ALBERT D | | | $0.00 | 28260 | 0 |
| 8 | 01/01/1900 | OTHER | Other - Misc. Documents | Unknown | NUSS, ANN E | | | $0.00 | 0 | 0 |
Payout Agreement
| No payout information available.. |