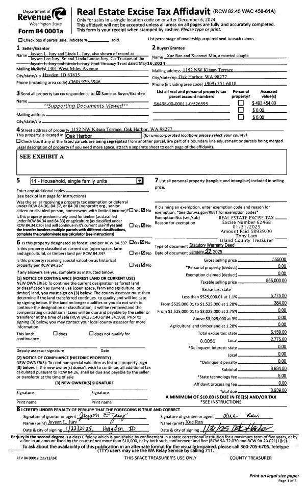
Property
Account |
| Property ID: | 719299 | Abbreviated Legal Description: | CAM LAG VISTA 2 |
| Geographic ID: | S6265-02-00036-0 | Agent Code: | |
| Type: | Real | | |
| Tax Area: | 512 - APPRAISER-Stan/Cam Schl Dist, improved, greater than 1 acre | Land Use Code | 11 |
| Open Space: | N | DFL | N |
| Historic Property: | N | Remodel Property: | N |
| Multi-Family Redevelopment: | N | | |
| Township: | | Section: | |
| Range: | |
Location |
| Address: | 389 EVERGREEN PARK RD CAMANO ISLAND, WA 98282 | Mapsco: | |
| Neighborhood: | North Camano | Map ID: | 577 |
| Neighborhood CD: | 06-C |
Owner |
| Name: | WARNER, JOY M | Owner ID: | 29691 |
| Mailing Address: | 389 EVERGREEN PARK RD CAMANO ISLAND, WA 98282-8648 | % Ownership: | 100.0000000000% |
| | | Exemptions: | SNR/DSBL |
Taxes and Assessment Details
Values
| (+) Improvement Homesite Value: | + | $0 | |
| (+) Improvement Non-Homesite Value: | + | $198,924 | |
| (+) Land Homesite Value: | + | $250,000 | |
| (+) Land Non-Homesite Value: | + | $0 | |
| (+) Curr Use (HS): | + | $0 | $0 |
| (+) Curr Use (NHS): | + | $0 | $0 |
| | | -------------------------- | |
| (=) Market Value: | = | $448,924 | |
| (–) Productivity Loss: | – | $0 | |
| | | -------------------------- | |
| (=) Subtotal: | = | $448,924 | |
| (+) Senior Appraised Value: | + | $250,000 | |
| (+) Non-Senior Appraised Value: | + | $198,924 | |
| | | -------------------------- | |
| (=) Total Appraised Value: | = | $448,924 | |
| (–) Senior Exemption Loss: | – | $150,000 | |
| (–) Exemption Loss: | – | $0 | |
| | | -------------------------- | |
| (=) Taxable Value: | = | $298,924 | |
Taxing Jurisdiction
| Owner: | WARNER, JOY M | | |
| % Ownership: | 100.0000000000% | | |
| Total Value: | $448,924 | | |
| Tax Area: | 512 - APPRAISER-Stan/Cam Schl Dist, improved, greater than 1 acre |
| CF | Conservation Futures | 0.0316035091 | $448,924 | $298,924 | $9.45 | | |
| EMS1 | Fire & Rescue Dist #1 Camano GEN (EMS) | 0.3677864386 | $448,924 | $298,924 | $109.94 | | |
| FIRE1 | Fire & Rescue Dist #1 Camano GEN | 1.2502910536 | $448,924 | $298,924 | $373.74 | | |
| FIRE1BOND | Fire & Rescue Dist #1 Camano BOND | 0.0000000000 | $448,924 | $198,924 | $31.23 | | |
| CE | County Current Expense | 0.3708482477 | $448,924 | $298,924 | $110.86 | | |
| CR | County Roads | 0.4584763726 | $448,924 | $298,924 | $137.05 | | |
| LCIB | Library Sno-Isle BOND (Camano Island) | 0.0000000000 | $448,924 | $198,924 | $7.88 | | |
| LIB | Library Sno-Isle GEN | 0.3153421757 | $448,924 | $298,924 | $94.26 | | |
| SCH205_401 | School 205-401 Enrichment | 0.0000000000 | $448,924 | $198,924 | $252.60 | | |
| SCH205BOND | School 205-401 BOND | 0.0000000000 | $448,924 | $198,924 | $186.92 | | |
| ST | State School | 1.3035497053 | $448,924 | $298,924 | $389.66 | | |
| ST2 | State School Part 2 | 0.0000000000 | $448,924 | $198,924 | $162.51 | | |
| | Total Tax Rate: | 4.0978975026 | | | | | |
| | | | | Taxes w/Current Exemptions: | $1,866.10 | | |
| | | | | Taxes w/o Exemptions: | $3,286.55 | | |
Improvement / Building
| Improvement #1: | MANUFACTURED HOME | State Code: | Y | 1620.0 sqft | Value: | $198,924 |
| Bathrooms: | 1 | Bedrooms: | 2 | | Ceiling: | PLASTER PAINTED | Cooling: | EVAP NO DUCT | | Exterior Wall/Cover: | VINYL | Floor Covering: | CARPET 100% | | Floor Structure: | SLAB ON GRADE | Foundation: | SLAB | | Heating: | FHA ELECTRIC | Interior Finish: | PLASTER | | Plumbing Fixture Cnt: | 1 | Roof Slope: | FLAT | | Roof Structure/Cover: | CJ ALUMINIUM HEAVY |   |   |
|
| | Type | Description | Class CD | Sub Class CD | Year Built | Area |
| | BAS | BASE/MAIN FLOOR | 4 | 0 | 2024 | 1620.0 |
| | OWP | OPEN WOOD PORCH W/STEPS | 4 | 0 | 2024 | 48.0 |
| | OWR | OPEN WOOD PORCH W/STEPS/ROOF | 4 | 0 | 2024 | 112.0 |
| | UTY | STORAGE/UTILITY | 4 | 0 | 2024 | 816.0 |
Sketch
Property Image
Land
| 1 | 18 | AC (02.01-03.00) | 2.3000 | 100188.00 | 0.00 | 0.00 | 1.00 | $250,000 | $0 |
Roll Value History
| 2026 | N/A | N/A | N/A | N/A | N/A |
| 2025 | $198,924 | $250,000 | $0 | $448,924 | $298,924 |
| 2024 | $198,924 | $250,000 | $0 | $448,924 | $119,309 |
| 2023 | $269,999 | $250,000 | $0 | $519,999 | $64,689 |
| 2022 | $241,240 | $230,000 | $0 | $471,240 | $64,689 |
| 2021 | $212,601 | $220,000 | $0 | $432,601 | $64,689 |
| 2020 | $207,728 | $180,000 | $0 | $387,728 | $64,689 |
| 2019 | $153,735 | $200,000 | $0 | $353,735 | $64,689 |
| 2018 | $154,233 | $180,000 | $0 | $334,233 | $64,689 |
| 2017 | $152,188 | $120,000 | $0 | $272,188 | $64,689 |
| 2016 | $124,305 | $140,000 | $0 | $264,305 | $64,689 |
| 2015 | $126,009 | $74,400 | $0 | $200,409 | $64,689 |
| 2014 | $127,712 | $74,400 | $0 | $202,112 | $64,689 |
| 2013 | $129,414 | $74,400 | $0 | $203,814 | $64,689 |
| 2012 | $131,117 | $74,400 | $0 | $205,517 | $64,689 |
| 2011 | $132,820 | $93,000 | $0 | $225,820 | $64,689 |
| 2010 | $138,615 | $93,000 | $0 | $231,615 | $64,689 |
| 2009 | $144,297 | $100,274 | $0 | $244,571 | $64,688 |
| 2008 | $145,387 | $101,032 | $0 | $246,419 | $64,688 |
| 2007 | $149,024 | $99,349 | $0 | $248,373 | $64,688 |
Deed and Sales History
| 1 | 10/01/1996 | ESTSEPPROP | Establish Separate Property | WARNER, JOY M | WARNER, JOY M | | | $0.00 | 63786 | 96018344 |
| 2 | 10/01/1996 | ESTSEPPROP | Establish Separate Property | WARNER, JOY M | WARNER, JOY M | | | $0.00 | 63786 | 96018344 |
| 3 | 05/01/1996 | QCD | Quit Claim Deed | Unknown | WARNER, JOY M | | | $0.00 | 61856 | 96009327 |
| 4 | 05/01/1996 | QCD | Quit Claim Deed | WARNER, JOY M | WARNER, JOY M | | | $0.00 | 61856 | 96009327 |
| 5 | 06/01/1987 | WD | Warranty Deed | JACOBSEN, SHIRLEY J | WARNER, JOY M | | | $60,000.00 | 71870 | 87008675 |
| 6 | 06/01/1986 | OTHER | Other - Misc. Documents | JACOBSEN, ROBERT M | JACOBSEN, SHIRLEY J | | | $0.00 | 61689 | 0 |
| 7 | 01/01/1900 | OTHER | Other - Misc. Documents | WARNER, JOY M | JACOBSEN, ROBERT M | | | $0.00 | 0 | 0 |
Payout Agreement
| No payout information available.. |