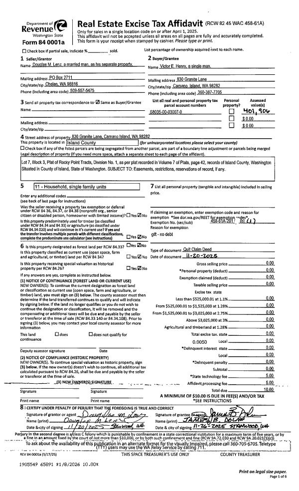
Property
Account |
| Property ID: | 719752 | Abbreviated Legal Description: | CAMPO HAC 1 LOT 40 |
| Geographic ID: | S6305-00-00040-0 | Agent Code: | |
| Type: | Real | | |
| Tax Area: | 110 - APPRAISER-OH Schl Dist, outside OH, improved & 1 acre or less | Land Use Code | 11 |
| Open Space: | N | DFL | N |
| Historic Property: | N | Remodel Property: | N |
| Multi-Family Redevelopment: | N | | |
| Township: | | Section: | |
| Range: | |
Location |
| Address: | 49 BONITO WAY OAK HARBOR, WA 98277 | Mapsco: | |
| Neighborhood: | Cycle 6 | Map ID: | 190 |
| Neighborhood CD: | 6 |
Owner |
| Name: | FLETCHER, DWAINE DAVID | Owner ID: | 313289 |
| Mailing Address: | 49 BONITO WAY OAK HARBOR, WA 98277 | % Ownership: | 100.0000000000% |
| | | Exemptions: | SNR/DSBL |
Taxes and Assessment Details
Values
| (+) Improvement Homesite Value: | + | $32,763 | |
| (+) Improvement Non-Homesite Value: | + | $0 | |
| (+) Land Homesite Value: | + | $220,000 | |
| (+) Land Non-Homesite Value: | + | $0 | |
| (+) Curr Use (HS): | + | $0 | $0 |
| (+) Curr Use (NHS): | + | $0 | $0 |
| | | -------------------------- | |
| (=) Market Value: | = | $252,763 | |
| (–) Productivity Loss: | – | $0 | |
| | | -------------------------- | |
| (=) Subtotal: | = | $252,763 | |
| (+) Senior Appraised Value: | + | $233,574 | |
| (+) Non-Senior Appraised Value: | + | $0 | |
| | | -------------------------- | |
| (=) Total Appraised Value: | = | $233,574 | |
| (–) Senior Exemption Loss: | – | $140,144 | |
| (–) Exemption Loss: | – | $0 | |
| | | -------------------------- | |
| (=) Taxable Value: | = | $93,430 | |
Taxing Jurisdiction
| Owner: | FLETCHER, DWAINE DAVID | | |
| % Ownership: | 100.0000000000% | | |
| Total Value: | $252,763 | | |
| Tax Area: | 110 - APPRAISER-OH Schl Dist, outside OH, improved & 1 acre or less |
| CF | Conservation Futures | 0.0316035091 | $252,763 | $93,430 | $2.95 | | |
| CEM1 | Cemetery #1 | 0.0040320932 | $252,763 | $93,430 | $0.38 | | |
| FIRE2 | Fire & Rescue Dist #2 N Whidbey GEN | 0.5475949600 | $252,763 | $93,430 | $51.16 | | |
| HOBOND | Hospital BOND | 0.0000000000 | $252,763 | $0 | $0.00 | | |
| HOGEN | Hospital GEN | 0.3902502903 | $252,763 | $93,430 | $36.46 | | |
| CE | County Current Expense | 0.3708482477 | $252,763 | $93,430 | $34.65 | | |
| CR | County Roads | 0.4584763726 | $252,763 | $93,430 | $42.84 | | |
| ISLANDEMS | Hospital GEN (EMS) | 0.5000000000 | $252,763 | $93,430 | $46.72 | | |
| LIB | Library Sno-Isle GEN | 0.3153421757 | $252,763 | $93,430 | $29.46 | | |
| NWHIDPRMT | P & R N Whidbey GEN | 0.2004466701 | $252,763 | $93,430 | $18.73 | | |
| SCH201MO | School 201 Enrichment | 0.0000000000 | $252,763 | $0 | $0.00 | | |
| ST | State School | 1.3035497053 | $252,763 | $93,430 | $121.79 | | |
| ST2 | State School Part 2 | 0.0000000000 | $252,763 | $0 | $0.00 | | |
| | Total Tax Rate: | 4.1221440240 | | | | | |
| | | | | Taxes w/Current Exemptions: | $385.14 | | |
| | | | | Taxes w/o Exemptions: | $1,765.85 | | |
Improvement / Building
| Improvement #1: | MANUFACTURED HOME | State Code: | Y | 944.0 sqft | Value: | $32,763 |
| Bathrooms: | 0 | Bedrooms: | 0 | | Ceiling: | PLASTER PAINTED | Cooling: | EVAP NO DUCT | | Exterior Wall/Cover: | VINYL | Floor Covering: | CARPET 100% | | Floor Structure: | SLAB ON GRADE | Foundation: | SLAB | | Heating: | FHA ELECTRIC | Interior Finish: | PLASTER | | Plumbing Fixture Cnt: | 1 | Roof Slope: | FLAT | | Roof Structure/Cover: | CJ ALUMINIUM HEAVY |   |   |
|
| | Type | Description | Class CD | Sub Class CD | Year Built | Area |
| | BAS | BASE/MAIN FLOOR | 3 | 0 | 1981 | 944.0 |
| | ENP | ENCLOSED PORCH | 3 | 0 | 1981 | 24.0 |
| | OWP | OPEN WOOD PORCH W/STEPS | 3 | 0 | 1981 | 140.0 |
| | oPOL | POLE BARN | 3 | 0 | 1981 | 520.0 |
Sketch
Property Image
Land
| 1 | 14 | SQ (08001-12000) | 0.0000 | 0.00 | 0.00 | 0.00 | 1.00 | $220,000 | $0 |
Roll Value History
| 2026 | N/A | N/A | N/A | N/A | N/A |
| 2025 | $32,763 | $220,000 | $0 | $252,763 | $93,430 |
| 2024 | $33,574 | $200,000 | $0 | $233,574 | $93,430 |
| 2023 | $34,790 | $190,000 | $0 | $224,790 | $224,790 |
| 2022 | $31,734 | $170,000 | $0 | $201,734 | $11,004 |
| 2021 | $30,396 | $150,000 | $0 | $180,396 | $11,004 |
| 2020 | $30,538 | $135,000 | $0 | $165,538 | $11,004 |
| 2019 | $27,542 | $170,000 | $0 | $197,542 | $11,004 |
| 2018 | $28,030 | $130,000 | $0 | $158,030 | $11,004 |
| 2017 | $28,762 | $110,000 | $0 | $138,762 | $11,004 |
| 2016 | $26,565 | $85,000 | $0 | $111,565 | $18,388 |
| 2015 | $27,053 | $65,000 | $0 | $92,053 | $18,388 |
| 2014 | $27,542 | $50,000 | $0 | $77,542 | $17,542 |
| 2013 | $28,030 | $72,250 | $0 | $100,280 | $18,388 |
| 2012 | $28,762 | $72,250 | $0 | $101,012 | $18,388 |
| 2011 | $29,250 | $85,000 | $0 | $114,250 | $18,388 |
| 2010 | $42,268 | $85,000 | $0 | $127,268 | $18,388 |
| 2009 | $43,529 | $95,000 | $0 | $138,529 | $18,388 |
| 2008 | $44,911 | $104,500 | $0 | $149,411 | $18,388 |
| 2007 | $45,883 | $104,500 | $0 | $150,383 | $18,388 |
Deed and Sales History
| 1 | 07/25/2024 | QCD | Quit Claim Deed | FLETCHER, DWAINE DAVID | FLETCHER, DWAINE DAVID | | | $0.00 | 60750 | 4575080 |
| 2 | 04/22/2023 | WD | Warranty Deed | PALMER, GLENN | FLETCHER, DWAINE DAVID | | | $262,000.00 | 57054 | 4561268 |
| 3 | 02/21/2007 | QCD | Quit Claim Deed | PALMER, GLENN | PALMER, GLENN | | | $10,000.00 | 70378 | 4193320 |
| 4 | 06/24/2002 | WD | Warranty Deed | WEILER, WARREN/GENEVIEVE | PALMER, GLENN | | | $71,000.00 | 22462 | 4024022 |
| 5 | 04/01/1981 | OTHER | Other - Misc. Documents | Unknown | WEILER, WARREN/GENEVIEVE | | | $15,550.00 | 0 | 0 |
Payout Agreement
| No payout information available.. |