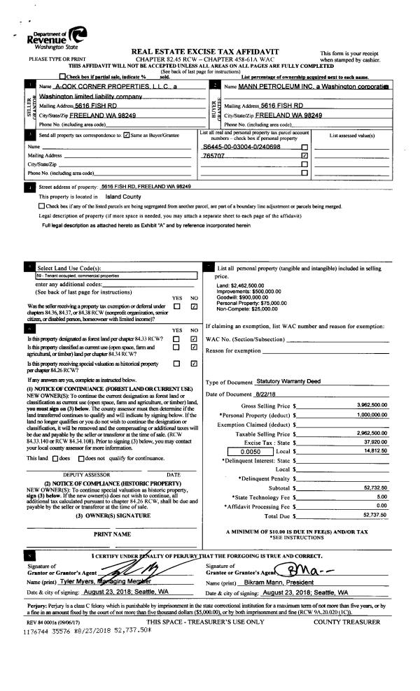
Property
Account |
| Property ID: | 719814 | Abbreviated Legal Description: | CAREFREE AC #1 SP70-008 LOT 16-C:BG SE CR LOT 16 |
| Geographic ID: | S6315-00-00016-2 | Agent Code: | |
| Type: | Real | | |
| Tax Area: | 510 - APPRAISER-Stan/Cam Schl Dist, improved & 1 acre or less | Land Use Code | 11 |
| Open Space: | N | DFL | N |
| Historic Property: | N | Remodel Property: | N |
| Multi-Family Redevelopment: | N | | |
| Township: | | Section: | |
| Range: | |
Location |
| Address: | 290 CAREFREE LN CAMANO IS, WA 98282 | Mapsco: | |
| Neighborhood: | Cycle 5 | Map ID: | 457 |
| Neighborhood CD: | 5 |
Owner |
| Name: | CHAPMAN, JILL GARTMAN | Owner ID: | 288420 |
| Mailing Address: | 4304 CHEVY CHASE DR LA CANADA FLINTRIDGE, CA 91011 | % Ownership: | 100.0000000000% |
| | | Exemptions: | |
Taxes and Assessment Details
Values
| (+) Improvement Homesite Value: | + | $0 | |
| (+) Improvement Non-Homesite Value: | + | $183,487 | |
| (+) Land Homesite Value: | + | $0 | |
| (+) Land Non-Homesite Value: | + | $220,000 | |
| (+) Curr Use (HS): | + | $0 | $0 |
| (+) Curr Use (NHS): | + | $0 | $0 |
| | | -------------------------- | |
| (=) Market Value: | = | $403,487 | |
| (–) Productivity Loss: | – | $0 | |
| | | -------------------------- | |
| (=) Subtotal: | = | $403,487 | |
| (+) Senior Appraised Value: | + | $0 | |
| (+) Non-Senior Appraised Value: | + | $403,487 | |
| | | -------------------------- | |
| (=) Total Appraised Value: | = | $403,487 | |
| (–) Senior Exemption Loss: | – | $0 | |
| (–) Exemption Loss: | – | $0 | |
| | | -------------------------- | |
| (=) Taxable Value: | = | $403,487 | |
Taxing Jurisdiction
| Owner: | CHAPMAN, JILL GARTMAN | | |
| % Ownership: | 100.0000000000% | | |
| Total Value: | $403,487 | | |
| Tax Area: | 510 - APPRAISER-Stan/Cam Schl Dist, improved & 1 acre or less |
| CF | Conservation Futures | 0.0316035091 | $403,487 | $403,487 | $12.75 | | |
| EMS1 | Fire & Rescue Dist #1 Camano GEN (EMS) | 0.3677864386 | $403,487 | $403,487 | $148.40 | | |
| FIRE1 | Fire & Rescue Dist #1 Camano GEN | 1.2502910536 | $403,487 | $403,487 | $504.48 | | |
| FIRE1BOND | Fire & Rescue Dist #1 Camano BOND | 0.1570001679 | $403,487 | $403,487 | $63.35 | | |
| CE | County Current Expense | 0.3708482477 | $403,487 | $403,487 | $149.63 | | |
| CR | County Roads | 0.4584763726 | $403,487 | $403,487 | $184.99 | | |
| LCIB | Library Sno-Isle BOND (Camano Island) | 0.0396325772 | $403,487 | $403,487 | $15.99 | | |
| LIB | Library Sno-Isle GEN | 0.3153421757 | $403,487 | $403,487 | $127.24 | | |
| SCH205_401 | School 205-401 Enrichment | 1.2698420524 | $403,487 | $403,487 | $512.36 | | |
| SCH205BOND | School 205-401 BOND | 0.9396497583 | $403,487 | $403,487 | $379.14 | | |
| ST | State School | 1.3035497053 | $403,487 | $403,487 | $525.97 | | |
| ST2 | State School Part 2 | 0.8169543533 | $403,487 | $403,487 | $329.63 | | |
| | Total Tax Rate: | 7.3209764117 | | | | | |
| | | | | Taxes w/Current Exemptions: | $2,953.93 | | |
| | | | | Taxes w/o Exemptions: | $2,953.93 | | |
Improvement / Building
| Improvement #1: | RESIDENTIAL | State Code: | Y | 1124.0 sqft | Value: | $183,487 |
| Bathrooms: | 1 | Bedrooms: | 0 | | Ceiling: | DRYWALL PAINTED | Exterior Wall/Cover: | PLY/HARDBOARD T-111 | | Floor Covering: | HARDWOOD/CARP 20-80 | Floor Structure: | WOOD W/SUBFLOOR | | Foundation: | CONCRETE | Heating: | BASEBOARD ELECTRIC | | Interior Finish: | DRYWALL PAINT | Plumbing Fixture Cnt: | 5 | | Roof Slope: | 4" IN 12" | Roof Structure/Cover: | CJ ASPHALT |
|
| | Type | Description | Class CD | Sub Class CD | Year Built | Area |
| | BAS | BASE/MAIN FLOOR | 3 | 0 | 1971 | 1124.0 |
| | oOBD | Out Buildings | 3 | 0 | 1971 | 0.0 |
| | OWP | OPEN WOOD PORCH W/STEPS | 3 | 0 | 1971 | 370.0 |
Sketch
Property Image
Land
| 1 | 16 | AC (00.51-01.00) | 0.5800 | 25264.80 | 0.00 | 0.00 | 1.00 | $220,000 | $0 |
Roll Value History
| 2026 | N/A | N/A | N/A | N/A | N/A |
| 2025 | $183,487 | $220,000 | $0 | $403,487 | $403,487 |
| 2024 | $189,715 | $220,000 | $0 | $409,715 | $409,715 |
| 2023 | $192,017 | $210,000 | $0 | $402,017 | $402,017 |
| 2022 | $176,435 | $210,000 | $0 | $386,435 | $386,435 |
| 2021 | $101,845 | $140,000 | $0 | $241,845 | $241,845 |
| 2020 | $99,790 | $120,000 | $0 | $219,790 | $219,790 |
| 2019 | $75,309 | $110,000 | $0 | $185,309 | $185,309 |
| 2018 | $75,562 | $100,000 | $0 | $175,562 | $175,562 |
| 2017 | $76,070 | $100,000 | $0 | $176,070 | $176,070 |
| 2016 | $77,085 | $100,000 | $0 | $177,085 | $177,085 |
| 2015 | $83,538 | $55,000 | $0 | $138,538 | $138,538 |
| 2014 | $84,746 | $55,000 | $0 | $139,746 | $139,746 |
| 2013 | $85,957 | $55,000 | $0 | $140,957 | $140,957 |
| 2012 | $87,165 | $66,400 | $0 | $153,565 | $153,565 |
| 2011 | $88,375 | $83,000 | $0 | $171,375 | $171,375 |
| 2010 | $86,428 | $83,000 | $0 | $169,428 | $169,428 |
| 2009 | $98,989 | $135,000 | $0 | $233,989 | $233,989 |
| 2008 | $99,337 | $137,179 | $0 | $236,516 | $236,513 |
| 2007 | $97,986 | $97,986 | $0 | $195,971 | $27,768 |
Deed and Sales History
| 1 | 01/02/2019 | WD | Warranty Deed | PREMIER PROPERTY DEVELOPMENTS, LLC | CHAPMAN, JILL GARTMAN | | | $322,000.00 | 37202 | 4457489 |
| 2 | 07/17/2018 | WD | Warranty Deed | MORGAN, AARON S | PREMIER PROPERTY DEVELOPMENTS, LLC | | | $190,000.00 | 35080 | 4448353 |
| 3 | 02/25/2009 | WD | Warranty Deed | ALFORD, WILHELMINA | MORGAN, AARON S | | | $150,000.00 | 90460 | 4245740 |
| 4 | 08/01/1986 | WD | Warranty Deed | SMITH, THOMAS J | ALFORD, WILHELMINA | | | $13,500.00 | 62059 | 86009684 |
| 5 | 03/01/1982 | CD | DNU - Correction Deed | HASE, NEAL J | SMITH, THOMAS J | | | $1.00 | 20766 | 394860 |
| 6 | 08/01/1981 | TRUSTEED | Trustee's Deed | SMITH, THOMAS J | HASE, NEAL J | | | $43,000.00 | 12487 | 386665 |
| 7 | 07/01/1981 | CD | DNU - Correction Deed | MARTINEZ, LEANDRO | SMITH, THOMAS J | | | $1.00 | 12260 | 385762 |
| 8 | 04/01/1981 | CD | DNU - Correction Deed | SPENCER, LELAND M | MARTINEZ, LEANDRO | | | $1.00 | 11226 | 382163 |
| 9 | 06/01/1980 | TRUSTEED | Trustee's Deed | SMITH, THOMAS J | SPENCER, LELAND M | | | $41,000.00 | 2425 | 371316 |
| 10 | 01/01/1900 | OTHER | Other - Misc. Documents | Unknown | SMITH, THOMAS J | | | $0.00 | 0 | 0 |
Payout Agreement
| No payout information available.. |