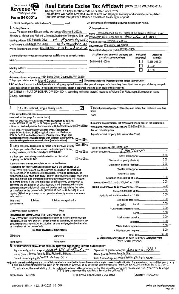
Property
Account |
| Property ID: | 719841 | Abbreviated Legal Description: | CAREFREE AC #1 SP 70-008 LOT 16-A:BG NE CR LOT 16 |
| Geographic ID: | S6315-00-00016-3 | Agent Code: | |
| Type: | Real | | |
| Tax Area: | 510 - APPRAISER-Stan/Cam Schl Dist, improved & 1 acre or less | Land Use Code | 11 |
| Open Space: | N | DFL | N |
| Historic Property: | N | Remodel Property: | N |
| Multi-Family Redevelopment: | N | | |
| Township: | | Section: | |
| Range: | |
Location |
| Address: | 285 CAREFREE LN CAMANO ISLAND, WA 98282 | Mapsco: | |
| Neighborhood: | Cycle 5 | Map ID: | 457 |
| Neighborhood CD: | 5 |
Owner |
| Name: | MACDONALD, BRUCE T | Owner ID: | 283228 |
| Mailing Address: | 285 CAREFREE LN CAMANO ISLAND, WA 98282 | % Ownership: | 100.0000000000% |
| | | Exemptions: | SNR/DSBL |
Taxes and Assessment Details
Values
| (+) Improvement Homesite Value: | + | $181,990 | |
| (+) Improvement Non-Homesite Value: | + | $0 | |
| (+) Land Homesite Value: | + | $220,000 | |
| (+) Land Non-Homesite Value: | + | $0 | |
| (+) Curr Use (HS): | + | $0 | $0 |
| (+) Curr Use (NHS): | + | $0 | $0 |
| | | -------------------------- | |
| (=) Market Value: | = | $401,990 | |
| (–) Productivity Loss: | – | $0 | |
| | | -------------------------- | |
| (=) Subtotal: | = | $401,990 | |
| (+) Senior Appraised Value: | + | $211,062 | |
| (+) Non-Senior Appraised Value: | + | $0 | |
| | | -------------------------- | |
| (=) Total Appraised Value: | = | $211,062 | |
| (–) Senior Exemption Loss: | – | $126,637 | |
| (–) Exemption Loss: | – | $0 | |
| | | -------------------------- | |
| (=) Taxable Value: | = | $84,425 | |
Taxing Jurisdiction
| Owner: | MACDONALD, BRUCE T | | |
| % Ownership: | 100.0000000000% | | |
| Total Value: | $401,990 | | |
| Tax Area: | 510 - APPRAISER-Stan/Cam Schl Dist, improved & 1 acre or less |
| CF | Conservation Futures | 0.0316035091 | $401,990 | $84,425 | $2.67 | | |
| EMS1 | Fire & Rescue Dist #1 Camano GEN (EMS) | 0.3677864386 | $401,990 | $84,425 | $31.05 | | |
| FIRE1 | Fire & Rescue Dist #1 Camano GEN | 1.2502910536 | $401,990 | $84,425 | $105.56 | | |
| FIRE1BOND | Fire & Rescue Dist #1 Camano BOND | 0.0000000000 | $401,990 | $0 | $0.00 | | |
| CE | County Current Expense | 0.3708482477 | $401,990 | $84,425 | $31.31 | | |
| CR | County Roads | 0.4584763726 | $401,990 | $84,425 | $38.71 | | |
| LCIB | Library Sno-Isle BOND (Camano Island) | 0.0000000000 | $401,990 | $0 | $0.00 | | |
| LIB | Library Sno-Isle GEN | 0.3153421757 | $401,990 | $84,425 | $26.62 | | |
| SCH205_401 | School 205-401 Enrichment | 0.0000000000 | $401,990 | $0 | $0.00 | | |
| SCH205BOND | School 205-401 BOND | 0.0000000000 | $401,990 | $0 | $0.00 | | |
| ST | State School | 1.3035497053 | $401,990 | $84,425 | $110.05 | | |
| ST2 | State School Part 2 | 0.0000000000 | $401,990 | $0 | $0.00 | | |
| | Total Tax Rate: | 4.0978975026 | | | | | |
| | | | | Taxes w/Current Exemptions: | $345.97 | | |
| | | | | Taxes w/o Exemptions: | $2,942.94 | | |
Improvement / Building
| Improvement #1: | RESIDENTIAL | State Code: | Y | 1062.8 sqft | Value: | $181,990 |
| Bathrooms: | 1 | Bedrooms: | 2 | | Ceiling: | DRYWALL PAINTED | Exterior Wall/Cover: | PLY/HARDBOARD T-111 | | Floor Covering: | CARPET/VINYL 80-20 | Floor Structure: | WOOD W/SUBFLOOR | | Foundation: | CONCRETE | Heating: | BASEBOARD ELECTRIC | | Interior Finish: | DRYWALL PAINT | Plumbing Fixture Cnt: | 6 | | Roof Slope: | 4" IN 12" | Roof Structure/Cover: | CJ ASPHALT |
|
| | Type | Description | Class CD | Sub Class CD | Year Built | Area |
| | BAS | BASE/MAIN FLOOR | 3 | 0 | 1979 | 1062.8 |
| | DGR | DETACHED GARAGE | 3 | 0 | 1979 | 384.0 |
| | OWP | OPEN WOOD PORCH W/STEPS | 3 | 0 | 1979 | 245.2 |
Sketch
Property Image
Land
| 1 | 16 | AC (00.51-01.00) | 0.5800 | 25264.80 | 0.00 | 0.00 | 1.00 | $220,000 | $0 |
Roll Value History
| 2026 | N/A | N/A | N/A | N/A | N/A |
| 2025 | $181,990 | $220,000 | $0 | $401,990 | $84,425 |
| 2024 | $188,428 | $220,000 | $0 | $408,428 | $84,425 |
| 2023 | $190,899 | $210,000 | $0 | $400,899 | $84,425 |
| 2022 | $175,101 | $210,000 | $0 | $385,101 | $141,062 |
| 2021 | $143,709 | $140,000 | $0 | $283,709 | $141,062 |
| 2020 | $140,255 | $120,000 | $0 | $260,255 | $141,062 |
| 2019 | $101,062 | $110,000 | $0 | $211,062 | $141,062 |
| 2018 | $101,394 | $100,000 | $0 | $201,394 | $201,394 |
| 2017 | $102,011 | $100,000 | $0 | $202,011 | $202,011 |
| 2016 | $103,336 | $100,000 | $0 | $203,336 | $203,336 |
| 2015 | $87,127 | $55,000 | $0 | $142,127 | $35,548 |
| 2014 | $88,263 | $55,000 | $0 | $143,263 | $35,548 |
| 2013 | $89,400 | $55,000 | $0 | $144,400 | $35,548 |
| 2012 | $90,536 | $66,400 | $0 | $156,936 | $35,548 |
| 2011 | $91,673 | $83,000 | $0 | $174,673 | $35,548 |
| 2010 | $96,387 | $83,000 | $0 | $179,387 | $35,548 |
| 2009 | $99,244 | $135,000 | $0 | $234,244 | $35,548 |
| 2008 | $101,740 | $134,864 | $0 | $236,604 | $35,548 |
| 2007 | $98,728 | $98,728 | $0 | $197,456 | $33,143 |
Deed and Sales History
| 1 | 11/29/2017 | WD | Warranty Deed | HODDEVIK, ELEANOR G | MACDONALD, BRUCE T | | | $207,500.00 | 32229 | 4435567 |
| 2 | 09/07/2000 | WD | Warranty Deed | SMITH, THOMAS J | HODDEVIK, ELEANOR G | | | $110,000.00 | 3536 | 20016281 |
| 3 | 09/01/1978 | OTHER | Other - Misc. Documents | Unknown | SMITH, THOMAS J | | | $4,950.00 | 84698 | 340247 |
Payout Agreement
| No payout information available.. |