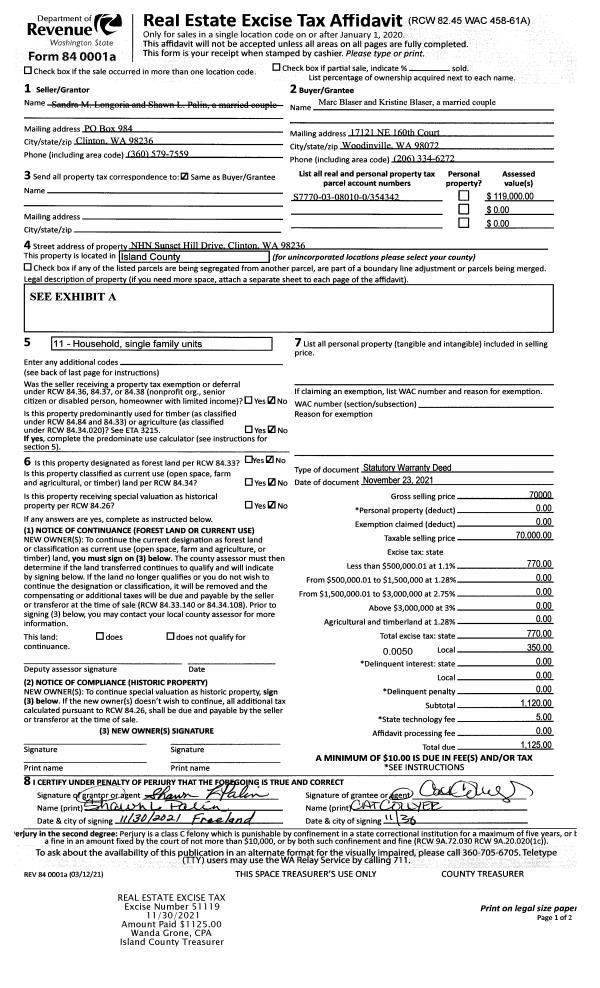
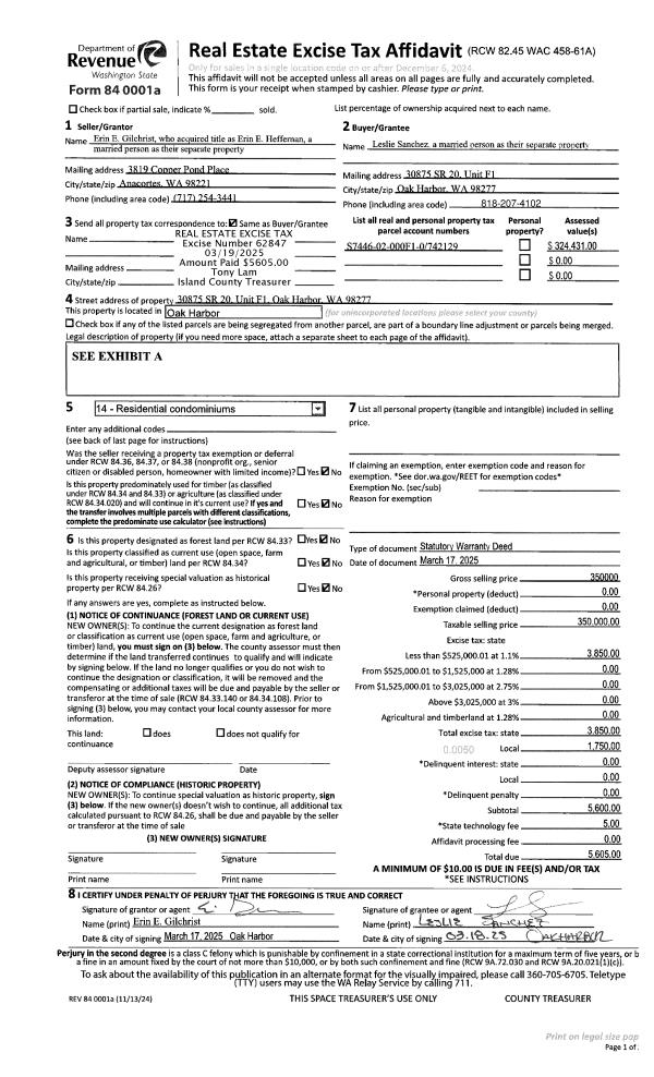
Property
Account |
| Property ID: | 719887 | Abbreviated Legal Description: | SIERRA LOT 4 BLK 6 TGW ELY 1/2 LOT 5 BLK 6 |
| Geographic ID: | S8160-00-06004-0 | Agent Code: | |
| Type: | Real | | |
| Tax Area: | 330 - APPRAISER-Cpvl Schl Dist, Special Dist, improved & less than 1 acre | Land Use Code | 11 |
| Open Space: | N | DFL | N |
| Historic Property: | N | Remodel Property: | N |
| Multi-Family Redevelopment: | N | | |
| Township: | | Section: | |
| Range: | |
Location |
| Address: | 2525 LA PLAZO ST COUPEVILLE, WA 98239 | Mapsco: | |
| Neighborhood: | Cycle 2 | Map ID: | 10 |
| Neighborhood CD: | 2 |
Owner |
| Name: | RILEY, JESSICA | Owner ID: | 299522 |
| Mailing Address: | 620 HAVEN WAY LEMOORE, CA 93245 | % Ownership: | 100.0000000000% |
| | | Exemptions: | |
Taxes and Assessment Details
Values
| (+) Improvement Homesite Value: | + | $0 | |
| (+) Improvement Non-Homesite Value: | + | $189,932 | |
| (+) Land Homesite Value: | + | $0 | |
| (+) Land Non-Homesite Value: | + | $240,000 | |
| (+) Curr Use (HS): | + | $0 | $0 |
| (+) Curr Use (NHS): | + | $0 | $0 |
| | | -------------------------- | |
| (=) Market Value: | = | $429,932 | |
| (–) Productivity Loss: | – | $0 | |
| | | -------------------------- | |
| (=) Subtotal: | = | $429,932 | |
| (+) Senior Appraised Value: | + | $0 | |
| (+) Non-Senior Appraised Value: | + | $429,932 | |
| | | -------------------------- | |
| (=) Total Appraised Value: | = | $429,932 | |
| (–) Senior Exemption Loss: | – | $0 | |
| (–) Exemption Loss: | – | $0 | |
| | | -------------------------- | |
| (=) Taxable Value: | = | $429,932 | |
Taxing Jurisdiction
| Owner: | RILEY, JESSICA | | |
| % Ownership: | 100.0000000000% | | |
| Total Value: | $429,932 | | |
| Tax Area: | 330 - APPRAISER-Cpvl Schl Dist, Special Dist, improved & less than 1 acre |
| CF | Conservation Futures | 0.0316035091 | $429,932 | $429,932 | $13.59 | | |
| CEM2 | Cemetery #2 | 0.0095056933 | $429,932 | $429,932 | $4.09 | | |
| FIRE2 | Fire & Rescue Dist #2 N Whidbey GEN | 0.5475949600 | $429,932 | $429,932 | $235.43 | | |
| HOBOND | Hospital BOND | 0.1910887512 | $429,932 | $429,932 | $82.16 | | |
| HOGEN | Hospital GEN | 0.3902502903 | $429,932 | $429,932 | $167.78 | | |
| CE | County Current Expense | 0.3708482477 | $429,932 | $429,932 | $159.44 | | |
| CR | County Roads | 0.4584763726 | $429,932 | $429,932 | $197.11 | | |
| ISLANDEMS | Hospital GEN (EMS) | 0.5000000000 | $429,932 | $429,932 | $214.97 | | |
| LIB | Library Sno-Isle GEN | 0.3153421757 | $429,932 | $429,932 | $135.58 | | |
| LIBCAP | Library Sno-Isle BOND (Cap Fac Imp Area) | 0.0543427938 | $429,932 | $429,932 | $23.36 | | |
| POCOUP | Port of Coupeville GEN | 0.1093371703 | $429,932 | $429,932 | $47.01 | | |
| POCOUPIDD | Port of Coupeville IDD | 0.3409740022 | $429,932 | $429,932 | $146.60 | | |
| COUPSDTECH | School 204 CP (TECH) | 0.7545480007 | $429,932 | $429,932 | $324.40 | | |
| SCH204MO | School 204 Enrichment | 0.6716186034 | $429,932 | $429,932 | $288.75 | | |
| ST | State School | 1.3035497053 | $429,932 | $429,932 | $560.44 | | |
| ST2 | State School Part 2 | 0.8169543533 | $429,932 | $429,932 | $351.23 | | |
| | Total Tax Rate: | 6.8660346289 | | | | | |
| | | | | Taxes w/Current Exemptions: | $2,951.94 | | |
| | | | | Taxes w/o Exemptions: | $2,951.94 | | |
Improvement / Building
| Improvement #1: | RESIDENTIAL | State Code: | Y | 960.0 sqft | Value: | $189,932 |
| Bathrooms: | 2 | Bedrooms: | 2 | | Ceiling: | BEAM PAINTED | Exterior Wall/Cover: | PLY/HARDBOARD T-111 | | Floor Covering: | CARPET/VINYL 80-20 | Floor Structure: | WOOD W/SUBFLOOR | | Foundation: | CONCRETE | Heating: | (NONE) | | Interior Finish: | DRYWALL PAINT | Plumbing Fixture Cnt: | 9 | | Roof Slope: | 4" IN 12" | Roof Structure/Cover: | BEAM ASPHALT |
|
| | Type | Description | Class CD | Sub Class CD | Year Built | Area |
| | BAS | BASE/MAIN FLOOR | 3 | 0 | 1982 | 960.0 |
| | UTY | STORAGE/UTILITY | 3 | 0 | 1982 | 120.0 |
| | OCP | OPEN CARPORT | 3 | 0 | 1982 | 312.0 |
| | OWR | OPEN WOOD PORCH W/STEPS/ROOF | 3 | 0 | 1982 | 272.0 |
Sketch
Property Image
Land
| 1 | 14 | SQ (08001-12000) | 0.2585 | 11260.26 | 0.00 | 0.00 | 1.00 | $240,000 | $0 |
Roll Value History
| 2026 | N/A | N/A | N/A | N/A | N/A |
| 2025 | $189,932 | $240,000 | $0 | $429,932 | $429,932 |
| 2024 | $179,460 | $220,000 | $0 | $399,460 | $399,460 |
| 2023 | $181,877 | $200,000 | $0 | $381,877 | $381,877 |
| 2022 | $166,877 | $180,000 | $0 | $346,877 | $346,877 |
| 2021 | $147,016 | $150,000 | $0 | $297,016 | $297,016 |
| 2020 | $142,773 | $120,000 | $0 | $262,773 | $262,773 |
| 2019 | $99,670 | $150,000 | $0 | $249,670 | $249,670 |
| 2018 | $78,325 | $135,000 | $0 | $213,325 | $213,325 |
| 2017 | $78,840 | $100,000 | $0 | $178,840 | $178,840 |
| 2016 | $79,920 | $75,000 | $0 | $154,920 | $154,920 |
| 2015 | $81,001 | $55,000 | $0 | $136,001 | $136,001 |
| 2014 | $82,080 | $50,000 | $0 | $132,080 | $132,080 |
| 2013 | $83,160 | $50,000 | $0 | $133,160 | $133,160 |
| 2012 | $77,566 | $57,800 | $0 | $135,366 | $135,366 |
| 2011 | $78,671 | $68,000 | $0 | $146,671 | $146,671 |
| 2010 | $83,800 | $68,000 | $0 | $151,800 | $151,800 |
| 2009 | $87,505 | $88,320 | $0 | $175,825 | $175,825 |
| 2008 | $88,716 | $99,200 | $0 | $187,916 | $187,916 |
| 2007 | $89,927 | $116,000 | $0 | $205,927 | $205,927 |
Deed and Sales History
| 1 | 05/25/2021 | WD | Warranty Deed | SCHIER, NICHOLAS | RILEY, JESSICA | | | $330,000.00 | 48391 | 4520181 |
| 2 | 08/24/2017 | WD | Warranty Deed | TOKSTAD, MARK A | SCHIER, NICHOLAS | | | $220,000.00 | 30882 | 4429263 |
| 3 | 09/24/2007 | WD | Warranty Deed | KARNES ET AL, STEPHEN T | TOKSTAD, MARK A | | | $192,500.00 | 73266 | 4212982 |
| 4 | 05/27/2005 | OTHER | Other - Misc. Documents | KARNES, NORMA J | KARNES ET AL, STEPHEN T | | | $0.00 | 70561 | 0 |
| 5 | 11/05/1998 | OTHER | Other - Misc. Documents | KARNES, HARRY W | KARNES, NORMA J | | | $0.00 | 68073 | 0 |
| 6 | 03/01/1982 | EZ | Easement | RANDEL, WILLIAM B | KARNES, HARRY W | | | $8,500.00 | 20608 | 394151 |
| 7 | 01/01/1900 | OTHER | Other - Misc. Documents | Unknown | RANDEL, WILLIAM B | | | $0.00 | 0 | 0 |
Payout Agreement
| No payout information available.. |