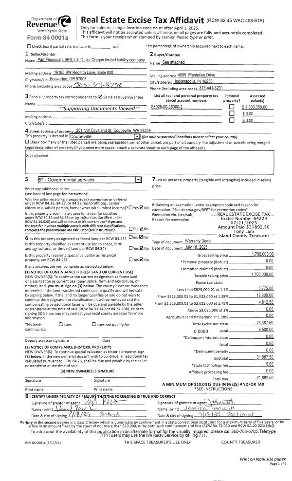
Property
Account |
| Property ID: | 720036 | Abbreviated Legal Description: | SIERRA LOT 31 BLK 9 |
| Geographic ID: | S8160-00-09031-0 | Agent Code: | |
| Type: | Real | | |
| Tax Area: | 330 - APPRAISER-Cpvl Schl Dist, Special Dist, improved & less than 1 acre | Land Use Code | 11 |
| Open Space: | N | DFL | N |
| Historic Property: | N | Remodel Property: | N |
| Multi-Family Redevelopment: | N | | |
| Township: | | Section: | |
| Range: | |
Location |
| Address: | 647 LA FIESTA ST COUPEVILLE, WA 98239 | Mapsco: | |
| Neighborhood: | Cycle 2 | Map ID: | 10 |
| Neighborhood CD: | 2 |
Owner |
| Name: | BRANSOM, TYREL ISSIAH | Owner ID: | 293538 |
| Mailing Address: | LENA PILAR BRANSOM 647 LA FIESTA ST COUPEVILLE, WA 98239 | % Ownership: | 100.0000000000% |
| | | Exemptions: | |
Taxes and Assessment Details
Values
| (+) Improvement Homesite Value: | + | $0 | |
| (+) Improvement Non-Homesite Value: | + | $300,969 | |
| (+) Land Homesite Value: | + | $0 | |
| (+) Land Non-Homesite Value: | + | $275,000 | |
| (+) Curr Use (HS): | + | $0 | $0 |
| (+) Curr Use (NHS): | + | $0 | $0 |
| | | -------------------------- | |
| (=) Market Value: | = | $575,969 | |
| (–) Productivity Loss: | – | $0 | |
| | | -------------------------- | |
| (=) Subtotal: | = | $575,969 | |
| (+) Senior Appraised Value: | + | $0 | |
| (+) Non-Senior Appraised Value: | + | $575,969 | |
| | | -------------------------- | |
| (=) Total Appraised Value: | = | $575,969 | |
| (–) Senior Exemption Loss: | – | $0 | |
| (–) Exemption Loss: | – | $0 | |
| | | -------------------------- | |
| (=) Taxable Value: | = | $575,969 | |
Taxing Jurisdiction
| Owner: | BRANSOM, TYREL ISSIAH | | |
| % Ownership: | 100.0000000000% | | |
| Total Value: | $575,969 | | |
| Tax Area: | 330 - APPRAISER-Cpvl Schl Dist, Special Dist, improved & less than 1 acre |
| CF | Conservation Futures | 0.0316035091 | $575,969 | $575,969 | $18.20 | | |
| CEM2 | Cemetery #2 | 0.0095056933 | $575,969 | $575,969 | $5.47 | | |
| FIRE2 | Fire & Rescue Dist #2 N Whidbey GEN | 0.5475949600 | $575,969 | $575,969 | $315.40 | | |
| HOBOND | Hospital BOND | 0.1910887512 | $575,969 | $575,969 | $110.06 | | |
| HOGEN | Hospital GEN | 0.3902502903 | $575,969 | $575,969 | $224.77 | | |
| CE | County Current Expense | 0.3708482477 | $575,969 | $575,969 | $213.60 | | |
| CR | County Roads | 0.4584763726 | $575,969 | $575,969 | $264.07 | | |
| ISLANDEMS | Hospital GEN (EMS) | 0.5000000000 | $575,969 | $575,969 | $287.98 | | |
| LIB | Library Sno-Isle GEN | 0.3153421757 | $575,969 | $575,969 | $181.63 | | |
| LIBCAP | Library Sno-Isle BOND (Cap Fac Imp Area) | 0.0543427938 | $575,969 | $575,969 | $31.30 | | |
| POCOUP | Port of Coupeville GEN | 0.1093371703 | $575,969 | $575,969 | $62.97 | | |
| POCOUPIDD | Port of Coupeville IDD | 0.3409740022 | $575,969 | $575,969 | $196.39 | | |
| COUPSDTECH | School 204 CP (TECH) | 0.7545480007 | $575,969 | $575,969 | $434.60 | | |
| SCH204MO | School 204 Enrichment | 0.6716186034 | $575,969 | $575,969 | $386.83 | | |
| ST | State School | 1.3035497053 | $575,969 | $575,969 | $750.80 | | |
| ST2 | State School Part 2 | 0.8169543533 | $575,969 | $575,969 | $470.54 | | |
| | Total Tax Rate: | 6.8660346289 | | | | | |
| | | | | Taxes w/Current Exemptions: | $3,954.61 | | |
| | | | | Taxes w/o Exemptions: | $3,954.61 | | |
Improvement / Building
| Improvement #1: | RESIDENTIAL | State Code: | Y | 2150.5 sqft | Value: | $300,969 |
| Bathrooms: | 2 | Bedrooms: | 4 | | Ceiling: | DRYWALL PAINTED | Exterior Wall/Cover: | CEMENT FIBER | | Floor Covering: | HARDWOOD/CARP 60-40 | Floor Structure: | WOOD W/SUBFLOOR | | Foundation: | CONCRETE | Heating: | WALL HEAT ELECTRIC | | Interior Finish: | DRYWALL PAINT | Plumbing Fixture Cnt: | 11 | | Roof Slope: | 6" IN 12" | Roof Structure/Cover: | CJ ASPHALT |
|
| | Type | Description | Class CD | Sub Class CD | Year Built | Area |
| | BAS | BASE/MAIN FLOOR | 3 | 0 | 1988 | 1083.9 |
| | AGR | ATTACHED GARAGE | 3 | 0 | 1988 | 344.0 |
| | OWP | OPEN WOOD PORCH W/STEPS | 3 | 0 | 1988 | 88.0 |
| | DWN | DOWNSTAIRS LIVING AREA | 3 | 0 | 1988 | 1066.6 |
| | OP1 | OPEN PORCH SLAB | 3 | 0 | 1988 | 232.0 |
Sketch
Property Image
Land
| 1 | 14 | SQ (08001-12000) | 0.1880 | 8189.28 | 0.00 | 0.00 | 1.00 | $275,000 | $0 |
Roll Value History
| 2026 | N/A | N/A | N/A | N/A | N/A |
| 2025 | $300,969 | $275,000 | $0 | $575,969 | $575,969 |
| 2024 | $297,353 | $275,000 | $0 | $572,353 | $572,353 |
| 2023 | $300,969 | $275,000 | $0 | $575,969 | $575,969 |
| 2022 | $275,809 | $260,000 | $0 | $535,809 | $535,809 |
| 2021 | $242,675 | $175,000 | $0 | $417,675 | $417,675 |
| 2020 | $236,621 | $160,000 | $0 | $396,621 | $396,621 |
| 2019 | $181,321 | $185,000 | $0 | $366,321 | $366,321 |
| 2018 | $149,309 | $135,000 | $0 | $284,309 | $62,847 |
| 2017 | $150,223 | $100,000 | $0 | $250,223 | $62,847 |
| 2016 | $152,125 | $75,000 | $0 | $227,125 | $62,847 |
| 2015 | $154,027 | $55,000 | $0 | $209,027 | $62,847 |
| 2014 | $155,927 | $50,000 | $0 | $205,927 | $62,847 |
| 2013 | $157,830 | $50,000 | $0 | $207,830 | $62,847 |
| 2012 | $157,954 | $57,800 | $0 | $215,754 | $62,847 |
| 2011 | $159,940 | $68,000 | $0 | $227,940 | $62,847 |
| 2010 | $166,518 | $68,000 | $0 | $234,518 | $62,847 |
| 2009 | $172,909 | $89,074 | $0 | $261,983 | $62,847 |
| 2008 | $159,639 | $99,200 | $0 | $258,839 | $56,399 |
| 2007 | $161,074 | $116,640 | $0 | $277,714 | $56,399 |
Deed and Sales History
| 1 | 02/18/2020 | WD | Warranty Deed | BARRON, SANDRA Z | BRANSOM, TYREL ISSIAH | | | $410,000.00 | 42171 | 4481644 |
| 2 | 02/24/2001 | QCD | Quit Claim Deed | Unknown | BARRON, SANDRA Z | | | $0.00 | 13256 | 20041272 |
| 3 | 05/01/1990 | QCD | Quit Claim Deed | BARRON, SANDRA Z | COON, VELMA M | | | $0.00 | 2631 | 90008473 |
| 4 | 08/01/1988 | WD | Warranty Deed | SELLGREN, GORDON & | BARRON, SANDRA Z | | | $72,500.00 | 82466 | 88009341 |
| 5 | 07/01/1984 | WD | Warranty Deed | ROBERTS, TREVOR D | SELLGREN, GORDON & | | | $10,000.00 | 42050 | 84000700 |
| 6 | 09/01/1980 | EXECUTORD | Executor Deed | WEAVER, EDITH C | ROBERTS, TREVOR D | | | $7,000.00 | 3243 | 374314 |
| 7 | 01/01/1900 | OTHER | Other - Misc. Documents | BARRON, SANDRA Z | WEAVER, EDITH C | | | $0.00 | 0 | 0 |
Payout Agreement
| No payout information available.. |