Property
Account |
| Property ID: | 720116 | Abbreviated Legal Description: | CLINTON PK LOT 1 INCL 1/45INT TDLS |
| Geographic ID: | S6395-00-00001-0 | Agent Code: | |
| Type: | Real | | |
| Tax Area: | 720 - APPRAISER-S Whid Schl Dist, Special District, improved & less than 1 acre | Land Use Code | 11 |
| Open Space: | N | DFL | N |
| Historic Property: | N | Remodel Property: | N |
| Multi-Family Redevelopment: | N | | |
| Township: | | Section: | |
| Range: | |
Location |
| Address: | 4759 HANSEN DR CLINTON, WA 98236 | Mapsco: | |
| Neighborhood: | Cycle 4 | Map ID: | 808 |
| Neighborhood CD: | 4 |
Owner |
| Name: | CASWELL, SHARI LYNN | Owner ID: | 294071 |
| Mailing Address: | PO BOX 92 CLINTON, WA 98236 | % Ownership: | 100.0000000000% |
| | | Exemptions: | |
Taxes and Assessment Details
Values
| (+) Improvement Homesite Value: | + | $0 | |
| (+) Improvement Non-Homesite Value: | + | $36,930 | |
| (+) Land Homesite Value: | + | $0 | |
| (+) Land Non-Homesite Value: | + | $240,000 | |
| (+) Curr Use (HS): | + | $0 | $0 |
| (+) Curr Use (NHS): | + | $0 | $0 |
| | | -------------------------- | |
| (=) Market Value: | = | $276,930 | |
| (–) Productivity Loss: | – | $0 | |
| | | -------------------------- | |
| (=) Subtotal: | = | $276,930 | |
| (+) Senior Appraised Value: | + | $0 | |
| (+) Non-Senior Appraised Value: | + | $276,930 | |
| | | -------------------------- | |
| (=) Total Appraised Value: | = | $276,930 | |
| (–) Senior Exemption Loss: | – | $0 | |
| (–) Exemption Loss: | – | $0 | |
| | | -------------------------- | |
| (=) Taxable Value: | = | $276,930 | |
Taxing Jurisdiction
| Owner: | CASWELL, SHARI LYNN | | |
| % Ownership: | 100.0000000000% | | |
| Total Value: | $276,930 | | |
| Tax Area: | 720 - APPRAISER-S Whid Schl Dist, Special District, improved & less than 1 acre |
| CF | Conservation Futures | 0.0316035091 | $276,930 | $276,930 | $8.75 | | |
| FIRE3 | Fire & Rescue Dist #3 S Whidbey GEN | 1.2004855531 | $276,930 | $276,930 | $332.45 | | |
| HOBOND | Hospital BOND | 0.1910887512 | $276,930 | $276,930 | $52.92 | | |
| HOGEN | Hospital GEN | 0.3902502903 | $276,930 | $276,930 | $108.07 | | |
| CE | County Current Expense | 0.3708482477 | $276,930 | $276,930 | $102.70 | | |
| CR | County Roads | 0.4584763726 | $276,930 | $276,930 | $126.97 | | |
| ISLANDEMS | Hospital GEN (EMS) | 0.5000000000 | $276,930 | $276,930 | $138.47 | | |
| LIB | Library Sno-Isle GEN | 0.3153421757 | $276,930 | $276,930 | $87.33 | | |
| PORTWHID | Port of S Whidbey GEN | 0.1094540357 | $276,930 | $276,930 | $30.31 | | |
| SCH206BOND | School 206 BOND | 0.3161759235 | $276,930 | $276,930 | $87.56 | | |
| SCH206MO | School 206 Enrichment | 0.4547169547 | $276,930 | $276,930 | $125.92 | | |
| ST | State School | 1.3035497053 | $276,930 | $276,930 | $360.99 | | |
| ST2 | State School Part 2 | 0.8169543533 | $276,930 | $276,930 | $226.24 | | |
| SWHIDPRBD | P & R S Whidbey BOND | 0.0152817568 | $276,930 | $276,930 | $4.23 | | |
| SWHIDPRBD2 | P & R S Whidbey BOND2 | 0.0138911264 | $276,930 | $276,930 | $3.85 | | |
| SWHIDPRMT | P & R S Whidbey GEN | 0.2053334452 | $276,930 | $276,930 | $56.86 | | |
| | Total Tax Rate: | 6.6934522006 | | | | | |
| | | | | Taxes w/Current Exemptions: | $1,853.62 | | |
| | | | | Taxes w/o Exemptions: | $1,853.62 | | |
Improvement / Building
| Improvement #1: | MANUFACTURED HOME | State Code: | Y | 1344.0 sqft | Value: | $36,930 |
| Bathrooms: | 0 | Bedrooms: | 0 | | Ceiling: | PLASTER PAINTED | Cooling: | EVAP NO DUCT | | Exterior Wall/Cover: | VINYL | Floor Covering: | CARPET 100% | | Floor Structure: | SLAB ON GRADE | Foundation: | SLAB | | Heating: | FHA ELECTRIC | Interior Finish: | PLASTER | | Plumbing Fixture Cnt: | 1 | Roof Slope: | FLAT | | Roof Structure/Cover: | CJ ALUMINIUM HEAVY |   |   |
|
| | Type | Description | Class CD | Sub Class CD | Year Built | Area |
| | BAS | BASE/MAIN FLOOR | 3 | 0 | 1978 | 1344.0 |
| | OWP | OPEN WOOD PORCH W/STEPS | 3 | 0 | 1978 | 256.0 |
| | DGR | DETACHED GARAGE | 3 | 0 | 1978 | 576.0 |
| | OWR | OPEN WOOD PORCH W/STEPS/ROOF | 3 | 0 | 1978 | 36.0 |
Sketch
Property Image
Land
| 1 | 14 | SQ (08001-12000) | 0.0000 | 0.00 | 0.00 | 0.00 | 1.00 | $240,000 | $0 |
Roll Value History
| 2026 | N/A | N/A | N/A | N/A | N/A |
| 2025 | $36,930 | $240,000 | $0 | $276,930 | $276,930 |
| 2024 | $38,298 | $230,000 | $0 | $268,298 | $268,298 |
| 2023 | $41,033 | $230,000 | $0 | $271,033 | $271,033 |
| 2022 | $38,393 | $200,000 | $0 | $238,393 | $238,393 |
| 2021 | $35,541 | $140,000 | $0 | $175,541 | $175,541 |
| 2020 | $22,663 | $130,000 | $0 | $152,663 | $152,663 |
| 2019 | $19,280 | $140,000 | $0 | $159,280 | $159,280 |
| 2018 | $19,994 | $130,000 | $0 | $149,994 | $149,994 |
| 2017 | $21,422 | $110,000 | $0 | $131,422 | $131,422 |
| 2016 | $22,136 | $85,000 | $0 | $107,136 | $107,136 |
| 2015 | $23,564 | $65,000 | $0 | $88,564 | $88,564 |
| 2014 | $33,746 | $65,000 | $0 | $98,746 | $98,746 |
| 2013 | $35,312 | $65,000 | $0 | $100,312 | $100,312 |
| 2012 | $36,357 | $65,000 | $0 | $101,357 | $101,357 |
| 2011 | $37,401 | $85,000 | $0 | $122,401 | $122,401 |
| 2010 | $34,315 | $85,000 | $0 | $119,315 | $119,315 |
| 2009 | $35,636 | $100,000 | $0 | $135,636 | $135,636 |
| 2008 | $56,198 | $120,000 | $0 | $176,198 | $176,198 |
| 2007 | $57,934 | $84,000 | $0 | $141,934 | $141,934 |
Deed and Sales History
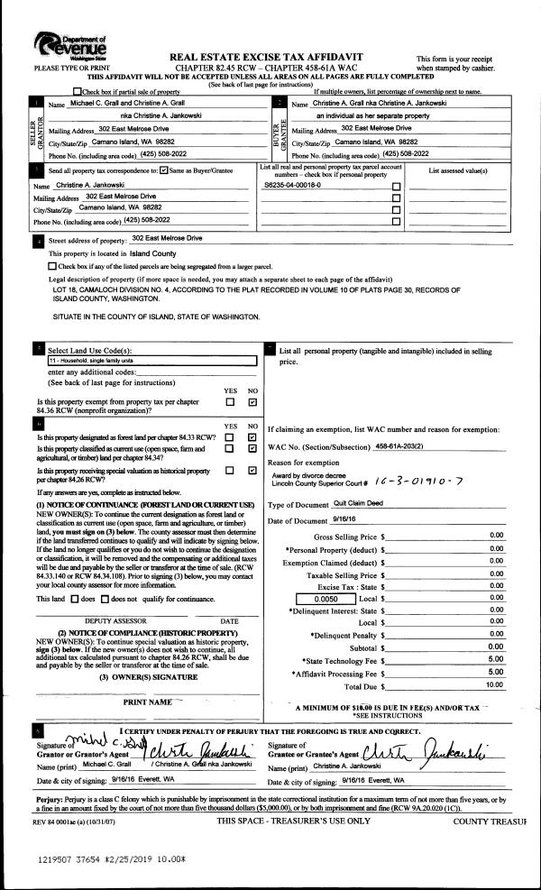
| 1 | 04/27/2020 | QCD | Quit Claim Deed | CASWELL, SHARI LYNN | CASWELL, SHARI LYNN | | | $0.00 | 42893 | 4485890 |
| 2 | 01/28/2019 | WD | Warranty Deed | LOLA LANE LLC | CASWELL, SHARI LYNN | | | $160,000.00 | 37449 | 4458578 |
| 3 | 07/01/2014 | SPWARDEED | Special Warranty Deed | SECRETARY OF HOUSING & URBAN DEVELOPMENT | LOLA LANE LLC | | | $35,001.00 | 15915 | 4361882 |
| 4 | 03/06/2014 | WD | Warranty Deed | US BANK N A | SECRETARY OF HOUSING & URBAN DEVELOPMENT | | | $0.00 | 14813 | 4357535 |
| 5 | 11/09/2005 | TRUSTEED | Trustee's Deed | SEC OF HOUSING & URBAN DEV, | U S BANK N A, | | | $0.00 | 55789 | 4154472 |
| 6 | 08/16/2004 | TRUSTEED | Trustee's Deed | US BANK NA, | SEC OF HOUSING & URBAN DEV, | | | $0.00 | 50813 | 4127091 |
| 7 | 06/25/2004 | TRUSTEED | Trustee's Deed | VOLZ, JON C | US BANK NA, | | | $115,439.00 | 43060 | 4106347 |
| 8 | 07/02/1999 | WD | Warranty Deed | WILTZ, DON L | VOLZ, JON C | | | $110,000.00 | 92717 | 0 |
| 9 | 07/02/1999 | WD | Warranty Deed | Unknown | VOLZ, JON C | | | $110,000.00 | 92717 | 99016195 |
| 10 | 11/01/1981 | CD | DNU - Correction Deed | VOLZ, JON C | WILTZ, DONALD L | | | $1.00 | 13713 | 390893 |
Payout Agreement
| No payout information available.. |