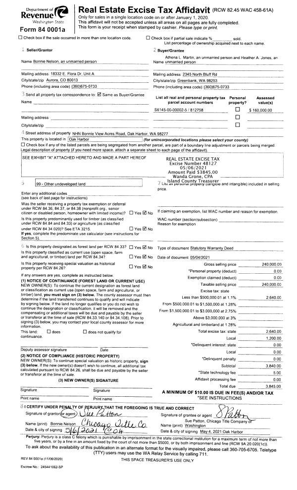
Property
Account |
| Property ID: | 720401 | Abbreviated Legal Description: | Sunlight Shores - 1,s Lot 11,s Blk 2;s LOT A LOT COMB AF# 4471574s |
| Geographic ID: | S8225-00-02011-0 | Agent Code: | |
| Type: | Real | | |
| Tax Area: | 710 - APPRAISER-S Whid Schl Dist, outside Langley, improved & 1 acre or less | Land Use Code | 11 |
| Open Space: | N | DFL | N |
| Historic Property: | N | Remodel Property: | N |
| Multi-Family Redevelopment: | N | | |
| Township: | | Section: | |
| Range: | |
Location |
| Address: | 2753 EVENING GLORY CT CLINTON, WA 98236 | Mapsco: | |
| Neighborhood: | Cycle 4 | Map ID: | 788 |
| Neighborhood CD: | 4 |
Owner |
| Name: | MCCONNACHIE, GLEN IAN | Owner ID: | 193978 |
| Mailing Address: | SHARON L MCCONNACHIE 2753 EVENING GLORY CT CLINTON, WA 98236-9114 | % Ownership: | 100.0000000000% |
| | | Exemptions: | |
Taxes and Assessment Details
Values
| (+) Improvement Homesite Value: | + | $0 | |
| (+) Improvement Non-Homesite Value: | + | $293,970 | |
| (+) Land Homesite Value: | + | $0 | |
| (+) Land Non-Homesite Value: | + | $330,000 | |
| (+) Curr Use (HS): | + | $0 | $0 |
| (+) Curr Use (NHS): | + | $0 | $0 |
| | | -------------------------- | |
| (=) Market Value: | = | $623,970 | |
| (–) Productivity Loss: | – | $0 | |
| | | -------------------------- | |
| (=) Subtotal: | = | $623,970 | |
| (+) Senior Appraised Value: | + | $0 | |
| (+) Non-Senior Appraised Value: | + | $623,970 | |
| | | -------------------------- | |
| (=) Total Appraised Value: | = | $623,970 | |
| (–) Senior Exemption Loss: | – | $0 | |
| (–) Exemption Loss: | – | $0 | |
| | | -------------------------- | |
| (=) Taxable Value: | = | $623,970 | |
Taxing Jurisdiction
| Owner: | MCCONNACHIE, GLEN IAN | | |
| % Ownership: | 100.0000000000% | | |
| Total Value: | $623,970 | | |
| Tax Area: | 710 - APPRAISER-S Whid Schl Dist, outside Langley, improved & 1 acre or less |
| CF | Conservation Futures | 0.0316035091 | $623,970 | $623,970 | $19.72 | | |
| FIRE3 | Fire & Rescue Dist #3 S Whidbey GEN | 1.2004855531 | $623,970 | $623,970 | $749.07 | | |
| HOBOND | Hospital BOND | 0.1910887512 | $623,970 | $623,970 | $119.23 | | |
| HOGEN | Hospital GEN | 0.3902502903 | $623,970 | $623,970 | $243.50 | | |
| CE | County Current Expense | 0.3708482477 | $623,970 | $623,970 | $231.40 | | |
| CR | County Roads | 0.4584763726 | $623,970 | $623,970 | $286.08 | | |
| ISLANDEMS | Hospital GEN (EMS) | 0.5000000000 | $623,970 | $623,970 | $311.99 | | |
| LIB | Library Sno-Isle GEN | 0.3153421757 | $623,970 | $623,970 | $196.76 | | |
| PORTWHID | Port of S Whidbey GEN | 0.1094540357 | $623,970 | $623,970 | $68.30 | | |
| SCH206BOND | School 206 BOND | 0.3161759235 | $623,970 | $623,970 | $197.28 | | |
| SCH206MO | School 206 Enrichment | 0.4547169547 | $623,970 | $623,970 | $283.73 | | |
| ST | State School | 1.3035497053 | $623,970 | $623,970 | $813.38 | | |
| ST2 | State School Part 2 | 0.8169543533 | $623,970 | $623,970 | $509.76 | | |
| SWHIDPRBD | P & R S Whidbey BOND | 0.0152817568 | $623,970 | $623,970 | $9.54 | | |
| SWHIDPRBD2 | P & R S Whidbey BOND2 | 0.0138911264 | $623,970 | $623,970 | $8.67 | | |
| SWHIDPRMT | P & R S Whidbey GEN | 0.2053334452 | $623,970 | $623,970 | $128.12 | | |
| | Total Tax Rate: | 6.6934522006 | | | | | |
| | | | | Taxes w/Current Exemptions: | $4,176.53 | | |
| | | | | Taxes w/o Exemptions: | $4,176.53 | | |
Improvement / Building
| Improvement #1: | RESIDENTIAL | State Code: | Y | 2102.0 sqft | Value: | $293,970 |
| Bathrooms: | 2.5 | Bedrooms: | 2 | | Ceiling: | DRYWALL PAINTED | Cooling: | HEAT PUMP/CONV/V | | Exterior Wall/Cover: | VINYL | Floor Covering: | HARDWOOD/CARP 20-80 | | Floor Structure: | WOOD W/SUBFLOOR | Foundation: | CONCRETE | | Interior Finish: | DRYWALL PAINT | Plumbing Fixture Cnt: | 12 | | Roof Slope: | 5" IN 12" | Roof Structure/Cover: | CJ ASPHALT |
|
| | Type | Description | Class CD | Sub Class CD | Year Built | Area |
| | BAS | BASE/MAIN FLOOR | 3 | 0 | 1991 | 1262.0 |
| | AGR | ATTACHED GARAGE | 3 | 0 | 1991 | 276.0 |
| | OWP | OPEN WOOD PORCH W/STEPS | 3 | 0 | 1991 | 72.0 |
| | OWP | OPEN WOOD PORCH W/STEPS | 3 | 0 | 1991 | 48.0 |
| | OWP | OPEN WOOD PORCH W/STEPS | 3 | 0 | 1991 | 210.0 |
| | OWR | OPEN WOOD PORCH W/STEPS/ROOF | 3 | 0 | 1991 | 90.0 |
| | OWC | OPEN WOOD PORCH W/STEPS/ROOF/C | 3 | 0 | 1991 | 28.0 |
| | DWN | DOWNSTAIRS LIVING AREA | 3 | 0 | 1991 | 840.0 |
Sketch
Property Image
Land
| 1 | 15 | SQ (12001-21780) | 0.0000 | 0.00 | 0.00 | 0.00 | 1.00 | $330,000 | $0 |
Roll Value History
| 2026 | N/A | N/A | N/A | N/A | N/A |
| 2025 | $293,970 | $330,000 | $0 | $623,970 | $623,970 |
| 2024 | $297,776 | $310,000 | $0 | $607,776 | $607,776 |
| 2023 | $301,580 | $300,000 | $0 | $601,580 | $601,580 |
| 2022 | $276,517 | $280,000 | $0 | $556,517 | $556,517 |
| 2021 | $243,461 | $210,000 | $0 | $453,461 | $453,461 |
| 2020 | $226,215 | $180,000 | $0 | $406,215 | $406,215 |
| 2019 | $172,646 | $215,000 | $0 | $387,646 | $387,646 |
| 2018 | $173,185 | $180,000 | $0 | $353,185 | $353,185 |
| 2017 | $174,260 | $180,000 | $0 | $354,260 | $354,260 |
| 2016 | $176,412 | $150,000 | $0 | $326,412 | $326,412 |
| 2015 | $178,564 | $150,000 | $0 | $328,564 | $328,564 |
| 2014 | $169,092 | $200,000 | $0 | $369,092 | $369,092 |
| 2013 | $171,296 | $200,000 | $0 | $371,296 | $371,296 |
| 2012 | $173,503 | $140,250 | $0 | $313,753 | $313,753 |
| 2011 | $175,708 | $165,000 | $0 | $340,708 | $340,708 |
| 2010 | $182,823 | $165,000 | $0 | $347,823 | $347,823 |
| 2009 | $190,715 | $200,000 | $0 | $390,715 | $390,715 |
| 2008 | $195,485 | $150,000 | $0 | $345,485 | $345,485 |
| 2007 | $197,763 | $110,000 | $0 | $307,763 | $307,763 |
Deed and Sales History
| 1 | 03/17/2005 | 5 | DNU - Marriage License/Name Change | MCCONNACHIE, GLEN IAN | MCCONNACHIE, GLEN IAN | | | $0.00 | 51247 | 4129660 |
| 2 | 03/17/2005 | WD | Warranty Deed | MCCONNACHIE ET AL, GLEN IAN | MCCONNACHIE, GLEN IAN | | | $141,210.00 | 51246 | 4129659 |
| 3 | 12/20/2004 | PRD | Personal Representatives Deed | JORDAN, INGER S | MCCONNACHIE ET AL, GLEN IAN | | | $0.00 | 45942 | 4121375 |
| 4 | 01/29/2001 | OTHER | Other - Misc. Documents | JORDAN, DONALD E | JORDAN, INGER S | | | $0.00 | 68943 | 0 |
| 5 | 04/01/1990 | WD | Warranty Deed | ARNOLD, STEVE & | JORDAN, DONALD E | | | $24,500.00 | 2725 | 90008941 |
| 6 | 07/01/1989 | QCD | Quit Claim Deed | FREDRIKSEN, ALLEN | ARNOLD, STEVE & | | | $0.00 | 1015 | 90003356 |
| 7 | 05/01/1986 | QCD | Quit Claim Deed | ARNOLD, STEVE O | FREDRIKSEN, ALLEN | | | $0.00 | 61281 | 86006046 |
| 8 | 01/01/1983 | PACD | Purchaser's Assignment | CRONIN, RICHARD A | ARNOLD, STEVE O | | | $9,500.00 | 30147 | 404999 |
| 9 | 04/01/1981 | EXECUTORD | Executor Deed | VIKESLAND, RAYMOND W | CRONIN, RICHARD A | | | $8,000.00 | 11473 | 383014 |
| 10 | 01/01/1900 | OTHER | Other - Misc. Documents | Unknown | VIKESLAND, RAYMOND W | | | $0.00 | 0 | 0 |
Payout Agreement
| No payout information available.. |