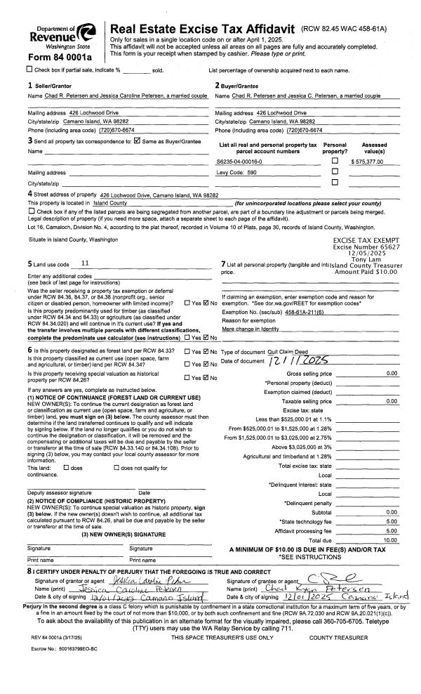
Property
Account |
| Property ID: | 720474 | Abbreviated Legal Description: | SUNNY VW FM S332' OF LOT 2 |
| Geographic ID: | S8245-00-00002-1 | Agent Code: | |
| Type: | Real | | |
| Tax Area: | 762 - APPRAISER-S Whid Schl Dist, Special District, improved, greater than 1 acre | Land Use Code | 11 |
| Open Space: | N | DFL | N |
| Historic Property: | N | Remodel Property: | N |
| Multi-Family Redevelopment: | N | | |
| Township: | | Section: | |
| Range: | |
Location |
| Address: | 1637 SCENIC AVE FREELAND, WA 98249 | Mapsco: | |
| Neighborhood: | Cycle 3 | Map ID: | 327 |
| Neighborhood CD: | 3 |
Owner |
| Name: | JESSON, MAXWELL | Owner ID: | 294108 |
| Mailing Address: | ROSEMARIS JESSON 1637 SCENIC AVE FREELAND, WA 98249 | % Ownership: | 100.0000000000% |
| | | Exemptions: | SNR/DSBL |
Taxes and Assessment Details
Values
| (+) Improvement Homesite Value: | + | $154,325 | |
| (+) Improvement Non-Homesite Value: | + | $0 | |
| (+) Land Homesite Value: | + | $310,000 | |
| (+) Land Non-Homesite Value: | + | $0 | |
| (+) Curr Use (HS): | + | $0 | $0 |
| (+) Curr Use (NHS): | + | $0 | $0 |
| | | -------------------------- | |
| (=) Market Value: | = | $464,325 | |
| (–) Productivity Loss: | – | $0 | |
| | | -------------------------- | |
| (=) Subtotal: | = | $464,325 | |
| (+) Senior Appraised Value: | + | $417,132 | |
| (+) Non-Senior Appraised Value: | + | $0 | |
| | | -------------------------- | |
| (=) Total Appraised Value: | = | $417,132 | |
| (–) Senior Exemption Loss: | – | $250,279 | |
| (–) Exemption Loss: | – | $0 | |
| | | -------------------------- | |
| (=) Taxable Value: | = | $166,853 | |
Taxing Jurisdiction
| Owner: | JESSON, MAXWELL | | |
| % Ownership: | 100.0000000000% | | |
| Total Value: | $464,325 | | |
| Tax Area: | 762 - APPRAISER-S Whid Schl Dist, Special District, improved, greater than 1 acre |
| CF | Conservation Futures | 0.0316035091 | $464,325 | $166,853 | $5.27 | | |
| FIRE3 | Fire & Rescue Dist #3 S Whidbey GEN | 1.2004855531 | $464,325 | $166,853 | $200.30 | | |
| HOBOND | Hospital BOND | 0.0000000000 | $464,325 | $0 | $0.00 | | |
| HOGEN | Hospital GEN | 0.3902502903 | $464,325 | $166,853 | $65.11 | | |
| CE | County Current Expense | 0.3708482477 | $464,325 | $166,853 | $61.88 | | |
| CR | County Roads | 0.4584763726 | $464,325 | $166,853 | $76.50 | | |
| ISLANDEMS | Hospital GEN (EMS) | 0.5000000000 | $464,325 | $166,853 | $83.43 | | |
| LIB | Library Sno-Isle GEN | 0.3153421757 | $464,325 | $166,853 | $52.62 | | |
| PORTWHID | Port of S Whidbey GEN | 0.1094540357 | $464,325 | $166,853 | $18.26 | | |
| SCH206BOND | School 206 BOND | 0.3161759235 | $464,325 | $166,853 | $52.75 | | |
| SCH206MO | School 206 Enrichment | 0.0000000000 | $464,325 | $0 | $0.00 | | |
| ST | State School | 1.3035497053 | $464,325 | $166,853 | $217.50 | | |
| ST2 | State School Part 2 | 0.0000000000 | $464,325 | $0 | $0.00 | | |
| SWHIDPRBD | P & R S Whidbey BOND | 0.0000000000 | $464,325 | $0 | $0.00 | | |
| SWHIDPRBD2 | P & R S Whidbey BOND2 | 0.0000000000 | $464,325 | $0 | $0.00 | | |
| SWHIDPRMT | P & R S Whidbey GEN | 0.2053334452 | $464,325 | $166,853 | $34.26 | | |
| | Total Tax Rate: | 5.2015192582 | | | | | |
| | | | | Taxes w/Current Exemptions: | $867.88 | | |
| | | | | Taxes w/o Exemptions: | $3,107.93 | | |
Improvement / Building
| Improvement #1: | RESIDENTIAL | State Code: | Y | 1116.0 sqft | Value: | $154,325 |
| Bathrooms: | 2 | Bedrooms: | 2 | | Ceiling: | DRYWALL PAINTED | Exterior Wall/Cover: | WOOD SIDING | | Floor Covering: | CARPET/VINYL 80-20 | Floor Structure: | WOOD W/SUBFLOOR | | Foundation: | CONCRETE | Heating: | FHA OIL | | Interior Finish: | DRYWALL PAINT | Plumbing Fixture Cnt: | 8 | | Roof Slope: | 8" IN 12" | Roof Structure/Cover: | CJ ASPHALT |
|
| | Type | Description | Class CD | Sub Class CD | Year Built | Area |
| | BAS | BASE/MAIN FLOOR | 3 | 0 | 1910 | 1116.0 |
| | OP2 | OPEN PORCH W/STEPS | 3 | 0 | 1910 | 30.0 |
| | OP2 | OPEN PORCH W/STEPS | 3 | 0 | 1910 | 35.0 |
| | oUTI | UTILITY | 3 | 0 | 1910 | 256.0 |
| | oUTI | UTILITY | 3 | 0 | 1910 | 864.0 |
Sketch
Property Image
Land
| 1 | 18 | AC (02.01-03.00) | 2.5300 | 110206.80 | 0.00 | 0.00 | 1.00 | $310,000 | $0 |
Roll Value History
| 2026 | N/A | N/A | N/A | N/A | N/A |
| 2025 | $154,325 | $310,000 | $0 | $464,325 | $166,853 |
| 2024 | $156,743 | $290,000 | $0 | $446,743 | $166,853 |
| 2023 | $159,160 | $290,000 | $0 | $449,160 | $166,853 |
| 2022 | $147,132 | $270,000 | $0 | $417,132 | $166,853 |
| 2021 | $130,978 | $190,000 | $0 | $320,978 | $320,978 |
| 2020 | $128,120 | $180,000 | $0 | $308,120 | $308,120 |
| 2019 | $98,290 | $200,000 | $0 | $298,290 | $298,290 |
| 2018 | $98,628 | $190,000 | $0 | $288,628 | $288,628 |
| 2017 | $99,303 | $190,000 | $0 | $289,303 | $289,303 |
| 2016 | $100,657 | $140,000 | $0 | $240,657 | $240,657 |
| 2015 | $102,009 | $106,250 | $0 | $208,259 | $208,259 |
| 2014 | $103,362 | $106,250 | $0 | $209,612 | $209,612 |
| 2013 | $88,093 | $106,250 | $0 | $194,343 | $194,343 |
| 2012 | $89,446 | $106,250 | $0 | $195,696 | $195,696 |
| 2011 | $90,797 | $125,000 | $0 | $215,797 | $215,797 |
| 2010 | $98,082 | $125,000 | $0 | $223,082 | $223,082 |
| 2009 | $102,215 | $155,000 | $0 | $257,215 | $257,215 |
| 2008 | $103,644 | $127,357 | $0 | $231,001 | $231,001 |
| 2007 | $103,666 | $107,357 | $0 | $211,023 | $211,023 |
Deed and Sales History
| 1 | 01/09/2020 | SPWARDEED | Special Warranty Deed | MTGLQ INVESTORS LP | JESSON, MAXWELL | | | $200,000.00 | 42918 | 4486024 |
| 2 | 09/04/2018 | TRUSTEED | Trustee's Deed | NORTHUP, FRANKLIN L | MTGLQ INVESTORS LP | | | $0.00 | 35863 | 4451583 |
| 3 | 08/02/2006 | 5 | DNU - Marriage License/Name Change | NORTHUP, FRANKLIN L | NORTHUP, FRANKLIN L | | | $0.00 | 63411 | 4178350 |
| 4 | 12/05/2001 | WD | Warranty Deed | DANIELS, DOROTHY B | NORTHUP, FRANKLIN L | | | $135,000.00 | 14701 | 4005627 |
| 5 | 05/01/1990 | QCD | Quit Claim Deed | Unknown | DANIELS, DOROTHY B | | | $0.00 | 2814 | 90009182 |
Payout Agreement
| No payout information available.. |