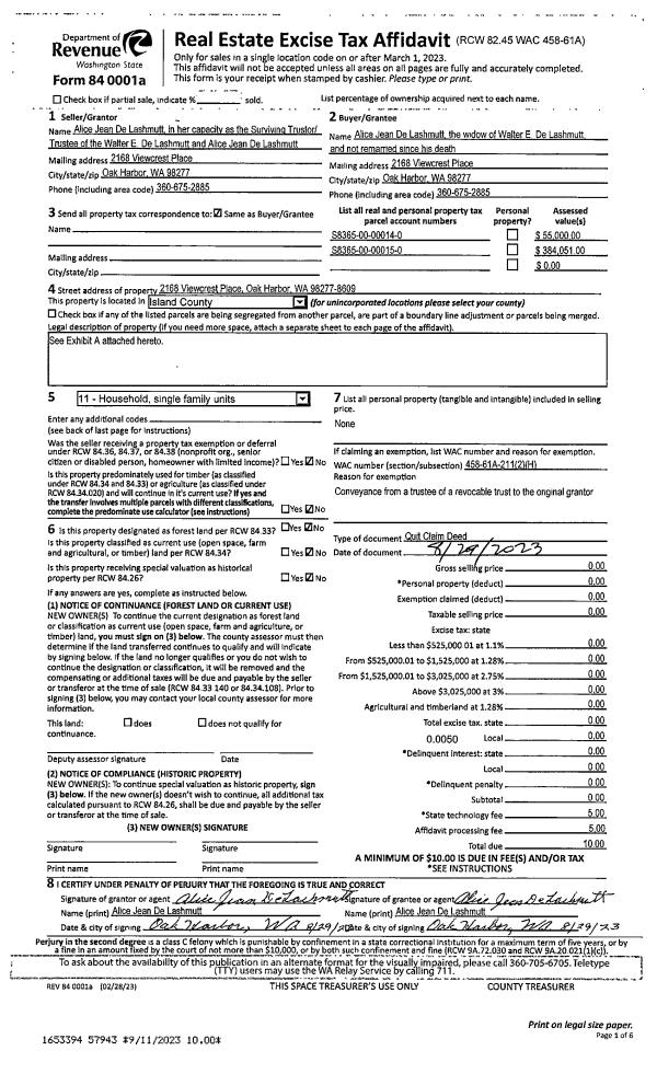
Property
Account |
| Property ID: | 720526 | Abbreviated Legal Description: | CREEKSIDE TERRACE CONDO APT 128 5.55% INT |
| Geographic ID: | S6427-00-00128-0 | Agent Code: | |
| Type: | Real | | |
| Tax Area: | 700 - APPRAISER-S Whid Schl Dist, in town of Langley | Land Use Code | 14 |
| Open Space: | N | DFL | N |
| Historic Property: | N | Remodel Property: | N |
| Multi-Family Redevelopment: | N | | |
| Township: | | Section: | |
| Range: | |
Location |
| Address: | 566 CREEKSIDE TERRACE BLDG A, UNIT 101 LANGLEY, WA 98260 | Mapsco: | |
| Neighborhood: | 42*LG-creekside | Map ID: | 913 |
| Neighborhood CD: | 42*LGcrktr |
Owner |
| Name: | BECK, TERESA | Owner ID: | 316073 |
| Mailing Address: | JUSTIN BECK 1918 39TH ST ANACORTES, WA 98221 | % Ownership: | 100.0000000000% |
| | | Exemptions: | |
Taxes and Assessment Details
Values
| (+) Improvement Homesite Value: | + | $0 | |
| (+) Improvement Non-Homesite Value: | + | $174,296 | |
| (+) Land Homesite Value: | + | $0 | |
| (+) Land Non-Homesite Value: | + | $180,000 | |
| (+) Curr Use (HS): | + | $0 | $0 |
| (+) Curr Use (NHS): | + | $0 | $0 |
| | | -------------------------- | |
| (=) Market Value: | = | $354,296 | |
| (–) Productivity Loss: | – | $0 | |
| | | -------------------------- | |
| (=) Subtotal: | = | $354,296 | |
| (+) Senior Appraised Value: | + | $0 | |
| (+) Non-Senior Appraised Value: | + | $354,296 | |
| | | -------------------------- | |
| (=) Total Appraised Value: | = | $354,296 | |
| (–) Senior Exemption Loss: | – | $0 | |
| (–) Exemption Loss: | – | $0 | |
| | | -------------------------- | |
| (=) Taxable Value: | = | $354,296 | |
Taxing Jurisdiction
| Owner: | BECK, TERESA | | |
| % Ownership: | 100.0000000000% | | |
| Total Value: | $354,296 | | |
| Tax Area: | 700 - APPRAISER-S Whid Schl Dist, in town of Langley |
| CF | Conservation Futures | 0.0316035091 | $354,296 | $354,296 | $11.20 | | |
| LANG | City of Langley | 1.0093520762 | $354,296 | $354,296 | $357.61 | | |
| LANGBOND | City of Langley BOND | 1.0326110892 | $354,296 | $354,296 | $365.85 | | |
| FIRE3 | Fire & Rescue Dist #3 S Whidbey GEN | 1.2004855531 | $354,296 | $354,296 | $425.33 | | |
| HOBOND | Hospital BOND | 0.1910887512 | $354,296 | $354,296 | $67.70 | | |
| HOGEN | Hospital GEN | 0.3902502903 | $354,296 | $354,296 | $138.26 | | |
| CE | County Current Expense | 0.3708482477 | $354,296 | $354,296 | $131.39 | | |
| ISLANDEMS | Hospital GEN (EMS) | 0.5000000000 | $354,296 | $354,296 | $177.15 | | |
| LIB | Library Sno-Isle GEN | 0.3153421757 | $354,296 | $354,296 | $111.72 | | |
| PORTWHID | Port of S Whidbey GEN | 0.1094540357 | $354,296 | $354,296 | $38.78 | | |
| SCH206BOND | School 206 BOND | 0.3161759235 | $354,296 | $354,296 | $112.02 | | |
| SCH206MO | School 206 Enrichment | 0.4547169547 | $354,296 | $354,296 | $161.10 | | |
| ST | State School | 1.3035497053 | $354,296 | $354,296 | $461.84 | | |
| ST2 | State School Part 2 | 0.8169543533 | $354,296 | $354,296 | $289.44 | | |
| SWHIDPRBD | P & R S Whidbey BOND | 0.0152817568 | $354,296 | $354,296 | $5.41 | | |
| SWHIDPRBD2 | P & R S Whidbey BOND2 | 0.0138911264 | $354,296 | $354,296 | $4.92 | | |
| SWHIDPRMT | P & R S Whidbey GEN | 0.2053334452 | $354,296 | $354,296 | $72.75 | | |
| | Total Tax Rate: | 8.2769389934 | | | | | |
| | | | | Taxes w/Current Exemptions: | $2,932.47 | | |
| | | | | Taxes w/o Exemptions: | $2,932.47 | | |
Improvement / Building
| Improvement #1: | RESIDENTIAL | State Code: | A1 | 1025.0 sqft | Value: | $174,296 |
| Bathrooms: | 2 | Bedrooms: | 2 | | Ceiling: | DRYWALL PAINTED | Exterior Wall/Cover: | VINYL | | Floor Covering: | CARPET/VINYL 80-20 | Floor Structure: | WOOD W/SUBFLOOR | | Foundation: | CONCRETE | Heating: | WALL HEAT ELECTRIC | | Interior Finish: | DRYWALL PAINT | Plumbing Fixture Cnt: | 9 | | Roof Slope: | 6" IN 12" | Roof Structure/Cover: | CJ ASPHALT |
|
| | Type | Description | Class CD | Sub Class CD | Year Built | Area |
| | BAS | BASE/MAIN FLOOR | 3 | 0 | 1987 | 1025.0 |
| | OP1 | OPEN PORCH SLAB | 3 | 0 | 1987 | 180.0 |
| | ENP | ENCLOSED PORCH | 3 | 0 | 1987 | 80.0 |
| | OCP | OPEN CARPORT | 4 | 0 | 1987 | 162.0 |
| | COMA | Common Area Improvement | 4 | 0 | 1987 | 0.0 |
Sketch
Property Image
Land
| 1 | 61 | MULTIPLE RESIDENCES | 0.0839 | 3653.40 | 0.00 | 0.00 | 1.00 | $180,000 | $0 |
Roll Value History
| 2026 | N/A | N/A | N/A | N/A | N/A |
| 2025 | $174,296 | $180,000 | $0 | $354,296 | $354,296 |
| 2024 | $176,593 | $175,000 | $0 | $351,593 | $351,593 |
| 2023 | $178,889 | $175,000 | $0 | $353,889 | $353,889 |
| 2022 | $164,203 | $170,000 | $0 | $334,203 | $334,203 |
| 2021 | $144,785 | $155,000 | $0 | $299,785 | $299,785 |
| 2020 | $142,386 | $140,000 | $0 | $282,386 | $282,386 |
| 2019 | $102,379 | $120,000 | $0 | $222,379 | $222,379 |
| 2018 | $102,722 | $60,000 | $0 | $162,722 | $162,722 |
| 2017 | $103,411 | $32,832 | $0 | $136,243 | $136,243 |
| 2016 | $104,785 | $32,832 | $0 | $137,617 | $137,617 |
| 2015 | $86,309 | $32,832 | $0 | $119,141 | $119,141 |
| 2014 | $87,427 | $32,832 | $0 | $120,259 | $120,259 |
| 2013 | $88,546 | $32,832 | $0 | $121,378 | $121,378 |
| 2012 | $90,782 | $32,832 | $0 | $123,614 | $123,614 |
| 2011 | $90,782 | $32,832 | $0 | $123,614 | $123,614 |
| 2010 | $92,807 | $37,027 | $0 | $129,834 | $129,834 |
| 2009 | $96,728 | $56,179 | $0 | $152,907 | $152,907 |
| 2008 | $107,092 | $58,149 | $0 | $165,241 | $165,241 |
| 2007 | $108,257 | $58,292 | $0 | $166,549 | $166,549 |
Deed and Sales History
| 1 | 02/26/2025 | QCD | Quit Claim Deed | GEOHAGAN III, JAMES | BECK, TERESA | | | $0.00 | 63074 | 4584278 |
| 2 | 06/01/2024 | WD | Warranty Deed | FIELDS, ALENKA | BECK ET AL, TERESA | | | $420,000.00 | 60199 | 4573085 |
| 3 | 01/12/2023 | WD | Warranty Deed | CORDELL, FRANKLIN D | FIELDS, ALENKA | | | $340,000.00 | 55697 | 4556093 |
| 4 | 06/30/2020 | WD | Warranty Deed | VINIKO, J L | CORDELL, FRANKLIN D | | | $299,000.00 | 43727 | 4490912 |
| 5 | 08/22/2013 | WD | Warranty Deed | BONE, WILLIAM A | VINIKO, J L | | | $125,000.00 | 12586 | 4347192 |
| 6 | 09/09/2010 | WD | Warranty Deed | JOHNSON, WILLIAM | BONE, WILLIAM A | | | $123,000.00 | 2262 | 4280724 |
| 7 | 12/18/2002 | WD | Warranty Deed | MATHEWS, JOHN T | JOHNSON, WILLIAM | | | $118,000.00 | 25212 | 4042221 |
| 8 | 03/03/2000 | WD | Warranty Deed | MAYFIELD, EDNA D | MATHEWS, JOHN T | | | $106,000.00 | 775 | 20003951 |
| 9 | 09/01/1987 | WD | Warranty Deed | Unknown | MAYFIELD, EDNA D | | | $48,777.00 | 72771 | 87012461 |
Payout Agreement
| No payout information available.. |