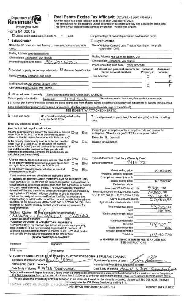
Property
Account |
| Property ID: | 720651 | Abbreviated Legal Description: | CROCKETT LK EST LOT 11-SL 2B OF SP 71-003 |
| Geographic ID: | S6435-00-00011-2 | Agent Code: | |
| Type: | Real | | |
| Tax Area: | 380 - APPRAISER-Cpvl Schl Dist, Special Dist, improved & less than 1 acre | Land Use Code | 11 |
| Open Space: | N | DFL | N |
| Historic Property: | N | Remodel Property: | N |
| Multi-Family Redevelopment: | N | | |
| Township: | | Section: | |
| Range: | |
Location |
| Address: | 629 CROCKETT LAKE DR COUPEVILLE, WA 98239 | Mapsco: | |
| Neighborhood: | Cycle 2 | Map ID: | 64 |
| Neighborhood CD: | 2 |
Owner |
| Name: | GADDY, NICHOLAS | Owner ID: | 307667 |
| Mailing Address: | 629 CROCKETT LAKE DR COUPEVILLE, WA 98239 | % Ownership: | 100.0000000000% |
| | | Exemptions: | |
Taxes and Assessment Details
Values
| (+) Improvement Homesite Value: | + | $161,847 | |
| (+) Improvement Non-Homesite Value: | + | $0 | |
| (+) Land Homesite Value: | + | $270,000 | |
| (+) Land Non-Homesite Value: | + | $0 | |
| (+) Curr Use (HS): | + | $0 | $0 |
| (+) Curr Use (NHS): | + | $0 | $0 |
| | | -------------------------- | |
| (=) Market Value: | = | $431,847 | |
| (–) Productivity Loss: | – | $0 | |
| | | -------------------------- | |
| (=) Subtotal: | = | $431,847 | |
| (+) Senior Appraised Value: | + | $0 | |
| (+) Non-Senior Appraised Value: | + | $431,847 | |
| | | -------------------------- | |
| (=) Total Appraised Value: | = | $431,847 | |
| (–) Senior Exemption Loss: | – | $0 | |
| (–) Exemption Loss: | – | $0 | |
| | | -------------------------- | |
| (=) Taxable Value: | = | $431,847 | |
Taxing Jurisdiction
| Owner: | GADDY, NICHOLAS | | |
| % Ownership: | 100.0000000000% | | |
| Total Value: | $431,847 | | |
| Tax Area: | 380 - APPRAISER-Cpvl Schl Dist, Special Dist, improved & less than 1 acre |
| CF | Conservation Futures | 0.0316035091 | $431,847 | $431,847 | $13.65 | | |
| CEM2 | Cemetery #2 | 0.0095056933 | $431,847 | $431,847 | $4.11 | | |
| FIRE5 | Fire & Rescue Dist #5 C Whidbey GEN | 1.2008080668 | $431,847 | $431,847 | $518.57 | | |
| FIRE5BOND | Fire & Rescue Dist #5 C Whidbey BOND | 0.1400090713 | $431,847 | $431,847 | $60.46 | | |
| HOBOND | Hospital BOND | 0.1910887512 | $431,847 | $431,847 | $82.52 | | |
| HOGEN | Hospital GEN | 0.3902502903 | $431,847 | $431,847 | $168.53 | | |
| CE | County Current Expense | 0.3708482477 | $431,847 | $431,847 | $160.15 | | |
| CR | County Roads | 0.4584763726 | $431,847 | $431,847 | $197.99 | | |
| ISLANDEMS | Hospital GEN (EMS) | 0.5000000000 | $431,847 | $431,847 | $215.92 | | |
| LIB | Library Sno-Isle GEN | 0.3153421757 | $431,847 | $431,847 | $136.18 | | |
| LIBCAP | Library Sno-Isle BOND (Cap Fac Imp Area) | 0.0543427938 | $431,847 | $431,847 | $23.47 | | |
| POCOUP | Port of Coupeville GEN | 0.1093371703 | $431,847 | $431,847 | $47.22 | | |
| POCOUPIDD | Port of Coupeville IDD | 0.3409740022 | $431,847 | $431,847 | $147.25 | | |
| COUPSDTECH | School 204 CP (TECH) | 0.7545480007 | $431,847 | $431,847 | $325.85 | | |
| SCH204MO | School 204 Enrichment | 0.6716186034 | $431,847 | $431,847 | $290.04 | | |
| ST | State School | 1.3035497053 | $431,847 | $431,847 | $562.93 | | |
| ST2 | State School Part 2 | 0.8169543533 | $431,847 | $431,847 | $352.80 | | |
| | Total Tax Rate: | 7.6592568070 | | | | | |
| | | | | Taxes w/Current Exemptions: | $3,307.64 | | |
| | | | | Taxes w/o Exemptions: | $3,307.64 | | |
Improvement / Building
| Improvement #1: | RESIDENTIAL | State Code: | Y | 1008.0 sqft | Value: | $161,847 |
| Bathrooms: | 1 | Bedrooms: | 2 | | Ceiling: | DRY WALL SPRAYED | Exterior Wall/Cover: | PLY/HARDBOARD T-111 | | Floor Covering: | CARPET/VINYL 80-20 | Floor Structure: | WOOD W/SUBFLOOR | | Foundation: | CONCRETE | Heating: | BASEBOARD ELECTRIC | | Interior Finish: | DRYWALL PAINT | Plumbing Fixture Cnt: | 6 | | Roof Slope: | 4" IN 12" | Roof Structure/Cover: | CJ ASPHALT |
|
| | Type | Description | Class CD | Sub Class CD | Year Built | Area |
| | BAS | BASE/MAIN FLOOR | 3 | 0 | 1971 | 1008.0 |
| | AGR | ATTACHED GARAGE | 3 | 0 | 1971 | 288.0 |
| | OWP | OPEN WOOD PORCH W/STEPS | 3 | 0 | 1971 | 294.0 |
Sketch
Property Image
Land
| 1 | 16 | AC (00.51-01.00) | 0.5600 | 24393.60 | 0.00 | 0.00 | 1.00 | $270,000 | $0 |
Roll Value History
| 2026 | N/A | N/A | N/A | N/A | N/A |
| 2025 | $161,847 | $270,000 | $0 | $431,847 | $431,847 |
| 2024 | $155,834 | $250,000 | $0 | $405,834 | $405,834 |
| 2023 | $157,991 | $220,000 | $0 | $377,991 | $377,991 |
| 2022 | $145,015 | $210,000 | $0 | $355,015 | $355,015 |
| 2021 | $127,799 | $140,000 | $0 | $267,799 | $267,799 |
| 2020 | $124,639 | $110,000 | $0 | $234,639 | $28,128 |
| 2019 | $88,681 | $150,000 | $0 | $238,681 | $28,128 |
| 2018 | $75,094 | $140,000 | $0 | $215,094 | $28,128 |
| 2017 | $75,659 | $120,000 | $0 | $195,659 | $28,128 |
| 2016 | $76,788 | $100,000 | $0 | $176,788 | $28,128 |
| 2015 | $77,916 | $75,000 | $0 | $152,916 | $28,128 |
| 2014 | $79,046 | $75,000 | $0 | $154,046 | $28,128 |
| 2013 | $80,175 | $75,000 | $0 | $155,175 | $28,128 |
| 2012 | $72,359 | $76,500 | $0 | $148,859 | $38,128 |
| 2011 | $73,492 | $90,000 | $0 | $163,492 | $28,128 |
| 2010 | $77,443 | $90,000 | $0 | $167,443 | $28,128 |
| 2009 | $80,206 | $94,154 | $0 | $174,360 | $28,127 |
| 2008 | $80,812 | $94,866 | $0 | $175,678 | $28,127 |
| 2007 | $82,899 | $79,649 | $0 | $162,548 | $28,127 |
Deed and Sales History
| 1 | 12/13/2021 | WD | Warranty Deed | BOUSHEY, PATRICIA A | GADDY, NICHOLAS | | | $390,000.00 | 51325 | 4535961 |
Payout Agreement
| No payout information available.. |