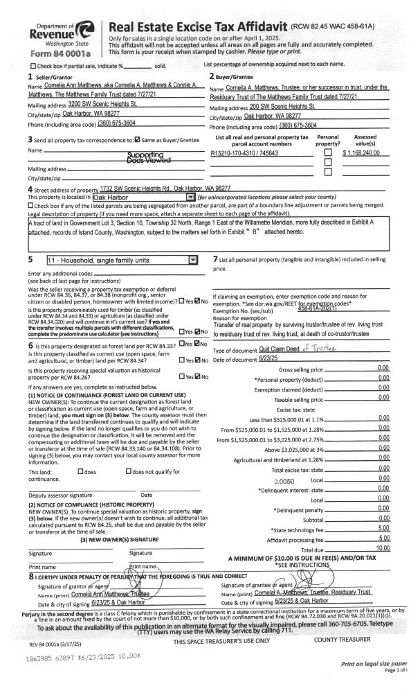
Property
Account |
| Property ID: | 720722 | Abbreviated Legal Description: | SUNSET TERR LOT 11 BLK A EX: BG NECR |
| Geographic ID: | S8270-00-0A011-0 | Agent Code: | |
| Type: | Real | | |
| Tax Area: | 300 - APPRAISER-Cpvl Schl Dist, in Cpvl | Land Use Code | 11 |
| Open Space: | N | DFL | N |
| Historic Property: | N | Remodel Property: | N |
| Multi-Family Redevelopment: | N | | |
| Township: | | Section: | |
| Range: | |
Location |
| Address: | 909 NE PENNINGTON LOOP COUPEVILLE, WA 98239 | Mapsco: | |
| Neighborhood: | Cycle 2 | Map ID: | 177 |
| Neighborhood CD: | 2 |
Owner |
| Name: | HANSEN, TYLER H | Owner ID: | 263655 |
| Mailing Address: | SARA E HANSEN 909 NE PENNINGTON LOOP COUPEVILLE, WA 98239 | % Ownership: | 100.0000000000% |
| | | Exemptions: | |
Taxes and Assessment Details
Values
| (+) Improvement Homesite Value: | + | $0 | |
| (+) Improvement Non-Homesite Value: | + | $188,352 | |
| (+) Land Homesite Value: | + | $0 | |
| (+) Land Non-Homesite Value: | + | $240,000 | |
| (+) Curr Use (HS): | + | $0 | $0 |
| (+) Curr Use (NHS): | + | $0 | $0 |
| | | -------------------------- | |
| (=) Market Value: | = | $428,352 | |
| (–) Productivity Loss: | – | $0 | |
| | | -------------------------- | |
| (=) Subtotal: | = | $428,352 | |
| (+) Senior Appraised Value: | + | $0 | |
| (+) Non-Senior Appraised Value: | + | $428,352 | |
| | | -------------------------- | |
| (=) Total Appraised Value: | = | $428,352 | |
| (–) Senior Exemption Loss: | – | $0 | |
| (–) Exemption Loss: | – | $0 | |
| | | -------------------------- | |
| (=) Taxable Value: | = | $428,352 | |
Taxing Jurisdiction
| Owner: | HANSEN, TYLER H | | |
| % Ownership: | 100.0000000000% | | |
| Total Value: | $428,352 | | |
| Tax Area: | 300 - APPRAISER-Cpvl Schl Dist, in Cpvl |
| CF | Conservation Futures | 0.0316035091 | $428,352 | $428,352 | $13.54 | | |
| CEM2 | Cemetery #2 | 0.0095056933 | $428,352 | $428,352 | $4.07 | | |
| COUP | City: Town of Coupeville | 0.8426414490 | $428,352 | $428,352 | $360.95 | | |
| FIRE5 | Fire & Rescue Dist #5 C Whidbey GEN | 1.2008080668 | $428,352 | $428,352 | $514.37 | | |
| FIRE5BOND | Fire & Rescue Dist #5 C Whidbey BOND | 0.1400090713 | $428,352 | $428,352 | $59.97 | | |
| HOBOND | Hospital BOND | 0.1910887512 | $428,352 | $428,352 | $81.85 | | |
| HOGEN | Hospital GEN | 0.3902502903 | $428,352 | $428,352 | $167.16 | | |
| CE | County Current Expense | 0.3708482477 | $428,352 | $428,352 | $158.85 | | |
| ISLANDEMS | Hospital GEN (EMS) | 0.5000000000 | $428,352 | $428,352 | $214.18 | | |
| LIB | Library Sno-Isle GEN | 0.3153421757 | $428,352 | $428,352 | $135.08 | | |
| LIBCAP | Library Sno-Isle BOND (Cap Fac Imp Area) | 0.0543427938 | $428,352 | $428,352 | $23.28 | | |
| POCOUP | Port of Coupeville GEN | 0.1093371703 | $428,352 | $428,352 | $46.83 | | |
| POCOUPIDD | Port of Coupeville IDD | 0.3409740022 | $428,352 | $428,352 | $146.06 | | |
| COUPSDTECH | School 204 CP (TECH) | 0.7545480007 | $428,352 | $428,352 | $323.21 | | |
| SCH204MO | School 204 Enrichment | 0.6716186034 | $428,352 | $428,352 | $287.69 | | |
| ST | State School | 1.3035497053 | $428,352 | $428,352 | $558.38 | | |
| ST2 | State School Part 2 | 0.8169543533 | $428,352 | $428,352 | $349.94 | | |
| | Total Tax Rate: | 8.0434218834 | | | | | |
| | | | | Taxes w/Current Exemptions: | $3,445.41 | | |
| | | | | Taxes w/o Exemptions: | $3,445.41 | | |
Improvement / Building
| Improvement #1: | RESIDENTIAL | State Code: | Y | 1537.8 sqft | Value: | $188,352 |
| Bathrooms: | 2 | Bedrooms: | 3 | | Ceiling: | DRYWALL PAINTED | Exterior Wall/Cover: | WOOD SIDING | | Floor Covering: | HARDWOOD/CARP 20-80 | Floor Structure: | WOOD W/SUBFLOOR | | Foundation: | CONCRETE | Heating: | FHA OIL | | Interior Finish: | DRYWALL PAINT | Plumbing Fixture Cnt: | 9 | | Roof Slope: | 4" IN 12" | Roof Structure/Cover: | CJ ASPHALT |
|
| | Type | Description | Class CD | Sub Class CD | Year Built | Area |
| | BAS | BASE/MAIN FLOOR | 3 | 0 | 1960 | 1537.8 |
| | OWP | OPEN WOOD PORCH W/STEPS | 3 | 0 | 1960 | 104.7 |
| | OWP | OPEN WOOD PORCH W/STEPS | 3 | 0 | 1960 | 64.6 |
| | OWP | OPEN WOOD PORCH W/STEPS | 3 | 0 | 1960 | 200.0 |
Sketch
Property Image
Land
| 1 | 15 | SQ (12001-21780) | 0.3900 | 16988.40 | 0.00 | 0.00 | 1.00 | $240,000 | $0 |
Roll Value History
| 2026 | N/A | N/A | N/A | N/A | N/A |
| 2025 | $188,352 | $240,000 | $0 | $428,352 | $428,352 |
| 2024 | $188,352 | $225,000 | $0 | $413,352 | $413,352 |
| 2023 | $191,426 | $210,000 | $0 | $401,426 | $401,426 |
| 2022 | $176,121 | $200,000 | $0 | $376,121 | $376,121 |
| 2021 | $155,579 | $150,000 | $0 | $305,579 | $305,579 |
| 2020 | $152,176 | $130,000 | $0 | $282,176 | $282,176 |
| 2019 | $110,287 | $170,000 | $0 | $280,287 | $280,287 |
| 2018 | $98,671 | $150,000 | $0 | $248,671 | $248,671 |
| 2017 | $99,469 | $130,000 | $0 | $229,469 | $229,469 |
| 2016 | $101,073 | $115,000 | $0 | $216,073 | $216,073 |
| 2015 | $102,678 | $90,000 | $0 | $192,678 | $192,678 |
| 2014 | $104,282 | $85,000 | $0 | $189,282 | $189,282 |
| 2013 | $105,886 | $85,000 | $0 | $190,886 | $190,886 |
| 2012 | $99,113 | $90,950 | $0 | $190,063 | $190,063 |
| 2011 | $100,752 | $107,000 | $0 | $207,752 | $207,752 |
| 2010 | $109,741 | $107,000 | $0 | $216,741 | $216,741 |
| 2009 | $114,850 | $125,000 | $0 | $239,850 | $239,850 |
| 2008 | $116,813 | $133,000 | $0 | $249,813 | $249,813 |
| 2007 | $118,780 | $133,000 | $0 | $251,780 | $251,780 |
Deed and Sales History
| 1 | 08/29/2013 | WD | Warranty Deed | KARL, ELIZABETH A | HANSEN, TYLER H | | | $200,000.00 | 12722 | 4347756 |
| 2 | 12/19/2005 | WD | Warranty Deed | SMITH, ORVILLE W | KARL, ELIZABETH A | | | $246,450.00 | 56340 | 4157837 |
| 3 | 12/01/1995 | WD | Warranty Deed | GOFF, MABEL A | SMITH, ORVILLE W | | | $95,000.00 | 54434 | 95020486 |
| 4 | 05/01/1988 | OTHER | Other - Misc. Documents | GOFF, WARREN E | GOFF, MABEL A | | | $0.00 | 62626 | 0 |
| 5 | 07/01/1978 | OTHER | Other - Misc. Documents | Unknown | GOFF, WARREN E | | | $36,500.00 | 83498 | 336778 |
Payout Agreement
| No payout information available.. |