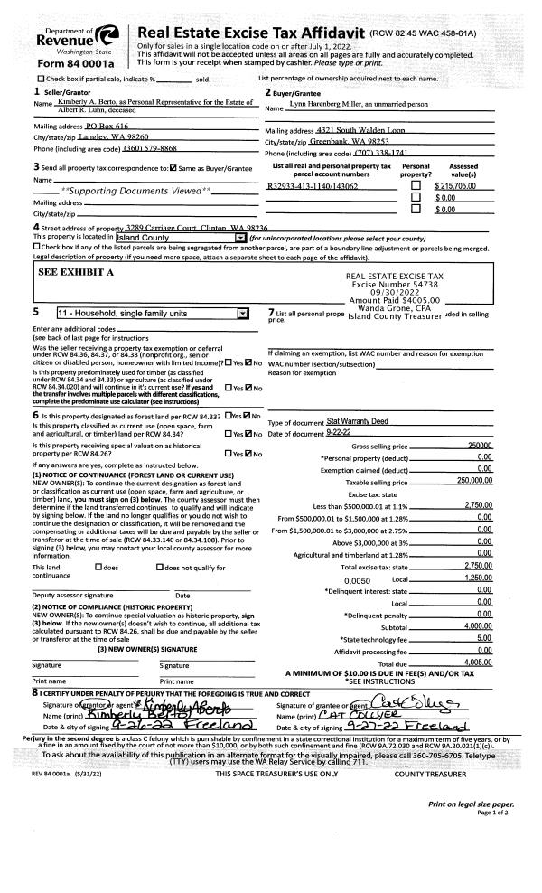
Property
Account |
| Property ID: | 720991 | Abbreviated Legal Description: | SUN VISTA LOT 5 BLK 4 EX E40' OF W52 |
| Geographic ID: | S8280-00-04005-0 | Agent Code: | |
| Type: | Real | | |
| Tax Area: | 710 - APPRAISER-S Whid Schl Dist, outside Langley, improved & 1 acre or less | Land Use Code | 11 |
| Open Space: | N | DFL | N |
| Historic Property: | N | Remodel Property: | N |
| Multi-Family Redevelopment: | N | | |
| Township: | | Section: | |
| Range: | |
Location |
| Address: | 2762 SUN VISTA CIR CLINTON, WA 98236 | Mapsco: | |
| Neighborhood: | Cycle 4 | Map ID: | 790 |
| Neighborhood CD: | 4 |
Owner |
| Name: | REINKEN, PAUL | Owner ID: | 302186 |
| Mailing Address: | SAMANTHA STUEHLER 2762 SUN VISTA CIRCLE CLINTON, WA 98236 | % Ownership: | 100.0000000000% |
| | | Exemptions: | |
Taxes and Assessment Details
Values
| (+) Improvement Homesite Value: | + | $0 | |
| (+) Improvement Non-Homesite Value: | + | $214,795 | |
| (+) Land Homesite Value: | + | $0 | |
| (+) Land Non-Homesite Value: | + | $380,000 | |
| (+) Curr Use (HS): | + | $0 | $0 |
| (+) Curr Use (NHS): | + | $0 | $0 |
| | | -------------------------- | |
| (=) Market Value: | = | $594,795 | |
| (–) Productivity Loss: | – | $0 | |
| | | -------------------------- | |
| (=) Subtotal: | = | $594,795 | |
| (+) Senior Appraised Value: | + | $0 | |
| (+) Non-Senior Appraised Value: | + | $594,795 | |
| | | -------------------------- | |
| (=) Total Appraised Value: | = | $594,795 | |
| (–) Senior Exemption Loss: | – | $0 | |
| (–) Exemption Loss: | – | $0 | |
| | | -------------------------- | |
| (=) Taxable Value: | = | $594,795 | |
Taxing Jurisdiction
| Owner: | REINKEN, PAUL | | |
| % Ownership: | 100.0000000000% | | |
| Total Value: | $594,795 | | |
| Tax Area: | 710 - APPRAISER-S Whid Schl Dist, outside Langley, improved & 1 acre or less |
| CF | Conservation Futures | 0.0316035091 | $594,795 | $594,795 | $18.80 | | |
| FIRE3 | Fire & Rescue Dist #3 S Whidbey GEN | 1.2004855531 | $594,795 | $594,795 | $714.04 | | |
| HOBOND | Hospital BOND | 0.1910887512 | $594,795 | $594,795 | $113.66 | | |
| HOGEN | Hospital GEN | 0.3902502903 | $594,795 | $594,795 | $232.12 | | |
| CE | County Current Expense | 0.3708482477 | $594,795 | $594,795 | $220.58 | | |
| CR | County Roads | 0.4584763726 | $594,795 | $594,795 | $272.70 | | |
| ISLANDEMS | Hospital GEN (EMS) | 0.5000000000 | $594,795 | $594,795 | $297.40 | | |
| LIB | Library Sno-Isle GEN | 0.3153421757 | $594,795 | $594,795 | $187.56 | | |
| PORTWHID | Port of S Whidbey GEN | 0.1094540357 | $594,795 | $594,795 | $65.10 | | |
| SCH206BOND | School 206 BOND | 0.3161759235 | $594,795 | $594,795 | $188.06 | | |
| SCH206MO | School 206 Enrichment | 0.4547169547 | $594,795 | $594,795 | $270.46 | | |
| ST | State School | 1.3035497053 | $594,795 | $594,795 | $775.34 | | |
| ST2 | State School Part 2 | 0.8169543533 | $594,795 | $594,795 | $485.92 | | |
| SWHIDPRBD | P & R S Whidbey BOND | 0.0152817568 | $594,795 | $594,795 | $9.09 | | |
| SWHIDPRBD2 | P & R S Whidbey BOND2 | 0.0138911264 | $594,795 | $594,795 | $8.26 | | |
| SWHIDPRMT | P & R S Whidbey GEN | 0.2053334452 | $594,795 | $594,795 | $122.13 | | |
| | Total Tax Rate: | 6.6934522006 | | | | | |
| | | | | Taxes w/Current Exemptions: | $3,981.22 | | |
| | | | | Taxes w/o Exemptions: | $3,981.22 | | |
Improvement / Building
| Improvement #1: | RESIDENTIAL | State Code: | Y | 1581.0 sqft | Value: | $214,795 |
| Bathrooms: | 1.75 | Bedrooms: | 2 | | Ceiling: | DRYWALL PAINTED | Exterior Wall/Cover: | PLY/HARDBOARD T-111 | | Floor Covering: | CARPET/VINYL 80-20 | Floor Structure: | WOOD W/SUBFLOOR | | Foundation: | CONCRETE | Interior Finish: | DRYWALL PAINT | | Plumbing Fixture Cnt: | 9 | Roof Slope: | 5" IN 12" | | Roof Structure/Cover: | CJ ALUMINIUM HEAVY |   |   |
|
| | Type | Description | Class CD | Sub Class CD | Year Built | Area |
| | BAS | BASE/MAIN FLOOR | 3 | 0 | 1974 | 1266.0 |
| | UB6 | BASEMENT UNFINISHED 6" | 3 | 0 | 1974 | 315.0 |
| | OP3 | OPEN PORCH W/ROOF | 3 | 0 | 1974 | 56.0 |
| | AGR | ATTACHED GARAGE | 3 | 0 | 1974 | 360.0 |
| | OWP | OPEN WOOD PORCH W/STEPS | 3 | 0 | 1974 | 370.5 |
| | OWR | OPEN WOOD PORCH W/STEPS/ROOF | 3 | 0 | 1974 | 32.0 |
| | DWN | DOWNSTAIRS LIVING AREA | 3 | 0 | 1974 | 315.0 |
Sketch
Property Image
Land
| 1 | 14 | SQ (08001-12000) | 0.2154 | 9384.00 | 0.00 | 0.00 | 1.00 | $380,000 | $0 |
Roll Value History
| 2026 | N/A | N/A | N/A | N/A | N/A |
| 2025 | $214,795 | $380,000 | $0 | $594,795 | $594,795 |
| 2024 | $217,897 | $380,000 | $0 | $597,897 | $597,897 |
| 2023 | $220,998 | $380,000 | $0 | $600,998 | $600,998 |
| 2022 | $202,923 | $350,000 | $0 | $552,923 | $552,923 |
| 2021 | $161,799 | $180,000 | $0 | $341,799 | $341,799 |
| 2020 | $153,505 | $180,000 | $0 | $333,505 | $132,524 |
| 2019 | $111,310 | $220,000 | $0 | $331,310 | $132,524 |
| 2018 | $111,730 | $200,000 | $0 | $311,730 | $56,613 |
| 2017 | $112,570 | $150,000 | $0 | $262,570 | $56,613 |
| 2016 | $114,250 | $150,000 | $0 | $264,250 | $56,613 |
| 2015 | $115,931 | $150,000 | $0 | $265,931 | $56,613 |
| 2014 | $111,725 | $140,250 | $0 | $251,975 | $56,613 |
| 2013 | $113,521 | $140,250 | $0 | $253,771 | $56,613 |
| 2012 | $115,318 | $140,250 | $0 | $255,568 | $91,532 |
| 2011 | $117,115 | $165,000 | $0 | $282,115 | $91,532 |
| 2010 | $129,414 | $165,000 | $0 | $294,414 | $91,532 |
| 2009 | $135,115 | $200,000 | $0 | $335,115 | $91,532 |
| 2008 | $136,704 | $232,766 | $0 | $369,470 | $91,531 |
| 2007 | $138,814 | $199,756 | $0 | $338,570 | $56,612 |
Deed and Sales History
| 1 | 11/11/2021 | WD | Warranty Deed | DUCHESSA JTWROS, DARLA J | REINKEN, PAUL | | | $585,000.00 | 51051 | 4534439 |
| 2 | 04/26/2018 | QCD | Quit Claim Deed | LASLEY, LORETTA | DUCHESSA JTWROS, DARLA J | | | $0.00 | 34110 | 4444483 |
| 3 | 11/27/2011 | ESTSEPPROP | Establish Separate Property | LASLEY, WILLIAM M | LASLEY, LORETTA | | | $0.00 | 6317 | 4305856 |
| 4 | 10/01/1987 | WD | Warranty Deed | FULLER, JOHN A | LASLEY, WILLIAM M | | | $80,500.00 | 73234 | 87014181 |
| 5 | 06/01/1973 | EXECUTORD | Executor Deed | SUNLIGHT, BEACH W | FULLER, JOHN A | | | $0.00 | 47810 | 0 |
| 6 | 01/01/1900 | OTHER | Other - Misc. Documents | Unknown | SUNLIGHT, BEACH W | | | $0.00 | 0 | 0 |
Payout Agreement
| No payout information available.. |