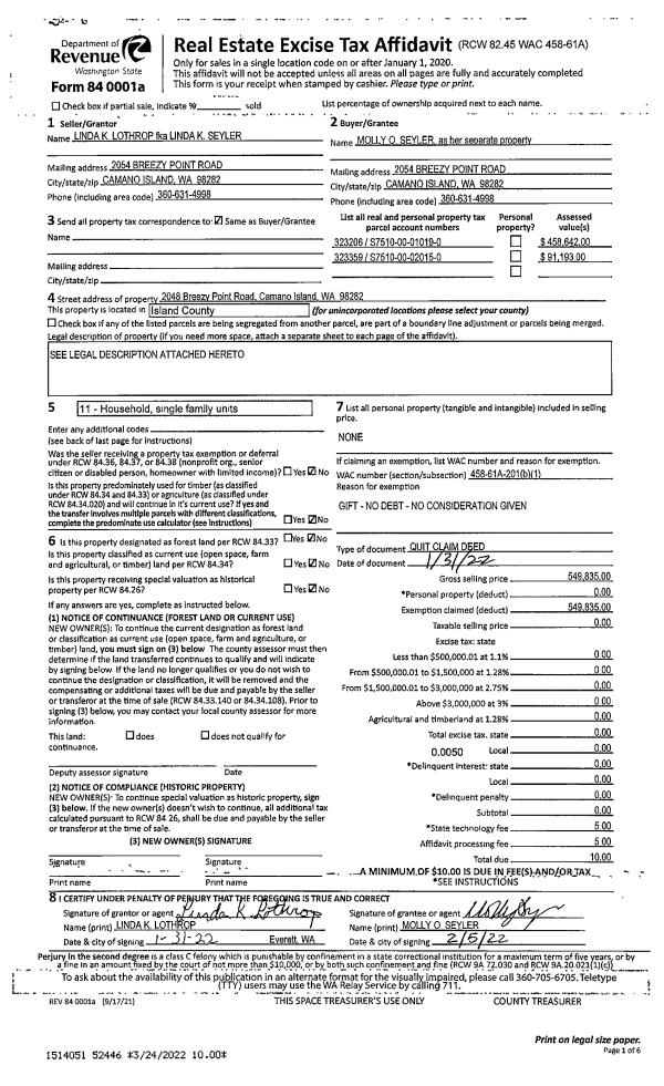
Property
Account |
| Property ID: | 72110 | Abbreviated Legal Description: | 54 - N/2 W/2 N/2 N/2 SW SE SUB EZ S15' EX RD |
| Geographic ID: | R23102-129-3040 | Agent Code: | |
| Type: | Real | | |
| Tax Area: | 512 - APPRAISER-Stan/Cam Schl Dist, improved, greater than 1 acre | Land Use Code | 11 |
| Open Space: | N | DFL | N |
| Historic Property: | N | Remodel Property: | N |
| Multi-Family Redevelopment: | N | | |
| Township: | 31 | Section: | 02 |
| Range: | R2 |
Location |
| Address: | 303 DOVE DR CAMANO ISLAND, WA 98282 | Mapsco: | |
| Neighborhood: | Cycle 5 | Map ID: | 454 |
| Neighborhood CD: | 5 |
Owner |
| Name: | DEGUTIS, CHRISTOPHER JOSEPH | Owner ID: | 316209 |
| Mailing Address: | DENISE ADELE DEGUTIS 303 DOVE DRIVE CAMANO ISLAND, WA 98282 | % Ownership: | 100.0000000000% |
| | | Exemptions: | |
Taxes and Assessment Details
Values
| (+) Improvement Homesite Value: | + | $0 | |
| (+) Improvement Non-Homesite Value: | + | $425,849 | |
| (+) Land Homesite Value: | + | $0 | |
| (+) Land Non-Homesite Value: | + | $290,000 | |
| (+) Curr Use (HS): | + | $0 | $0 |
| (+) Curr Use (NHS): | + | $0 | $0 |
| | | -------------------------- | |
| (=) Market Value: | = | $715,849 | |
| (–) Productivity Loss: | – | $0 | |
| | | -------------------------- | |
| (=) Subtotal: | = | $715,849 | |
| (+) Senior Appraised Value: | + | $0 | |
| (+) Non-Senior Appraised Value: | + | $715,849 | |
| | | -------------------------- | |
| (=) Total Appraised Value: | = | $715,849 | |
| (–) Senior Exemption Loss: | – | $0 | |
| (–) Exemption Loss: | – | $0 | |
| | | -------------------------- | |
| (=) Taxable Value: | = | $715,849 | |
Taxing Jurisdiction
| Owner: | DEGUTIS, CHRISTOPHER JOSEPH | | |
| % Ownership: | 100.0000000000% | | |
| Total Value: | $715,849 | | |
| Tax Area: | 512 - APPRAISER-Stan/Cam Schl Dist, improved, greater than 1 acre |
| CF | Conservation Futures | 0.0316035091 | $715,849 | $715,849 | $22.62 | | |
| EMS1 | Fire & Rescue Dist #1 Camano GEN (EMS) | 0.3677864386 | $715,849 | $715,849 | $263.28 | | |
| FIRE1 | Fire & Rescue Dist #1 Camano GEN | 1.2502910536 | $715,849 | $715,849 | $895.02 | | |
| FIRE1BOND | Fire & Rescue Dist #1 Camano BOND | 0.1570001679 | $715,849 | $715,849 | $112.39 | | |
| CE | County Current Expense | 0.3708482477 | $715,849 | $715,849 | $265.47 | | |
| CR | County Roads | 0.4584763726 | $715,849 | $715,849 | $328.20 | | |
| LCIB | Library Sno-Isle BOND (Camano Island) | 0.0396325772 | $715,849 | $715,849 | $28.37 | | |
| LIB | Library Sno-Isle GEN | 0.3153421757 | $715,849 | $715,849 | $225.74 | | |
| SCH205_401 | School 205-401 Enrichment | 1.2698420524 | $715,849 | $715,849 | $909.02 | | |
| SCH205BOND | School 205-401 BOND | 0.9396497583 | $715,849 | $715,849 | $672.65 | | |
| ST | State School | 1.3035497053 | $715,849 | $715,849 | $933.14 | | |
| ST2 | State School Part 2 | 0.8169543533 | $715,849 | $715,849 | $584.82 | | |
| | Total Tax Rate: | 7.3209764117 | | | | | |
| | | | | Taxes w/Current Exemptions: | $5,240.72 | | |
| | | | | Taxes w/o Exemptions: | $5,240.72 | | |
Improvement / Building
| Improvement #1: | RESIDENTIAL | State Code: | Y | 2726.0 sqft | Value: | $425,849 |
| Bathrooms: | 2.5 | Bedrooms: | 5 | | Ceiling: | DRYWALL PAINTED | Exterior Wall/Cover: | PLY/HARDBOARD T-111 | | Floor Covering: | HARDWOOD/CARP 20-80 | Floor Structure: | WOOD W/SUBFLOOR | | Foundation: | CONCRETE | Heating: | FHA GAS | | Interior Finish: | DRYWALL PAINT | Plumbing Fixture Cnt: | 12 | | Roof Slope: | 6" IN 12" | Roof Structure/Cover: | CJ ASPHALT |
|
| | Type | Description | Class CD | Sub Class CD | Year Built | Area |
| | BAS | BASE/MAIN FLOOR | 3 | 0 | 1993 | 1426.0 |
| | UB8 | BASEMENT UNFINISHED 8" | 3 | 0 | 1993 | 1300.0 |
| | UTY | STORAGE/UTILITY | 3 | 0 | 1993 | 120.0 |
| | AGR | ATTACHED GARAGE | 3 | 0 | 1993 | 618.0 |
| | UPS | UPPER STORY | 3 | 0 | 1993 | 1300.0 |
| | OWR | OPEN WOOD PORCH W/STEPS/ROOF | 3 | 0 | 1993 | 162.0 |
Sketch
Property Image
Land
| 1 | 18 | AC (02.01-03.00) | 2.3900 | 104108.40 | 0.00 | 0.00 | 1.00 | $290,000 | $0 |
Roll Value History
| 2026 | N/A | N/A | N/A | N/A | N/A |
| 2025 | $425,849 | $290,000 | $0 | $715,849 | $715,849 |
| 2024 | $431,091 | $280,000 | $0 | $711,091 | $711,091 |
| 2023 | $436,331 | $270,000 | $0 | $706,331 | $706,331 |
| 2022 | $399,846 | $260,000 | $0 | $659,846 | $659,846 |
| 2021 | $345,969 | $180,000 | $0 | $525,969 | $525,969 |
| 2020 | $337,831 | $150,000 | $0 | $487,831 | $487,831 |
| 2019 | $266,281 | $200,000 | $0 | $466,281 | $466,281 |
| 2018 | $277,907 | $180,000 | $0 | $457,907 | $457,907 |
| 2017 | $279,677 | $140,000 | $0 | $419,677 | $419,677 |
| 2016 | $283,217 | $140,000 | $0 | $423,217 | $423,217 |
| 2015 | $252,706 | $89,600 | $0 | $342,306 | $342,306 |
| 2014 | $255,800 | $89,600 | $0 | $345,400 | $345,400 |
| 2013 | $258,896 | $89,600 | $0 | $348,496 | $348,496 |
| 2012 | $261,991 | $89,600 | $0 | $351,591 | $351,591 |
| 2011 | $265,086 | $112,000 | $0 | $377,086 | $377,086 |
| 2010 | $232,813 | $112,000 | $0 | $344,813 | $344,813 |
| 2009 | $232,001 | $135,000 | $0 | $367,001 | $367,001 |
| 2008 | $234,966 | $136,000 | $0 | $370,966 | $370,966 |
| 2007 | $237,901 | $130,000 | $0 | $367,901 | $367,901 |
Deed and Sales History
| 1 | 04/22/2025 | WD | Warranty Deed | WASSMANN, KELLY | DEGUTIS, CHRISTOPHER JOSEPH | | | $930,000.00 | 63227 | 4584881 |
| 2 | 11/08/2021 | QCD | Quit Claim Deed | WASSMANN, KELLY | WASSMANN, KELLY | | | $0.00 | 50842 | 4533599 |
| 3 | 01/14/2019 | WD | Warranty Deed | NYGARD, JOEL P | WASSMANN, KELLY | | | $456,500.00 | 37329 | 4458032 |
| 4 | 08/03/2011 | WD | Warranty Deed | SCAPPINI, JAMES B | NYGARD, JOEL P | | | $250,000.00 | 5138 | 4299143 |
| 5 | 05/01/1990 | WD | Warranty Deed | FINE, DAVID | SCAPPINI, JAMES B | | | $17,500.00 | 3069 | 90010016 |
| 6 | 01/01/1900 | OTHER | Other - Misc. Documents | Unknown | FINE, DAVID | | | $0.00 | 0 | 0 |
Payout Agreement
| No payout information available.. |