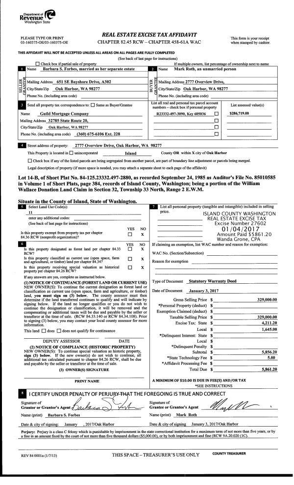
Property
Account |
| Property ID: | 721115 | Abbreviated Legal Description: | DEC PK VU 2 LOT 16 BLK 2 |
| Geographic ID: | S6455-02-02016-0 | Agent Code: | |
| Type: | Real | | |
| Tax Area: | 110 - APPRAISER-OH Schl Dist, outside OH, improved & 1 acre or less | Land Use Code | 11 |
| Open Space: | N | DFL | N |
| Historic Property: | N | Remodel Property: | N |
| Multi-Family Redevelopment: | N | | |
| Township: | | Section: | |
| Range: | |
Location |
| Address: | 673 CRANBERRY DR OAK HARBOR, WA 98277 | Mapsco: | |
| Neighborhood: | Cycle 6 | Map ID: | 273 |
| Neighborhood CD: | 6 |
Owner |
| Name: | MORRISS, ALBERT P | Owner ID: | 190176 |
| Mailing Address: | DAPHIN M MORRISS 673 CRANBERRY DR OAK HARBOR, WA 98277 | % Ownership: | 100.0000000000% |
| | | Exemptions: | |
Taxes and Assessment Details
Values
| (+) Improvement Homesite Value: | + | $0 | |
| (+) Improvement Non-Homesite Value: | + | $198,537 | |
| (+) Land Homesite Value: | + | $0 | |
| (+) Land Non-Homesite Value: | + | $200,000 | |
| (+) Curr Use (HS): | + | $0 | $0 |
| (+) Curr Use (NHS): | + | $0 | $0 |
| | | -------------------------- | |
| (=) Market Value: | = | $398,537 | |
| (–) Productivity Loss: | – | $0 | |
| | | -------------------------- | |
| (=) Subtotal: | = | $398,537 | |
| (+) Senior Appraised Value: | + | $0 | |
| (+) Non-Senior Appraised Value: | + | $398,537 | |
| | | -------------------------- | |
| (=) Total Appraised Value: | = | $398,537 | |
| (–) Senior Exemption Loss: | – | $0 | |
| (–) Exemption Loss: | – | $0 | |
| | | -------------------------- | |
| (=) Taxable Value: | = | $398,537 | |
Taxing Jurisdiction
| Owner: | MORRISS, ALBERT P | | |
| % Ownership: | 100.0000000000% | | |
| Total Value: | $398,537 | | |
| Tax Area: | 110 - APPRAISER-OH Schl Dist, outside OH, improved & 1 acre or less |
| CF | Conservation Futures | 0.0316035091 | $398,537 | $398,537 | $12.60 | | |
| CEM1 | Cemetery #1 | 0.0040320932 | $398,537 | $398,537 | $1.61 | | |
| FIRE2 | Fire & Rescue Dist #2 N Whidbey GEN | 0.5475949600 | $398,537 | $398,537 | $218.24 | | |
| HOBOND | Hospital BOND | 0.1910887512 | $398,537 | $398,537 | $76.16 | | |
| HOGEN | Hospital GEN | 0.3902502903 | $398,537 | $398,537 | $155.53 | | |
| CE | County Current Expense | 0.3708482477 | $398,537 | $398,537 | $147.80 | | |
| CR | County Roads | 0.4584763726 | $398,537 | $398,537 | $182.72 | | |
| ISLANDEMS | Hospital GEN (EMS) | 0.5000000000 | $398,537 | $398,537 | $199.27 | | |
| LIB | Library Sno-Isle GEN | 0.3153421757 | $398,537 | $398,537 | $125.68 | | |
| NWHIDPRMT | P & R N Whidbey GEN | 0.2004466701 | $398,537 | $398,537 | $79.89 | | |
| SCH201MO | School 201 Enrichment | 1.8559231640 | $398,537 | $398,537 | $739.65 | | |
| ST | State School | 1.3035497053 | $398,537 | $398,537 | $519.51 | | |
| ST2 | State School Part 2 | 0.8169543533 | $398,537 | $398,537 | $325.59 | | |
| | Total Tax Rate: | 6.9861102925 | | | | | |
| | | | | Taxes w/Current Exemptions: | $2,784.25 | | |
| | | | | Taxes w/o Exemptions: | $2,784.25 | | |
Improvement / Building
| Improvement #1: | RESIDENTIAL | State Code: | Y | 1805.0 sqft | Value: | $198,537 |
| Bathrooms: | 2 | Bedrooms: | 3 | | Ceiling: | DRY WALL SPRAYED | Exterior Wall/Cover: | WOOD SIDING | | Floor Covering: | HARDWOOD/CARP 20-80 | Floor Structure: | WOOD W/SUBFLOOR | | Foundation: | CONCRETE BLOCKS | Heating: | BASEBOARD ELECTRIC | | Interior Finish: | DRYWALL PAINT | Plumbing Fixture Cnt: | 9 | | Roof Slope: | 4" IN 12" | Roof Structure/Cover: | CJ WOOD SHAKES |
|
| | Type | Description | Class CD | Sub Class CD | Year Built | Area |
| | BAS | BASE/MAIN FLOOR | 3 | 0 | 1972 | 1469.0 |
| | BGR | BASEMENT GARAGE | 3 | 0 | 1972 | 528.0 |
| | OWP | OPEN WOOD PORCH W/STEPS | 3 | 0 | 1972 | 122.0 |
| | OWP | OPEN WOOD PORCH W/STEPS | 3 | 0 | 1972 | 66.0 |
| | OWC | OPEN WOOD PORCH W/STEPS/ROOF/C | 3 | 0 | 1972 | 144.0 |
| | DWN | DOWNSTAIRS LIVING AREA | 3 | 0 | 1972 | 336.0 |
Sketch
Property Image
Land
| 1 | 14 | SQ (08001-12000) | 0.0000 | 0.00 | 0.00 | 0.00 | 1.00 | $200,000 | $0 |
Roll Value History
| 2026 | N/A | N/A | N/A | N/A | N/A |
| 2025 | $198,537 | $200,000 | $0 | $398,537 | $398,537 |
| 2024 | $206,299 | $180,000 | $0 | $386,299 | $386,299 |
| 2023 | $209,841 | $180,000 | $0 | $389,841 | $389,841 |
| 2022 | $177,615 | $150,000 | $0 | $327,615 | $327,615 |
| 2021 | $157,240 | $100,000 | $0 | $257,240 | $257,240 |
| 2020 | $154,281 | $75,000 | $0 | $229,281 | $229,281 |
| 2019 | $116,129 | $140,000 | $0 | $256,129 | $256,129 |
| 2018 | $116,627 | $130,000 | $0 | $246,627 | $246,627 |
| 2017 | $117,624 | $110,000 | $0 | $227,624 | $227,624 |
| 2016 | $119,673 | $85,000 | $0 | $204,673 | $204,673 |
| 2015 | $121,667 | $50,000 | $0 | $171,667 | $171,667 |
| 2014 | $123,662 | $45,000 | $0 | $168,662 | $168,662 |
| 2013 | $125,657 | $45,000 | $0 | $170,657 | $170,657 |
| 2012 | $127,653 | $55,250 | $0 | $182,903 | $182,903 |
| 2011 | $129,646 | $65,000 | $0 | $194,646 | $194,646 |
| 2010 | $138,470 | $65,000 | $0 | $203,470 | $203,470 |
| 2009 | $144,638 | $80,000 | $0 | $224,638 | $224,638 |
| 2008 | $146,627 | $87,000 | $0 | $233,627 | $233,627 |
| 2007 | $131,954 | $103,678 | $0 | $235,632 | $235,632 |
Deed and Sales History
| 1 | 04/29/2003 | WD | Warranty Deed | BRYANT, SONJA I | MORRISS, ALBERT P | | | $168,500.00 | 31832 | 4057221 |
| 2 | 06/01/1994 | OTHER | Other - Misc. Documents | BRYANT, JACOB E | BRYANT, SONJA I | | | $0.00 | 65930 | 0 |
| 3 | 01/01/1900 | OTHER | Other - Misc. Documents | Unknown | BRYANT, JACOB E | | | $0.00 | 0 | 0 |
Payout Agreement
| No payout information available.. |