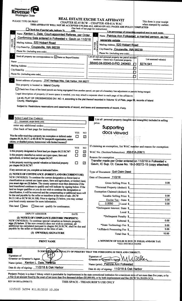
Property
Account |
| Property ID: | 7218 | Abbreviated Legal Description: | 8 H CROCKETT DC - BG 1/4 CR SEC 10 & 11-31-1E S189.42' TPB S423.64' W499.89' TO ELN TR AF#205456 N23*W350. 72' N11*W98.92' N30' TO NLN TR AF#76406 E651' TPB EX RD EX E258' SUB TO EZ 8 & 8X COMB |
| Geographic ID: | R13110-222-4880 | Agent Code: | |
| Type: | Real | | |
| Tax Area: | 312 - APPRAISER-Cpvl Schl Dist, outside Cpvl, improved, greater than 1 acre | Land Use Code | 11 |
| Open Space: | N | DFL | N |
| Historic Property: | N | Remodel Property: | N |
| Multi-Family Redevelopment: | N | | |
| Township: | 31 | Section: | 10 |
| Range: | R1 |
Location |
| Address: | 843 PATMORE RD COUPEVILLE, WA 98239 | Mapsco: | |
| Neighborhood: | Cycle 2 | Map ID: | 47 |
| Neighborhood CD: | 2 |
Owner |
| Name: | FRANZEN, DEREK B | Owner ID: | 6102 |
| Mailing Address: | 843 PATMORE RD COUPEVILLE, WA 98239-9501 | % Ownership: | 100.0000000000% |
| | | Exemptions: | |
Taxes and Assessment Details
Values
| (+) Improvement Homesite Value: | + | $0 | |
| (+) Improvement Non-Homesite Value: | + | $459,849 | |
| (+) Land Homesite Value: | + | $0 | |
| (+) Land Non-Homesite Value: | + | $324,762 | |
| (+) Curr Use (HS): | + | $0 | $0 |
| (+) Curr Use (NHS): | + | $0 | $0 |
| | | -------------------------- | |
| (=) Market Value: | = | $784,611 | |
| (–) Productivity Loss: | – | $0 | |
| | | -------------------------- | |
| (=) Subtotal: | = | $784,611 | |
| (+) Senior Appraised Value: | + | $0 | |
| (+) Non-Senior Appraised Value: | + | $784,611 | |
| | | -------------------------- | |
| (=) Total Appraised Value: | = | $784,611 | |
| (–) Senior Exemption Loss: | – | $0 | |
| (–) Exemption Loss: | – | $0 | |
| | | -------------------------- | |
| (=) Taxable Value: | = | $784,611 | |
Taxing Jurisdiction
| Owner: | FRANZEN, DEREK B | | |
| % Ownership: | 100.0000000000% | | |
| Total Value: | $784,611 | | |
| Tax Area: | 312 - APPRAISER-Cpvl Schl Dist, outside Cpvl, improved, greater than 1 acre |
| CF | Conservation Futures | 0.0316035091 | $784,611 | $784,611 | $24.80 | | |
| CEM2 | Cemetery #2 | 0.0095056933 | $784,611 | $784,611 | $7.46 | | |
| FIRE5 | Fire & Rescue Dist #5 C Whidbey GEN | 1.2008080668 | $784,611 | $784,611 | $942.17 | | |
| FIRE5BOND | Fire & Rescue Dist #5 C Whidbey BOND | 0.1400090713 | $784,611 | $784,611 | $109.85 | | |
| HOBOND | Hospital BOND | 0.1910887512 | $784,611 | $784,611 | $149.93 | | |
| HOGEN | Hospital GEN | 0.3902502903 | $784,611 | $784,611 | $306.19 | | |
| CE | County Current Expense | 0.3708482477 | $784,611 | $784,611 | $290.97 | | |
| CR | County Roads | 0.4584763726 | $784,611 | $784,611 | $359.73 | | |
| ISLANDEMS | Hospital GEN (EMS) | 0.5000000000 | $784,611 | $784,611 | $392.31 | | |
| LIB | Library Sno-Isle GEN | 0.3153421757 | $784,611 | $784,611 | $247.42 | | |
| LIBCAP | Library Sno-Isle BOND (Cap Fac Imp Area) | 0.0543427938 | $784,611 | $784,611 | $42.64 | | |
| POCOUP | Port of Coupeville GEN | 0.1093371703 | $784,611 | $784,611 | $85.79 | | |
| POCOUPIDD | Port of Coupeville IDD | 0.3409740022 | $784,611 | $784,611 | $267.53 | | |
| COUPSDTECH | School 204 CP (TECH) | 0.7545480007 | $784,611 | $784,611 | $592.03 | | |
| SCH204MO | School 204 Enrichment | 0.6716186034 | $784,611 | $784,611 | $526.96 | | |
| ST | State School | 1.3035497053 | $784,611 | $784,611 | $1,022.78 | | |
| ST2 | State School Part 2 | 0.8169543533 | $784,611 | $784,611 | $640.99 | | |
| | Total Tax Rate: | 7.6592568070 | | | | | |
| | | | | Taxes w/Current Exemptions: | $6,009.55 | | |
| | | | | Taxes w/o Exemptions: | $6,009.55 | | |
Improvement / Building
| Improvement #1: | RESIDENTIAL | State Code: | Y | 2825.9 sqft | Value: | $459,849 |
| Bathrooms: | 3 | Bedrooms: | 2 | | Ceiling: | DRYWALL PAINTED | Cooling: | HEAT PUMP/CONV/V | | Exterior Wall/Cover: | WOOD SIDING | Floor Covering: | CARPET/VINYL 80-20 | | Floor Structure: | WOOD W/SUBFLOOR | Foundation: | CONCRETE | | Interior Finish: | DRYWALL PAINT | Plumbing Fixture Cnt: | 13 | | Roof Slope: | 12" IN 12" | Roof Structure/Cover: | BEAM ASPHALT |
|
| | Type | Description | Class CD | Sub Class CD | Year Built | Area |
| | BAS | BASE/MAIN FLOOR | 3 | 0 | 1990 | 2097.9 |
| | oCAR | CARPORT | 3 | 0 | 1990 | 720.0 |
| | OWP | OPEN WOOD PORCH W/STEPS | 3 | 0 | 1990 | 326.3 |
| | OWC | OPEN WOOD PORCH W/STEPS/ROOF/C | 3 | 0 | 1990 | 16.0 |
| | oPOL | POLE BARN | 3 | 0 | 1989 | 1920.0 |
| | oCAR | CARPORT | 2 | 0 | 1990 | 200.0 |
| | UPS | UPPER STORY | 3 | 0 | 1990 | 728.0 |
Sketch
Property Image
Land
| 1 | HS | HOMESITE | 1.0000 | 43560.00 | 0.00 | 0.00 | 1.00 | $220,000 | $0 |
| 2 | 91 | UNDEVELOPED LAND-METES AND BOUNDS | 2.5500 | 111078.00 | 0.00 | 0.00 | 1.00 | $104,762 | $0 |
Roll Value History
| 2026 | N/A | N/A | N/A | N/A | N/A |
| 2025 | $459,849 | $324,762 | $0 | $784,611 | $784,611 |
| 2024 | $479,167 | $300,000 | $0 | $779,167 | $779,167 |
| 2023 | $485,450 | $280,000 | $0 | $765,450 | $765,450 |
| 2022 | $445,263 | $260,000 | $0 | $705,263 | $705,263 |
| 2021 | $392,131 | $170,000 | $0 | $562,131 | $562,131 |
| 2020 | $383,179 | $160,000 | $0 | $543,179 | $543,179 |
| 2019 | $304,072 | $180,000 | $0 | $484,072 | $484,072 |
| 2018 | $283,743 | $160,000 | $0 | $443,743 | $443,743 |
| 2017 | $285,157 | $150,000 | $0 | $435,157 | $435,157 |
| 2016 | $288,095 | $120,000 | $0 | $408,095 | $408,095 |
| 2015 | $279,001 | $88,750 | $0 | $367,751 | $367,751 |
| 2014 | $282,009 | $88,750 | $0 | $370,759 | $370,759 |
| 2013 | $285,013 | $111,825 | $0 | $396,838 | $396,838 |
| 2012 | $295,875 | $111,825 | $0 | $407,700 | $407,700 |
| 2011 | $298,880 | $124,250 | $0 | $423,130 | $423,130 |
| 2010 | $294,504 | $124,250 | $0 | $418,754 | $418,754 |
| 2009 | $305,630 | $142,000 | $0 | $447,630 | $447,630 |
| 2008 | $309,717 | $106,500 | $0 | $416,217 | $416,217 |
| 2007 | $313,830 | $94,608 | $0 | $408,438 | $408,438 |
Deed and Sales History
| 1 | 01/01/1983 | PACD | Purchaser's Assignment | FORREST, ANTHONY E | FRANZEN, DEREK B | | | $32,383.00 | 30143 | 404990 |
| 2 | 07/01/1981 | EXECUTORD | Executor Deed | NUSS, ANN E | FORREST, ANTHONY E | | | $31,430.00 | 12326 | 386044 |
| 3 | 01/01/1900 | OTHER | Other - Misc. Documents | Unknown | NUSS, ANN E | | | $0.00 | 0 | 0 |
Payout Agreement
| No payout information available.. |