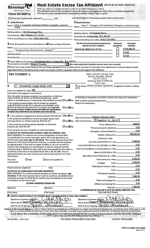
Property
Account |
| Property ID: | 722409 | Abbreviated Legal Description: | UTSALADY BCH LOT 8 INCL ADJ TIDES |
| Geographic ID: | S8350-00-00008-0 | Agent Code: | |
| Type: | Real | | |
| Tax Area: | 510 - APPRAISER-Stan/Cam Schl Dist, improved & 1 acre or less | Land Use Code | 11 |
| Open Space: | N | DFL | N |
| Historic Property: | N | Remodel Property: | N |
| Multi-Family Redevelopment: | N | | |
| Township: | | Section: | |
| Range: | |
Location |
| Address: | 168 LOON ASEA LN CAMANO ISLAND, WA 98282 | Mapsco: | |
| Neighborhood: | North Camano | Map ID: | 561 |
| Neighborhood CD: | 06-C |
Owner |
| Name: | BEAMAN JTWROS, DEREK M | Owner ID: | 272825 |
| Mailing Address: | WENDY L PAUTZ JTWROS 1301 SPRING STREET APT 5E SEATTLE, WA 98104 | % Ownership: | 100.0000000000% |
| | | Exemptions: | |
Taxes and Assessment Details
Values
| (+) Improvement Homesite Value: | + | $0 | |
| (+) Improvement Non-Homesite Value: | + | $561,888 | |
| (+) Land Homesite Value: | + | $0 | |
| (+) Land Non-Homesite Value: | + | $900,600 | |
| (+) Curr Use (HS): | + | $0 | $0 |
| (+) Curr Use (NHS): | + | $0 | $0 |
| | | -------------------------- | |
| (=) Market Value: | = | $1,462,488 | |
| (–) Productivity Loss: | – | $0 | |
| | | -------------------------- | |
| (=) Subtotal: | = | $1,462,488 | |
| (+) Senior Appraised Value: | + | $0 | |
| (+) Non-Senior Appraised Value: | + | $1,462,488 | |
| | | -------------------------- | |
| (=) Total Appraised Value: | = | $1,462,488 | |
| (–) Senior Exemption Loss: | – | $0 | |
| (–) Exemption Loss: | – | $0 | |
| | | -------------------------- | |
| (=) Taxable Value: | = | $1,462,488 | |
Taxing Jurisdiction
| Owner: | BEAMAN JTWROS, DEREK M | | |
| % Ownership: | 100.0000000000% | | |
| Total Value: | $1,462,488 | | |
| Tax Area: | 510 - APPRAISER-Stan/Cam Schl Dist, improved & 1 acre or less |
| CF | Conservation Futures | 0.0316035091 | $1,462,488 | $1,462,488 | $46.22 | | |
| EMS1 | Fire & Rescue Dist #1 Camano GEN (EMS) | 0.3677864386 | $1,462,488 | $1,462,488 | $537.88 | | |
| FIRE1 | Fire & Rescue Dist #1 Camano GEN | 1.2502910536 | $1,462,488 | $1,462,488 | $1,828.54 | | |
| FIRE1BOND | Fire & Rescue Dist #1 Camano BOND | 0.1570001679 | $1,462,488 | $1,462,488 | $229.61 | | |
| CE | County Current Expense | 0.3708482477 | $1,462,488 | $1,462,488 | $542.36 | | |
| CR | County Roads | 0.4584763726 | $1,462,488 | $1,462,488 | $670.52 | | |
| LCIB | Library Sno-Isle BOND (Camano Island) | 0.0396325772 | $1,462,488 | $1,462,488 | $57.96 | | |
| LIB | Library Sno-Isle GEN | 0.3153421757 | $1,462,488 | $1,462,488 | $461.18 | | |
| SCH205_401 | School 205-401 Enrichment | 1.2698420524 | $1,462,488 | $1,462,488 | $1,857.13 | | |
| SCH205BOND | School 205-401 BOND | 0.9396497583 | $1,462,488 | $1,462,488 | $1,374.23 | | |
| ST | State School | 1.3035497053 | $1,462,488 | $1,462,488 | $1,906.43 | | |
| ST2 | State School Part 2 | 0.8169543533 | $1,462,488 | $1,462,488 | $1,194.79 | | |
| | Total Tax Rate: | 7.3209764117 | | | | | |
| | | | | Taxes w/Current Exemptions: | $10,706.85 | | |
| | | | | Taxes w/o Exemptions: | $10,706.85 | | |
Improvement / Building
| Improvement #1: | RESIDENTIAL | State Code: | Y | 2340.5 sqft | Value: | $561,888 |
| Bathrooms: | 2.5 | Bedrooms: | 2 | | Ceiling: | DRYWALL PAINTED | Exterior Wall/Cover: | WOOD SIDING | | Floor Covering: | COLORED CONCRETE | Floor Structure: | WOOD W/SUBFLOOR | | Foundation: | CONCRETE | Heating: | FHA GAS | | Interior Finish: | DRYWALL PAINT | Plumbing Fixture Cnt: | 13 | | Roof Slope: | FLAT | Roof Structure/Cover: | CJ ALUMINIUM HEAVY |
|
| | Type | Description | Class CD | Sub Class CD | Year Built | Area |
| | BAS | BASE/MAIN FLOOR | 5 | 0 | 2017 | 1376.0 |
| | UPS | UPPER STORY | 5 | 0 | 2017 | 388.5 |
| | BIG | BUILT IN GARAGE | 5 | 0 | 2017 | 388.5 |
| | DWN | DOWNSTAIRS LIVING AREA | 5 | 0 | 2017 | 576.0 |
| | OWP | OPEN WOOD PORCH W/STEPS | 5 | 0 | 2017 | 140.0 |
| | OWP | OPEN WOOD PORCH W/STEPS | 5 | 0 | 2017 | 584.0 |
Sketch
Property Image
Land
| 1 | MB | MEDIUM BANK | 0.1690 | 7361.64 | 60.00 | 0.00 | 1.00 | $900,000 | $0 |
| 2 | 55 | TIDES | 0.0000 | 0.00 | 60.00 | 0.00 | 1.00 | $600 | $0 |
Roll Value History
| 2026 | N/A | N/A | N/A | N/A | N/A |
| 2025 | $561,888 | $900,600 | $0 | $1,462,488 | $1,462,488 |
| 2024 | $566,457 | $825,600 | $0 | $1,392,057 | $1,392,057 |
| 2023 | $571,026 | $750,600 | $0 | $1,321,626 | $1,321,626 |
| 2022 | $521,213 | $680,600 | $0 | $1,201,813 | $1,201,813 |
| 2021 | $456,820 | $550,600 | $0 | $1,007,420 | $1,007,420 |
| 2020 | $443,840 | $500,600 | $0 | $944,440 | $944,440 |
| 2019 | $356,034 | $500,600 | $0 | $856,634 | $856,634 |
| 2018 | $358,724 | $475,600 | $0 | $834,324 | $834,324 |
| 2017 | $125,795 | $450,600 | $0 | $576,395 | $576,395 |
| 2016 | $111,095 | $450,600 | $0 | $561,695 | $561,695 |
| 2015 | $113,116 | $450,600 | $0 | $563,716 | $563,716 |
| 2014 | $115,134 | $450,600 | $0 | $565,734 | $565,734 |
| 2013 | $117,155 | $450,600 | $0 | $567,755 | $567,755 |
| 2012 | $119,174 | $452,487 | $0 | $571,661 | $571,661 |
| 2011 | $121,195 | $476,270 | $0 | $597,465 | $597,465 |
| 2010 | $135,312 | $476,270 | $0 | $611,582 | $611,582 |
| 2009 | $141,400 | $511,018 | $0 | $652,418 | $652,418 |
| 2008 | $143,443 | $511,018 | $0 | $654,461 | $654,461 |
| 2007 | $145,487 | $510,598 | $0 | $656,085 | $656,085 |
Deed and Sales History
| 1 | 11/11/2015 | WD | Warranty Deed | CURTIN III TRUSTEE, JOHN M | BEAMAN JTWROS, DEREK M | | | $522,000.00 | 22245 | 4389899 |
| 2 | 06/09/2012 | TRUSTEED | Trustee's Deed | CURTIN III, JOHN M | CURTIN III TRUSTEE, JOHN M | | | $0.00 | 8275 | 4319513 |
| 3 | 02/27/2004 | TRUSTEED | Trustee's Deed | WAGNER, JEROME F | CURTIN III, JOHN M | | | $460,000.00 | 40838 | 4093201 |
| 4 | 12/22/2003 | ESTSEPPROP | Establish Separate Property | WAGNER, JEROME | WAGNER, JEROME | | | $0.00 | 35740 | 4086962 |
| 5 | 01/01/1900 | OTHER | Other - Misc. Documents | WAGNER, JEROME | WAGNER, JEROME F | | | $0.00 | 0 | 0 |
| 6 | 01/01/1900 | OTHER | Other - Misc. Documents | Unknown | WAGNER, JEROME | | | $0.00 | 0 | 0 |
Payout Agreement
| No payout information available.. |