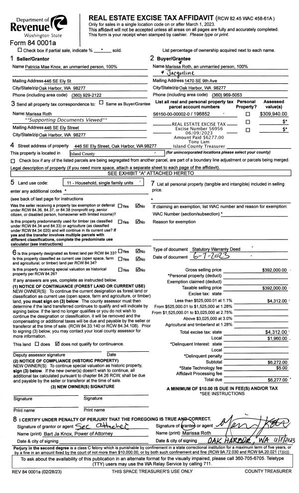
Property
Account |
| Property ID: | 722490 | Abbreviated Legal Description: | UTSA PT TR 3 LOT 27 & W 1/2 OF LOT 26 |
| Geographic ID: | S8355-03-00027-0 | Agent Code: | |
| Type: | Real | | |
| Tax Area: | 510 - APPRAISER-Stan/Cam Schl Dist, improved & 1 acre or less | Land Use Code | 11 |
| Open Space: | N | DFL | N |
| Historic Property: | N | Remodel Property: | N |
| Multi-Family Redevelopment: | N | | |
| Township: | | Section: | |
| Range: | |
Location |
| Address: | 522 MAPLE GROVE RD CAMANO ISLAND, WA 98282 | Mapsco: | |
| Neighborhood: | North Camano | Map ID: | 557 |
| Neighborhood CD: | 06-C |
Owner |
| Name: | ROBERTS, DANIEL | Owner ID: | 286999 |
| Mailing Address: | CARLY ROBERTS 522 MAPLE GROVE RD CAMANO ISLAND, WA 98282 | % Ownership: | 100.0000000000% |
| | | Exemptions: | |
Taxes and Assessment Details
Values
| (+) Improvement Homesite Value: | + | $0 | |
| (+) Improvement Non-Homesite Value: | + | $215,664 | |
| (+) Land Homesite Value: | + | $0 | |
| (+) Land Non-Homesite Value: | + | $775,900 | |
| (+) Curr Use (HS): | + | $0 | $0 |
| (+) Curr Use (NHS): | + | $0 | $0 |
| | | -------------------------- | |
| (=) Market Value: | = | $991,564 | |
| (–) Productivity Loss: | – | $0 | |
| | | -------------------------- | |
| (=) Subtotal: | = | $991,564 | |
| (+) Senior Appraised Value: | + | $0 | |
| (+) Non-Senior Appraised Value: | + | $991,564 | |
| | | -------------------------- | |
| (=) Total Appraised Value: | = | $991,564 | |
| (–) Senior Exemption Loss: | – | $0 | |
| (–) Exemption Loss: | – | $0 | |
| | | -------------------------- | |
| (=) Taxable Value: | = | $991,564 | |
Taxing Jurisdiction
| Owner: | ROBERTS, DANIEL | | |
| % Ownership: | 100.0000000000% | | |
| Total Value: | $991,564 | | |
| Tax Area: | 510 - APPRAISER-Stan/Cam Schl Dist, improved & 1 acre or less |
| CF | Conservation Futures | 0.0316035091 | $991,564 | $991,564 | $31.34 | | |
| EMS1 | Fire & Rescue Dist #1 Camano GEN (EMS) | 0.3677864386 | $991,564 | $991,564 | $364.68 | | |
| FIRE1 | Fire & Rescue Dist #1 Camano GEN | 1.2502910536 | $991,564 | $991,564 | $1,239.74 | | |
| FIRE1BOND | Fire & Rescue Dist #1 Camano BOND | 0.1570001679 | $991,564 | $991,564 | $155.68 | | |
| CE | County Current Expense | 0.3708482477 | $991,564 | $991,564 | $367.72 | | |
| CR | County Roads | 0.4584763726 | $991,564 | $991,564 | $454.61 | | |
| LCIB | Library Sno-Isle BOND (Camano Island) | 0.0396325772 | $991,564 | $991,564 | $39.30 | | |
| LIB | Library Sno-Isle GEN | 0.3153421757 | $991,564 | $991,564 | $312.68 | | |
| SCH205_401 | School 205-401 Enrichment | 1.2698420524 | $991,564 | $991,564 | $1,259.13 | | |
| SCH205BOND | School 205-401 BOND | 0.9396497583 | $991,564 | $991,564 | $931.72 | | |
| ST | State School | 1.3035497053 | $991,564 | $991,564 | $1,292.55 | | |
| ST2 | State School Part 2 | 0.8169543533 | $991,564 | $991,564 | $810.06 | | |
| | Total Tax Rate: | 7.3209764117 | | | | | |
| | | | | Taxes w/Current Exemptions: | $7,259.21 | | |
| | | | | Taxes w/o Exemptions: | $7,259.21 | | |
Improvement / Building
| Improvement #1: | RESIDENTIAL | State Code: | Y | 1160.0 sqft | Value: | $215,664 |
| Bathrooms: | 2 | Bedrooms: | 2 | | Ceiling: | DRY WALL SPRAYED | Cooling: | HEAT PUMP/CONV/V | | Exterior Wall/Cover: | PLY/HARDBOARD T-111 | Floor Covering: | HARDWOOD/CARP 80-20 | | Floor Structure: | WOOD W/SUBFLOOR | Foundation: | CONCRETE | | Interior Finish: | DRYWALL PAINT | Plumbing Fixture Cnt: | 8 | | Roof Slope: | FLAT | Roof Structure/Cover: | CJ BUILT-UP ROCK |
|
| | Type | Description | Class CD | Sub Class CD | Year Built | Area |
| | BAS | BASE/MAIN FLOOR | 3 | 0 | 1955 | 1160.0 |
| | OWP | OPEN WOOD PORCH W/STEPS | 3 | 0 | 1955 | 432.0 |
| | DGR | DETACHED GARAGE | 3 | 0 | 1955 | 750.0 |
Sketch
Property Image
Land
| 1 | HB | HIGH BLUFF | 0.0000 | 0.00 | 90.00 | 0.00 | 1.00 | $775,000 | $0 |
| 2 | 55 | TIDES | 0.0000 | 0.00 | 90.00 | 0.00 | 1.00 | $900 | $0 |
Roll Value History
| 2026 | N/A | N/A | N/A | N/A | N/A |
| 2025 | $215,664 | $775,900 | $0 | $991,564 | $991,564 |
| 2024 | $218,970 | $775,900 | $0 | $994,870 | $994,870 |
| 2023 | $222,275 | $700,900 | $0 | $923,175 | $923,175 |
| 2022 | $153,644 | $675,900 | $0 | $829,544 | $829,544 |
| 2021 | $135,822 | $450,900 | $0 | $586,722 | $586,722 |
| 2020 | $126,154 | $400,900 | $0 | $527,054 | $527,054 |
| 2019 | $89,142 | $400,900 | $0 | $490,042 | $490,042 |
| 2018 | $68,903 | $375,900 | $0 | $444,803 | $444,803 |
| 2017 | $69,511 | $350,900 | $0 | $420,411 | $420,411 |
| 2016 | $62,809 | $350,900 | $0 | $413,709 | $413,709 |
| 2015 | $64,065 | $350,900 | $0 | $414,965 | $414,965 |
| 2014 | $65,320 | $350,900 | $0 | $416,220 | $104,361 |
| 2013 | $66,578 | $341,193 | $0 | $407,771 | $104,361 |
| 2012 | $67,833 | $341,193 | $0 | $409,026 | $104,361 |
| 2011 | $69,090 | $359,103 | $0 | $428,193 | $104,361 |
| 2010 | $73,840 | $359,103 | $0 | $432,943 | $104,361 |
| 2009 | $76,140 | $399,738 | $0 | $475,878 | $104,360 |
| 2008 | $76,171 | $399,898 | $0 | $476,069 | $104,360 |
| 2007 | $76,270 | $400,418 | $0 | $476,688 | $104,360 |
Deed and Sales History
| 1 | 09/11/2018 | WD | Warranty Deed | SHARPE TRUSTEE, NINA M | ROBERTS, DANIEL | | | $520,000.00 | 36009 | 4452184 |
| 2 | 03/04/2016 | QCD | Quit Claim Deed | SHARPE TRUSTEE, NINA M | SHARPE TRUSTEE, NINA M | | | $0.00 | 35933 | 4451899 |
| 3 | 03/04/2016 | QCD | Quit Claim Deed | DEAN, MYRNA M | SHARPE TRUSTEE, NINA M | | | $0.00 | 23408 | 4395367 |
| 4 | 07/01/1992 | OTHER | Other - Misc. Documents | DEAN, THEODORE R | DEAN, MYRNA M | | | $0.00 | 64952 | 0 |
| 5 | 01/01/1900 | OTHER | Other - Misc. Documents | Unknown | DEAN, THEODORE R | | | $0.00 | 0 | 0 |
Payout Agreement
| No payout information available.. |