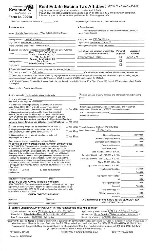
Property
Account |
| Property ID: | 722506 | Abbreviated Legal Description: | VALLEY VIEW LOT 1 |
| Geographic ID: | S8360-00-00001-0 | Agent Code: | |
| Type: | Real | | |
| Tax Area: | 100 - APPRAISER-OH Schl Dist, in OH | Land Use Code | 11 |
| Open Space: | N | DFL | N |
| Historic Property: | N | Remodel Property: | N |
| Multi-Family Redevelopment: | N | | |
| Township: | | Section: | |
| Range: | |
Location |
| Address: | 624 SE ELY ST OAK HARBOR, WA 98277 | Mapsco: | |
| Neighborhood: | Cycle 1 | Map ID: | 88 |
| Neighborhood CD: | 1 |
Owner |
| Name: | OSTROM, CYNTHIA L | Owner ID: | 276481 |
| Mailing Address: | 624 SE ELY ST OAK HARBOR, WA 98277 | % Ownership: | 100.0000000000% |
| | | Exemptions: | |
Taxes and Assessment Details
Values
| (+) Improvement Homesite Value: | + | $0 | |
| (+) Improvement Non-Homesite Value: | + | $290,719 | |
| (+) Land Homesite Value: | + | $0 | |
| (+) Land Non-Homesite Value: | + | $180,000 | |
| (+) Curr Use (HS): | + | $0 | $0 |
| (+) Curr Use (NHS): | + | $0 | $0 |
| | | -------------------------- | |
| (=) Market Value: | = | $470,719 | |
| (–) Productivity Loss: | – | $0 | |
| | | -------------------------- | |
| (=) Subtotal: | = | $470,719 | |
| (+) Senior Appraised Value: | + | $0 | |
| (+) Non-Senior Appraised Value: | + | $470,719 | |
| | | -------------------------- | |
| (=) Total Appraised Value: | = | $470,719 | |
| (–) Senior Exemption Loss: | – | $0 | |
| (–) Exemption Loss: | – | $0 | |
| | | -------------------------- | |
| (=) Taxable Value: | = | $470,719 | |
Taxing Jurisdiction
| Owner: | OSTROM, CYNTHIA L | | |
| % Ownership: | 100.0000000000% | | |
| Total Value: | $470,719 | | |
| Tax Area: | 100 - APPRAISER-OH Schl Dist, in OH |
| CF | Conservation Futures | 0.0316035091 | $470,719 | $470,719 | $14.88 | | |
| CEM1 | Cemetery #1 | 0.0040320932 | $470,719 | $470,719 | $1.90 | | |
| COH | City of Oak Harbor | 2.3001546061 | $470,719 | $470,719 | $1,082.73 | | |
| OAKBOND | City of Oak Harbor BOND | 0.1926904192 | $470,719 | $470,719 | $90.70 | | |
| HOBOND | Hospital BOND | 0.1910887512 | $470,719 | $470,719 | $89.95 | | |
| HOGEN | Hospital GEN | 0.3902502903 | $470,719 | $470,719 | $183.70 | | |
| CE | County Current Expense | 0.3708482477 | $470,719 | $470,719 | $174.57 | | |
| ISLANDEMS | Hospital GEN (EMS) | 0.5000000000 | $470,719 | $470,719 | $235.36 | | |
| LIB | Library Sno-Isle GEN | 0.3153421757 | $470,719 | $470,719 | $148.44 | | |
| NWHIDPRMT | P & R N Whidbey GEN | 0.2004466701 | $470,719 | $470,719 | $94.35 | | |
| SCH201MO | School 201 Enrichment | 1.8559231640 | $470,719 | $470,719 | $873.62 | | |
| ST | State School | 1.3035497053 | $470,719 | $470,719 | $613.61 | | |
| ST2 | State School Part 2 | 0.8169543533 | $470,719 | $470,719 | $384.56 | | |
| | Total Tax Rate: | 8.4728839852 | | | | | |
| | | | | Taxes w/Current Exemptions: | $3,988.37 | | |
| | | | | Taxes w/o Exemptions: | $3,988.37 | | |
Improvement / Building
| Improvement #1: | RESIDENTIAL | State Code: | Y | 1459.0 sqft | Value: | $290,719 |
| Bathrooms: | 2 | Bedrooms: | 2 | | Ceiling: | PLASTER PAINTED | Exterior Wall/Cover: | COMMON BRICK VENEER | | Floor Covering: | HARDWOOD/CARP 60-40 | Floor Structure: | WOOD W/SUBFLOOR | | Foundation: | CONCRETE BLOCKS | Heating: | FHA GAS | | Interior Finish: | PLASTER | Plumbing Fixture Cnt: | 9 | | Roof Slope: | 6" IN 12" | Roof Structure/Cover: | CJ ASPHALT |
|
| | Type | Description | Class CD | Sub Class CD | Year Built | Area |
| | BAS | BASE/MAIN FLOOR | 3 | 0 | 1956 | 1459.0 |
| | ENP | ENCLOSED PORCH | 3 | 0 | 1956 | 300.0 |
| | AGR | ATTACHED GARAGE | 3 | 0 | 1956 | 330.0 |
| | OP4 | OPEN PORCH W/CEILING-ROOF | 3 | 0 | 1956 | 30.0 |
Sketch
Property Image
Land
| 1 | 14 | SQ (08001-12000) | 0.0000 | 0.00 | 0.00 | 0.00 | 1.00 | $180,000 | $0 |
Roll Value History
| 2026 | N/A | N/A | N/A | N/A | N/A |
| 2025 | $290,719 | $180,000 | $0 | $470,719 | $470,719 |
| 2024 | $294,583 | $170,000 | $0 | $464,583 | $464,583 |
| 2023 | $273,684 | $170,000 | $0 | $443,684 | $443,684 |
| 2022 | $251,117 | $160,000 | $0 | $411,117 | $411,117 |
| 2021 | $221,229 | $125,000 | $0 | $346,229 | $346,229 |
| 2020 | $215,954 | $100,000 | $0 | $315,954 | $315,954 |
| 2019 | $157,836 | $140,000 | $0 | $297,836 | $297,836 |
| 2018 | $158,334 | $125,000 | $0 | $283,334 | $283,334 |
| 2017 | $144,683 | $110,000 | $0 | $254,683 | $254,683 |
| 2016 | $146,692 | $90,000 | $0 | $236,692 | $236,692 |
| 2015 | $148,702 | $70,000 | $0 | $218,702 | $218,702 |
| 2014 | $150,712 | $55,000 | $0 | $205,712 | $205,712 |
| 2013 | $162,769 | $55,000 | $0 | $217,769 | $217,769 |
| 2012 | $164,777 | $60,000 | $0 | $224,777 | $224,777 |
| 2011 | $171,620 | $50,000 | $0 | $221,620 | $221,620 |
| 2010 | $181,836 | $50,000 | $0 | $231,836 | $231,836 |
| 2009 | $141,324 | $60,000 | $0 | $201,324 | $201,324 |
| 2008 | $143,210 | $68,000 | $0 | $211,210 | $211,210 |
| 2007 | $145,095 | $68,000 | $0 | $213,095 | $213,095 |
Deed and Sales History
| 1 | 08/18/2016 | WD | Warranty Deed | GIESE, JONATHAN D | OSTROM, CYNTHIA L | | | $255,000.00 | 25752 | 4405515 |
| 2 | 03/13/2013 | WD | Warranty Deed | SON, CHRISTINA S | GIESE, JONATHAN D | | | $187,000.00 | 10674 | 4335495 |
| 3 | 03/05/2008 | DECREE | Divorce Decree/Legal Separation | REYNOLDS, JOSHUA E | SON, CHRISTINA S | | | $0.00 | 80532 | 4223304 |
| 4 | 03/22/2007 | TRUSTEED | Trustee's Deed | PARR JR, DONALD R | REYNOLDS, JOSHUA E | | | $205,000.00 | 71058 | 4198142 |
| 5 | 09/03/1998 | WD | Warranty Deed | Unknown | PARR JR, DONALD R | | | $104,532.00 | 83836 | 98020753 |
Payout Agreement
| No payout information available.. |