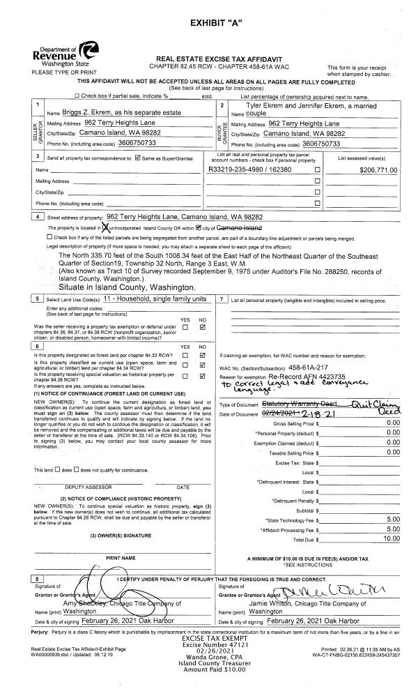
Property
Account |
| Property ID: | 722542 | Abbreviated Legal Description: | VILLAGE GRN LOT 11 BLK 2 |
| Geographic ID: | S8375-00-02011-0 | Agent Code: | |
| Type: | Real | | |
| Tax Area: | 760 - APPRAISER-S Whid Schl Dist, Special District, improved & less than 1 acre | Land Use Code | 11 |
| Open Space: | N | DFL | N |
| Historic Property: | N | Remodel Property: | N |
| Multi-Family Redevelopment: | N | | |
| Township: | | Section: | |
| Range: | |
Location |
| Address: | 1654 LYNNE DR FREELAND, WA 98249 | Mapsco: | |
| Neighborhood: | Cycle 3 | Map ID: | 313 |
| Neighborhood CD: | 3 |
Owner |
| Name: | HERZBERG TTEE, SUSAN E | Owner ID: | 297129 |
| Mailing Address: | 1654 LYNNE DR FREELAND, WA 98249 | % Ownership: | 100.0000000000% |
| | | Exemptions: | |
Taxes and Assessment Details
Values
| (+) Improvement Homesite Value: | + | $0 | |
| (+) Improvement Non-Homesite Value: | + | $216,523 | |
| (+) Land Homesite Value: | + | $0 | |
| (+) Land Non-Homesite Value: | + | $250,000 | |
| (+) Curr Use (HS): | + | $0 | $0 |
| (+) Curr Use (NHS): | + | $0 | $0 |
| | | -------------------------- | |
| (=) Market Value: | = | $466,523 | |
| (–) Productivity Loss: | – | $0 | |
| | | -------------------------- | |
| (=) Subtotal: | = | $466,523 | |
| (+) Senior Appraised Value: | + | $0 | |
| (+) Non-Senior Appraised Value: | + | $466,523 | |
| | | -------------------------- | |
| (=) Total Appraised Value: | = | $466,523 | |
| (–) Senior Exemption Loss: | – | $0 | |
| (–) Exemption Loss: | – | $0 | |
| | | -------------------------- | |
| (=) Taxable Value: | = | $466,523 | |
Taxing Jurisdiction
| Owner: | HERZBERG TTEE, SUSAN E | | |
| % Ownership: | 100.0000000000% | | |
| Total Value: | $466,523 | | |
| Tax Area: | 760 - APPRAISER-S Whid Schl Dist, Special District, improved & less than 1 acre |
| CF | Conservation Futures | 0.0316035091 | $466,523 | $466,523 | $14.74 | | |
| FIRE3 | Fire & Rescue Dist #3 S Whidbey GEN | 1.2004855531 | $466,523 | $466,523 | $560.05 | | |
| HOBOND | Hospital BOND | 0.1910887512 | $466,523 | $466,523 | $89.15 | | |
| HOGEN | Hospital GEN | 0.3902502903 | $466,523 | $466,523 | $182.06 | | |
| CE | County Current Expense | 0.3708482477 | $466,523 | $466,523 | $173.01 | | |
| CR | County Roads | 0.4584763726 | $466,523 | $466,523 | $213.89 | | |
| ISLANDEMS | Hospital GEN (EMS) | 0.5000000000 | $466,523 | $466,523 | $233.26 | | |
| LIB | Library Sno-Isle GEN | 0.3153421757 | $466,523 | $466,523 | $147.11 | | |
| PORTWHID | Port of S Whidbey GEN | 0.1094540357 | $466,523 | $466,523 | $51.06 | | |
| SCH206BOND | School 206 BOND | 0.3161759235 | $466,523 | $466,523 | $147.50 | | |
| SCH206MO | School 206 Enrichment | 0.4547169547 | $466,523 | $466,523 | $212.14 | | |
| ST | State School | 1.3035497053 | $466,523 | $466,523 | $608.14 | | |
| ST2 | State School Part 2 | 0.8169543533 | $466,523 | $466,523 | $381.13 | | |
| SWHIDPRBD | P & R S Whidbey BOND | 0.0152817568 | $466,523 | $466,523 | $7.13 | | |
| SWHIDPRBD2 | P & R S Whidbey BOND2 | 0.0138911264 | $466,523 | $466,523 | $6.48 | | |
| SWHIDPRMT | P & R S Whidbey GEN | 0.2053334452 | $466,523 | $466,523 | $95.79 | | |
| | Total Tax Rate: | 6.6934522006 | | | | | |
| | | | | Taxes w/Current Exemptions: | $3,122.64 | | |
| | | | | Taxes w/o Exemptions: | $3,122.64 | | |
Improvement / Building
| Improvement #1: | RESIDENTIAL | State Code: | Y | 1420.0 sqft | Value: | $216,523 |
| Bathrooms: | 2.5 | Bedrooms: | 2 | | Ceiling: | DRYWALL PAINTED | Exterior Wall/Cover: | PLY/HARDBOARD T-111 | | Floor Covering: | CARPET/VINYL 80-20 | Floor Structure: | WOOD W/SUBFLOOR | | Foundation: | CONCRETE | Heating: | WALL HEAT ELECTRIC | | Interior Finish: | DRYWALL PAINT | Plumbing Fixture Cnt: | 11 | | Roof Slope: | 3" IN 12" | Roof Structure/Cover: | CJ ASPHALT |
|
| | Type | Description | Class CD | Sub Class CD | Year Built | Area |
| | BAS | BASE/MAIN FLOOR | 3 | 0 | 1991 | 796.0 |
| | BIG | BUILT IN GARAGE | 3 | 0 | 1991 | 312.0 |
| | UPS | UPPER STORY | 3 | 0 | 1991 | 624.0 |
| | BAW | BALCONY WOOD RAIL | 3 | 0 | 1991 | 45.0 |
| | OWP | OPEN WOOD PORCH W/STEPS | 3 | 0 | 1991 | 55.0 |
Sketch
Property Image
Land
| 1 | 14 | SQ (08001-12000) | 0.0000 | 0.00 | 0.00 | 0.00 | 1.00 | $250,000 | $0 |
Roll Value History
| 2026 | N/A | N/A | N/A | N/A | N/A |
| 2025 | $216,523 | $250,000 | $0 | $466,523 | $466,523 |
| 2024 | $219,401 | $230,000 | $0 | $449,401 | $449,401 |
| 2023 | $222,279 | $230,000 | $0 | $452,279 | $452,279 |
| 2022 | $203,878 | $210,000 | $0 | $413,878 | $413,878 |
| 2021 | $179,553 | $140,000 | $0 | $319,553 | $319,553 |
| 2020 | $171,706 | $115,000 | $0 | $286,706 | $286,706 |
| 2019 | $117,535 | $170,000 | $0 | $287,535 | $287,535 |
| 2018 | $117,916 | $130,000 | $0 | $247,916 | $247,916 |
| 2017 | $118,676 | $120,000 | $0 | $238,676 | $238,676 |
| 2016 | $120,198 | $90,000 | $0 | $210,198 | $210,198 |
| 2015 | $121,718 | $90,000 | $0 | $211,718 | $211,718 |
| 2014 | $123,241 | $90,000 | $0 | $213,241 | $213,241 |
| 2013 | $120,140 | $80,000 | $0 | $200,140 | $200,140 |
| 2012 | $121,661 | $97,750 | $0 | $219,411 | $219,411 |
| 2011 | $123,183 | $115,000 | $0 | $238,183 | $238,183 |
| 2010 | $131,004 | $115,000 | $0 | $246,004 | $246,004 |
| 2009 | $136,676 | $140,000 | $0 | $276,676 | $276,676 |
| 2008 | $138,516 | $164,826 | $0 | $303,342 | $303,342 |
| 2007 | $145,825 | $164,826 | $0 | $310,651 | $310,651 |
Deed and Sales History
| 1 | 10/07/2020 | WD | Warranty Deed | FLY JR, JAMES O | HERZBERG TTEE, SUSAN E | | | $465,000.00 | 45295 | 4499879 |
| 2 | 08/25/2003 | WD | Warranty Deed | HOWARD-CLARK, DORIS E | FLY JR., JAMES O | | | $174,000.00 | 33881 | 4073181 |
| 3 | 09/01/1994 | DECREE | Divorce Decree/Legal Separation | CLARK, KENNETH S | HOWARD-CLARK, DORIS E | | | $0.00 | 44311 | 94022202 |
| 4 | 11/01/1991 | WD | Warranty Deed | KAUFFMAN, CHRISTOPHER P | CLARK, KENNETH S | | | $133,500.00 | 14203 | 91018244 |
| 5 | 05/01/1990 | WD | Warranty Deed | SHARP, ISABEL M | KAUFFMAN, CHRISTOPHER P | | | $12,900.00 | 2925 | 90009450 |
| 6 | 01/01/1900 | OTHER | Other - Misc. Documents | Unknown | SHARP, ISABEL M | | | $0.00 | 0 | 0 |
Payout Agreement
| No payout information available.. |