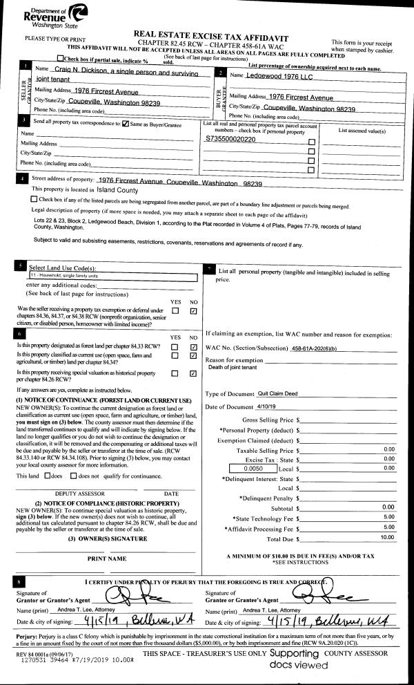
Property
Account |
| Property ID: | 72272 | Abbreviated Legal Description: | 35 - N618.44' OF E/2 E/2 NE SE EX E30' FOR RD |
| Geographic ID: | R23102-248-5150 | Agent Code: | |
| Type: | Real | | |
| Tax Area: | 512 - APPRAISER-Stan/Cam Schl Dist, improved, greater than 1 acre | Land Use Code | 11 |
| Open Space: | N | DFL | N |
| Historic Property: | N | Remodel Property: | N |
| Multi-Family Redevelopment: | N | | |
| Township: | 31 | Section: | 02 |
| Range: | R2 |
Location |
| Address: | 226 S CAMANO RIDGE RD CAMANO ISLAND, WA 98282 | Mapsco: | |
| Neighborhood: | Cycle 5 | Map ID: | 454 |
| Neighborhood CD: | 5 |
Owner |
| Name: | CHAPMAN, JASON W | Owner ID: | 299798 |
| Mailing Address: | SORA J CHAPMAN 226 S CAMANO RIDGE RD CAMANO ISLAND, WA 98282 | % Ownership: | 100.0000000000% |
| | | Exemptions: | |
Taxes and Assessment Details
Values
| (+) Improvement Homesite Value: | + | $0 | |
| (+) Improvement Non-Homesite Value: | + | $311,534 | |
| (+) Land Homesite Value: | + | $0 | |
| (+) Land Non-Homesite Value: | + | $330,000 | |
| (+) Curr Use (HS): | + | $0 | $0 |
| (+) Curr Use (NHS): | + | $0 | $0 |
| | | -------------------------- | |
| (=) Market Value: | = | $641,534 | |
| (–) Productivity Loss: | – | $0 | |
| | | -------------------------- | |
| (=) Subtotal: | = | $641,534 | |
| (+) Senior Appraised Value: | + | $0 | |
| (+) Non-Senior Appraised Value: | + | $641,534 | |
| | | -------------------------- | |
| (=) Total Appraised Value: | = | $641,534 | |
| (–) Senior Exemption Loss: | – | $0 | |
| (–) Exemption Loss: | – | $0 | |
| | | -------------------------- | |
| (=) Taxable Value: | = | $641,534 | |
Taxing Jurisdiction
| Owner: | CHAPMAN, JASON W | | |
| % Ownership: | 100.0000000000% | | |
| Total Value: | $641,534 | | |
| Tax Area: | 512 - APPRAISER-Stan/Cam Schl Dist, improved, greater than 1 acre |
| CF | Conservation Futures | 0.0316035091 | $641,534 | $641,534 | $20.27 | | |
| EMS1 | Fire & Rescue Dist #1 Camano GEN (EMS) | 0.3677864386 | $641,534 | $641,534 | $235.95 | | |
| FIRE1 | Fire & Rescue Dist #1 Camano GEN | 1.2502910536 | $641,534 | $641,534 | $802.10 | | |
| FIRE1BOND | Fire & Rescue Dist #1 Camano BOND | 0.1570001679 | $641,534 | $641,534 | $100.72 | | |
| CE | County Current Expense | 0.3708482477 | $641,534 | $641,534 | $237.91 | | |
| CR | County Roads | 0.4584763726 | $641,534 | $641,534 | $294.13 | | |
| LCIB | Library Sno-Isle BOND (Camano Island) | 0.0396325772 | $641,534 | $641,534 | $25.43 | | |
| LIB | Library Sno-Isle GEN | 0.3153421757 | $641,534 | $641,534 | $202.30 | | |
| SCH205_401 | School 205-401 Enrichment | 1.2698420524 | $641,534 | $641,534 | $814.65 | | |
| SCH205BOND | School 205-401 BOND | 0.9396497583 | $641,534 | $641,534 | $602.82 | | |
| ST | State School | 1.3035497053 | $641,534 | $641,534 | $836.27 | | |
| ST2 | State School Part 2 | 0.8169543533 | $641,534 | $641,534 | $524.10 | | |
| | Total Tax Rate: | 7.3209764117 | | | | | |
| | | | | Taxes w/Current Exemptions: | $4,696.65 | | |
| | | | | Taxes w/o Exemptions: | $4,696.65 | | |
Improvement / Building
| Improvement #1: | RESIDENTIAL | State Code: | Y | 1364.3 sqft | Value: | $311,534 |
| Bathrooms: | 2 | Bedrooms: | 3 | | Ceiling: | DRYWALL PAINTED | Cooling: | HEAT PUMP/CONV/V | | Exterior Wall/Cover: | WOOD SIDING | Floor Covering: | CARPET/VINYL 60-40 | | Floor Structure: | WOOD W/SUBFLOOR | Foundation: | CONCRETE | | Interior Finish: | DRYWALL PAINT | Plumbing Fixture Cnt: | 10 | | Roof Slope: | 5" IN 12" | Roof Structure/Cover: | CJ ASPHALT |
|
| | Type | Description | Class CD | Sub Class CD | Year Built | Area |
| | BAS | BASE/MAIN FLOOR | 3 | 0 | 2004 | 1364.3 |
| | UTY | STORAGE/UTILITY | 3 | 0 | 2004 | 192.0 |
| | AGR | ATTACHED GARAGE | 3 | 0 | 2004 | 534.6 |
| | OWP | OPEN WOOD PORCH W/STEPS | 3 | 0 | 2004 | 327.2 |
| | OWP | OPEN WOOD PORCH W/STEPS | 3 | 0 | 2004 | 41.5 |
| | OWC | OPEN WOOD PORCH W/STEPS/ROOF/C | 3 | 0 | 2004 | 29.0 |
Sketch
Property Image
Land
| 1 | 32 | AC (03.01-09.99) | 4.2600 | 0.00 | 0.00 | 0.00 | 1.00 | $330,000 | $0 |
Roll Value History
| 2026 | N/A | N/A | N/A | N/A | N/A |
| 2025 | $311,534 | $330,000 | $0 | $641,534 | $641,534 |
| 2024 | $315,106 | $300,000 | $0 | $615,106 | $615,106 |
| 2023 | $318,676 | $290,000 | $0 | $608,676 | $608,676 |
| 2022 | $290,993 | $290,000 | $0 | $580,993 | $580,993 |
| 2021 | $227,112 | $190,000 | $0 | $417,112 | $417,112 |
| 2020 | $220,843 | $160,000 | $0 | $380,843 | $380,843 |
| 2019 | $158,226 | $230,000 | $0 | $388,226 | $388,226 |
| 2018 | $161,746 | $190,000 | $0 | $351,746 | $351,746 |
| 2017 | $162,651 | $150,000 | $0 | $312,651 | $312,651 |
| 2016 | $164,457 | $150,000 | $0 | $314,457 | $314,457 |
| 2015 | $157,363 | $95,424 | $0 | $252,787 | $252,787 |
| 2014 | $159,116 | $95,424 | $0 | $254,540 | $254,540 |
| 2013 | $160,866 | $95,424 | $0 | $256,290 | $256,290 |
| 2012 | $162,619 | $95,424 | $0 | $258,043 | $258,043 |
| 2011 | $164,373 | $119,280 | $0 | $283,653 | $283,653 |
| 2010 | $167,819 | $119,280 | $0 | $287,099 | $287,099 |
| 2009 | $173,956 | $136,320 | $0 | $310,276 | $310,276 |
| 2008 | $174,107 | $183,180 | $0 | $357,287 | $357,287 |
| 2007 | $176,017 | $125,670 | $0 | $301,687 | $301,687 |
Deed and Sales History
| 1 | 05/19/2021 | WD | Warranty Deed | TURNER, TYLER | CHAPMAN, JASON W | | | $585,000.00 | 48697 | 4521954 |
| 2 | 04/25/2019 | WD | Warranty Deed | BURCHARD, TYREL A | TURNER, TYLER | | | $387,500.00 | 38225 | 4462076 |
| 3 | 04/09/2004 | WD | Warranty Deed | FACEY, LONNIE W | BURCHARD, TYREL A | | | $40,000.00 | 41501 | 4097293 |
| 4 | 08/17/2001 | TRUSTEED | Trustee's Deed | BUTTERFIELD, STAN | FACEY, LONNIE W | | | $0.00 | 13143 | 20040754 |
| 5 | 04/01/1997 | WD | Warranty Deed | FACEY, LONNIE W | BUTTERFIELD, STAN | | | $39,950.00 | 71388 | 97006283 |
| 6 | 10/01/1995 | WD | Warranty Deed | COOPER, WILLIAM J | FACEY, LONNIE W | | | $39,000.00 | 53641 | 95016723 |
| 7 | 09/01/1989 | PRD | Personal Representatives Deed | COOPER, JULIA L | COOPER, WILLIAM J | | | $0.00 | 93943 | 89013113 |
| 8 | 08/01/1979 | PACD | Purchaser's Assignment | COOPER, DAWSON E | COOPER, JULIA L | | | $0.00 | 58639 | 0 |
| 9 | 01/01/1900 | OTHER | Other - Misc. Documents | Unknown | COOPER, DAWSON E | | | $0.00 | 0 | 0 |
Payout Agreement
| No payout information available.. |