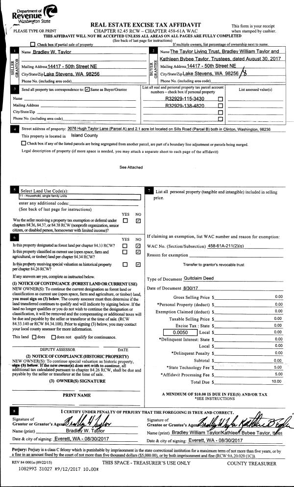
Property
Account |
| Property ID: | 722828 | Abbreviated Legal Description: | HIGHLANDS ON CAMANO |
| Geographic ID: | S7125-00-00026-0 | Agent Code: | |
| Type: | Real | | |
| Tax Area: | 542 - APPRAISER-Stan/Cam Schl Dist, Special Dist, improved, greater than 1 acre | Land Use Code | 11 |
| Open Space: | N | DFL | N |
| Historic Property: | N | Remodel Property: | N |
| Multi-Family Redevelopment: | N | | |
| Township: | | Section: | |
| Range: | |
Location |
| Address: | 1526 DALLMAN RD CAMANO ISLAND, WA 98282 | Mapsco: | |
| Neighborhood: | 58NofTamarackAC | Map ID: | 875 |
| Neighborhood CD: | 58RntamAC |
Owner |
| Name: | OPSATA, ANTHONY | Owner ID: | 280288 |
| Mailing Address: | MARGARET DUCLOS 1526 DALLMAN RD CAMANO ISLAND, WA 98282 | % Ownership: | 100.0000000000% |
| | | Exemptions: | |
Taxes and Assessment Details
Values
| (+) Improvement Homesite Value: | + | $0 | |
| (+) Improvement Non-Homesite Value: | + | $424,739 | |
| (+) Land Homesite Value: | + | $0 | |
| (+) Land Non-Homesite Value: | + | $290,000 | |
| (+) Curr Use (HS): | + | $0 | $0 |
| (+) Curr Use (NHS): | + | $0 | $0 |
| | | -------------------------- | |
| (=) Market Value: | = | $714,739 | |
| (–) Productivity Loss: | – | $0 | |
| | | -------------------------- | |
| (=) Subtotal: | = | $714,739 | |
| (+) Senior Appraised Value: | + | $0 | |
| (+) Non-Senior Appraised Value: | + | $714,739 | |
| | | -------------------------- | |
| (=) Total Appraised Value: | = | $714,739 | |
| (–) Senior Exemption Loss: | – | $0 | |
| (–) Exemption Loss: | – | $0 | |
| | | -------------------------- | |
| (=) Taxable Value: | = | $714,739 | |
Taxing Jurisdiction
| Owner: | OPSATA, ANTHONY | | |
| % Ownership: | 100.0000000000% | | |
| Total Value: | $714,739 | | |
| Tax Area: | 542 - APPRAISER-Stan/Cam Schl Dist, Special Dist, improved, greater than 1 acre |
| CF | Conservation Futures | 0.0316035091 | $714,739 | $714,739 | $22.59 | | |
| EMS1 | Fire & Rescue Dist #1 Camano GEN (EMS) | 0.3677864386 | $714,739 | $714,739 | $262.87 | | |
| FIRE1 | Fire & Rescue Dist #1 Camano GEN | 1.2502910536 | $714,739 | $714,739 | $893.63 | | |
| FIRE1BOND | Fire & Rescue Dist #1 Camano BOND | 0.1570001679 | $714,739 | $714,739 | $112.21 | | |
| CE | County Current Expense | 0.3708482477 | $714,739 | $714,739 | $265.06 | | |
| CR | County Roads | 0.4584763726 | $714,739 | $714,739 | $327.69 | | |
| LCIB | Library Sno-Isle BOND (Camano Island) | 0.0396325772 | $714,739 | $714,739 | $28.33 | | |
| LIB | Library Sno-Isle GEN | 0.3153421757 | $714,739 | $714,739 | $225.39 | | |
| SCH205_401 | School 205-401 Enrichment | 1.2698420524 | $714,739 | $714,739 | $907.61 | | |
| SCH205BOND | School 205-401 BOND | 0.9396497583 | $714,739 | $714,739 | $671.60 | | |
| ST | State School | 1.3035497053 | $714,739 | $714,739 | $931.70 | | |
| ST2 | State School Part 2 | 0.8169543533 | $714,739 | $714,739 | $583.91 | | |
| | Total Tax Rate: | 7.3209764117 | | | | | |
| | | | | Taxes w/Current Exemptions: | $5,232.59 | | |
| | | | | Taxes w/o Exemptions: | $5,232.59 | | |
Improvement / Building
| Improvement #1: | RESIDENTIAL | State Code: | Y | 2844.0 sqft | Value: | $424,739 |
| Bathrooms: | 3 | Bedrooms: | 4 | | Ceiling: | DRYWALL PAINTED | Cooling: | HEAT PUMP/CONV/V | | Exterior Wall/Cover: | WOOD SIDING | Floor Covering: | HARDWOOD/CARP 80-20 | | Floor Structure: | WOOD W/SUBFLOOR | Foundation: | CONCRETE | | Interior Finish: | DRYWALL PAINT | Plumbing Fixture Cnt: | 15 | | Roof Slope: | 5" IN 12" | Roof Structure/Cover: | CJ ASPHALT |
|
| | Type | Description | Class CD | Sub Class CD | Year Built | Area |
| | BAS | BASE/MAIN FLOOR | 3 | 0 | 1987 | 1644.0 |
| | OP4 | OPEN PORCH W/CEILING-ROOF | 3 | 0 | 1987 | 60.0 |
| | AGR | ATTACHED GARAGE | 3 | 0 | 1987 | 506.0 |
| | OWP | OPEN WOOD PORCH W/STEPS | 3 | 0 | 1987 | 220.0 |
| | OWC | OPEN WOOD PORCH W/STEPS/ROOF/C | 3 | 0 | 1987 | 300.0 |
| | DWN | DOWNSTAIRS LIVING AREA | 3 | 0 | 1987 | 1200.0 |
| | OCP | OPEN CARPORT | 3 | 0 | 1987 | 250.0 |
| | UTY | STORAGE/UTILITY | 3 | 0 | 1987 | 464.0 |
| | CPD | OPEN CARPORT DIRT FLOOR | 3 | 0 | 1987 | 374.0 |
Sketch
Property Image
Land
| 1 | 32 | AC (03.01-09.99) | 9.3700 | 0.00 | 0.00 | 0.00 | 1.00 | $290,000 | $0 |
Roll Value History
| 2026 | N/A | N/A | N/A | N/A | N/A |
| 2025 | $424,739 | $290,000 | $0 | $714,739 | $714,739 |
| 2024 | $429,965 | $280,000 | $0 | $709,965 | $709,965 |
| 2023 | $435,195 | $260,000 | $0 | $695,195 | $695,195 |
| 2022 | $398,808 | $210,000 | $0 | $608,808 | $608,808 |
| 2021 | $362,232 | $160,000 | $0 | $522,232 | $522,232 |
| 2020 | $353,339 | $150,000 | $0 | $503,339 | $503,339 |
| 2019 | $279,071 | $200,000 | $0 | $479,071 | $479,071 |
| 2018 | $279,881 | $175,000 | $0 | $454,881 | $454,881 |
| 2017 | $265,320 | $130,000 | $0 | $395,320 | $395,320 |
| 2016 | $268,556 | $130,000 | $0 | $398,556 | $398,556 |
| 2015 | $226,383 | $104,000 | $0 | $330,383 | $330,383 |
| 2014 | $229,061 | $104,000 | $0 | $333,061 | $333,061 |
| 2013 | $231,741 | $112,440 | $0 | $344,181 | $344,181 |
| 2012 | $234,418 | $112,440 | $0 | $346,858 | $346,858 |
| 2011 | $237,095 | $140,550 | $0 | $377,645 | $377,645 |
| 2010 | $245,452 | $140,550 | $0 | $386,002 | $386,002 |
| 2009 | $250,258 | $168,660 | $0 | $418,918 | $418,918 |
| 2008 | $251,222 | $168,660 | $0 | $419,882 | $419,882 |
| 2007 | $254,235 | $168,660 | $0 | $422,895 | $422,895 |
Deed and Sales History
| 1 | 06/05/2017 | WD | Warranty Deed | MALCOLM, JEFFREY L | OPSATA, ANTHONY | | | $459,000.00 | 29639 | 4423892 |
| 2 | 07/21/1998 | WD | Warranty Deed | HOLDRIDGE, LEONARD H | MALCOLM, JEFFREY L | | | $235,000.00 | 82882 | 98015057 |
| 3 | 11/01/1986 | WD | Warranty Deed | SOMERS, JOHN A | HOLDRIDGE, LEONARD H | | | $20,000.00 | 63327 | 86015019 |
| 4 | 01/01/1900 | OTHER | Other - Misc. Documents | Unknown | SOMERS, JOHN A | | | $0.00 | 0 | 0 |
Payout Agreement
| No payout information available.. |