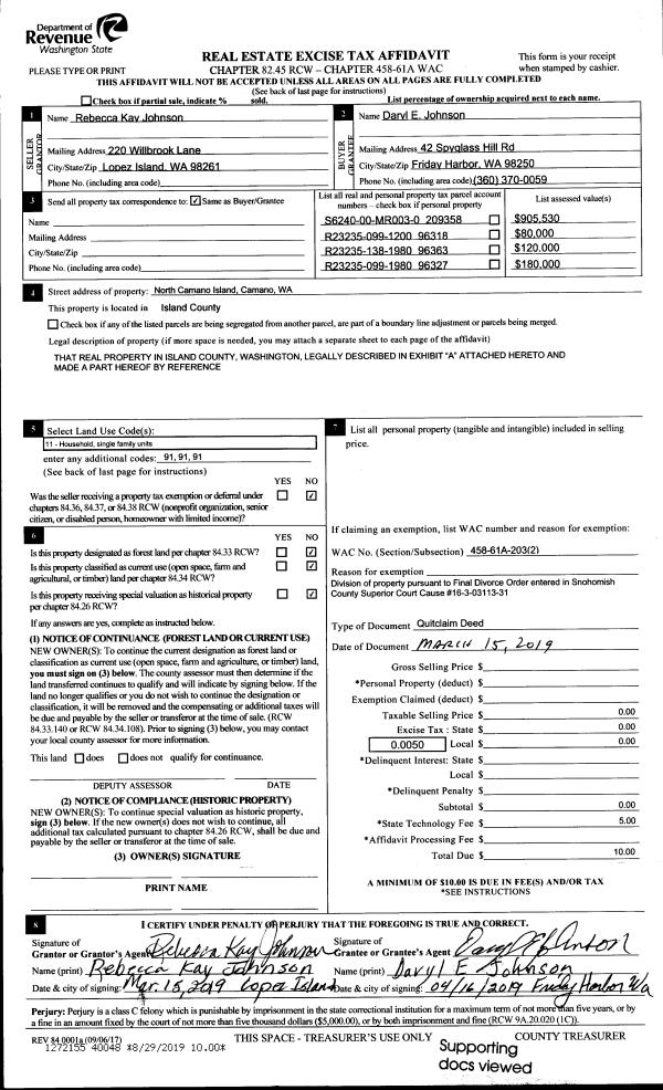
Property
Account |
| Property ID: | 723159 | Abbreviated Legal Description: | IDLEWOOD 1 LOT 15 |
| Geographic ID: | S7220-00-00015-0 | Agent Code: | |
| Type: | Real | | |
| Tax Area: | 540 - APPRAISER-Stan/Cam Schl Dist, Special Dist, improved & less than 1 acre | Land Use Code | 11 |
| Open Space: | N | DFL | N |
| Historic Property: | N | Remodel Property: | N |
| Multi-Family Redevelopment: | N | | |
| Township: | | Section: | |
| Range: | |
Location |
| Address: | 2796 MAPLE TREE LN CAMANO ISLAND, WA 98282 | Mapsco: | |
| Neighborhood: | Cycle 5 | Map ID: | 852 |
| Neighborhood CD: | 5 |
Owner |
| Name: | MCCASKILL, CHRISANN | Owner ID: | 291101 |
| Mailing Address: | PO BOX 2665 STANWOOD, WA 98292-2665 | % Ownership: | 100.0000000000% |
| | | Exemptions: | SNR/DSBL |
Taxes and Assessment Details
Values
| (+) Improvement Homesite Value: | + | $13,484 | |
| (+) Improvement Non-Homesite Value: | + | $0 | |
| (+) Land Homesite Value: | + | $210,000 | |
| (+) Land Non-Homesite Value: | + | $0 | |
| (+) Curr Use (HS): | + | $0 | $0 |
| (+) Curr Use (NHS): | + | $0 | $0 |
| | | -------------------------- | |
| (=) Market Value: | = | $223,484 | |
| (–) Productivity Loss: | – | $0 | |
| | | -------------------------- | |
| (=) Subtotal: | = | $223,484 | |
| (+) Senior Appraised Value: | + | $101,171 | |
| (+) Non-Senior Appraised Value: | + | $0 | |
| | | -------------------------- | |
| (=) Total Appraised Value: | = | $101,171 | |
| (–) Senior Exemption Loss: | – | $60,703 | |
| (–) Exemption Loss: | – | $0 | |
| | | -------------------------- | |
| (=) Taxable Value: | = | $40,468 | |
Taxing Jurisdiction
| Owner: | MCCASKILL, CHRISANN | | |
| % Ownership: | 100.0000000000% | | |
| Total Value: | $223,484 | | |
| Tax Area: | 540 - APPRAISER-Stan/Cam Schl Dist, Special Dist, improved & less than 1 acre |
| CF | Conservation Futures | 0.0316035091 | $223,484 | $40,468 | $1.28 | | |
| EMS1 | Fire & Rescue Dist #1 Camano GEN (EMS) | 0.3677864386 | $223,484 | $40,468 | $14.88 | | |
| FIRE1 | Fire & Rescue Dist #1 Camano GEN | 1.2502910536 | $223,484 | $40,468 | $50.60 | | |
| FIRE1BOND | Fire & Rescue Dist #1 Camano BOND | 0.0000000000 | $223,484 | $0 | $0.00 | | |
| CE | County Current Expense | 0.3708482477 | $223,484 | $40,468 | $15.01 | | |
| CR | County Roads | 0.4584763726 | $223,484 | $40,468 | $18.55 | | |
| LCIB | Library Sno-Isle BOND (Camano Island) | 0.0000000000 | $223,484 | $0 | $0.00 | | |
| LIB | Library Sno-Isle GEN | 0.3153421757 | $223,484 | $40,468 | $12.76 | | |
| SCH205_401 | School 205-401 Enrichment | 0.0000000000 | $223,484 | $0 | $0.00 | | |
| SCH205BOND | School 205-401 BOND | 0.0000000000 | $223,484 | $0 | $0.00 | | |
| ST | State School | 1.3035497053 | $223,484 | $40,468 | $52.75 | | |
| ST2 | State School Part 2 | 0.0000000000 | $223,484 | $0 | $0.00 | | |
| | Total Tax Rate: | 4.0978975026 | | | | | |
| | | | | Taxes w/Current Exemptions: | $165.83 | | |
| | | | | Taxes w/o Exemptions: | $1,636.12 | | |
Improvement / Building
| Improvement #1: | MANUFACTURED HOME | State Code: | Y | 958.0 sqft | Value: | $13,484 |
| Bathrooms: | 0 | Bedrooms: | 0 | | Ceiling: | PLASTER PAINTED | Cooling: | EVAP NO DUCT | | Exterior Wall/Cover: | VINYL | Floor Covering: | CARPET 100% | | Floor Structure: | SLAB ON GRADE | Foundation: | SLAB | | Heating: | FHA ELECTRIC | Interior Finish: | PLASTER | | Plumbing Fixture Cnt: | 1 | Roof Slope: | FLAT | | Roof Structure/Cover: | CJ ALUMINIUM HEAVY |   |   |
|
| | Type | Description | Class CD | Sub Class CD | Year Built | Area |
| | BAS | BASE/MAIN FLOOR | 3 | 0 | 1973 | 958.0 |
| | UTY | STORAGE/UTILITY | 3 | 0 | 1973 | 168.1 |
| | UTY | STORAGE/UTILITY | 3 | 0 | 1973 | 308.0 |
| | CPD | OPEN CARPORT DIRT FLOOR | 3 | 0 | 1973 | 108.0 |
Sketch
Property Image
Land
| 1 | 15 | SQ (12001-21780) | 0.0000 | 0.00 | 0.00 | 0.00 | 1.00 | $210,000 | $0 |
Roll Value History
| 2026 | N/A | N/A | N/A | N/A | N/A |
| 2025 | $13,484 | $210,000 | $0 | $223,484 | $40,468 |
| 2024 | $13,933 | $200,000 | $0 | $213,933 | $40,468 |
| 2023 | $14,831 | $190,000 | $0 | $204,831 | $40,468 |
| 2022 | $14,243 | $180,000 | $0 | $194,243 | $40,468 |
| 2021 | $10,599 | $130,000 | $0 | $140,599 | $40,468 |
| 2020 | $11,171 | $90,000 | $0 | $101,171 | $40,468 |
| 2019 | $9,263 | $130,000 | $0 | $139,263 | $139,263 |
| 2018 | $9,725 | $120,000 | $0 | $129,725 | $0 |
| 2017 | $10,188 | $75,000 | $0 | $85,188 | $0 |
| 2016 | $10,651 | $50,000 | $0 | $60,651 | $0 |
| 2015 | $16,885 | $40,000 | $0 | $56,885 | $0 |
| 2014 | $17,305 | $40,000 | $0 | $57,305 | $57,305 |
| 2013 | $17,516 | $40,000 | $0 | $57,516 | $57,516 |
| 2012 | $17,936 | $66,400 | $0 | $84,336 | $84,336 |
| 2011 | $18,146 | $83,000 | $0 | $101,146 | $101,146 |
| 2010 | $18,778 | $83,000 | $0 | $101,778 | $101,778 |
| 2009 | $19,007 | $80,000 | $0 | $99,007 | $99,007 |
| 2008 | $19,101 | $105,000 | $0 | $124,101 | $124,101 |
| 2007 | $19,196 | $116,000 | $0 | $135,196 | $135,196 |
Deed and Sales History
| 1 | 07/01/2019 | WD | Warranty Deed | DOKKEN, GARY ORDELL | MCCASKILL, CHRISANN | | | $120,000.00 | 39275 | 4466581 |
| 2 | 10/07/2015 | WD | Warranty Deed | OGLAND, ODDVAR | DOKKEN, GARY ORDELL | | | $58,500.00 | 21677 | 4387395 |
| 3 | 02/14/2008 | PRD | Personal Representatives Deed | OGLAND, ODDVAR | OGLAND, ODDVAR | | | $0.00 | 80488 | 4222929 |
| 4 | 08/03/2005 | WD | Warranty Deed | BENTLEY, FREDERICK L/NANCY | OGLAND, ODDVAR | | | $112,000.00 | 53900 | 4143715 |
| 5 | 08/31/2004 | WD | Warranty Deed | CARLSON, MARION L | BENTLEY, FREDERICK L/NANCY | | | $92,000.00 | 44132 | 4111876 |
| 6 | 06/01/1987 | OTHER | Other - Misc. Documents | LANGDALE, ROBERT L | CARLSON, MARION L | | | $12,000.00 | 71699 | 0 |
| 7 | 05/01/1987 | WD | Warranty Deed | Unknown | CARLSON, MARION L | | | $18,000.00 | 71530 | 87007238 |
| 8 | 03/01/1981 | EZ | Easement | CARLSON, MARION L | LANGDALE, ROBERT L | | | $11,000.00 | 10731 | 380491 |
| 9 | 09/01/1978 | OTHER | Other - Misc. Documents | CARLSON, MARION L | HAYNES, STEVEN D | | | $5,000.00 | 84882 | 340713 |
Payout Agreement
| No payout information available.. |