Property
Account |
| Property ID: | 72316 | Abbreviated Legal Description: | 32 - N/2 SW SW NW W OF RD |
| Geographic ID: | R23102-317-0100 | Agent Code: | |
| Type: | Real | | |
| Tax Area: | 519 - APPRAISER-Stan/Cam Schl Dist, vacant & 50 acres or less | Land Use Code | 91 |
| Open Space: | N | DFL | N |
| Historic Property: | N | Remodel Property: | N |
| Multi-Family Redevelopment: | N | | |
| Township: | 31 | Section: | 02 |
| Range: | R2 |
Location |
| Address: | CAMANO ISLAND, WA 98282 | Mapsco: | |
| Neighborhood: | Cycle 5 | Map ID: | 455 |
| Neighborhood CD: | 5 |
Owner |
| Name: | ELLSTROM TTEE, ERICK S | Owner ID: | 302253 |
| Mailing Address: | 1540 NW BALLARD WAY SEATTLE, WA 98107 | % Ownership: | 100.0000000000% |
| | | Exemptions: | |
Taxes and Assessment Details
Values
| (+) Improvement Homesite Value: | + | $0 | |
| (+) Improvement Non-Homesite Value: | + | $0 | |
| (+) Land Homesite Value: | + | $0 | |
| (+) Land Non-Homesite Value: | + | $140,000 | |
| (+) Curr Use (HS): | + | $0 | $0 |
| (+) Curr Use (NHS): | + | $0 | $0 |
| | | -------------------------- | |
| (=) Market Value: | = | $140,000 | |
| (–) Productivity Loss: | – | $0 | |
| | | -------------------------- | |
| (=) Subtotal: | = | $140,000 | |
| (+) Senior Appraised Value: | + | $0 | |
| (+) Non-Senior Appraised Value: | + | $140,000 | |
| | | -------------------------- | |
| (=) Total Appraised Value: | = | $140,000 | |
| (–) Senior Exemption Loss: | – | $0 | |
| (–) Exemption Loss: | – | $0 | |
| | | -------------------------- | |
| (=) Taxable Value: | = | $140,000 | |
Taxing Jurisdiction
| Owner: | ELLSTROM TTEE, ERICK S | | |
| % Ownership: | 100.0000000000% | | |
| Total Value: | $140,000 | | |
| Tax Area: | 519 - APPRAISER-Stan/Cam Schl Dist, vacant & 50 acres or less |
| CF | Conservation Futures | 0.0316035091 | $140,000 | $140,000 | $4.42 | | |
| EMS1 | Fire & Rescue Dist #1 Camano GEN (EMS) | 0.3677864386 | $140,000 | $140,000 | $51.49 | | |
| CE | County Current Expense | 0.3708482477 | $140,000 | $140,000 | $51.92 | | |
| CR | County Roads | 0.4584763726 | $140,000 | $140,000 | $64.19 | | |
| LCIB | Library Sno-Isle BOND (Camano Island) | 0.0396325772 | $140,000 | $140,000 | $5.55 | | |
| LIB | Library Sno-Isle GEN | 0.3153421757 | $140,000 | $140,000 | $44.15 | | |
| SCH205_401 | School 205-401 Enrichment | 1.2698420524 | $140,000 | $140,000 | $177.78 | | |
| SCH205BOND | School 205-401 BOND | 0.9396497583 | $140,000 | $140,000 | $131.55 | | |
| ST | State School | 1.3035497053 | $140,000 | $140,000 | $182.50 | | |
| ST2 | State School Part 2 | 0.8169543533 | $140,000 | $140,000 | $114.37 | | |
| | Total Tax Rate: | 5.9136851902 | | | | | |
| | | | | Taxes w/Current Exemptions: | $827.92 | | |
| | | | | Taxes w/o Exemptions: | $827.92 | | |
Improvement / Building
Sketch
| No sketches available for this property. |
Property Image
Land
| 1 | 17 | AC (01.01-02.00) | 1.3000 | 56628.00 | 0.00 | 0.00 | 1.00 | $140,000 | $0 |
Roll Value History
| 2026 | N/A | N/A | N/A | N/A | N/A |
| 2025 | $0 | $140,000 | $0 | $140,000 | $140,000 |
| 2024 | $0 | $130,000 | $0 | $130,000 | $130,000 |
| 2023 | $0 | $120,000 | $0 | $120,000 | $120,000 |
| 2022 | $0 | $110,000 | $0 | $110,000 | $110,000 |
| 2021 | $0 | $80,000 | $0 | $80,000 | $80,000 |
| 2020 | $0 | $80,000 | $0 | $80,000 | $80,000 |
| 2019 | $0 | $80,000 | $0 | $80,000 | $80,000 |
| 2018 | $0 | $80,000 | $0 | $80,000 | $80,000 |
| 2017 | $0 | $80,000 | $0 | $80,000 | $80,000 |
| 2016 | $0 | $75,000 | $0 | $75,000 | $75,000 |
| 2015 | $0 | $91,200 | $0 | $91,200 | $91,200 |
| 2014 | $0 | $91,200 | $0 | $91,200 | $91,200 |
| 2013 | $0 | $91,200 | $0 | $91,200 | $91,200 |
| 2012 | $0 | $91,200 | $0 | $91,200 | $91,200 |
| 2011 | $0 | $91,200 | $0 | $91,200 | $91,200 |
| 2010 | $0 | $91,200 | $0 | $91,200 | $91,200 |
| 2009 | $0 | $140,400 | $0 | $140,400 | $140,400 |
| 2008 | $0 | $145,600 | $0 | $145,600 | $145,600 |
| 2007 | $0 | $135,000 | $0 | $135,000 | $135,000 |
Deed and Sales History
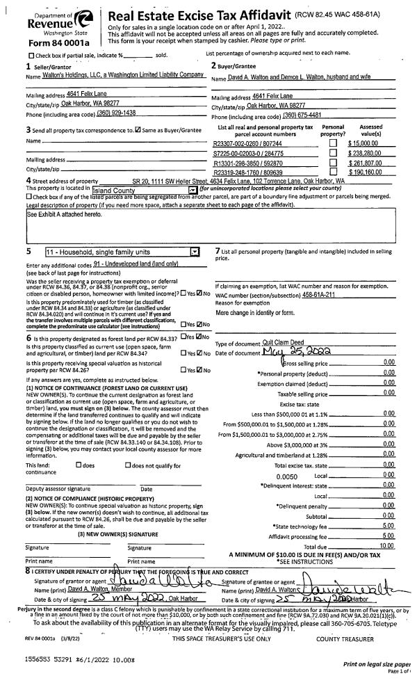
| 1 | 11/09/2021 | QCD | Quit Claim Deed | SPRUTE TTEE, HERB | ELLSTROM TTEE, ERICK S | | | $0.00 | 51212 | 4535259 |
| 2 | 05/07/2018 | QCD | Quit Claim Deed | ELLSTROM TRUSTEE, SVEN H | SPRUTE TTEE, HERB | | | $0.00 | 34366 | 4445479 |
| 3 | 02/22/2006 | 5 | DNU - Marriage License/Name Change | ELLSTROM, SVEN H | ELLSTROM TRUSTEE, SVEN H | | | $0.00 | 60913 | 4163692 |
| 4 | 12/21/2005 | ESTSEPPROP | Establish Separate Property | ELLSTROM, SVEN H | ELLSTROM, SVEN H | | | $0.00 | 60912 | 4163691 |
| 5 | 01/01/1900 | OTHER | Other - Misc. Documents | Unknown | ELLSTROM, SVEN H | | | $0.00 | 0 | 0 |
Payout Agreement
| No payout information available.. |