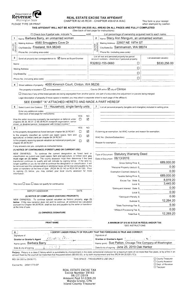
Property
Account |
| Property ID: | 723186 | Abbreviated Legal Description: | IDLEWOOD 1 LOT 25 |
| Geographic ID: | S7220-00-00025-0 | Agent Code: | |
| Type: | Real | | |
| Tax Area: | 540 - APPRAISER-Stan/Cam Schl Dist, Special Dist, improved & less than 1 acre | Land Use Code | 11 |
| Open Space: | N | DFL | N |
| Historic Property: | N | Remodel Property: | N |
| Multi-Family Redevelopment: | N | | |
| Township: | | Section: | |
| Range: | |
Location |
| Address: | 2754 MAPLE TREE LN CAMANO ISLAND, WA 98282 | Mapsco: | |
| Neighborhood: | Cycle 5 | Map ID: | 852 |
| Neighborhood CD: | 5 |
Owner |
| Name: | MILLER, JAMES R | Owner ID: | 295672 |
| Mailing Address: | 2754 MAPLE TREE LN CAMANO ISLAND, WA 98282 | % Ownership: | 100.0000000000% |
| | | Exemptions: | SNR/DSBL |
Taxes and Assessment Details
Values
| (+) Improvement Homesite Value: | + | $135,826 | |
| (+) Improvement Non-Homesite Value: | + | $0 | |
| (+) Land Homesite Value: | + | $210,000 | |
| (+) Land Non-Homesite Value: | + | $0 | |
| (+) Curr Use (HS): | + | $0 | $0 |
| (+) Curr Use (NHS): | + | $0 | $0 |
| | | -------------------------- | |
| (=) Market Value: | = | $345,826 | |
| (–) Productivity Loss: | – | $0 | |
| | | -------------------------- | |
| (=) Subtotal: | = | $345,826 | |
| (+) Senior Appraised Value: | + | $232,925 | |
| (+) Non-Senior Appraised Value: | + | $0 | |
| | | -------------------------- | |
| (=) Total Appraised Value: | = | $232,925 | |
| (–) Senior Exemption Loss: | – | $139,755 | |
| (–) Exemption Loss: | – | $0 | |
| | | -------------------------- | |
| (=) Taxable Value: | = | $93,170 | |
Taxing Jurisdiction
| Owner: | MILLER, JAMES R | | |
| % Ownership: | 100.0000000000% | | |
| Total Value: | $345,826 | | |
| Tax Area: | 540 - APPRAISER-Stan/Cam Schl Dist, Special Dist, improved & less than 1 acre |
| CF | Conservation Futures | 0.0316035091 | $345,826 | $93,170 | $2.94 | | |
| EMS1 | Fire & Rescue Dist #1 Camano GEN (EMS) | 0.3677864386 | $345,826 | $93,170 | $34.27 | | |
| FIRE1 | Fire & Rescue Dist #1 Camano GEN | 1.2502910536 | $345,826 | $93,170 | $116.49 | | |
| FIRE1BOND | Fire & Rescue Dist #1 Camano BOND | 0.0000000000 | $345,826 | $0 | $0.00 | | |
| CE | County Current Expense | 0.3708482477 | $345,826 | $93,170 | $34.55 | | |
| CR | County Roads | 0.4584763726 | $345,826 | $93,170 | $42.72 | | |
| LCIB | Library Sno-Isle BOND (Camano Island) | 0.0000000000 | $345,826 | $0 | $0.00 | | |
| LIB | Library Sno-Isle GEN | 0.3153421757 | $345,826 | $93,170 | $29.38 | | |
| SCH205_401 | School 205-401 Enrichment | 0.0000000000 | $345,826 | $0 | $0.00 | | |
| SCH205BOND | School 205-401 BOND | 0.0000000000 | $345,826 | $0 | $0.00 | | |
| ST | State School | 1.3035497053 | $345,826 | $93,170 | $121.45 | | |
| ST2 | State School Part 2 | 0.0000000000 | $345,826 | $0 | $0.00 | | |
| | Total Tax Rate: | 4.0978975026 | | | | | |
| | | | | Taxes w/Current Exemptions: | $381.80 | | |
| | | | | Taxes w/o Exemptions: | $2,531.77 | | |
Improvement / Building
| Improvement #1: | MANUFACTURED HOME | State Code: | Y | 1080.0 sqft | Value: | $135,826 |
| Bathrooms: | 0 | Bedrooms: | 0 | | Ceiling: | PLASTER PAINTED | Cooling: | EVAP NO DUCT | | Exterior Wall/Cover: | VINYL | Floor Covering: | CARPET 100% | | Floor Structure: | SLAB ON GRADE | Foundation: | SLAB | | Heating: | FHA ELECTRIC | Interior Finish: | PLASTER | | Plumbing Fixture Cnt: | 1 | Roof Slope: | FLAT | | Roof Structure/Cover: | CJ ALUMINIUM HEAVY |   |   |
|
| | Type | Description | Class CD | Sub Class CD | Year Built | Area |
| | BAS | BASE/MAIN FLOOR | 4 | 0 | 1991 | 1080.0 |
| | DGR | DETACHED GARAGE | 4 | 0 | 1991 | 624.0 |
| | OWC | OPEN WOOD PORCH W/STEPS/ROOF/C | 4 | 0 | 1991 | 256.0 |
| | OWC | OPEN WOOD PORCH W/STEPS/ROOF/C | 4 | 0 | 1991 | 138.0 |
Sketch
Property Image
Land
| 1 | 15 | SQ (12001-21780) | 0.0000 | 0.00 | 0.00 | 0.00 | 1.00 | $210,000 | $0 |
Roll Value History
| 2026 | N/A | N/A | N/A | N/A | N/A |
| 2025 | $135,826 | $210,000 | $0 | $345,826 | $93,170 |
| 2024 | $139,448 | $200,000 | $0 | $339,448 | $93,170 |
| 2023 | $124,415 | $190,000 | $0 | $314,415 | $93,170 |
| 2022 | $115,502 | $180,000 | $0 | $295,502 | $93,170 |
| 2021 | $102,925 | $130,000 | $0 | $232,925 | $93,170 |
| 2020 | $82,057 | $90,000 | $0 | $172,057 | $172,057 |
| 2019 | $66,476 | $130,000 | $0 | $196,476 | $196,476 |
| 2018 | $67,399 | $120,000 | $0 | $187,399 | $40,994 |
| 2017 | $69,247 | $75,000 | $0 | $144,247 | $40,994 |
| 2016 | $71,093 | $50,000 | $0 | $121,093 | $40,994 |
| 2015 | $74,825 | $40,000 | $0 | $114,825 | $40,994 |
| 2014 | $76,206 | $40,000 | $0 | $116,206 | $40,994 |
| 2013 | $77,588 | $40,000 | $0 | $117,588 | $40,994 |
| 2012 | $78,969 | $66,400 | $0 | $145,369 | $40,994 |
| 2011 | $80,351 | $83,000 | $0 | $163,351 | $40,994 |
| 2010 | $86,378 | $83,000 | $0 | $169,378 | $40,994 |
| 2009 | $83,530 | $80,254 | $0 | $163,784 | $34,883 |
| 2008 | $85,604 | $104,628 | $0 | $190,232 | $34,883 |
| 2007 | $87,182 | $115,567 | $0 | $202,749 | $34,883 |
Deed and Sales History
| 1 | 08/11/2020 | WD | Warranty Deed | BENTHIN, DAN L | MILLER, JAMES R | | | $315,000.00 | 44274 | 4494037 |
| 2 | 04/12/2018 | TOD | Transfer On Death Deed | BENTHIN, VONCILE | BENTHIN, DAN L | | | $0.00 | 40102 | 4442807 |
| 3 | 11/01/1993 | OTHER | Other - Misc. Documents | JOHNSON, DONALD R | BENTHIN, VONCILE E | | | $39,500.00 | 34381 | 0 |
| 4 | 11/01/1993 | WD | Warranty Deed | Unknown | BENTHIN, VONCILE | | | $50,000.00 | 34380 | 93022859 |
| 5 | 11/01/1993 | WD | Warranty Deed | HANSEN, ARNOLD C | BENTHIN, VONCILE | | | $0.00 | 40730 | 94004611 |
| 6 | 11/01/1991 | OTHER | Other - Misc. Documents | Unknown | JOHNSON, DONALD R | | | $37,075.00 | 11111111 | 0 |
| 7 | 10/01/1991 | WD | Warranty Deed | HANSEN, ARNOLD C | JOHNSTON, DONALD R | | | $29,950.00 | 13831 | 91016384 |
| 8 | 06/01/1990 | WD | Warranty Deed | FOX, JACK H | HANSEN, ARNOLD C | | | $15,000.00 | 3753 | 90012266 |
| 9 | 01/01/1900 | OTHER | Other - Misc. Documents | BENTHIN, VONCILE E | FOX, JACK H | | | $0.00 | 0 | 0 |
Payout Agreement
| No payout information available.. |