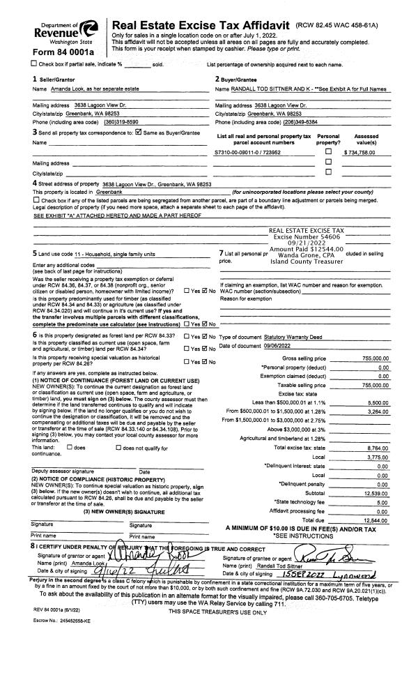
Property
Account |
| Property ID: | 72352 | Abbreviated Legal Description: | 12 - SE NW |
| Geographic ID: | R23102-335-2000 | Agent Code: | |
| Type: | Real | | |
| Tax Area: | 519 - APPRAISER-Stan/Cam Schl Dist, vacant & 50 acres or less | Land Use Code | 88 |
| Open Space: | N | DFL | Y |
| Historic Property: | N | Remodel Property: | N |
| Multi-Family Redevelopment: | N | | |
| Township: | 31 | Section: | 02 |
| Range: | R2 |
Location |
| Address: | CAMANO ISLAND, WA 98282 | Mapsco: | |
| Neighborhood: | Cycle 5 | Map ID: | 455 |
| Neighborhood CD: | 5 |
Owner |
| Name: | SUNNY LANE ACRES LLC | Owner ID: | 298444 |
| Mailing Address: | 8825 34TH AVE NE STE L-120 TULALIP, WA 98271 | % Ownership: | 100.0000000000% |
| | | Exemptions: | |
Taxes and Assessment Details
Values
| (+) Improvement Homesite Value: | + | $0 | |
| (+) Improvement Non-Homesite Value: | + | $0 | |
| (+) Land Homesite Value: | + | $0 | |
| (+) Land Non-Homesite Value: | + | $0 | |
| (+) Curr Use (HS): | + | $0 | $0 |
| (+) Curr Use (NHS): | + | $640,000 | $6,575 |
| | | -------------------------- | |
| (=) Market Value: | = | $640,000 | |
| (–) Productivity Loss: | – | $633,425 | |
| | | -------------------------- | |
| (=) Subtotal: | = | $6,575 | |
| (+) Senior Appraised Value: | + | $0 | |
| (+) Non-Senior Appraised Value: | + | $6,575 | |
| | | -------------------------- | |
| (=) Total Appraised Value: | = | $6,575 | |
| (–) Senior Exemption Loss: | – | $0 | |
| (–) Exemption Loss: | – | $0 | |
| | | -------------------------- | |
| (=) Taxable Value: | = | $6,575 | |
Taxing Jurisdiction
| Owner: | SUNNY LANE ACRES LLC | | |
| % Ownership: | 100.0000000000% | | |
| Total Value: | $640,000 | | |
| Tax Area: | 519 - APPRAISER-Stan/Cam Schl Dist, vacant & 50 acres or less |
| CF | Conservation Futures | 0.0316035091 | $6,575 | $6,575 | $0.21 | | |
| EMS1 | Fire & Rescue Dist #1 Camano GEN (EMS) | 0.3677864386 | $6,575 | $6,575 | $2.42 | | |
| CE | County Current Expense | 0.3708482477 | $6,575 | $6,575 | $2.44 | | |
| CR | County Roads | 0.4584763726 | $6,575 | $6,575 | $3.01 | | |
| LCIB | Library Sno-Isle BOND (Camano Island) | 0.0396325772 | $6,575 | $6,575 | $0.26 | | |
| LIB | Library Sno-Isle GEN | 0.3153421757 | $6,575 | $6,575 | $2.07 | | |
| SCH205_401 | School 205-401 Enrichment | 1.2698420524 | $6,575 | $6,575 | $8.35 | | |
| SCH205BOND | School 205-401 BOND | 0.9396497583 | $6,575 | $6,575 | $6.18 | | |
| ST | State School | 1.3035497053 | $6,575 | $6,575 | $8.57 | | |
| ST2 | State School Part 2 | 0.8169543533 | $6,575 | $6,575 | $5.37 | | |
| | Total Tax Rate: | 5.9136851902 | | | | | |
| | | | | Taxes w/Current Exemptions: | $38.88 | | |
| | | | | Taxes w/o Exemptions: | $38.88 | | |
Improvement / Building
Sketch
| No sketches available for this property. |
Property Image
Land
| 1 | 88 | DESIGNATED FOREST | 23.4000 | 1019304.00 | 0.00 | 0.00 | 1.00 | $374,400 | $3,487 |
| 2 | 88 | DESIGNATED FOREST | 16.6000 | 723096.00 | 0.00 | 0.00 | 1.00 | $265,600 | $3,088 |
Roll Value History
| 2026 | N/A | N/A | N/A | N/A | N/A |
| 2025 | $0 | $640,000 | $6,575 | $6,575 | $6,575 |
| 2024 | $0 | $630,000 | $6,614 | $6,614 | $6,614 |
| 2023 | $0 | $600,000 | $6,341 | $6,341 | $6,341 |
| 2022 | $0 | $600,000 | $6,341 | $6,341 | $6,341 |
| 2021 | $0 | $370,000 | $6,341 | $6,341 | $6,341 |
| 2020 | $0 | $350,000 | $6,341 | $6,341 | $6,341 |
| 2019 | $0 | $350,000 | $6,125 | $6,125 | $6,125 |
| 2018 | $0 | $300,000 | $6,045 | $6,045 | $6,045 |
| 2017 | $0 | $300,000 | $6,045 | $6,045 | $6,045 |
| 2016 | $0 | $300,000 | $4,040 | $4,040 | $4,040 |
| 2015 | $0 | $348,000 | $4,040 | $4,040 | $4,040 |
| 2014 | $0 | $348,000 | $4,040 | $4,040 | $4,040 |
| 2013 | $0 | $348,000 | $4,040 | $4,040 | $4,040 |
| 2012 | $0 | $348,000 | $4,040 | $4,040 | $4,040 |
| 2011 | $0 | $348,000 | $4,040 | $4,040 | $4,040 |
| 2010 | $0 | $348,000 | $4,040 | $4,040 | $4,040 |
| 2009 | $0 | $400,000 | $4,040 | $4,040 | $4,040 |
| 2008 | $0 | $400,000 | $4,040 | $4,040 | $4,040 |
| 2007 | $0 | $400,000 | $4,040 | $4,040 | $4,040 |
Deed and Sales History
| 1 | 02/16/2021 | QCD | Quit Claim Deed | FOJTIK, LACY JIM | SUNNY LANE ACRES LLC | | | $0.00 | 47297 | 4513268 |
| 2 | 09/14/2020 | QCD | Quit Claim Deed | MOK, SIU KIT | FOJTIK, LACY JIM | | | $0.00 | 44914 | 4497572 |
| 3 | 09/19/2020 | TRUSTEED | Trustee's Deed | RUTHERFORD, GERTRUDE S | FOJTIK, LACY JIM | | | $549,000.00 | 44911 | 4497571 |
| 4 | 02/01/1999 | QCD | Quit Claim Deed | RUTHERFORD, GERTRUDE S | RUTHERFORD, GERTRUDE S | | | $0.00 | 90401 | 99002614 |
| 5 | 08/01/1997 | OTHER | Other - Misc. Documents | RUTHERFORD, GERTRUDE S | RUTHERFORD, GERTRUDE S | | | $0.00 | 67535 | 97011969 |
| 6 | 03/01/1991 | WD | Warranty Deed | RUTHERFORD, GERTRUDE E | RUTHERFORD, GERTRUDE S | | | $0.00 | 12349 | 91010088 |
| 7 | 01/01/1900 | OTHER | Other - Misc. Documents | Unknown | RUTHERFORD, GERTRUDE E | | | $0.00 | 0 | 0 |
Payout Agreement
| No payout information available.. |