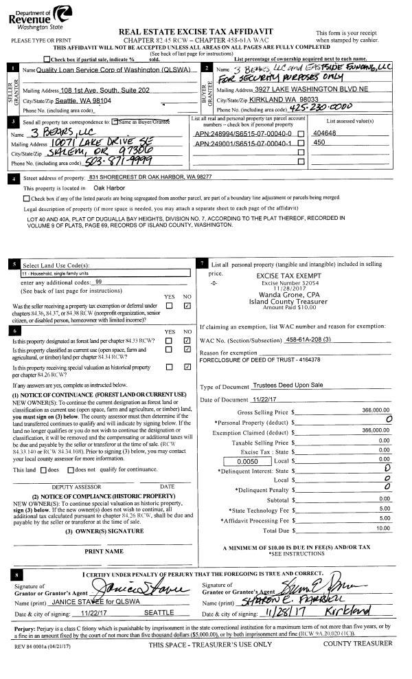
Property
Account |
| Property ID: | 723854 | Abbreviated Legal Description: | LAGOON PT LOT 20 BLK 6 INCL ADJ TIDES |
| Geographic ID: | S7310-00-06020-0 | Agent Code: | |
| Type: | Real | | |
| Tax Area: | 320 - APPRAISER-Cpvl Schl Dist, Special Dist, improved & less than 1 acre | Land Use Code | 11 |
| Open Space: | N | DFL | N |
| Historic Property: | N | Remodel Property: | N |
| Multi-Family Redevelopment: | N | | |
| Township: | | Section: | |
| Range: | |
Location |
| Address: | 3588 SEASHORE AVE GREENBANK, WA 98253 | Mapsco: | |
| Neighborhood: | Cycle 3 | Map ID: | 388 |
| Neighborhood CD: | 3 |
Owner |
| Name: | SULLIVAN ET AL, MICHAEL D | Owner ID: | 190008 |
| Mailing Address: | PATRICIA A SHELTON DIANE L RAINS 18818 181ST PL NE WOODINVILLE, WA 98077-8223 | % Ownership: | 100.0000000000% |
| | | Exemptions: | |
Taxes and Assessment Details
Values
| (+) Improvement Homesite Value: | + | $0 | |
| (+) Improvement Non-Homesite Value: | + | $273,417 | |
| (+) Land Homesite Value: | + | $0 | |
| (+) Land Non-Homesite Value: | + | $690,600 | |
| (+) Curr Use (HS): | + | $0 | $0 |
| (+) Curr Use (NHS): | + | $0 | $0 |
| | | -------------------------- | |
| (=) Market Value: | = | $964,017 | |
| (–) Productivity Loss: | – | $0 | |
| | | -------------------------- | |
| (=) Subtotal: | = | $964,017 | |
| (+) Senior Appraised Value: | + | $0 | |
| (+) Non-Senior Appraised Value: | + | $964,017 | |
| | | -------------------------- | |
| (=) Total Appraised Value: | = | $964,017 | |
| (–) Senior Exemption Loss: | – | $0 | |
| (–) Exemption Loss: | – | $0 | |
| | | -------------------------- | |
| (=) Taxable Value: | = | $964,017 | |
Taxing Jurisdiction
| Owner: | SULLIVAN ET AL, MICHAEL D | | |
| % Ownership: | 100.0000000000% | | |
| Total Value: | $964,017 | | |
| Tax Area: | 320 - APPRAISER-Cpvl Schl Dist, Special Dist, improved & less than 1 acre |
| CF | Conservation Futures | 0.0316035091 | $964,017 | $964,017 | $30.47 | | |
| CEM2 | Cemetery #2 | 0.0095056933 | $964,017 | $964,017 | $9.16 | | |
| FIRE5 | Fire & Rescue Dist #5 C Whidbey GEN | 1.2008080668 | $964,017 | $964,017 | $1,157.60 | | |
| FIRE5BOND | Fire & Rescue Dist #5 C Whidbey BOND | 0.1400090713 | $964,017 | $964,017 | $134.97 | | |
| HOBOND | Hospital BOND | 0.1910887512 | $964,017 | $964,017 | $184.21 | | |
| HOGEN | Hospital GEN | 0.3902502903 | $964,017 | $964,017 | $376.21 | | |
| CE | County Current Expense | 0.3708482477 | $964,017 | $964,017 | $357.50 | | |
| CR | County Roads | 0.4584763726 | $964,017 | $964,017 | $441.98 | | |
| ISLANDEMS | Hospital GEN (EMS) | 0.5000000000 | $964,017 | $964,017 | $482.01 | | |
| LIB | Library Sno-Isle GEN | 0.3153421757 | $964,017 | $964,017 | $304.00 | | |
| LIBCAP | Library Sno-Isle BOND (Cap Fac Imp Area) | 0.0543427938 | $964,017 | $964,017 | $52.39 | | |
| POCOUP | Port of Coupeville GEN | 0.1093371703 | $964,017 | $964,017 | $105.40 | | |
| POCOUPIDD | Port of Coupeville IDD | 0.3409740022 | $964,017 | $964,017 | $328.70 | | |
| COUPSDTECH | School 204 CP (TECH) | 0.7545480007 | $964,017 | $964,017 | $727.40 | | |
| SCH204MO | School 204 Enrichment | 0.6716186034 | $964,017 | $964,017 | $647.45 | | |
| ST | State School | 1.3035497053 | $964,017 | $964,017 | $1,256.64 | | |
| ST2 | State School Part 2 | 0.8169543533 | $964,017 | $964,017 | $787.56 | | |
| | Total Tax Rate: | 7.6592568070 | | | | | |
| | | | | Taxes w/Current Exemptions: | $7,383.65 | | |
| | | | | Taxes w/o Exemptions: | $7,383.65 | | |
Improvement / Building
| Improvement #1: | RESIDENTIAL | State Code: | Y | 2799.0 sqft | Value: | $273,417 |
| Bathrooms: | 3 | Bedrooms: | 2 | | Ceiling: | DRYWALL PAINTED | Exterior Wall/Cover: | WOOD SIDING | | Floor Covering: | CARPET/VINYL 80-20 | Floor Structure: | WOOD W/SUBFLOOR | | Foundation: | CONCRETE | Heating: | WALL HEAT ELECTRIC | | Interior Finish: | DRYWALL PAINT | Plumbing Fixture Cnt: | 12 | | Roof Slope: | 3" IN 12" | Roof Structure/Cover: | CJ ASPHALT |
|
| | Type | Description | Class CD | Sub Class CD | Year Built | Area |
| | BAS | BASE/MAIN FLOOR | 3 | 0 | 1965 | 899.0 |
| | BIG | BUILT IN GARAGE | 3 | 0 | 1965 | 991.0 |
| | UPS | UPPER STORY | 3 | 0 | 1965 | 1900.0 |
| | BAW | BALCONY WOOD RAIL | 3 | 0 | 1965 | 700.0 |
| | OWC | OPEN WOOD PORCH W/STEPS/ROOF/C | 3 | 0 | 1965 | 16.0 |
Sketch
Property Image
Land
| 1 | LB | LOW BANK | 0.0000 | 0.00 | 58.00 | 0.00 | 1.00 | $690,000 | $0 |
| 2 | 55 | TIDES | 0.0000 | 0.00 | 60.00 | 0.00 | 1.00 | $600 | $0 |
Roll Value History
| 2026 | N/A | N/A | N/A | N/A | N/A |
| 2025 | $273,417 | $690,600 | $0 | $964,017 | $964,017 |
| 2024 | $277,880 | $690,600 | $0 | $968,480 | $968,480 |
| 2023 | $282,345 | $690,600 | $0 | $972,945 | $972,945 |
| 2022 | $259,715 | $660,600 | $0 | $920,315 | $920,315 |
| 2021 | $229,360 | $550,600 | $0 | $779,960 | $779,960 |
| 2020 | $224,644 | $550,600 | $0 | $775,244 | $775,244 |
| 2019 | $173,912 | $600,600 | $0 | $774,512 | $774,512 |
| 2018 | $174,568 | $500,600 | $0 | $675,168 | $675,168 |
| 2017 | $175,881 | $500,600 | $0 | $676,481 | $676,481 |
| 2016 | $178,505 | $500,600 | $0 | $679,105 | $679,105 |
| 2015 | $181,132 | $500,600 | $0 | $681,732 | $681,732 |
| 2014 | $183,756 | $500,600 | $0 | $684,356 | $684,356 |
| 2013 | $186,380 | $411,498 | $0 | $597,878 | $597,878 |
| 2012 | $189,007 | $411,498 | $0 | $600,505 | $600,505 |
| 2011 | $191,631 | $411,498 | $0 | $603,129 | $603,129 |
| 2010 | $204,320 | $411,498 | $0 | $615,818 | $615,818 |
| 2009 | $210,594 | $588,889 | $0 | $799,483 | $799,483 |
| 2008 | $213,333 | $543,637 | $0 | $756,970 | $756,970 |
| 2007 | $216,071 | $543,217 | $0 | $759,288 | $759,288 |
Deed and Sales History
| 1 | 06/01/2017 | QCD | Quit Claim Deed | SULLIVAN ET AL, MICHAEL D | SULLIVAN ET AL, MICHAEL D | | | $0.00 | 30048 | 4425571 |
| 2 | 05/05/2003 | QCD | Quit Claim Deed | SIEPMAN, ANNE L | SULLIVAN ET AL, MICHAEL D | | | $0.00 | 31421 | 4053908 |
| 3 | 02/01/1987 | OTHER | Other - Misc. Documents | SULLIVAN, KATHLEEN A | SIEPMAN, ANNE L | | | $0.00 | 61999 | 0 |
| 4 | 03/01/1986 | QCD | Quit Claim Deed | SIEPMAN, JOHN | SULLIVAN, KATHLEEN A | | | $0.00 | 60769 | 86003595 |
| 5 | 09/01/1963 | TRUSTEED | Trustee's Deed | COBB, FRANCES J | SIEPMAN, JOHN | | | $0.00 | 14944 | 0 |
| 6 | 01/01/1900 | OTHER | Other - Misc. Documents | Unknown | COBB, FRANCES J | | | $0.00 | 0 | 0 |
Payout Agreement
| No payout information available.. |