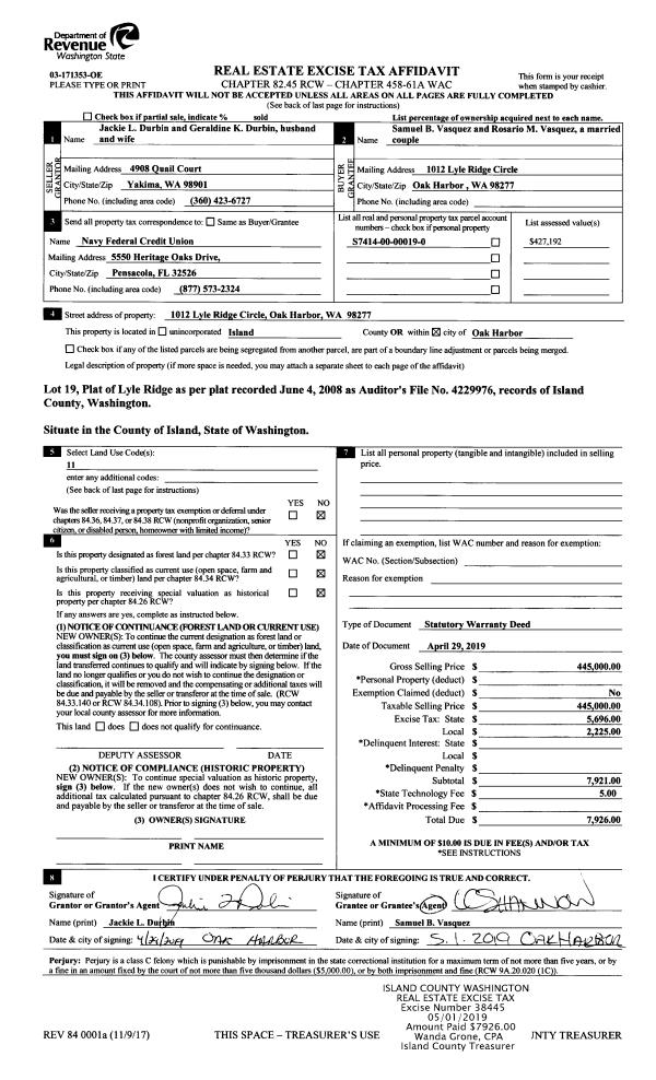
Property
Account |
| Property ID: | 723907 | Abbreviated Legal Description: | LAGOON PT LOT 4 & S/2 OF LOT 5 BLK 8 |
| Geographic ID: | S7310-00-08004-0 | Agent Code: | |
| Type: | Real | | |
| Tax Area: | 320 - APPRAISER-Cpvl Schl Dist, Special Dist, improved & less than 1 acre | Land Use Code | 11 |
| Open Space: | N | DFL | N |
| Historic Property: | N | Remodel Property: | N |
| Multi-Family Redevelopment: | N | | |
| Township: | | Section: | |
| Range: | |
Location |
| Address: | 3684 SMUGGLERS COVE RD GREENBANK, WA 98253 | Mapsco: | |
| Neighborhood: | Cycle 3 | Map ID: | 394 |
| Neighborhood CD: | 3 |
Owner |
| Name: | O'BRIEN, EDWARD J | Owner ID: | 289324 |
| Mailing Address: | TERESA L O'BRIEN, CARL D O'BRIEN AND KATHLEEN M O'BRIEN 1717 EAST LAS PALMARITAS DR PHOENIX, AZ 85020 | % Ownership: | 100.0000000000% |
| | | Exemptions: | |
Taxes and Assessment Details
Values
| (+) Improvement Homesite Value: | + | $0 | |
| (+) Improvement Non-Homesite Value: | + | $14,963 | |
| (+) Land Homesite Value: | + | $0 | |
| (+) Land Non-Homesite Value: | + | $220,000 | |
| (+) Curr Use (HS): | + | $0 | $0 |
| (+) Curr Use (NHS): | + | $0 | $0 |
| | | -------------------------- | |
| (=) Market Value: | = | $234,963 | |
| (–) Productivity Loss: | – | $0 | |
| | | -------------------------- | |
| (=) Subtotal: | = | $234,963 | |
| (+) Senior Appraised Value: | + | $0 | |
| (+) Non-Senior Appraised Value: | + | $234,963 | |
| | | -------------------------- | |
| (=) Total Appraised Value: | = | $234,963 | |
| (–) Senior Exemption Loss: | – | $0 | |
| (–) Exemption Loss: | – | $0 | |
| | | -------------------------- | |
| (=) Taxable Value: | = | $234,963 | |
Taxing Jurisdiction
| Owner: | O'BRIEN, EDWARD J | | |
| % Ownership: | 100.0000000000% | | |
| Total Value: | $234,963 | | |
| Tax Area: | 320 - APPRAISER-Cpvl Schl Dist, Special Dist, improved & less than 1 acre |
| CF | Conservation Futures | 0.0316035091 | $234,963 | $234,963 | $7.43 | | |
| CEM2 | Cemetery #2 | 0.0095056933 | $234,963 | $234,963 | $2.23 | | |
| FIRE5 | Fire & Rescue Dist #5 C Whidbey GEN | 1.2008080668 | $234,963 | $234,963 | $282.15 | | |
| FIRE5BOND | Fire & Rescue Dist #5 C Whidbey BOND | 0.1400090713 | $234,963 | $234,963 | $32.90 | | |
| HOBOND | Hospital BOND | 0.1910887512 | $234,963 | $234,963 | $44.90 | | |
| HOGEN | Hospital GEN | 0.3902502903 | $234,963 | $234,963 | $91.69 | | |
| CE | County Current Expense | 0.3708482477 | $234,963 | $234,963 | $87.14 | | |
| CR | County Roads | 0.4584763726 | $234,963 | $234,963 | $107.72 | | |
| ISLANDEMS | Hospital GEN (EMS) | 0.5000000000 | $234,963 | $234,963 | $117.48 | | |
| LIB | Library Sno-Isle GEN | 0.3153421757 | $234,963 | $234,963 | $74.09 | | |
| LIBCAP | Library Sno-Isle BOND (Cap Fac Imp Area) | 0.0543427938 | $234,963 | $234,963 | $12.77 | | |
| POCOUP | Port of Coupeville GEN | 0.1093371703 | $234,963 | $234,963 | $25.69 | | |
| POCOUPIDD | Port of Coupeville IDD | 0.3409740022 | $234,963 | $234,963 | $80.12 | | |
| COUPSDTECH | School 204 CP (TECH) | 0.7545480007 | $234,963 | $234,963 | $177.29 | | |
| SCH204MO | School 204 Enrichment | 0.6716186034 | $234,963 | $234,963 | $157.81 | | |
| ST | State School | 1.3035497053 | $234,963 | $234,963 | $306.29 | | |
| ST2 | State School Part 2 | 0.8169543533 | $234,963 | $234,963 | $191.95 | | |
| | Total Tax Rate: | 7.6592568070 | | | | | |
| | | | | Taxes w/Current Exemptions: | $1,799.65 | | |
| | | | | Taxes w/o Exemptions: | $1,799.65 | | |
Improvement / Building
| Improvement #1: | MANUFACTURED HOME | State Code: | Y | 840.0 sqft | Value: | $14,963 |
| Bathrooms: | 0 | Bedrooms: | 0 | | Ceiling: | PLASTER PAINTED | Cooling: | EVAP NO DUCT | | Exterior Wall/Cover: | VINYL | Floor Covering: | CARPET 100% | | Floor Structure: | SLAB ON GRADE | Foundation: | SLAB | | Heating: | FHA ELECTRIC | Interior Finish: | PLASTER | | Plumbing Fixture Cnt: | 1 | Roof Slope: | FLAT | | Roof Structure/Cover: | CJ ALUMINIUM HEAVY |   |   |
|
| | Type | Description | Class CD | Sub Class CD | Year Built | Area |
| | BAS | BASE/MAIN FLOOR | 3 | 0 | 1974 | 840.0 |
| | OWR | OPEN WOOD PORCH W/STEPS/ROOF | 3 | 0 | 1974 | 144.0 |
| | UTY | STORAGE/UTILITY | 3 | 0 | 1974 | 300.0 |
Sketch
Property Image
Land
| 1 | 15 | SQ (12001-21780) | 0.0000 | 0.00 | 0.00 | 0.00 | 1.00 | $220,000 | $0 |
Roll Value History
| 2026 | N/A | N/A | N/A | N/A | N/A |
| 2025 | $14,963 | $220,000 | $0 | $234,963 | $234,963 |
| 2024 | $15,710 | $240,000 | $0 | $255,710 | $255,710 |
| 2023 | $16,456 | $240,000 | $0 | $256,456 | $256,456 |
| 2022 | $15,948 | $240,000 | $0 | $255,948 | $255,948 |
| 2021 | $15,433 | $140,000 | $0 | $155,433 | $155,433 |
| 2020 | $15,487 | $115,000 | $0 | $130,487 | $130,487 |
| 2019 | $9,407 | $180,000 | $0 | $189,407 | $189,407 |
| 2018 | $9,445 | $150,000 | $0 | $159,445 | $159,445 |
| 2017 | $9,519 | $120,000 | $0 | $129,519 | $129,519 |
| 2016 | $9,667 | $90,000 | $0 | $99,667 | $99,667 |
| 2015 | $9,816 | $90,000 | $0 | $99,816 | $99,816 |
| 2014 | $9,964 | $85,000 | $0 | $94,964 | $94,964 |
| 2013 | $15,103 | $85,000 | $0 | $100,103 | $100,103 |
| 2012 | $15,246 | $85,000 | $0 | $100,246 | $100,246 |
| 2011 | $15,389 | $100,000 | $0 | $115,389 | $115,389 |
| 2010 | $7,744 | $100,000 | $0 | $107,744 | $107,744 |
| 2009 | $7,627 | $150,000 | $0 | $157,627 | $157,627 |
| 2008 | $7,636 | $175,000 | $0 | $182,636 | $182,636 |
| 2007 | $7,644 | $175,000 | $0 | $182,644 | $182,644 |
Deed and Sales History
| 1 | 04/18/2019 | WD | Warranty Deed | BOBINAC, DANIEL J | O'BRIEN, EDWARD J | | | $165,455.00 | 38050 | 4461303 |
| 2 | 06/18/2006 | WD | Warranty Deed | FREEMAN, HERSHEL | BOBINAC, DANIEL J | | | $169,000.00 | 62722 | 4173955 |
| 3 | 08/25/2000 | OTHER | Other - Misc. Documents | Unknown | FREEMAN, HERSHEL W/LAURIE R | | | $5,002.00 | 3223 | 0 |
| 4 | 08/18/2000 | WD | Warranty Deed | Unknown | FREEMAN, HERSHEL | | | $30,000.00 | 3224 | 20015109 |
| 5 | 07/14/1999 | OTHER | Other - Misc. Documents | ZWEIG, RONALD N | ZWEIG, ROBERT M | | | $5,978.00 | 92798 | 0 |
| 6 | 07/13/1999 | WD | Warranty Deed | ZWEIG, RONALD N | ZWEIG, ROBERT M | | | $53,830.00 | 92797 | 99016608 |
| 7 | 01/01/1990 | OTHER | Other - Misc. Documents | LINDBLAD, IDA J | ZWEIG, RONALD N | | | $13,000.00 | 234 | 0 |
| 8 | 12/01/1989 | REC | Real Estate Contract | LINDBLAD, IDA J | ZWEIG, RONALD N | | | $29,000.00 | 233 | 90000709 |
| 9 | 03/01/1984 | OTHER | Other - Misc. Documents | FREEMAN, HERSHEL W/LAURIE R | LINDBLAD, IDA J | | | $0.00 | 60439 | 0 |
| 10 | 03/01/1984 | OTHER | Other - Misc. Documents | LINDBLAD, IDA J | LINDBLAD, IDA J | | | $0.00 | 60439 | 0 |
| 11 | 09/01/1979 | PACD | Purchaser's Assignment | LINDBLAD, IDA J | LINDBLAD, IDA J | | | $0.00 | 59314 | 0 |
| 12 | 08/01/1978 | CD | DNU - Correction Deed | LINDBLAD, IDA J | LINDBLAD, IDA J | | | $0.00 | 0 | 10435 |
| 13 | 01/01/1900 | OTHER | Other - Misc. Documents | LINDBLAD, IDA J | LINDBLAD, IDA J | | | $0.00 | 0 | 0 |
| 14 | 01/01/1900 | OTHER | Other - Misc. Documents | ZWEIG, ROBERT M | LINDBLAD, IDA J | | | $0.00 | 0 | 0 |
Payout Agreement
| No payout information available.. |