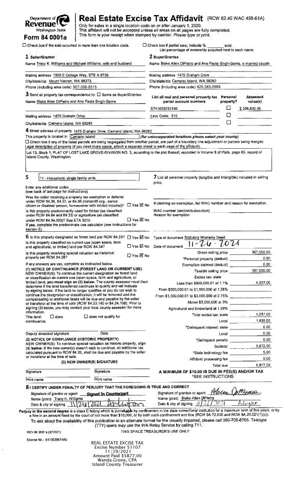
Property
Account |
| Property ID: | 724121 | Abbreviated Legal Description: | LANCASTER HTS LOT 21 |
| Geographic ID: | S7335-00-00021-0 | Agent Code: | |
| Type: | Real | | |
| Tax Area: | 710 - APPRAISER-S Whid Schl Dist, outside Langley, improved & 1 acre or less | Land Use Code | 11 |
| Open Space: | N | DFL | N |
| Historic Property: | N | Remodel Property: | N |
| Multi-Family Redevelopment: | N | | |
| Township: | | Section: | |
| Range: | |
Location |
| Address: | 6014 WHITE DEER LN FREELAND, WA 98249 | Mapsco: | |
| Neighborhood: | Cycle 3 | Map ID: | 340 |
| Neighborhood CD: | 3 |
Owner |
| Name: | ITHARAT, PITI | Owner ID: | 298851 |
| Mailing Address: | JILLIAN L ITHARAT 830 LAGOS PL #41 DULLES, VA 20198 | % Ownership: | 100.0000000000% |
| | | Exemptions: | |
Taxes and Assessment Details
Values
| (+) Improvement Homesite Value: | + | $0 | |
| (+) Improvement Non-Homesite Value: | + | $376,925 | |
| (+) Land Homesite Value: | + | $0 | |
| (+) Land Non-Homesite Value: | + | $340,000 | |
| (+) Curr Use (HS): | + | $0 | $0 |
| (+) Curr Use (NHS): | + | $0 | $0 |
| | | -------------------------- | |
| (=) Market Value: | = | $716,925 | |
| (–) Productivity Loss: | – | $0 | |
| | | -------------------------- | |
| (=) Subtotal: | = | $716,925 | |
| (+) Senior Appraised Value: | + | $0 | |
| (+) Non-Senior Appraised Value: | + | $716,925 | |
| | | -------------------------- | |
| (=) Total Appraised Value: | = | $716,925 | |
| (–) Senior Exemption Loss: | – | $0 | |
| (–) Exemption Loss: | – | $0 | |
| | | -------------------------- | |
| (=) Taxable Value: | = | $716,925 | |
Taxing Jurisdiction
| Owner: | ITHARAT, PITI | | |
| % Ownership: | 100.0000000000% | | |
| Total Value: | $716,925 | | |
| Tax Area: | 710 - APPRAISER-S Whid Schl Dist, outside Langley, improved & 1 acre or less |
| CF | Conservation Futures | 0.0316035091 | $716,925 | $716,925 | $22.66 | | |
| FIRE3 | Fire & Rescue Dist #3 S Whidbey GEN | 1.2004855531 | $716,925 | $716,925 | $860.66 | | |
| HOBOND | Hospital BOND | 0.1910887512 | $716,925 | $716,925 | $137.00 | | |
| HOGEN | Hospital GEN | 0.3902502903 | $716,925 | $716,925 | $279.78 | | |
| CE | County Current Expense | 0.3708482477 | $716,925 | $716,925 | $265.87 | | |
| CR | County Roads | 0.4584763726 | $716,925 | $716,925 | $328.69 | | |
| ISLANDEMS | Hospital GEN (EMS) | 0.5000000000 | $716,925 | $716,925 | $358.46 | | |
| LIB | Library Sno-Isle GEN | 0.3153421757 | $716,925 | $716,925 | $226.08 | | |
| PORTWHID | Port of S Whidbey GEN | 0.1094540357 | $716,925 | $716,925 | $78.47 | | |
| SCH206BOND | School 206 BOND | 0.3161759235 | $716,925 | $716,925 | $226.67 | | |
| SCH206MO | School 206 Enrichment | 0.4547169547 | $716,925 | $716,925 | $326.00 | | |
| ST | State School | 1.3035497053 | $716,925 | $716,925 | $934.55 | | |
| ST2 | State School Part 2 | 0.8169543533 | $716,925 | $716,925 | $585.70 | | |
| SWHIDPRBD | P & R S Whidbey BOND | 0.0152817568 | $716,925 | $716,925 | $10.96 | | |
| SWHIDPRBD2 | P & R S Whidbey BOND2 | 0.0138911264 | $716,925 | $716,925 | $9.96 | | |
| SWHIDPRMT | P & R S Whidbey GEN | 0.2053334452 | $716,925 | $716,925 | $147.21 | | |
| | Total Tax Rate: | 6.6934522006 | | | | | |
| | | | | Taxes w/Current Exemptions: | $4,798.72 | | |
| | | | | Taxes w/o Exemptions: | $4,798.72 | | |
Improvement / Building
| Improvement #1: | RESIDENTIAL | State Code: | Y | 2104.0 sqft | Value: | $376,925 |
| Bathrooms: | 3 | Bedrooms: | 3 | | Ceiling: | TONGUE & GROOVE | Exterior Wall/Cover: | VINYL | | Floor Covering: | CARPET/VINYL 80-20 | Floor Structure: | WOOD W/SUBFLOOR | | Foundation: | CONCRETE | Heating: | FHA GAS | | Interior Finish: | DRYWALL PAINT | Plumbing Fixture Cnt: | 13 | | Roof Slope: | FLAT | Roof Structure/Cover: | BEAM BUILT-UP ROCK |
|
| | Type | Description | Class CD | Sub Class CD | Year Built | Area |
| | BAS | BASE/MAIN FLOOR | 3 | 0 | 1968 | 1052.0 |
| | DWN | DOWNSTAIRS LIVING AREA | 3 | 0 | 1968 | 1052.0 |
| | AGR | ATTACHED GARAGE | 3 | 0 | 1968 | 546.0 |
| | OCP | OPEN CARPORT | 3 | 0 | 1968 | 118.7 |
| | UTY | STORAGE/UTILITY | 3 | 0 | 1968 | 484.0 |
| | OWP | OPEN WOOD PORCH W/STEPS | 3 | 0 | 1968 | 644.0 |
| | OWP | OPEN WOOD PORCH W/STEPS | 3 | 0 | 1968 | 222.0 |
| | OWP | OPEN WOOD PORCH W/STEPS | 3 | 0 | 1968 | 65.2 |
| | OWR | OPEN WOOD PORCH W/STEPS/ROOF | 3 | 0 | 1968 | 90.0 |
Sketch
Property Image
Land
| 1 | 15 | SQ (12001-21780) | 0.3100 | 13503.60 | 0.00 | 0.00 | 1.00 | $340,000 | $0 |
Roll Value History
| 2026 | N/A | N/A | N/A | N/A | N/A |
| 2025 | $376,925 | $340,000 | $0 | $716,925 | $716,925 |
| 2024 | $381,453 | $320,000 | $0 | $701,453 | $701,453 |
| 2023 | $385,980 | $300,000 | $0 | $685,980 | $685,980 |
| 2022 | $353,612 | $270,000 | $0 | $623,612 | $623,612 |
| 2021 | $311,044 | $190,000 | $0 | $501,044 | $501,044 |
| 2020 | $273,389 | $170,000 | $0 | $443,389 | $443,389 |
| 2019 | $195,202 | $200,000 | $0 | $395,202 | $395,202 |
| 2018 | $195,833 | $190,000 | $0 | $385,833 | $385,833 |
| 2017 | $197,088 | $175,000 | $0 | $372,088 | $372,088 |
| 2016 | $140,342 | $165,000 | $0 | $305,342 | $305,342 |
| 2015 | $142,645 | $165,000 | $0 | $307,645 | $307,645 |
| 2014 | $144,945 | $165,000 | $0 | $309,945 | $309,945 |
| 2013 | $149,994 | $125,000 | $0 | $274,994 | $274,994 |
| 2012 | $152,392 | $115,000 | $0 | $267,392 | $267,392 |
| 2011 | $154,792 | $115,000 | $0 | $269,792 | $269,792 |
| 2010 | $168,711 | $115,000 | $0 | $283,711 | $283,711 |
| 2009 | $173,877 | $167,040 | $0 | $340,917 | $340,917 |
| 2008 | $176,572 | $174,000 | $0 | $350,572 | $350,572 |
| 2007 | $160,849 | $174,000 | $0 | $334,849 | $334,849 |
Deed and Sales History
| 1 | 04/02/2021 | WD | Warranty Deed | BALLEW, KIMBERLI KAY | ITHARAT, PITI | | | $625,000.00 | 47733 | 4516293 |
| 2 | 05/25/2017 | WD | Warranty Deed | BRIGGS, ROBERT W | BALLEW, KIMBERLI KAY | | | $399,900.00 | 29545 | 4423513 |
| 3 | 08/10/2001 | QCD | Quit Claim Deed | BRIGGS, MARGARET L | BRIGGS, ROBERT W | | | $0.00 | 13072 | 20040320 |
| 4 | 10/01/1986 | QCD | Quit Claim Deed | WICKENKAMP, REX O | BRIGGS, MARGARET L | | | $0.00 | 62816 | 86012713 |
| 5 | 02/01/1981 | EXECUTORD | Executor Deed | BAUGHN, MARLENE | WICKENKAMP, REX O | | | $65,000.00 | 10521 | 379705 |
| 6 | 01/01/1981 | CD | DNU - Correction Deed | COSTELLO, MARLENE | BAUGHN, MARLENE | | | $0.00 | 10520 | 379704 |
| 7 | 01/01/1900 | OTHER | Other - Misc. Documents | Unknown | COSTELLO, MARLENE | | | $0.00 | 0 | 0 |
Payout Agreement
| No payout information available.. |