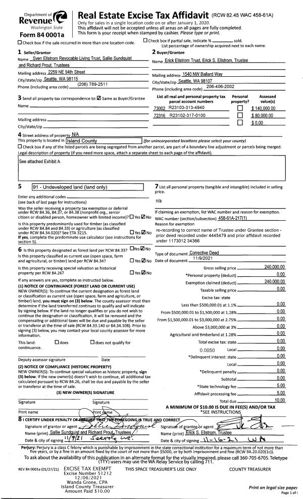
Property
Account |
| Property ID: | 724256 | Abbreviated Legal Description: | LANGLEY LOTS 3 & 4 BLK 8 |
| Geographic ID: | S7345-00-08003-0 | Agent Code: | |
| Type: | Real | | |
| Tax Area: | 700 - APPRAISER-S Whid Schl Dist, in town of Langley | Land Use Code | 11 |
| Open Space: | N | DFL | N |
| Historic Property: | N | Remodel Property: | N |
| Multi-Family Redevelopment: | N | | |
| Township: | | Section: | |
| Range: | |
Location |
| Address: | 426 3RD ST LANGLEY, WA 98260 | Mapsco: | |
| Neighborhood: | City of Langley | Map ID: | 912 |
| Neighborhood CD: | 04-L |
Owner |
| Name: | WATERMAN, DEBRA J (50%) | Owner ID: | 289184 |
| Mailing Address: | ROSEMARIE WATERMAN (50%) PO BOX 287 LANGLEY, WA 98260 | % Ownership: | 100.0000000000% |
| | | Exemptions: | |
Taxes and Assessment Details
Values
| (+) Improvement Homesite Value: | + | $0 | |
| (+) Improvement Non-Homesite Value: | + | $338,682 | |
| (+) Land Homesite Value: | + | $0 | |
| (+) Land Non-Homesite Value: | + | $390,000 | |
| (+) Curr Use (HS): | + | $0 | $0 |
| (+) Curr Use (NHS): | + | $0 | $0 |
| | | -------------------------- | |
| (=) Market Value: | = | $728,682 | |
| (–) Productivity Loss: | – | $0 | |
| | | -------------------------- | |
| (=) Subtotal: | = | $728,682 | |
| (+) Senior Appraised Value: | + | $0 | |
| (+) Non-Senior Appraised Value: | + | $728,682 | |
| | | -------------------------- | |
| (=) Total Appraised Value: | = | $728,682 | |
| (–) Senior Exemption Loss: | – | $0 | |
| (–) Exemption Loss: | – | $0 | |
| | | -------------------------- | |
| (=) Taxable Value: | = | $728,682 | |
Taxing Jurisdiction
| Owner: | WATERMAN, DEBRA J (50%) | | |
| % Ownership: | 100.0000000000% | | |
| Total Value: | $728,682 | | |
| Tax Area: | 700 - APPRAISER-S Whid Schl Dist, in town of Langley |
| CF | Conservation Futures | 0.0316035091 | $728,682 | $728,682 | $23.03 | | |
| LANG | City of Langley | 1.0093520762 | $728,682 | $728,682 | $735.50 | | |
| LANGBOND | City of Langley BOND | 1.0326110892 | $728,682 | $728,682 | $752.45 | | |
| FIRE3 | Fire & Rescue Dist #3 S Whidbey GEN | 1.2004855531 | $728,682 | $728,682 | $874.77 | | |
| HOBOND | Hospital BOND | 0.1910887512 | $728,682 | $728,682 | $139.24 | | |
| HOGEN | Hospital GEN | 0.3902502903 | $728,682 | $728,682 | $284.37 | | |
| CE | County Current Expense | 0.3708482477 | $728,682 | $728,682 | $270.23 | | |
| ISLANDEMS | Hospital GEN (EMS) | 0.5000000000 | $728,682 | $728,682 | $364.34 | | |
| LIB | Library Sno-Isle GEN | 0.3153421757 | $728,682 | $728,682 | $229.78 | | |
| PORTWHID | Port of S Whidbey GEN | 0.1094540357 | $728,682 | $728,682 | $79.76 | | |
| SCH206BOND | School 206 BOND | 0.3161759235 | $728,682 | $728,682 | $230.39 | | |
| SCH206MO | School 206 Enrichment | 0.4547169547 | $728,682 | $728,682 | $331.34 | | |
| ST | State School | 1.3035497053 | $728,682 | $728,682 | $949.87 | | |
| ST2 | State School Part 2 | 0.8169543533 | $728,682 | $728,682 | $595.30 | | |
| SWHIDPRBD | P & R S Whidbey BOND | 0.0152817568 | $728,682 | $728,682 | $11.14 | | |
| SWHIDPRBD2 | P & R S Whidbey BOND2 | 0.0138911264 | $728,682 | $728,682 | $10.12 | | |
| SWHIDPRMT | P & R S Whidbey GEN | 0.2053334452 | $728,682 | $728,682 | $149.62 | | |
| | Total Tax Rate: | 8.2769389934 | | | | | |
| | | | | Taxes w/Current Exemptions: | $6,031.25 | | |
| | | | | Taxes w/o Exemptions: | $6,031.25 | | |
Improvement / Building
| Improvement #1: | RESIDENTIAL | State Code: | Y | 1936.9 sqft | Value: | $338,682 |
| Bathrooms: | 2.5 | Bedrooms: | 3 | | Ceiling: | DRYWALL PAINTED | Exterior Wall/Cover: | WOOD SIDING | | Floor Covering: | HARDWOOD/CARP 80-20 | Floor Structure: | WOOD W/SUBFLOOR | | Foundation: | CONCRETE | Heating: | BASEBOARD ELECTRIC | | Interior Finish: | DRYWALL PAINT | Plumbing Fixture Cnt: | 12 | | Roof Slope: | 4" IN 12" | Roof Structure/Cover: | CJ ASPHALT |
|
| | Type | Description | Class CD | Sub Class CD | Year Built | Area |
| | BAS | BASE/MAIN FLOOR | 3 | 0 | 1965 | 1936.9 |
| | AGR | ATTACHED GARAGE | 3 | 0 | 1965 | 624.0 |
| | OWP | OPEN WOOD PORCH W/STEPS | 3 | 0 | 1965 | 534.3 |
| | OWP | OPEN WOOD PORCH W/STEPS | 3 | 0 | 1965 | 75.5 |
Sketch
Property Image
Land
| 1 | 13 | SQ (06001-08000) | 0.0000 | 0.00 | 0.00 | 0.00 | 1.00 | $390,000 | $0 |
Roll Value History
| 2026 | N/A | N/A | N/A | N/A | N/A |
| 2025 | $338,682 | $390,000 | $0 | $728,682 | $728,682 |
| 2024 | $349,576 | $390,000 | $0 | $739,576 | $739,576 |
| 2023 | $353,725 | $390,000 | $0 | $743,725 | $743,725 |
| 2022 | $324,053 | $360,000 | $0 | $684,053 | $684,053 |
| 2021 | $285,047 | $320,000 | $0 | $605,047 | $605,047 |
| 2020 | $271,314 | $320,000 | $0 | $591,314 | $591,314 |
| 2019 | $184,151 | $300,000 | $0 | $484,151 | $484,151 |
| 2018 | $184,731 | $260,000 | $0 | $444,731 | $444,731 |
| 2017 | $185,893 | $250,000 | $0 | $435,893 | $435,893 |
| 2016 | $188,217 | $220,000 | $0 | $408,217 | $408,217 |
| 2015 | $190,540 | $220,000 | $0 | $410,540 | $410,540 |
| 2014 | $163,757 | $170,200 | $0 | $333,957 | $333,957 |
| 2013 | $165,883 | $170,200 | $0 | $336,083 | $336,083 |
| 2012 | $168,011 | $170,200 | $0 | $338,211 | $338,211 |
| 2011 | $170,137 | $185,000 | $0 | $355,137 | $355,137 |
| 2010 | $178,813 | $193,000 | $0 | $371,813 | $371,813 |
| 2009 | $186,422 | $250,000 | $0 | $436,422 | $436,422 |
| 2008 | $184,644 | $300,000 | $0 | $484,644 | $484,644 |
| 2007 | $186,772 | $300,000 | $0 | $486,772 | $486,772 |
Deed and Sales History
| 1 | 03/18/2019 | WD | Warranty Deed | STEVENS, KATHRYN | WATERMAN, DEBRA J (50%) | | | $610,000.00 | 37921 | 4460766 |
| 2 | 02/25/2015 | PRD | Personal Representatives Deed | STEVENS, MARK TUCKER | STEVENS, KATHRYN | | | $0.00 | 18624 | 4374061 |
| 3 | 11/04/2002 | BLA | DNU - Boundary Line Adjustment | STEVENS, MARK TUCKER | STEVENS, MARK TUCKER | | | $0.00 | 69598 | 20034223 |
| 4 | 12/27/2000 | WD | Warranty Deed | HEDGCOCK, VIOLA A | STEVENS, MARK TUCKER | | | $195,000.00 | 10083 | 20023096 |
| 5 | 03/01/1995 | QCD | Quit Claim Deed | HEDGCOCK, M P | HEDGCOCK, VIOLA A | | | $0.00 | 50923 | 95004431 |
| 6 | 01/01/1900 | OTHER | Other - Misc. Documents | Unknown | HEDGCOCK, M P | | | $0.00 | 0 | 0 |
Payout Agreement
| No payout information available.. |