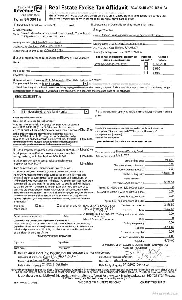
Property
Account |
| Property ID: | 724372 | Abbreviated Legal Description: | LEDGEWD BCH LOT 6 BLK 3 |
| Geographic ID: | S7355-00-03006-0 | Agent Code: | |
| Type: | Real | | |
| Tax Area: | 370 - APPRAISER-Cpvl Schl Dist, Special Dist, improved & less than 1 acre | Land Use Code | 11 |
| Open Space: | N | DFL | N |
| Historic Property: | N | Remodel Property: | N |
| Multi-Family Redevelopment: | N | | |
| Township: | | Section: | |
| Range: | |
Location |
| Address: | 1859 FIRCREST AVE COUPEVILLE, WA 98239 | Mapsco: | |
| Neighborhood: | Cycle 2 | Map ID: | 520 |
| Neighborhood CD: | 2 |
Owner |
| Name: | JOHNS TRUSTEE, GUS | Owner ID: | 273658 |
| Mailing Address: | GIOIA C G BOERRIGTER TRUSTEE 1859 FIRCREST AVE COUPEVILLE, WA 98239 | % Ownership: | 100.0000000000% |
| | | Exemptions: | |
Taxes and Assessment Details
Values
| (+) Improvement Homesite Value: | + | $0 | |
| (+) Improvement Non-Homesite Value: | + | $283,615 | |
| (+) Land Homesite Value: | + | $0 | |
| (+) Land Non-Homesite Value: | + | $280,000 | |
| (+) Curr Use (HS): | + | $0 | $0 |
| (+) Curr Use (NHS): | + | $0 | $0 |
| | | -------------------------- | |
| (=) Market Value: | = | $563,615 | |
| (–) Productivity Loss: | – | $0 | |
| | | -------------------------- | |
| (=) Subtotal: | = | $563,615 | |
| (+) Senior Appraised Value: | + | $0 | |
| (+) Non-Senior Appraised Value: | + | $563,615 | |
| | | -------------------------- | |
| (=) Total Appraised Value: | = | $563,615 | |
| (–) Senior Exemption Loss: | – | $0 | |
| (–) Exemption Loss: | – | $0 | |
| | | -------------------------- | |
| (=) Taxable Value: | = | $563,615 | |
Taxing Jurisdiction
| Owner: | JOHNS TRUSTEE, GUS | | |
| % Ownership: | 100.0000000000% | | |
| Total Value: | $563,615 | | |
| Tax Area: | 370 - APPRAISER-Cpvl Schl Dist, Special Dist, improved & less than 1 acre |
| CF | Conservation Futures | 0.0316035091 | $563,615 | $563,615 | $17.81 | | |
| CEM2 | Cemetery #2 | 0.0095056933 | $563,615 | $563,615 | $5.36 | | |
| FIRE5 | Fire & Rescue Dist #5 C Whidbey GEN | 1.2008080668 | $563,615 | $563,615 | $676.79 | | |
| FIRE5BOND | Fire & Rescue Dist #5 C Whidbey BOND | 0.1400090713 | $563,615 | $563,615 | $78.91 | | |
| HOBOND | Hospital BOND | 0.1910887512 | $563,615 | $563,615 | $107.70 | | |
| HOGEN | Hospital GEN | 0.3902502903 | $563,615 | $563,615 | $219.95 | | |
| CE | County Current Expense | 0.3708482477 | $563,615 | $563,615 | $209.02 | | |
| CR | County Roads | 0.4584763726 | $563,615 | $563,615 | $258.40 | | |
| ISLANDEMS | Hospital GEN (EMS) | 0.5000000000 | $563,615 | $563,615 | $281.81 | | |
| LIB | Library Sno-Isle GEN | 0.3153421757 | $563,615 | $563,615 | $177.73 | | |
| LIBCAP | Library Sno-Isle BOND (Cap Fac Imp Area) | 0.0543427938 | $563,615 | $563,615 | $30.63 | | |
| POCOUP | Port of Coupeville GEN | 0.1093371703 | $563,615 | $563,615 | $61.62 | | |
| POCOUPIDD | Port of Coupeville IDD | 0.3409740022 | $563,615 | $563,615 | $192.18 | | |
| COUPSDTECH | School 204 CP (TECH) | 0.7545480007 | $563,615 | $563,615 | $425.27 | | |
| SCH204MO | School 204 Enrichment | 0.6716186034 | $563,615 | $563,615 | $378.53 | | |
| ST | State School | 1.3035497053 | $563,615 | $563,615 | $734.70 | | |
| ST2 | State School Part 2 | 0.8169543533 | $563,615 | $563,615 | $460.45 | | |
| | Total Tax Rate: | 7.6592568070 | | | | | |
| | | | | Taxes w/Current Exemptions: | $4,316.86 | | |
| | | | | Taxes w/o Exemptions: | $4,316.86 | | |
Improvement / Building
| Improvement #1: | RESIDENTIAL | State Code: | Y | 1776.0 sqft | Value: | $283,615 |
| Bathrooms: | 1.75 | Bedrooms: | 3 | | Ceiling: | DRY WALL SPRAYED | Exterior Wall/Cover: | VINYL | | Floor Covering: | HARDWOOD 100% | Floor Structure: | WOOD W/SUBFLOOR | | Foundation: | CONCRETE | Heating: | FHA ELECTRIC | | Interior Finish: | DRYWALL PAINT | Plumbing Fixture Cnt: | 9 | | Roof Slope: | 4" IN 12" | Roof Structure/Cover: | CJ ASPHALT |
|
| | Type | Description | Class CD | Sub Class CD | Year Built | Area |
| | BAS | BASE/MAIN FLOOR | 3 | 0 | 1961 | 1200.0 |
| | OP4 | OPEN PORCH W/CEILING-ROOF | 3 | 0 | 1961 | 26.0 |
| | BIG | BUILT IN GARAGE | 3 | 0 | 1961 | 576.0 |
| | OWP | OPEN WOOD PORCH W/STEPS | 3 | 0 | 1961 | 395.0 |
| | DWN | DOWNSTAIRS LIVING AREA | 3 | 0 | 1961 | 576.0 |
Sketch
Property Image
Land
| 1 | 15 | SQ (12001-21780) | 0.3300 | 14374.80 | 0.00 | 0.00 | 1.00 | $280,000 | $0 |
Roll Value History
| 2026 | N/A | N/A | N/A | N/A | N/A |
| 2025 | $283,615 | $280,000 | $0 | $563,615 | $563,615 |
| 2024 | $279,944 | $250,000 | $0 | $529,944 | $529,944 |
| 2023 | $283,615 | $230,000 | $0 | $513,615 | $513,615 |
| 2022 | $260,141 | $220,000 | $0 | $480,141 | $480,141 |
| 2021 | $237,508 | $130,000 | $0 | $367,508 | $367,508 |
| 2020 | $231,289 | $110,000 | $0 | $341,289 | $341,289 |
| 2019 | $165,019 | $180,000 | $0 | $345,019 | $345,019 |
| 2018 | $150,441 | $160,000 | $0 | $310,441 | $310,441 |
| 2017 | $151,412 | $160,000 | $0 | $311,412 | $311,412 |
| 2016 | $153,352 | $150,000 | $0 | $303,352 | $303,352 |
| 2015 | $155,293 | $150,000 | $0 | $305,293 | $305,293 |
| 2014 | $157,235 | $150,000 | $0 | $307,235 | $307,235 |
| 2013 | $159,175 | $100,000 | $0 | $259,175 | $259,175 |
| 2012 | $148,404 | $100,000 | $0 | $248,404 | $248,404 |
| 2011 | $150,340 | $110,000 | $0 | $260,340 | $260,340 |
| 2010 | $160,641 | $110,000 | $0 | $270,641 | $270,641 |
| 2009 | $167,360 | $125,000 | $0 | $292,360 | $74,300 |
| 2008 | $169,552 | $135,000 | $0 | $304,552 | $74,300 |
| 2007 | $171,735 | $134,934 | $0 | $306,669 | $74,300 |
Deed and Sales History
| 1 | 02/02/2016 | TRUSTEED | Trustee's Deed | JOHNS, GUS | JOHNS TRUSTEE, GUS | | | $0.00 | 23082 | 4393714 |
| 2 | 07/06/2011 | WD | Warranty Deed | SELF, PAT E | JOHNS, GUS | | | $220,000.00 | 5050 | 4298626 |
| 3 | 01/01/1900 | OTHER | Other - Misc. Documents | Unknown | SELF, PAT E | | | $0.00 | 0 | 0 |
Payout Agreement
| No payout information available.. |