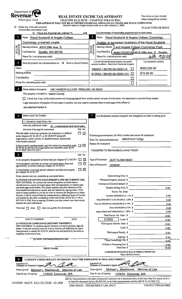
Property
Account |
| Property ID: | 724434 | Abbreviated Legal Description: | LEDGEWD BCH LOT 13 BLK 5 |
| Geographic ID: | S7355-00-05013-0 | Agent Code: | |
| Type: | Real | | |
| Tax Area: | 370 - APPRAISER-Cpvl Schl Dist, Special Dist, improved & less than 1 acre | Land Use Code | 11 |
| Open Space: | N | DFL | N |
| Historic Property: | N | Remodel Property: | N |
| Multi-Family Redevelopment: | N | | |
| Township: | | Section: | |
| Range: | |
Location |
| Address: | 1992 PINECREST AVE COUPEVILLE, WA 98239 | Mapsco: | |
| Neighborhood: | Cycle 2 | Map ID: | 521 |
| Neighborhood CD: | 2 |
Owner |
| Name: | MASTERSON, DIANA | Owner ID: | 308672 |
| Mailing Address: | 2516 NORTH SHORE RD TRLR 2 BELLINGHAM, WA 98226 | % Ownership: | 100.0000000000% |
| | | Exemptions: | |
Taxes and Assessment Details
Values
| (+) Improvement Homesite Value: | + | $0 | |
| (+) Improvement Non-Homesite Value: | + | $175,160 | |
| (+) Land Homesite Value: | + | $0 | |
| (+) Land Non-Homesite Value: | + | $280,000 | |
| (+) Curr Use (HS): | + | $0 | $0 |
| (+) Curr Use (NHS): | + | $0 | $0 |
| | | -------------------------- | |
| (=) Market Value: | = | $455,160 | |
| (–) Productivity Loss: | – | $0 | |
| | | -------------------------- | |
| (=) Subtotal: | = | $455,160 | |
| (+) Senior Appraised Value: | + | $0 | |
| (+) Non-Senior Appraised Value: | + | $455,160 | |
| | | -------------------------- | |
| (=) Total Appraised Value: | = | $455,160 | |
| (–) Senior Exemption Loss: | – | $0 | |
| (–) Exemption Loss: | – | $0 | |
| | | -------------------------- | |
| (=) Taxable Value: | = | $455,160 | |
Taxing Jurisdiction
| Owner: | MASTERSON, DIANA | | |
| % Ownership: | 100.0000000000% | | |
| Total Value: | $455,160 | | |
| Tax Area: | 370 - APPRAISER-Cpvl Schl Dist, Special Dist, improved & less than 1 acre |
| CF | Conservation Futures | 0.0316035091 | $455,160 | $455,160 | $14.38 | | |
| CEM2 | Cemetery #2 | 0.0095056933 | $455,160 | $455,160 | $4.33 | | |
| FIRE5 | Fire & Rescue Dist #5 C Whidbey GEN | 1.2008080668 | $455,160 | $455,160 | $546.56 | | |
| FIRE5BOND | Fire & Rescue Dist #5 C Whidbey BOND | 0.1400090713 | $455,160 | $455,160 | $63.73 | | |
| HOBOND | Hospital BOND | 0.1910887512 | $455,160 | $455,160 | $86.98 | | |
| HOGEN | Hospital GEN | 0.3902502903 | $455,160 | $455,160 | $177.63 | | |
| CE | County Current Expense | 0.3708482477 | $455,160 | $455,160 | $168.80 | | |
| CR | County Roads | 0.4584763726 | $455,160 | $455,160 | $208.68 | | |
| ISLANDEMS | Hospital GEN (EMS) | 0.5000000000 | $455,160 | $455,160 | $227.58 | | |
| LIB | Library Sno-Isle GEN | 0.3153421757 | $455,160 | $455,160 | $143.53 | | |
| LIBCAP | Library Sno-Isle BOND (Cap Fac Imp Area) | 0.0543427938 | $455,160 | $455,160 | $24.73 | | |
| POCOUP | Port of Coupeville GEN | 0.1093371703 | $455,160 | $455,160 | $49.77 | | |
| POCOUPIDD | Port of Coupeville IDD | 0.3409740022 | $455,160 | $455,160 | $155.20 | | |
| COUPSDTECH | School 204 CP (TECH) | 0.7545480007 | $455,160 | $455,160 | $343.44 | | |
| SCH204MO | School 204 Enrichment | 0.6716186034 | $455,160 | $455,160 | $305.69 | | |
| ST | State School | 1.3035497053 | $455,160 | $455,160 | $593.32 | | |
| ST2 | State School Part 2 | 0.8169543533 | $455,160 | $455,160 | $371.84 | | |
| | Total Tax Rate: | 7.6592568070 | | | | | |
| | | | | Taxes w/Current Exemptions: | $3,486.19 | | |
| | | | | Taxes w/o Exemptions: | $3,486.19 | | |
Improvement / Building
| Improvement #1: | RESIDENTIAL | State Code: | Y | 1008.0 sqft | Value: | $175,160 |
| Bathrooms: | 1 | Bedrooms: | 2 | | Ceiling: | TONGUE & GROOVE | Exterior Wall/Cover: | PLY/HARDBOARD T-111 | | Floor Covering: | SOFTWOOD/VINYL 80-20 | Floor Structure: | WOOD W/SUBFLOOR | | Foundation: | CONCRETE | Heating: | BASEBOARD ELECTRIC | | Interior Finish: | DRYWALL PAINT | Plumbing Fixture Cnt: | 6 | | Roof Slope: | 3" IN 12" | Roof Structure/Cover: | BEAM ALUMINUM HEAVY |
|
| | Type | Description | Class CD | Sub Class CD | Year Built | Area |
| | BAS | BASE/MAIN FLOOR | 3 | 0 | 1963 | 1008.0 |
| | OCP | OPEN CARPORT | 3 | 0 | 1963 | 378.0 |
Sketch
Property Image
Land
| 1 | 15 | SQ (12001-21780) | 0.3800 | 16552.80 | 0.00 | 0.00 | 1.00 | $280,000 | $0 |
Roll Value History
| 2026 | N/A | N/A | N/A | N/A | N/A |
| 2025 | $175,160 | $280,000 | $0 | $455,160 | $455,160 |
| 2024 | $166,450 | $250,000 | $0 | $416,450 | $416,450 |
| 2023 | $160,997 | $230,000 | $0 | $390,997 | $390,997 |
| 2022 | $147,890 | $220,000 | $0 | $367,890 | $367,890 |
| 2021 | $130,426 | $130,000 | $0 | $260,426 | $260,426 |
| 2020 | $127,398 | $110,000 | $0 | $237,398 | $237,398 |
| 2019 | $91,111 | $180,000 | $0 | $271,111 | $271,111 |
| 2018 | $79,681 | $160,000 | $0 | $239,681 | $239,681 |
| 2017 | $80,254 | $160,000 | $0 | $240,254 | $240,254 |
| 2016 | $81,401 | $150,000 | $0 | $231,401 | $231,401 |
| 2015 | $82,548 | $150,000 | $0 | $232,548 | $232,548 |
| 2014 | $83,695 | $150,000 | $0 | $233,695 | $233,695 |
| 2013 | $84,841 | $100,000 | $0 | $184,841 | $184,841 |
| 2012 | $79,935 | $100,000 | $0 | $179,935 | $179,935 |
| 2011 | $81,116 | $110,000 | $0 | $191,116 | $191,116 |
| 2010 | $86,523 | $110,000 | $0 | $196,523 | $196,523 |
| 2009 | $90,326 | $125,000 | $0 | $215,326 | $215,326 |
| 2008 | $91,563 | $135,000 | $0 | $226,563 | $226,563 |
| 2007 | $92,800 | $135,000 | $0 | $227,800 | $227,800 |
Deed and Sales History
| 1 | 05/18/2023 | WD | Warranty Deed | HARRIS TTEE, DONALD | MASTERSON, DIANA | | | $440,000.00 | 56759 | 4560129 |
| 2 | 08/25/2020 | PRD | Personal Representatives Deed | WILLEY, LORENA B | HARRIS TTEE, DONALD | | | $0.00 | 44778 | 4496806 |
| 3 | 10/17/2000 | QCD | Quit Claim Deed | WILLEY, LORENA B | WILLEY, LORENA B | | | $0.00 | 4075 | 20018718 |
| 4 | 10/16/2000 | WD | Warranty Deed | HEWITT, EDA L | WILLEY, LORENA B | | | $130,000.00 | 4074 | 20018713 |
| 5 | 07/01/1991 | QCD | Quit Claim Deed | HEWITT, EDA L | HEWITT, EDA L | | | $0.00 | 12652 | 91011235 |
| 6 | 01/01/1900 | OTHER | Other - Misc. Documents | Unknown | HEWITT, EDA L | | | $0.00 | 0 | 0 |
Payout Agreement
| No payout information available.. |