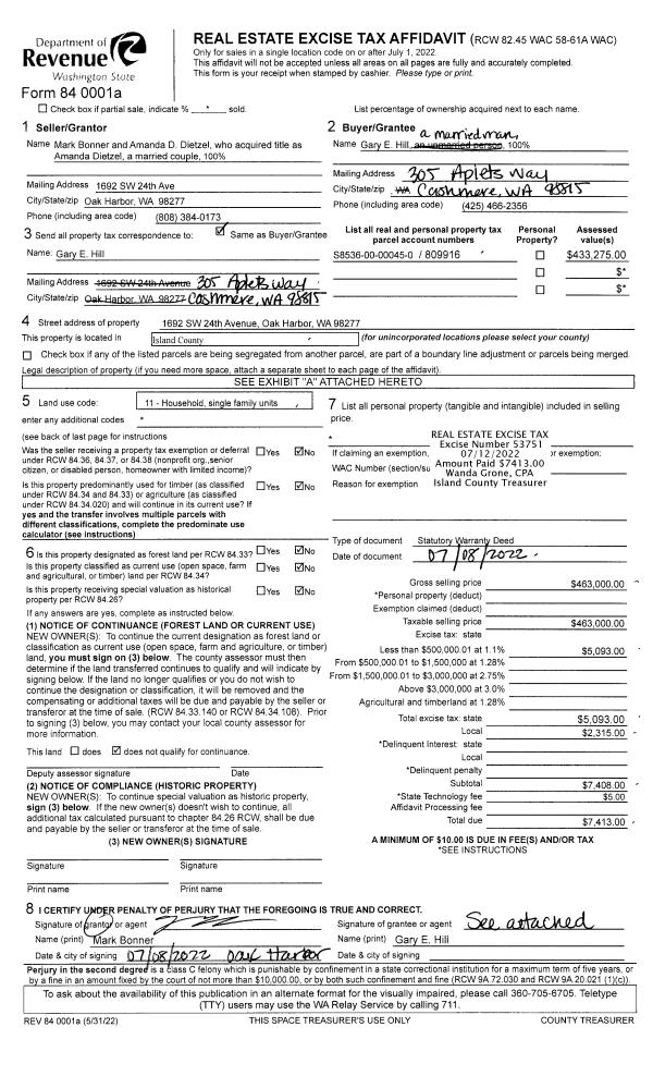
Property
Account |
| Property ID: | 724942 | Abbreviated Legal Description: | LIVINGSTON BAY LOT 24 |
| Geographic ID: | S7380-00-00024-0 | Agent Code: | |
| Type: | Real | | |
| Tax Area: | 590 - APPRAISER-Stan/Cam Schl Dist, Special Dist, improved & less than 1 acre | Land Use Code | 11 |
| Open Space: | N | DFL | N |
| Historic Property: | N | Remodel Property: | N |
| Multi-Family Redevelopment: | N | | |
| Township: | | Section: | |
| Range: | |
Location |
| Address: | 786 LIVINGSTON BAY SHORE DR CAMANO ISLAND, WA 98282 | Mapsco: | |
| Neighborhood: | Cycle 5 | Map ID: | 987 |
| Neighborhood CD: | 5 |
Owner |
| Name: | SAIMONS RENTALS, LLC | Owner ID: | 308240 |
| Mailing Address: | 30526 15TH AVE STANWOOD, WA 98292 | % Ownership: | 100.0000000000% |
| | | Exemptions: | |
Taxes and Assessment Details
Values
| (+) Improvement Homesite Value: | + | $0 | |
| (+) Improvement Non-Homesite Value: | + | $214,652 | |
| (+) Land Homesite Value: | + | $0 | |
| (+) Land Non-Homesite Value: | + | $550,000 | |
| (+) Curr Use (HS): | + | $0 | $0 |
| (+) Curr Use (NHS): | + | $0 | $0 |
| | | -------------------------- | |
| (=) Market Value: | = | $764,652 | |
| (–) Productivity Loss: | – | $0 | |
| | | -------------------------- | |
| (=) Subtotal: | = | $764,652 | |
| (+) Senior Appraised Value: | + | $0 | |
| (+) Non-Senior Appraised Value: | + | $764,652 | |
| | | -------------------------- | |
| (=) Total Appraised Value: | = | $764,652 | |
| (–) Senior Exemption Loss: | – | $0 | |
| (–) Exemption Loss: | – | $0 | |
| | | -------------------------- | |
| (=) Taxable Value: | = | $764,652 | |
Taxing Jurisdiction
| Owner: | SAIMONS RENTALS, LLC | | |
| % Ownership: | 100.0000000000% | | |
| Total Value: | $764,652 | | |
| Tax Area: | 590 - APPRAISER-Stan/Cam Schl Dist, Special Dist, improved & less than 1 acre |
| CF | Conservation Futures | 0.0316035091 | $764,652 | $764,652 | $24.17 | | |
| EMS1 | Fire & Rescue Dist #1 Camano GEN (EMS) | 0.3677864386 | $764,652 | $764,652 | $281.23 | | |
| FIRE1 | Fire & Rescue Dist #1 Camano GEN | 1.2502910536 | $764,652 | $764,652 | $956.04 | | |
| FIRE1BOND | Fire & Rescue Dist #1 Camano BOND | 0.1570001679 | $764,652 | $764,652 | $120.05 | | |
| CE | County Current Expense | 0.3708482477 | $764,652 | $764,652 | $283.57 | | |
| CR | County Roads | 0.4584763726 | $764,652 | $764,652 | $350.57 | | |
| LCIB | Library Sno-Isle BOND (Camano Island) | 0.0396325772 | $764,652 | $764,652 | $30.31 | | |
| LIB | Library Sno-Isle GEN | 0.3153421757 | $764,652 | $764,652 | $241.13 | | |
| SCH205_401 | School 205-401 Enrichment | 1.2698420524 | $764,652 | $764,652 | $970.99 | | |
| SCH205BOND | School 205-401 BOND | 0.9396497583 | $764,652 | $764,652 | $718.51 | | |
| ST | State School | 1.3035497053 | $764,652 | $764,652 | $996.76 | | |
| ST2 | State School Part 2 | 0.8169543533 | $764,652 | $764,652 | $624.69 | | |
| | Total Tax Rate: | 7.3209764117 | | | | | |
| | | | | Taxes w/Current Exemptions: | $5,598.02 | | |
| | | | | Taxes w/o Exemptions: | $5,598.02 | | |
Improvement / Building
| Improvement #1: | RESIDENTIAL | State Code: | Y | 1302.0 sqft | Value: | $214,652 |
| Bathrooms: | 1 | Bedrooms: | 3 | | Ceiling: | DRYWALL PAINTED | Exterior Wall/Cover: | PLY/HARDBOARD T-111 | | Floor Covering: | HARDWOOD/CARP 20-80 | Floor Structure: | WOOD W/SUBFLOOR | | Foundation: | CONCRETE BLOCKS | Heating: | BASEBOARD ELECTRIC | | Interior Finish: | DRYWALL PAINT | Plumbing Fixture Cnt: | 7 | | Roof Slope: | 3" IN 12" | Roof Structure/Cover: | BEAM ASPHALT |
|
| | Type | Description | Class CD | Sub Class CD | Year Built | Area |
| | BAS | BASE/MAIN FLOOR | 3 | 0 | 1965 | 1302.0 |
| | AGR | ATTACHED GARAGE | 3 | 0 | 1965 | 422.0 |
| | OWP | OPEN WOOD PORCH W/STEPS | 3 | 0 | 1965 | 356.0 |
| | OWC | OPEN WOOD PORCH W/STEPS/ROOF/C | 3 | 0 | 1965 | 59.5 |
Sketch
Property Image
Land
| 1 | LB | LOW BANK | 0.0000 | 0.00 | 60.00 | 0.00 | 1.00 | $550,000 | $0 |
Roll Value History
| 2026 | N/A | N/A | N/A | N/A | N/A |
| 2025 | $214,652 | $550,000 | $0 | $764,652 | $764,652 |
| 2024 | $222,169 | $550,000 | $0 | $772,169 | $772,169 |
| 2023 | $225,162 | $550,000 | $0 | $775,162 | $775,162 |
| 2022 | $206,599 | $460,000 | $0 | $666,599 | $666,599 |
| 2021 | $174,940 | $375,000 | $0 | $549,940 | $549,940 |
| 2020 | $170,853 | $350,000 | $0 | $520,853 | $520,853 |
| 2019 | $124,113 | $400,000 | $0 | $524,113 | $524,113 |
| 2018 | $124,522 | $375,000 | $0 | $499,522 | $499,522 |
| 2017 | $125,324 | $275,000 | $0 | $400,324 | $400,324 |
| 2016 | $126,950 | $250,000 | $0 | $376,950 | $376,950 |
| 2015 | $107,782 | $250,000 | $0 | $357,782 | $357,782 |
| 2014 | $109,427 | $250,000 | $0 | $359,427 | $359,427 |
| 2013 | $111,073 | $250,000 | $0 | $361,073 | $361,073 |
| 2012 | $112,718 | $257,150 | $0 | $369,868 | $128,489 |
| 2011 | $114,364 | $270,684 | $0 | $385,048 | $128,489 |
| 2010 | $121,680 | $270,684 | $0 | $392,364 | $79,070 |
| 2009 | $109,032 | $299,977 | $0 | $409,009 | $128,489 |
| 2008 | $110,903 | $299,977 | $0 | $410,880 | $128,489 |
| 2007 | $112,822 | $299,977 | $0 | $412,799 | $128,489 |
Deed and Sales History
| 1 | 03/30/2023 | QCD | Quit Claim Deed | SAIMONS, NANCY LEE | SAIMONS RENTALS, LLC | | | $0.00 | 56357 | 4558628 |
| 2 | 08/29/2013 | PRD | Personal Representatives Deed | CROSETTI, CHARLES | SAIMONS, NANCY LEE | | | $0.00 | 12576 | 4347518 |
| 3 | 05/01/1989 | WD | Warranty Deed | CREWS, JOHN R | CROSETTI, CHARLES | | | $78,500.00 | 92220 | 89007605 |
| 4 | 10/01/1987 | WD | Warranty Deed | MONROE, RICHARD E | CREWS, JOHN R | | | $60,000.00 | 73213 | 87014121 |
| 5 | 08/01/1982 | TRUSTEED | Trustee's Deed | TOXBY, PETER T | MONROE, RICHARD E | | | $63,000.00 | 22054 | 399958 |
| 6 | 10/01/1978 | OTHER | Other - Misc. Documents | Unknown | TOXBY, PETER T | | | $43,500.00 | 85324 | 342124 |
Payout Agreement
| No payout information available.. |