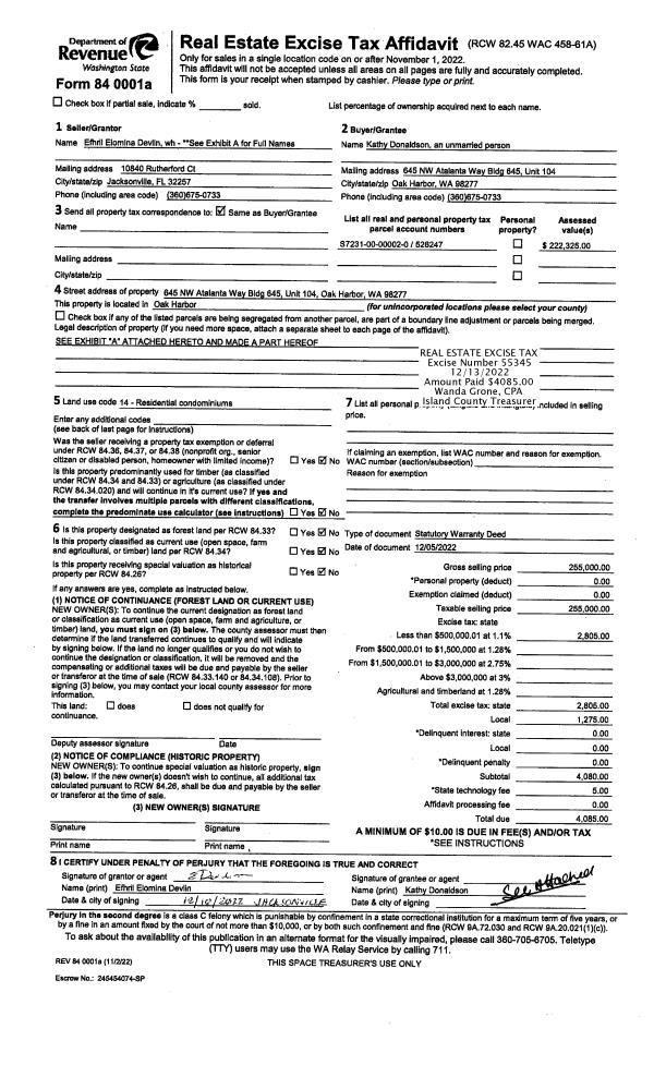
Property
Account |
| Property ID: | 725353 | Abbreviated Legal Description: | 1974 LAMPLIGHTER 14X64 VIN# 14834 TPO @31821 |
| Geographic ID: | M901500000220 | Agent Code: | |
| Type: | Mobile Home | | |
| Tax Area: | 110 - APPRAISER-OH Schl Dist, outside OH, improved & 1 acre or less | Land Use Code | 11 |
| Open Space: | N | DFL | N |
| Historic Property: | N | Remodel Property: | N |
| Multi-Family Redevelopment: | N | | |
| Township: | | Section: | |
| Range: | |
Location |
| Address: | 3280 SNOWFLAKE RD OAK HARBOR, WA 98277 | Mapsco: | |
| Neighborhood: | Cycle 6 | Map ID: | |
| Neighborhood CD: | 6 |
Owner |
| Name: | MERRILL, COALET ATHENA | Owner ID: | 184108 |
| Mailing Address: | 3280 SNOWFLAKE RD OAK HARBOR, WA 98277-9189 | % Ownership: | 100.0000000000% |
| | | Exemptions: | |
Taxes and Assessment Details
Values
| (+) Improvement Homesite Value: | + | $0 | |
| (+) Improvement Non-Homesite Value: | + | $8,614 | |
| (+) Land Homesite Value: | + | $0 | |
| (+) Land Non-Homesite Value: | + | $0 | |
| (+) Curr Use (HS): | + | $0 | $0 |
| (+) Curr Use (NHS): | + | $0 | $0 |
| | | -------------------------- | |
| (=) Market Value: | = | $8,614 | |
| (–) Productivity Loss: | – | $0 | |
| | | -------------------------- | |
| (=) Subtotal: | = | $8,614 | |
| (+) Senior Appraised Value: | + | $0 | |
| (+) Non-Senior Appraised Value: | + | $8,614 | |
| | | -------------------------- | |
| (=) Total Appraised Value: | = | $8,614 | |
| (–) Senior Exemption Loss: | – | $0 | |
| (–) Exemption Loss: | – | $0 | |
| | | -------------------------- | |
| (=) Taxable Value: | = | $8,614 | |
Taxing Jurisdiction
| Owner: | MERRILL, COALET ATHENA | | |
| % Ownership: | 100.0000000000% | | |
| Total Value: | $8,614 | | |
| Tax Area: | 110 - APPRAISER-OH Schl Dist, outside OH, improved & 1 acre or less |
| CF | Conservation Futures | 0.0316035091 | $8,614 | $8,614 | $0.27 | | |
| CEM1 | Cemetery #1 | 0.0040320932 | $8,614 | $8,614 | $0.03 | | |
| FIRE2 | Fire & Rescue Dist #2 N Whidbey GEN | 0.5475949600 | $8,614 | $8,614 | $4.72 | | |
| HOBOND | Hospital BOND | 0.1910887512 | $8,614 | $8,614 | $1.65 | | |
| HOGEN | Hospital GEN | 0.3902502903 | $8,614 | $8,614 | $3.36 | | |
| CE | County Current Expense | 0.3708482477 | $8,614 | $8,614 | $3.19 | | |
| CR | County Roads | 0.4584763726 | $8,614 | $8,614 | $3.95 | | |
| ISLANDEMS | Hospital GEN (EMS) | 0.5000000000 | $8,614 | $8,614 | $4.31 | | |
| LIB | Library Sno-Isle GEN | 0.3153421757 | $8,614 | $8,614 | $2.72 | | |
| NWHIDPRMT | P & R N Whidbey GEN | 0.2004466701 | $8,614 | $8,614 | $1.73 | | |
| SCH201MO | School 201 Enrichment | 1.8559231640 | $8,614 | $8,614 | $15.99 | | |
| ST | State School | 1.3035497053 | $8,614 | $8,614 | $11.23 | | |
| ST2 | State School Part 2 | 0.8169543533 | $8,614 | $8,614 | $7.04 | | |
| | Total Tax Rate: | 6.9861102925 | | | | | |
| | | | | Taxes w/Current Exemptions: | $60.19 | | |
| | | | | Taxes w/o Exemptions: | $60.19 | | |
Improvement / Building
| Improvement #1: | MANUFACTURED HOME | State Code: | Y | 896.0 sqft | Value: | $8,614 |
| Bathrooms: | 0 | Bedrooms: | 0 | | Ceiling: | PLASTER PAINTED | Cooling: | EVAP NO DUCT | | Exterior Wall/Cover: | VINYL | Floor Covering: | CARPET 100% | | Floor Structure: | SLAB ON GRADE | Foundation: | SLAB | | Heating: | FHA ELECTRIC | Interior Finish: | PLASTER | | Plumbing Fixture Cnt: | 1 | Roof Slope: | FLAT | | Roof Structure/Cover: | CJ ALUMINIUM HEAVY |   |   |
|
| | Type | Description | Class CD | Sub Class CD | Year Built | Area |
| | BAS | BASE/MAIN FLOOR | 2 | 0 | 1974 | 896.0 |
| | OWR | OPEN WOOD PORCH W/STEPS/ROOF | 2 | 0 | 1974 | 108.0 |
Sketch
Property Image
Land
No land segments exist for this property.
Roll Value History
| 2026 | N/A | N/A | N/A | N/A | N/A |
| 2025 | $8,614 | $0 | $0 | $8,614 | $8,614 |
| 2024 | $8,614 | $0 | $0 | $8,614 | $8,614 |
| 2023 | $6,811 | $0 | $0 | $6,811 | $6,811 |
| 2022 | $5,100 | $0 | $0 | $5,100 | $5,100 |
| 2021 | $4,436 | $0 | $0 | $4,436 | $4,436 |
| 2020 | $4,306 | $0 | $0 | $4,306 | $4,306 |
| 2019 | $3,392 | $0 | $0 | $3,392 | $3,392 |
| 2018 | $3,731 | $0 | $0 | $3,731 | $3,731 |
| 2017 | $4,071 | $0 | $0 | $4,071 | $4,071 |
| 2016 | $4,240 | $0 | $0 | $4,240 | $4,240 |
| 2015 | $4,579 | $0 | $0 | $4,579 | $4,579 |
| 2014 | $4,749 | $0 | $0 | $4,749 | $4,749 |
| 2013 | $5,088 | $0 | $0 | $5,088 | $5,088 |
| 2012 | $5,258 | $0 | $0 | $5,258 | $5,258 |
| 2011 | $5,597 | $0 | $0 | $5,597 | $5,597 |
| 2010 | $5,777 | $0 | $0 | $5,777 | $5,777 |
| 2009 | $6,089 | $0 | $0 | $6,089 | $6,089 |
| 2008 | $6,173 | $0 | $0 | $6,173 | $6,173 |
| 2007 | $6,261 | $0 | $0 | $6,261 | $6,261 |
Deed and Sales History
| 1 | 03/20/2007 | OTHER | Other - Misc. Documents | CRANDALL, DONALD / | METTILL, COALET ATHENA | | | $0.00 | 70942 | 0 |
| 2 | 09/30/2000 | OTHER | Other - Misc. Documents | Unknown | CONKLE, JOHN | | | $9,995.00 | 3808 | 0 |
| 3 | 02/01/1992 | OTHER | Other - Misc. Documents | CONKLE, JOHN | CRANDALL, DONALD / | | | $0.00 | 20385 | 0 |
Payout Agreement
| No payout information available.. |