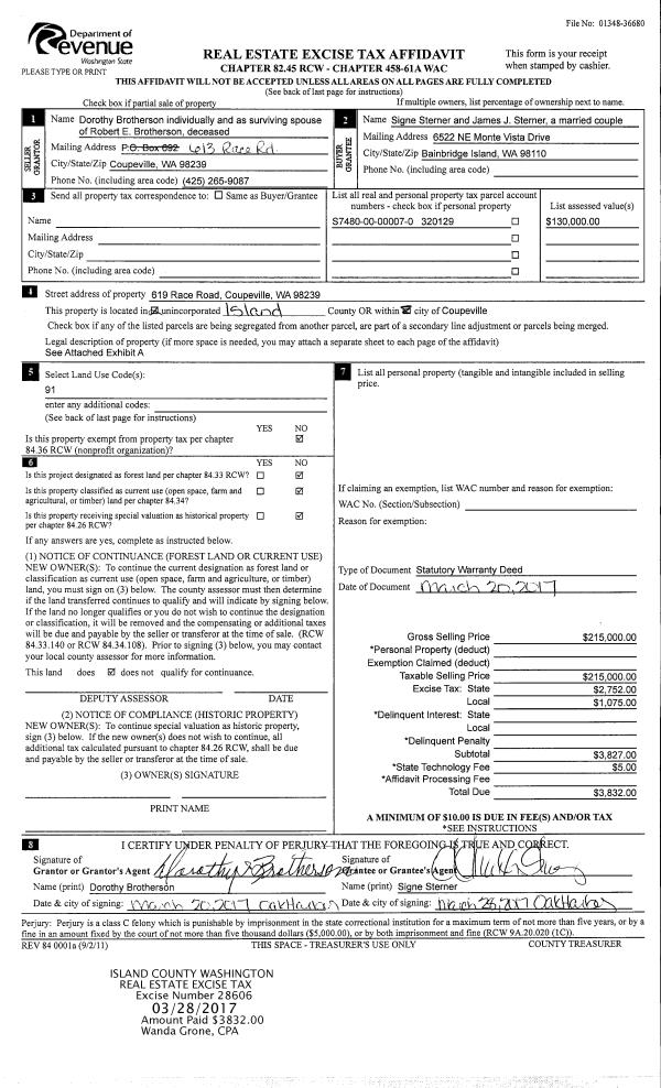
Property
Account |
| Property ID: | 725406 | Abbreviated Legal Description: | 1983 DARTMOUTH 14X66 VIN# 17702 TPO %77910 |
| Geographic ID: | M901500000750 | Agent Code: | |
| Type: | Mobile Home | | |
| Tax Area: | 110 - APPRAISER-OH Schl Dist, outside OH, improved & 1 acre or less | Land Use Code | 11 |
| Open Space: | N | DFL | N |
| Historic Property: | N | Remodel Property: | N |
| Multi-Family Redevelopment: | N | | |
| Township: | | Section: | |
| Range: | |
Location |
| Address: | 310 SILVERSPUR RD OAK HARBOR, WA 98277 | Mapsco: | |
| Neighborhood: | Cycle 6 | Map ID: | |
| Neighborhood CD: | 6 |
Owner |
| Name: | MONSCHAU, MICHAEL | Owner ID: | 282032 |
| Mailing Address: | 310 SILVERSPUR RD OAK HARBOR, WA 98277 | % Ownership: | 100.0000000000% |
| | | Exemptions: | |
Taxes and Assessment Details
Values
| (+) Improvement Homesite Value: | + | $0 | |
| (+) Improvement Non-Homesite Value: | + | $12,435 | |
| (+) Land Homesite Value: | + | $0 | |
| (+) Land Non-Homesite Value: | + | $0 | |
| (+) Curr Use (HS): | + | $0 | $0 |
| (+) Curr Use (NHS): | + | $0 | $0 |
| | | -------------------------- | |
| (=) Market Value: | = | $12,435 | |
| (–) Productivity Loss: | – | $0 | |
| | | -------------------------- | |
| (=) Subtotal: | = | $12,435 | |
| (+) Senior Appraised Value: | + | $0 | |
| (+) Non-Senior Appraised Value: | + | $12,435 | |
| | | -------------------------- | |
| (=) Total Appraised Value: | = | $12,435 | |
| (–) Senior Exemption Loss: | – | $0 | |
| (–) Exemption Loss: | – | $0 | |
| | | -------------------------- | |
| (=) Taxable Value: | = | $12,435 | |
Taxing Jurisdiction
| Owner: | MONSCHAU, MICHAEL | | |
| % Ownership: | 100.0000000000% | | |
| Total Value: | $12,435 | | |
| Tax Area: | 110 - APPRAISER-OH Schl Dist, outside OH, improved & 1 acre or less |
| CF | Conservation Futures | 0.0316035091 | $12,435 | $12,435 | $0.39 | | |
| CEM1 | Cemetery #1 | 0.0040320932 | $12,435 | $12,435 | $0.05 | | |
| FIRE2 | Fire & Rescue Dist #2 N Whidbey GEN | 0.5475949600 | $12,435 | $12,435 | $6.81 | | |
| HOBOND | Hospital BOND | 0.1910887512 | $12,435 | $12,435 | $2.38 | | |
| HOGEN | Hospital GEN | 0.3902502903 | $12,435 | $12,435 | $4.85 | | |
| CE | County Current Expense | 0.3708482477 | $12,435 | $12,435 | $4.61 | | |
| CR | County Roads | 0.4584763726 | $12,435 | $12,435 | $5.70 | | |
| ISLANDEMS | Hospital GEN (EMS) | 0.5000000000 | $12,435 | $12,435 | $6.22 | | |
| LIB | Library Sno-Isle GEN | 0.3153421757 | $12,435 | $12,435 | $3.92 | | |
| NWHIDPRMT | P & R N Whidbey GEN | 0.2004466701 | $12,435 | $12,435 | $2.49 | | |
| SCH201MO | School 201 Enrichment | 1.8559231640 | $12,435 | $12,435 | $23.08 | | |
| ST | State School | 1.3035497053 | $12,435 | $12,435 | $16.21 | | |
| ST2 | State School Part 2 | 0.8169543533 | $12,435 | $12,435 | $10.16 | | |
| | Total Tax Rate: | 6.9861102925 | | | | | |
| | | | | Taxes w/Current Exemptions: | $86.87 | | |
| | | | | Taxes w/o Exemptions: | $86.87 | | |
Improvement / Building
| Improvement #1: | MANUFACTURED HOME | State Code: | Y | 924.0 sqft | Value: | $12,435 |
| Bathrooms: | 0 | Bedrooms: | 0 | | Ceiling: | PLASTER PAINTED | Cooling: | EVAP NO DUCT | | Exterior Wall/Cover: | VINYL | Floor Covering: | CARPET 100% | | Floor Structure: | SLAB ON GRADE | Foundation: | SLAB | | Heating: | FHA ELECTRIC | Interior Finish: | PLASTER | | Plumbing Fixture Cnt: | 1 | Roof Slope: | FLAT | | Roof Structure/Cover: | CJ ALUMINIUM HEAVY |   |   |
|
| | Type | Description | Class CD | Sub Class CD | Year Built | Area |
| | BAS | BASE/MAIN FLOOR | 3 | 0 | 1983 | 924.0 |
| | OWP | OPEN WOOD PORCH W/STEPS | 3 | 0 | 1983 | 192.0 |
Sketch
Property Image
Land
No land segments exist for this property.
Roll Value History
| 2026 | N/A | N/A | N/A | N/A | N/A |
| 2025 | $12,435 | $0 | $0 | $12,435 | $12,435 |
| 2024 | $13,089 | $0 | $0 | $13,089 | $13,089 |
| 2023 | $12,494 | $0 | $0 | $12,494 | $12,494 |
| 2022 | $8,031 | $0 | $0 | $8,031 | $8,031 |
| 2021 | $7,332 | $0 | $0 | $7,332 | $7,332 |
| 2020 | $7,458 | $0 | $0 | $7,458 | $7,458 |
| 2019 | $6,141 | $0 | $0 | $6,141 | $6,141 |
| 2018 | $6,408 | $0 | $0 | $6,408 | $6,408 |
| 2017 | $6,809 | $0 | $0 | $6,809 | $6,809 |
| 2016 | $5,344 | $0 | $0 | $5,344 | $5,344 |
| 2015 | $5,598 | $0 | $0 | $5,598 | $5,598 |
| 2014 | $5,853 | $0 | $0 | $5,853 | $5,853 |
| 2013 | $6,107 | $0 | $0 | $6,107 | $6,107 |
| 2012 | $14,955 | $0 | $0 | $14,955 | $14,955 |
| 2011 | $15,464 | $0 | $0 | $15,464 | $15,464 |
| 2010 | $15,773 | $0 | $0 | $15,773 | $15,773 |
| 2009 | $16,696 | $0 | $0 | $16,696 | $16,696 |
| 2008 | $17,301 | $0 | $0 | $17,301 | $17,301 |
| 2007 | $17,432 | $0 | $0 | $17,432 | $17,432 |
Deed and Sales History
| 1 | 09/21/2017 | MANHOME | Manufactured Home | AMICK, JOSHUA | MONSCHAU, MICHAEL | | | $6,000.00 | 31163 | |
| 2 | 03/08/2015 | MANHOME | Manufactured Home | KRUG, TOM E | AMICK, JOSHUA | | | $2,000.00 | 24459 | |
| 3 | 11/03/2012 | OTHER | Other - Misc. Documents | GRACE, NORMA | KRUG, TOM E | | | $800.00 | 9569 | |
| 4 | 01/23/2004 | OTHER | Other - Misc. Documents | COACH CORRAL, | GRACE, NORMA | | | $7,900.00 | 40452 | 0 |
| 5 | 04/15/2003 | OTHER | Other - Misc. Documents | PORTER, KEITH | COACH CORRAL, | | | $0.00 | 31618 | 0 |
| 6 | 05/02/2000 | PACD | Purchaser's Assignment | JOHNSON, DOROTHY V | PORTER, KEITH | | | $15,650.00 | 1650 | 0 |
| 7 | 03/01/1990 | OTHER | Other - Misc. Documents | Unknown | JOHNSON, DOROTHY V | | | $12,000.00 | 1271 | 0 |
Payout Agreement
| No payout information available.. |