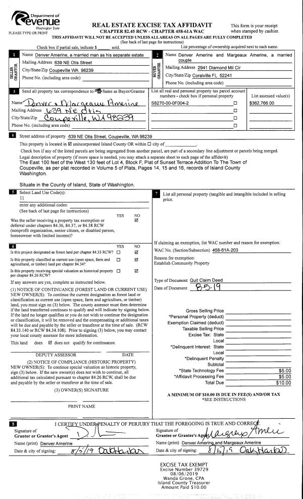
Property
Account |
| Property ID: | 726049 | Abbreviated Legal Description: | MADRONA BCH 1ST LOT 6 BLK 13 TGW ADJ VAC PT MADRONA ST R46-01 AF#4001903 |
| Geographic ID: | S7440-01-13006-0 | Agent Code: | |
| Type: | Real | | |
| Tax Area: | 510 - APPRAISER-Stan/Cam Schl Dist, improved & 1 acre or less | Land Use Code | 11 |
| Open Space: | N | DFL | N |
| Historic Property: | N | Remodel Property: | N |
| Multi-Family Redevelopment: | N | | |
| Township: | | Section: | |
| Range: | |
Location |
| Address: | | Mapsco: | |
| Neighborhood: | North Camano | Map ID: | 573 |
| Neighborhood CD: | 06-C |
Owner |
| Name: | BISNETT, GREGG S | Owner ID: | 274340 |
| Mailing Address: | KATHRYN L BISNETT 145 MAPLE STREET CAMANO ISLAND, WA 98282 | % Ownership: | 100.0000000000% |
| | | Exemptions: | |
Taxes and Assessment Details
Values
| (+) Improvement Homesite Value: | + | $0 | |
| (+) Improvement Non-Homesite Value: | + | $275,264 | |
| (+) Land Homesite Value: | + | $0 | |
| (+) Land Non-Homesite Value: | + | $360,000 | |
| (+) Curr Use (HS): | + | $0 | $0 |
| (+) Curr Use (NHS): | + | $0 | $0 |
| | | -------------------------- | |
| (=) Market Value: | = | $635,264 | |
| (–) Productivity Loss: | – | $0 | |
| | | -------------------------- | |
| (=) Subtotal: | = | $635,264 | |
| (+) Senior Appraised Value: | + | $0 | |
| (+) Non-Senior Appraised Value: | + | $635,264 | |
| | | -------------------------- | |
| (=) Total Appraised Value: | = | $635,264 | |
| (–) Senior Exemption Loss: | – | $0 | |
| (–) Exemption Loss: | – | $0 | |
| | | -------------------------- | |
| (=) Taxable Value: | = | $635,264 | |
Taxing Jurisdiction
| Owner: | BISNETT, GREGG S | | |
| % Ownership: | 100.0000000000% | | |
| Total Value: | $635,264 | | |
| Tax Area: | 510 - APPRAISER-Stan/Cam Schl Dist, improved & 1 acre or less |
| CF | Conservation Futures | 0.0316035091 | $635,264 | $635,264 | $20.08 | | |
| EMS1 | Fire & Rescue Dist #1 Camano GEN (EMS) | 0.3677864386 | $635,264 | $635,264 | $233.64 | | |
| FIRE1 | Fire & Rescue Dist #1 Camano GEN | 1.2502910536 | $635,264 | $635,264 | $794.26 | | |
| FIRE1BOND | Fire & Rescue Dist #1 Camano BOND | 0.1570001679 | $635,264 | $635,264 | $99.74 | | |
| CE | County Current Expense | 0.3708482477 | $635,264 | $635,264 | $235.59 | | |
| CR | County Roads | 0.4584763726 | $635,264 | $635,264 | $291.25 | | |
| LCIB | Library Sno-Isle BOND (Camano Island) | 0.0396325772 | $635,264 | $635,264 | $25.18 | | |
| LIB | Library Sno-Isle GEN | 0.3153421757 | $635,264 | $635,264 | $200.33 | | |
| SCH205_401 | School 205-401 Enrichment | 1.2698420524 | $635,264 | $635,264 | $806.68 | | |
| SCH205BOND | School 205-401 BOND | 0.9396497583 | $635,264 | $635,264 | $596.93 | | |
| ST | State School | 1.3035497053 | $635,264 | $635,264 | $828.10 | | |
| ST2 | State School Part 2 | 0.8169543533 | $635,264 | $635,264 | $518.98 | | |
| | Total Tax Rate: | 7.3209764117 | | | | | |
| | | | | Taxes w/Current Exemptions: | $4,650.76 | | |
| | | | | Taxes w/o Exemptions: | $4,650.76 | | |
Improvement / Building
| Improvement #1: | RESIDENTIAL | State Code: | Y | 984.0 sqft | Value: | $275,264 |
| Bathrooms: | 2 | Bedrooms: | 2 | | Ceiling: | DRYWALL PAINTED | Cooling: | HEAT PUMP/CONV/V | | Exterior Wall/Cover: | CEMENT FIBER | Floor Covering: | CARPET/VINYL 60-40 | | Floor Structure: | SLAB ON GRADE | Foundation: | SLAB | | Interior Finish: | DRYWALL PAINT | Plumbing Fixture Cnt: | 10 | | Roof Slope: | 4" IN 12" | Roof Structure/Cover: | CJ ASPHALT |
|
| | Type | Description | Class CD | Sub Class CD | Year Built | Area |
| | BAS | BASE/MAIN FLOOR | 3 | 0 | 2019 | 984.0 |
| | BIG | BUILT IN GARAGE | 3 | 0 | 2019 | 1320.0 |
| | OWC | OPEN WOOD PORCH W/STEPS/ROOF/C | 3 | 0 | 2019 | 336.0 |
| | BAI | BALCONY IRON RAIL | 3 | 0 | 2019 | 80.0 |
Sketch
Property Image
Land
| 1 | 12 | SQ (00000-06000) | 0.0000 | 0.00 | 0.00 | 0.00 | 1.00 | $360,000 | $0 |
Roll Value History
| 2026 | N/A | N/A | N/A | N/A | N/A |
| 2025 | $275,264 | $360,000 | $0 | $635,264 | $635,264 |
| 2024 | $277,484 | $360,000 | $0 | $637,484 | $637,484 |
| 2023 | $279,704 | $360,000 | $0 | $639,704 | $639,704 |
| 2022 | $251,291 | $240,000 | $0 | $491,291 | $491,291 |
| 2021 | $220,807 | $200,000 | $0 | $420,807 | $420,807 |
| 2020 | $215,219 | $160,000 | $0 | $375,219 | $375,219 |
| 2019 | $150,060 | $170,000 | $0 | $320,060 | $320,060 |
| 2018 | $19,260 | $140,000 | $0 | $159,260 | $159,260 |
| 2017 | $20,274 | $120,000 | $0 | $140,274 | $140,274 |
| 2016 | $12,777 | $110,000 | $0 | $122,777 | $122,777 |
| 2015 | $12,777 | $92,800 | $0 | $105,577 | $105,577 |
| 2014 | $12,777 | $92,800 | $0 | $105,577 | $105,577 |
| 2013 | $12,777 | $92,800 | $0 | $105,577 | $105,577 |
| 2012 | $12,777 | $92,800 | $0 | $105,577 | $105,577 |
| 2011 | $12,777 | $116,000 | $0 | $128,777 | $128,777 |
| 2010 | $12,925 | $116,000 | $0 | $128,925 | $128,925 |
| 2009 | $13,285 | $148,000 | $0 | $161,285 | $161,285 |
| 2008 | $13,316 | $148,000 | $0 | $161,316 | $161,316 |
| 2007 | $13,347 | $148,000 | $0 | $161,347 | $161,347 |
Deed and Sales History
| 1 | 04/05/2016 | WD | Warranty Deed | JOHNSON, STEFANI L | BISNETT, GREGG S | | | $105,000.00 | 23809 | 4397141 |
| 2 | 10/29/2007 | OTHER | Other - Misc. Documents | KNOWLES, STEFANI L | JOHNSON, STEFANI L | | | $0.00 | 80424 | 0 |
| 3 | 01/25/2005 | DECREE | Divorce Decree/Legal Separation | KNOWLES, ROBERT 0 | KNOWLES, STEFANI L | | | $0.00 | 56171 | 4156967 |
| 4 | 05/01/2000 | OTHER | Other - Misc. Documents | MORRIS, JUNE H | KNOWLES, ROBERT O | | | $0.00 | 1684 | 0 |
| 5 | 05/01/2000 | QCD | Quit Claim Deed | Unknown | KNOWLES, ROBERT 0 | | | $34,000.00 | 1683 | 20008048 |
| 6 | 04/01/1983 | OTHER | Other - Misc. Documents | LEGGEE, JACK D | MORRIS, JUNE H | | | $0.00 | 59951 | 0 |
| 7 | 04/01/1983 | OTHER | Other - Misc. Documents | KNOWLES, ROBERT O | MORRIS, JUNE H | | | $0.00 | 59951 | 0 |
| 8 | 01/01/1900 | OTHER | Other - Misc. Documents | Unknown | LEGGEE, JACK D | | | $0.00 | 0 | 0 |
| 9 | 01/01/1900 | OTHER | Other - Misc. Documents | MORRIS, JUNE H | LEGEE, JUME H | | | $0.00 | 0 | 0 |
Payout Agreement
| No payout information available.. |