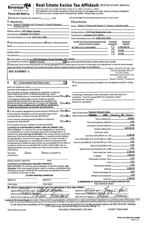
Property
Account |
| Property ID: | 726227 | Abbreviated Legal Description: | 1993 REDMAN RIDGEDALE 28 X 44 VIN# 11818450AB TPO %087002 |
| Geographic ID: | M910000000470 | Agent Code: | |
| Type: | Mobile Home | | |
| Tax Area: | 300 - APPRAISER-Cpvl Schl Dist, in Cpvl | Land Use Code | 11 |
| Open Space: | N | DFL | N |
| Historic Property: | N | Remodel Property: | N |
| Multi-Family Redevelopment: | N | | |
| Township: | | Section: | |
| Range: | |
Location |
| Address: | 701 S MAIN ST # 47 COUPEVILLE, WA 98239 | Mapsco: | |
| Neighborhood: | Cycle 2 | Map ID: | |
| Neighborhood CD: | 2 |
Owner |
| Name: | HOUGHTON, REBEKAH B. | Owner ID: | 270457 |
| Mailing Address: | 701 S MAIN ST #47 COUPEVILLE, WA 98239 | % Ownership: | 100.0000000000% |
| | | Exemptions: | |
Taxes and Assessment Details
Values
| (+) Improvement Homesite Value: | + | $0 | |
| (+) Improvement Non-Homesite Value: | + | $167,851 | |
| (+) Land Homesite Value: | + | $0 | |
| (+) Land Non-Homesite Value: | + | $0 | |
| (+) Curr Use (HS): | + | $0 | $0 |
| (+) Curr Use (NHS): | + | $0 | $0 |
| | | -------------------------- | |
| (=) Market Value: | = | $167,851 | |
| (–) Productivity Loss: | – | $0 | |
| | | -------------------------- | |
| (=) Subtotal: | = | $167,851 | |
| (+) Senior Appraised Value: | + | $0 | |
| (+) Non-Senior Appraised Value: | + | $167,851 | |
| | | -------------------------- | |
| (=) Total Appraised Value: | = | $167,851 | |
| (–) Senior Exemption Loss: | – | $0 | |
| (–) Exemption Loss: | – | $0 | |
| | | -------------------------- | |
| (=) Taxable Value: | = | $167,851 | |
Taxing Jurisdiction
| Owner: | HOUGHTON, REBEKAH B. | | |
| % Ownership: | 100.0000000000% | | |
| Total Value: | $167,851 | | |
| Tax Area: | 300 - APPRAISER-Cpvl Schl Dist, in Cpvl |
| CF | Conservation Futures | 0.0316035091 | $167,851 | $167,851 | $5.30 | | |
| CEM2 | Cemetery #2 | 0.0095056933 | $167,851 | $167,851 | $1.60 | | |
| COUP | City: Town of Coupeville | 0.8426414490 | $167,851 | $167,851 | $141.44 | | |
| FIRE5 | Fire & Rescue Dist #5 C Whidbey GEN | 1.2008080668 | $167,851 | $167,851 | $201.56 | | |
| FIRE5BOND | Fire & Rescue Dist #5 C Whidbey BOND | 0.1400090713 | $167,851 | $167,851 | $23.50 | | |
| HOBOND | Hospital BOND | 0.1910887512 | $167,851 | $167,851 | $32.07 | | |
| HOGEN | Hospital GEN | 0.3902502903 | $167,851 | $167,851 | $65.50 | | |
| CE | County Current Expense | 0.3708482477 | $167,851 | $167,851 | $62.25 | | |
| ISLANDEMS | Hospital GEN (EMS) | 0.5000000000 | $167,851 | $167,851 | $83.93 | | |
| LIB | Library Sno-Isle GEN | 0.3153421757 | $167,851 | $167,851 | $52.93 | | |
| LIBCAP | Library Sno-Isle BOND (Cap Fac Imp Area) | 0.0543427938 | $167,851 | $167,851 | $9.12 | | |
| POCOUP | Port of Coupeville GEN | 0.1093371703 | $167,851 | $167,851 | $18.35 | | |
| POCOUPIDD | Port of Coupeville IDD | 0.3409740022 | $167,851 | $167,851 | $57.23 | | |
| COUPSDTECH | School 204 CP (TECH) | 0.7545480007 | $167,851 | $167,851 | $126.65 | | |
| SCH204MO | School 204 Enrichment | 0.6716186034 | $167,851 | $167,851 | $112.73 | | |
| ST | State School | 1.3035497053 | $167,851 | $167,851 | $218.80 | | |
| ST2 | State School Part 2 | 0.8169543533 | $167,851 | $167,851 | $137.13 | | |
| | Total Tax Rate: | 8.0434218834 | | | | | |
| | | | | Taxes w/Current Exemptions: | $1,350.09 | | |
| | | | | Taxes w/o Exemptions: | $1,350.09 | | |
Improvement / Building
| Improvement #1: | MANUFACTURED HOME | State Code: | Y | 1210.0 sqft | Value: | $167,851 |
| Bathrooms: | 2 | Bedrooms: | 3 | | Ceiling: | PLASTER PAINTED | Cooling: | EVAP NO DUCT | | Exterior Wall/Cover: | VINYL | Floor Covering: | CARPET 100% | | Floor Structure: | SLAB ON GRADE | Foundation: | SLAB | | Heating: | FHA ELECTRIC | Interior Finish: | PLASTER | | Plumbing Fixture Cnt: | 1 | Roof Slope: | FLAT | | Roof Structure/Cover: | CJ ALUMINIUM HEAVY |   |   |
|
Sketch
Property Image
Land
No land segments exist for this property.
Roll Value History
| 2026 | N/A | N/A | N/A | N/A | N/A |
| 2025 | $167,851 | $0 | $0 | $167,851 | $167,851 |
| 2024 | $116,451 | $0 | $0 | $116,451 | $116,451 |
| 2023 | $70,710 | $0 | $0 | $70,710 | $70,710 |
| 2022 | $66,028 | $0 | $0 | $66,028 | $66,028 |
| 2021 | $59,159 | $0 | $0 | $59,159 | $59,159 |
| 2020 | $59,121 | $0 | $0 | $59,121 | $59,121 |
| 2019 | $47,899 | $0 | $0 | $47,899 | $47,899 |
| 2018 | $30,046 | $0 | $0 | $30,046 | $30,046 |
| 2017 | $31,434 | $0 | $0 | $31,434 | $31,434 |
| 2016 | $32,360 | $0 | $0 | $32,360 | $32,360 |
| 2015 | $33,285 | $0 | $0 | $33,285 | $33,285 |
| 2014 | $34,210 | $0 | $0 | $34,210 | $0 |
| 2013 | $35,136 | $0 | $0 | $35,136 | $0 |
| 2012 | $36,261 | $0 | $0 | $36,261 | $0 |
| 2011 | $37,186 | $0 | $0 | $37,186 | $0 |
| 2010 | $38,791 | $0 | $0 | $38,791 | $0 |
| 2009 | $41,066 | $0 | $0 | $41,066 | $0 |
| 2008 | $42,311 | $0 | $0 | $42,311 | $0 |
| 2007 | $42,466 | $0 | $0 | $42,466 | $0 |
Deed and Sales History
| 1 | 05/29/2015 | OTHER | Other - Misc. Documents | HOWARD, WILLA | HOUGHTON, REBEKAH B. | | | $44,000.00 | 19800 | |
| 2 | 10/01/1993 | OTHER | Other - Misc. Documents | Unknown | HOWARD, WILLA | | | $32,985.00 | 11111111 | 0 |
Payout Agreement
| No payout information available.. |