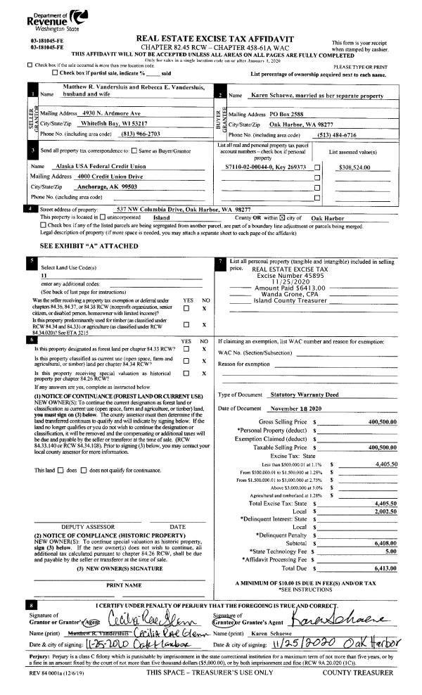
Property
Account |
| Property ID: | 726646 | Abbreviated Legal Description: | MUTINY BAY PK 1 LOT 16 |
| Geographic ID: | S7540-00-00016-0 | Agent Code: | |
| Type: | Real | | |
| Tax Area: | 712 - APPRAISER-S Whid Schl Dist, outside Langley, improved, greater than 1 acre | Land Use Code | 11 |
| Open Space: | N | DFL | N |
| Historic Property: | N | Remodel Property: | N |
| Multi-Family Redevelopment: | N | | |
| Township: | | Section: | |
| Range: | |
Location |
| Address: | 5182 BOUNTY LOOP FREELAND, WA 98249 | Mapsco: | |
| Neighborhood: | Cycle 3 | Map ID: | 293 |
| Neighborhood CD: | 3 |
Owner |
| Name: | JOHNSON, GEORGE L | Owner ID: | 295377 |
| Mailing Address: | JENNIE GRACE GABELEIN 5182 BOUNTY LOOP FREELAND, WA 98249 | % Ownership: | 100.0000000000% |
| | | Exemptions: | |
Taxes and Assessment Details
Values
| (+) Improvement Homesite Value: | + | $0 | |
| (+) Improvement Non-Homesite Value: | + | $105,886 | |
| (+) Land Homesite Value: | + | $0 | |
| (+) Land Non-Homesite Value: | + | $250,000 | |
| (+) Curr Use (HS): | + | $0 | $0 |
| (+) Curr Use (NHS): | + | $0 | $0 |
| | | -------------------------- | |
| (=) Market Value: | = | $355,886 | |
| (–) Productivity Loss: | – | $0 | |
| | | -------------------------- | |
| (=) Subtotal: | = | $355,886 | |
| (+) Senior Appraised Value: | + | $0 | |
| (+) Non-Senior Appraised Value: | + | $355,886 | |
| | | -------------------------- | |
| (=) Total Appraised Value: | = | $355,886 | |
| (–) Senior Exemption Loss: | – | $0 | |
| (–) Exemption Loss: | – | $0 | |
| | | -------------------------- | |
| (=) Taxable Value: | = | $355,886 | |
Taxing Jurisdiction
| Owner: | JOHNSON, GEORGE L | | |
| % Ownership: | 100.0000000000% | | |
| Total Value: | $355,886 | | |
| Tax Area: | 712 - APPRAISER-S Whid Schl Dist, outside Langley, improved, greater than 1 acre |
| CF | Conservation Futures | 0.0316035091 | $355,886 | $355,886 | $11.25 | | |
| FIRE3 | Fire & Rescue Dist #3 S Whidbey GEN | 1.2004855531 | $355,886 | $355,886 | $427.24 | | |
| HOBOND | Hospital BOND | 0.1910887512 | $355,886 | $355,886 | $68.01 | | |
| HOGEN | Hospital GEN | 0.3902502903 | $355,886 | $355,886 | $138.88 | | |
| CE | County Current Expense | 0.3708482477 | $355,886 | $355,886 | $131.98 | | |
| CR | County Roads | 0.4584763726 | $355,886 | $355,886 | $163.17 | | |
| ISLANDEMS | Hospital GEN (EMS) | 0.5000000000 | $355,886 | $355,886 | $177.94 | | |
| LIB | Library Sno-Isle GEN | 0.3153421757 | $355,886 | $355,886 | $112.23 | | |
| PORTWHID | Port of S Whidbey GEN | 0.1094540357 | $355,886 | $355,886 | $38.95 | | |
| SCH206BOND | School 206 BOND | 0.3161759235 | $355,886 | $355,886 | $112.52 | | |
| SCH206MO | School 206 Enrichment | 0.4547169547 | $355,886 | $355,886 | $161.83 | | |
| ST | State School | 1.3035497053 | $355,886 | $355,886 | $463.92 | | |
| ST2 | State School Part 2 | 0.8169543533 | $355,886 | $355,886 | $290.74 | | |
| SWHIDPRBD | P & R S Whidbey BOND | 0.0152817568 | $355,886 | $355,886 | $5.44 | | |
| SWHIDPRBD2 | P & R S Whidbey BOND2 | 0.0138911264 | $355,886 | $355,886 | $4.94 | | |
| SWHIDPRMT | P & R S Whidbey GEN | 0.2053334452 | $355,886 | $355,886 | $73.08 | | |
| | Total Tax Rate: | 6.6934522006 | | | | | |
| | | | | Taxes w/Current Exemptions: | $2,382.12 | | |
| | | | | Taxes w/o Exemptions: | $2,382.12 | | |
Improvement / Building
| Improvement #1: | MANUFACTURED HOME | State Code: | Y | 1296.0 sqft | Value: | $105,886 |
| Bathrooms: | 0 | Bedrooms: | 0 | | Ceiling: | PLASTER PAINTED | Cooling: | EVAP NO DUCT | | Exterior Wall/Cover: | VINYL | Floor Covering: | CARPET 100% | | Floor Structure: | SLAB ON GRADE | Foundation: | SLAB | | Heating: | FHA ELECTRIC | Interior Finish: | PLASTER | | Plumbing Fixture Cnt: | 1 | Roof Slope: | FLAT | | Roof Structure/Cover: | CJ ALUMINIUM HEAVY |   |   |
|
| | Type | Description | Class CD | Sub Class CD | Year Built | Area |
| | BAS | BASE/MAIN FLOOR | 3 | 0 | 1986 | 1296.0 |
| | oOBD | Out Buildings | 3 | 0 | 1986 | 1200.0 |
| | OWR | OPEN WOOD PORCH W/STEPS/ROOF | 3 | 0 | 1986 | 690.0 |
Sketch
Property Image
Land
| 1 | 18 | AC (02.01-03.00) | 0.0000 | 0.00 | 0.00 | 0.00 | 1.00 | $250,000 | $0 |
Roll Value History
| 2026 | N/A | N/A | N/A | N/A | N/A |
| 2025 | $105,886 | $250,000 | $0 | $355,886 | $355,886 |
| 2024 | $108,633 | $230,000 | $0 | $338,633 | $338,633 |
| 2023 | $111,379 | $230,000 | $0 | $341,379 | $341,379 |
| 2022 | $105,043 | $200,000 | $0 | $305,043 | $305,043 |
| 2021 | $95,854 | $180,000 | $0 | $275,854 | $275,854 |
| 2020 | $84,283 | $165,000 | $0 | $249,283 | $249,283 |
| 2019 | $67,918 | $200,000 | $0 | $267,918 | $267,918 |
| 2018 | $69,571 | $120,000 | $0 | $189,571 | $189,571 |
| 2017 | $66,493 | $100,000 | $0 | $166,493 | $166,493 |
| 2016 | $68,007 | $100,000 | $0 | $168,007 | $168,007 |
| 2015 | $69,522 | $100,000 | $0 | $169,522 | $169,522 |
| 2014 | $70,279 | $100,000 | $0 | $170,279 | $170,279 |
| 2013 | $68,349 | $100,000 | $0 | $168,349 | $168,349 |
| 2012 | $69,529 | $114,750 | $0 | $184,279 | $184,279 |
| 2011 | $70,709 | $135,000 | $0 | $205,709 | $205,709 |
| 2010 | $72,183 | $135,000 | $0 | $207,183 | $207,183 |
| 2009 | $74,565 | $155,000 | $0 | $229,565 | $229,565 |
| 2008 | $75,656 | $100,288 | $0 | $175,944 | $175,944 |
| 2007 | $76,185 | $100,990 | $0 | $177,175 | $177,175 |
Deed and Sales History
| 1 | 07/22/2020 | WD | Warranty Deed | VAN WETTER, GINA | JOHNSON, GEORGE L | | | $358,000.00 | 43987 | 4492455 |
| 2 | 11/07/2018 | QCD | Quit Claim Deed | BURTON, ELLEN | VAN WETTER, GINA | | | $0.00 | 37052 | 4456902 |
| 3 | 10/17/2008 | WD | Warranty Deed | BOYDSTUN, ILA | BURTON, ELLEN | | | $228,000.00 | 82754 | 4238691 |
| 4 | 09/06/2005 | PRD | Personal Representatives Deed | BOYDSTUN, CHARLES A | BOYDSTUN, ILA | | | $0.00 | 54685 | 4148188 |
| 5 | 12/01/1990 | EZ | Easement | BOYDSTUN, CHARLES A | BOYDSTUN, CHARLES A | | | $0.00 | 6573 | 90022912 |
| 6 | 03/01/1987 | OTHER | Other - Misc. Documents | Unknown | BOYDSTUN, CHARLES A | | | $32,000.00 | 11111111 | 0 |
| 7 | 08/01/1978 | OTHER | Other - Misc. Documents | BOYDSTUN, CHARLES A | BOYDSTUN, CHARLES A | | | $17,500.00 | 84106 | 338640 |
Payout Agreement
| No payout information available.. |