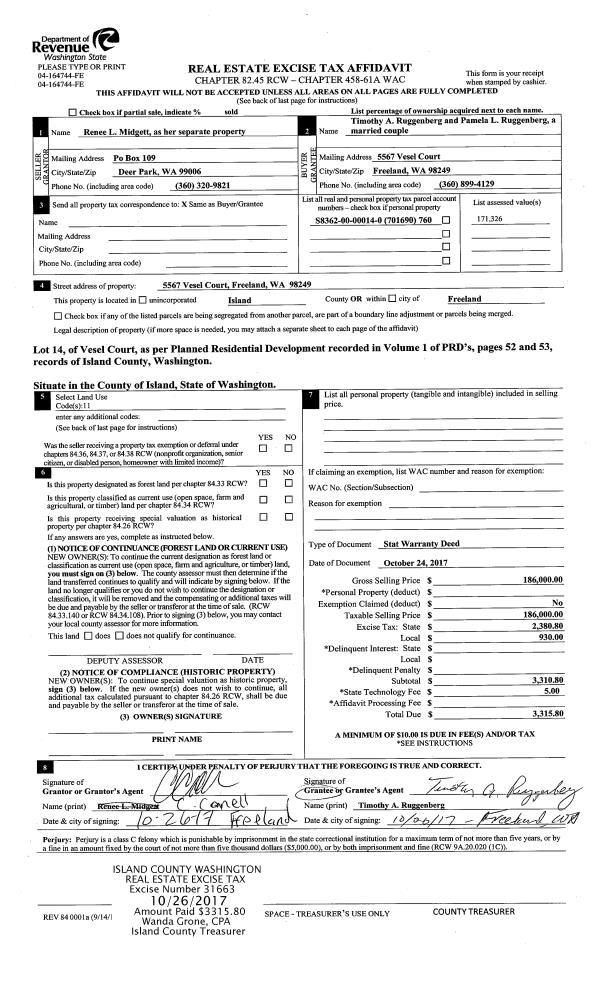
Property
Account |
| Property ID: | 726682 | Abbreviated Legal Description: | 1975 SKYLINE FREEDOM 12X56 TPO @45032 VIN# 08910594I |
| Geographic ID: | M915000000300 | Agent Code: | |
| Type: | Mobile Home | | |
| Tax Area: | 100 - APPRAISER-OH Schl Dist, in OH | Land Use Code | 11 |
| Open Space: | N | DFL | N |
| Historic Property: | N | Remodel Property: | N |
| Multi-Family Redevelopment: | N | | |
| Township: | | Section: | |
| Range: | |
Location |
| Address: | 820 N OAK HARBOR ST # 46 OAK HARBOR, WA 98277 | Mapsco: | |
| Neighborhood: | Cycle 1 | Map ID: | |
| Neighborhood CD: | 1 |
Owner |
| Name: | DAYLEY, MICHAEL | Owner ID: | 283128 |
| Mailing Address: | PATRICIA DAYLEY 820 N OAK HARBOR ST #46 OAK HARBOR, WA 98277 | % Ownership: | 100.0000000000% |
| | | Exemptions: | |
Taxes and Assessment Details
Values
| (+) Improvement Homesite Value: | + | $0 | |
| (+) Improvement Non-Homesite Value: | + | $6,024 | |
| (+) Land Homesite Value: | + | $0 | |
| (+) Land Non-Homesite Value: | + | $0 | |
| (+) Curr Use (HS): | + | $0 | $0 |
| (+) Curr Use (NHS): | + | $0 | $0 |
| | | -------------------------- | |
| (=) Market Value: | = | $6,024 | |
| (–) Productivity Loss: | – | $0 | |
| | | -------------------------- | |
| (=) Subtotal: | = | $6,024 | |
| (+) Senior Appraised Value: | + | $0 | |
| (+) Non-Senior Appraised Value: | + | $6,024 | |
| | | -------------------------- | |
| (=) Total Appraised Value: | = | $6,024 | |
| (–) Senior Exemption Loss: | – | $0 | |
| (–) Exemption Loss: | – | $0 | |
| | | -------------------------- | |
| (=) Taxable Value: | = | $6,024 | |
Taxing Jurisdiction
| Owner: | DAYLEY, MICHAEL | | |
| % Ownership: | 100.0000000000% | | |
| Total Value: | $6,024 | | |
| Tax Area: | 100 - APPRAISER-OH Schl Dist, in OH |
| CF | Conservation Futures | 0.0316035091 | $6,024 | $6,024 | $0.19 | | |
| CEM1 | Cemetery #1 | 0.0040320932 | $6,024 | $6,024 | $0.02 | | |
| COH | City of Oak Harbor | 2.3001546061 | $6,024 | $6,024 | $13.86 | | |
| OAKBOND | City of Oak Harbor BOND | 0.1926904192 | $6,024 | $6,024 | $1.16 | | |
| HOBOND | Hospital BOND | 0.1910887512 | $6,024 | $6,024 | $1.15 | | |
| HOGEN | Hospital GEN | 0.3902502903 | $6,024 | $6,024 | $2.35 | | |
| CE | County Current Expense | 0.3708482477 | $6,024 | $6,024 | $2.23 | | |
| ISLANDEMS | Hospital GEN (EMS) | 0.5000000000 | $6,024 | $6,024 | $3.01 | | |
| LIB | Library Sno-Isle GEN | 0.3153421757 | $6,024 | $6,024 | $1.90 | | |
| NWHIDPRMT | P & R N Whidbey GEN | 0.2004466701 | $6,024 | $6,024 | $1.21 | | |
| SCH201MO | School 201 Enrichment | 1.8559231640 | $6,024 | $6,024 | $11.18 | | |
| ST | State School | 1.3035497053 | $6,024 | $6,024 | $7.85 | | |
| ST2 | State School Part 2 | 0.8169543533 | $6,024 | $6,024 | $4.92 | | |
| | Total Tax Rate: | 8.4728839852 | | | | | |
| | | | | Taxes w/Current Exemptions: | $51.03 | | |
| | | | | Taxes w/o Exemptions: | $51.03 | | |
Improvement / Building
| Improvement #1: | MANUFACTURED HOME | State Code: | Y | 672.0 sqft | Value: | $6,024 |
| Bathrooms: | 0 | Bedrooms: | 0 | | Ceiling: | PLASTER PAINTED | Cooling: | EVAP NO DUCT | | Exterior Wall/Cover: | VINYL | Floor Covering: | CARPET 100% | | Floor Structure: | SLAB ON GRADE | Foundation: | SLAB | | Heating: | FHA ELECTRIC | Interior Finish: | PLASTER | | Plumbing Fixture Cnt: | 1 | Roof Slope: | FLAT | | Roof Structure/Cover: | CJ ALUMINIUM HEAVY |   |   |
|
Sketch
Property Image
Land
No land segments exist for this property.
Roll Value History
| 2026 | N/A | N/A | N/A | N/A | N/A |
| 2025 | $6,024 | $0 | $0 | $6,024 | $6,024 |
| 2024 | $6,024 | $0 | $0 | $6,024 | $6,024 |
| 2023 | $4,452 | $0 | $0 | $4,452 | $4,452 |
| 2022 | $4,032 | $0 | $0 | $4,032 | $4,032 |
| 2021 | $3,506 | $0 | $0 | $3,506 | $3,506 |
| 2020 | $3,403 | $0 | $0 | $3,403 | $3,403 |
| 2019 | $2,949 | $0 | $0 | $2,949 | $2,949 |
| 2018 | $3,217 | $0 | $0 | $3,217 | $0 |
| 2017 | $3,352 | $0 | $0 | $3,352 | $0 |
| 2016 | $3,620 | $0 | $0 | $3,620 | $3,620 |
| 2015 | $3,754 | $0 | $0 | $3,754 | $3,754 |
| 2014 | $4,022 | $0 | $0 | $4,022 | $4,022 |
| 2013 | $4,156 | $0 | $0 | $4,156 | $4,156 |
| 2012 | $4,424 | $0 | $0 | $4,424 | $4,424 |
| 2011 | $5,670 | $0 | $0 | $5,670 | $5,670 |
| 2010 | $5,727 | $0 | $0 | $5,727 | $5,727 |
| 2009 | $6,023 | $0 | $0 | $6,023 | $6,023 |
| 2008 | $6,023 | $0 | $0 | $6,023 | $6,023 |
| 2007 | $6,023 | $0 | $0 | $6,023 | $6,023 |
Deed and Sales History
| 1 | 02/02/2015 | MANHOME | Manufactured Home | TOWN & COUNTRY MHP | DAYLEY, MICHAEL | | | $1,700.00 | 32135 | |
| 2 | 12/02/2014 | OTHER | Other - Misc. Documents | BEADNELL, SHELLY R | TOWN AND COUNTRY MOBILE HOME PARK | | | $0.00 | 17733 | |
| 3 | 10/20/2004 | OTHER | Other - Misc. Documents | SHIMEL, MARK A | BEADNELL, SHELLY R | | | $2,000.00 | 44908 | 0 |
| 4 | 05/13/2002 | OTHER | Other - Misc. Documents | SHIMEL, DAVID / | SHIMEL, MARK A | | | $0.00 | 21769 | 0 |
| 5 | 08/01/1989 | OTHER | Other - Misc. Documents | Unknown | SHIMEL, DAVID / | | | $8,000.00 | 93131 | 0 |
Payout Agreement
| No payout information available.. |